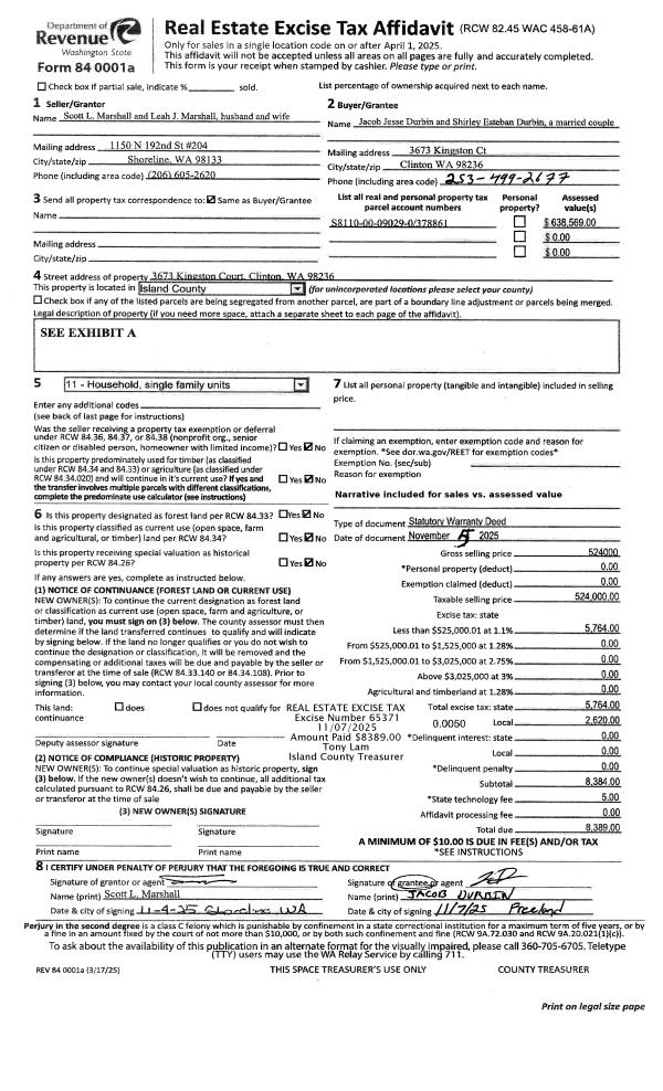
Property
Account |
| Property ID: | 388299 | Abbreviated Legal Description: | SHANGRI-LA SHORES #2 LOT 2 BLK 4 TGW S/2 LOT 3 BLK 4 COMB 6/95 |
| Geographic ID: | S8150-02-04002-0 | Agent Code: | |
| Type: | Real | | |
| Tax Area: | 310 - APPRAISER-Cpvl Schl Dist, outside Cpvl, improved & 1 acre or less | Land Use Code | 11 |
| Open Space: | N | DFL | N |
| Historic Property: | N | Remodel Property: | N |
| Multi-Family Redevelopment: | N | | |
| Township: | | Section: | |
| Range: | |
Location |
| Address: | 761 SHANGRI-LA CIR COUPEVILLE, WA 98239 | Mapsco: | |
| Neighborhood: | Cycle 2 | Map ID: | 466 |
| Neighborhood CD: | 2 |
Owner |
| Name: | INGRAM, KRISTINA M | Owner ID: | 259628 |
| Mailing Address: | 775 SHANGRI LA CIRCLE COUPEVILLE, WA 98239 | % Ownership: | 100.0000000000% |
| | | Exemptions: | |
Taxes and Assessment Details
Values
| (+) Improvement Homesite Value: | + | $0 | |
| (+) Improvement Non-Homesite Value: | + | $146,698 | |
| (+) Land Homesite Value: | + | $0 | |
| (+) Land Non-Homesite Value: | + | $220,000 | |
| (+) Curr Use (HS): | + | $0 | $0 |
| (+) Curr Use (NHS): | + | $0 | $0 |
| | | -------------------------- | |
| (=) Market Value: | = | $366,698 | |
| (–) Productivity Loss: | – | $0 | |
| | | -------------------------- | |
| (=) Subtotal: | = | $366,698 | |
| (+) Senior Appraised Value: | + | $0 | |
| (+) Non-Senior Appraised Value: | + | $366,698 | |
| | | -------------------------- | |
| (=) Total Appraised Value: | = | $366,698 | |
| (–) Senior Exemption Loss: | – | $0 | |
| (–) Exemption Loss: | – | $0 | |
| | | -------------------------- | |
| (=) Taxable Value: | = | $366,698 | |
Taxing Jurisdiction
| Owner: | INGRAM, KRISTINA M | | |
| % Ownership: | 100.0000000000% | | |
| Total Value: | $366,698 | | |
| Tax Area: | 310 - APPRAISER-Cpvl Schl Dist, outside Cpvl, improved & 1 acre or less |
| CF | Conservation Futures | 0.0316035091 | $366,698 | $366,698 | $11.59 | | |
| CEM2 | Cemetery #2 | 0.0095056933 | $366,698 | $366,698 | $3.49 | | |
| FIRE5 | Fire & Rescue Dist #5 C Whidbey GEN | 1.2008080668 | $366,698 | $366,698 | $440.33 | | |
| FIRE5BOND | Fire & Rescue Dist #5 C Whidbey BOND | 0.1400090713 | $366,698 | $366,698 | $51.34 | | |
| HOBOND | Hospital BOND | 0.1910887512 | $366,698 | $366,698 | $70.07 | | |
| HOGEN | Hospital GEN | 0.3902502903 | $366,698 | $366,698 | $143.10 | | |
| CE | County Current Expense | 0.3708482477 | $366,698 | $366,698 | $135.99 | | |
| CR | County Roads | 0.4584763726 | $366,698 | $366,698 | $168.12 | | |
| ISLANDEMS | Hospital GEN (EMS) | 0.5000000000 | $366,698 | $366,698 | $183.35 | | |
| LIB | Library Sno-Isle GEN | 0.3153421757 | $366,698 | $366,698 | $115.64 | | |
| LIBCAP | Library Sno-Isle BOND (Cap Fac Imp Area) | 0.0543427938 | $366,698 | $366,698 | $19.93 | | |
| POCOUP | Port of Coupeville GEN | 0.1093371703 | $366,698 | $366,698 | $40.09 | | |
| POCOUPIDD | Port of Coupeville IDD | 0.3409740022 | $366,698 | $366,698 | $125.03 | | |
| COUPSDTECH | School 204 CP (TECH) | 0.7545480007 | $366,698 | $366,698 | $276.69 | | |
| SCH204MO | School 204 Enrichment | 0.6716186034 | $366,698 | $366,698 | $246.28 | | |
| ST | State School | 1.3035497053 | $366,698 | $366,698 | $478.01 | | |
| ST2 | State School Part 2 | 0.8169543533 | $366,698 | $366,698 | $299.58 | | |
| | Total Tax Rate: | 7.6592568070 | | | | | |
| | | | | Taxes w/Current Exemptions: | $2,808.63 | | |
| | | | | Taxes w/o Exemptions: | $2,808.63 | | |
Improvement / Building
| Improvement #1: | RESIDENTIAL | State Code: | Y | 800.0 sqft | Value: | $146,698 |
| Bathrooms: | 1.5 | Bedrooms: | 2 | | Ceiling: | DRYWALL PAINTED | Exterior Wall/Cover: | WOOD SIDING | | Floor Covering: | CARPET/VINYL 60-40 | Floor Structure: | WOOD W/SUBFLOOR | | Foundation: | CONCRETE | Heating: | BASEBOARD ELECTRIC | | Interior Finish: | DRYWALL PAINT | Plumbing Fixture Cnt: | 8 | | Roof Slope: | 4" IN 12" | Roof Structure/Cover: | BEAM ALUMINUM HEAVY |
|
| | Type | Description | Class CD | Sub Class CD | Year Built | Area |
| | BAS | BASE/MAIN FLOOR | 3 | 0 | 1965 | 800.0 |
| | OWP | OPEN WOOD PORCH W/STEPS | 3 | 0 | 1965 | 474.5 |
Sketch
| No sketches available for this property. |
Property Image
Land
| 1 | 15 | SQ (12001-21780) | 0.3100 | 13503.60 | 0.00 | 0.00 | 1.00 | $220,000 | $0 |
Roll Value History
| 2026 | N/A | N/A | N/A | N/A | N/A |
| 2025 | $146,698 | $220,000 | $0 | $366,698 | $366,698 |
| 2024 | $141,695 | $190,000 | $0 | $331,695 | $331,695 |
| 2023 | $143,712 | $180,000 | $0 | $323,712 | $323,712 |
| 2022 | $131,962 | $170,000 | $0 | $301,962 | $301,962 |
| 2021 | $116,337 | $140,000 | $0 | $256,337 | $256,337 |
| 2020 | $113,075 | $120,000 | $0 | $233,075 | $233,075 |
| 2019 | $77,775 | $155,000 | $0 | $232,775 | $232,775 |
| 2018 | $49,765 | $135,000 | $0 | $184,765 | $184,765 |
| 2017 | $49,994 | $115,000 | $0 | $164,994 | $164,994 |
| 2016 | $50,729 | $115,000 | $0 | $165,729 | $165,729 |
| 2015 | $51,465 | $90,000 | $0 | $141,465 | $141,465 |
| 2014 | $77,547 | $85,000 | $0 | $162,547 | $162,547 |
| 2013 | $62,824 | $85,000 | $0 | $147,824 | $147,824 |
| 2012 | $57,512 | $76,500 | $0 | $134,012 | $134,012 |
| 2011 | $58,533 | $85,000 | $0 | $143,533 | $29,432 |
| 2010 | $63,441 | $85,000 | $0 | $148,441 | $29,432 |
| 2009 | $66,418 | $100,000 | $0 | $166,418 | $29,432 |
| 2008 | $67,448 | $100,000 | $0 | $167,448 | $29,432 |
| 2007 | $68,479 | $100,000 | $0 | $168,479 | $29,432 |
Deed and Sales History
| 1 | 09/25/2012 | PRD | Personal Representatives Deed | TODD, THOMAS S | INGRAM, KRISTINA M | | | $94,900.00 | 9015 | 4324063 |
| 2 | 06/04/2008 | ESTSEPPROP | Establish Separate Property | TODD, THOMAS S | TODD, THOMAS S | | | $0.00 | 81430 | 4230053 |
| 3 | 06/01/1995 | OTHER | Other - Misc. Documents | TODD, THOMAS S | TODD, THOMAS S | | | $0.00 | 66458 | 95008913 |
| 4 | 11/01/1984 | WD | Warranty Deed | BRUNER, GENE C | TODD, THOMAS S | | | $40,000.00 | 43344 | 84005723 |
| 5 | 06/01/1982 | TRUSTEED | Trustee's Deed | ROSENFELD, H & | BRUNER, GENE C | | | $49,000.00 | 21314 | 396964 |
| 6 | 07/01/1979 | EXECUTORD | Executor Deed | WILSON, ROY R | ROSENFELD, H & | | | $25,000.00 | 93695 | 356340 |
| 7 | 01/01/1900 | OTHER | Other - Misc. Documents | Unknown | WILSON, ROY R | | | $0.00 | 0 | 0 |
Payout Agreement
| No payout information available.. |