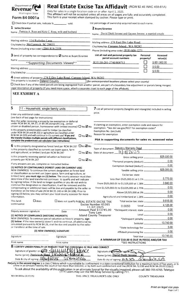
Property
Account |
| Property ID: | 388342 | Abbreviated Legal Description: | SHANG LA SH 2 LOT 7 BLK 4 |
| Geographic ID: | S8150-02-04007-0 | Agent Code: | |
| Type: | Real | | |
| Tax Area: | 310 - APPRAISER-Cpvl Schl Dist, outside Cpvl, improved & 1 acre or less | Land Use Code | 11 |
| Open Space: | N | DFL | N |
| Historic Property: | N | Remodel Property: | N |
| Multi-Family Redevelopment: | N | | |
| Township: | | Section: | |
| Range: | |
Location |
| Address: | 781 SHANGRI-LA CIR COUPEVILLE, WA 98239 | Mapsco: | |
| Neighborhood: | Cycle 2 | Map ID: | 466 |
| Neighborhood CD: | 2 |
Owner |
| Name: | SMITH, VERNON LEE | Owner ID: | 311564 |
| Mailing Address: | 781 SHANGRI-LA CIR COUPEVILLE, WA 98239 | % Ownership: | 100.0000000000% |
| | | Exemptions: | SNR/DSBL |
Taxes and Assessment Details
Values
| (+) Improvement Homesite Value: | + | $169,231 | |
| (+) Improvement Non-Homesite Value: | + | $0 | |
| (+) Land Homesite Value: | + | $190,000 | |
| (+) Land Non-Homesite Value: | + | $0 | |
| (+) Curr Use (HS): | + | $0 | $0 |
| (+) Curr Use (NHS): | + | $0 | $0 |
| | | -------------------------- | |
| (=) Market Value: | = | $359,231 | |
| (–) Productivity Loss: | – | $0 | |
| | | -------------------------- | |
| (=) Subtotal: | = | $359,231 | |
| (+) Senior Appraised Value: | + | $357,851 | |
| (+) Non-Senior Appraised Value: | + | $0 | |
| | | -------------------------- | |
| (=) Total Appraised Value: | = | $357,851 | |
| (–) Senior Exemption Loss: | – | $214,711 | |
| (–) Exemption Loss: | – | $0 | |
| | | -------------------------- | |
| (=) Taxable Value: | = | $143,140 | |
Taxing Jurisdiction
| Owner: | SMITH, VERNON LEE | | |
| % Ownership: | 100.0000000000% | | |
| Total Value: | $359,231 | | |
| Tax Area: | 310 - APPRAISER-Cpvl Schl Dist, outside Cpvl, improved & 1 acre or less |
| CF | Conservation Futures | 0.0316035091 | $359,231 | $143,140 | $4.52 | | |
| CEM2 | Cemetery #2 | 0.0095056933 | $359,231 | $143,140 | $1.36 | | |
| FIRE5 | Fire & Rescue Dist #5 C Whidbey GEN | 1.2008080668 | $359,231 | $143,140 | $171.88 | | |
| FIRE5BOND | Fire & Rescue Dist #5 C Whidbey BOND | 0.0000000000 | $359,231 | $0 | $0.00 | | |
| HOBOND | Hospital BOND | 0.0000000000 | $359,231 | $0 | $0.00 | | |
| HOGEN | Hospital GEN | 0.3902502903 | $359,231 | $143,140 | $55.86 | | |
| CE | County Current Expense | 0.3708482477 | $359,231 | $143,140 | $53.08 | | |
| CR | County Roads | 0.4584763726 | $359,231 | $143,140 | $65.63 | | |
| ISLANDEMS | Hospital GEN (EMS) | 0.5000000000 | $359,231 | $143,140 | $71.57 | | |
| LIB | Library Sno-Isle GEN | 0.3153421757 | $359,231 | $143,140 | $45.14 | | |
| LIBCAP | Library Sno-Isle BOND (Cap Fac Imp Area) | 0.0000000000 | $359,231 | $0 | $0.00 | | |
| POCOUP | Port of Coupeville GEN | 0.1093371703 | $359,231 | $143,140 | $15.65 | | |
| POCOUPIDD | Port of Coupeville IDD | 0.3409740022 | $359,231 | $143,140 | $48.81 | | |
| COUPSDTECH | School 204 CP (TECH) | 0.0000000000 | $359,231 | $0 | $0.00 | | |
| SCH204MO | School 204 Enrichment | 0.0000000000 | $359,231 | $0 | $0.00 | | |
| ST | State School | 1.3035497053 | $359,231 | $143,140 | $186.59 | | |
| ST2 | State School Part 2 | 0.0000000000 | $359,231 | $0 | $0.00 | | |
| | Total Tax Rate: | 5.0306952333 | | | | | |
| | | | | Taxes w/Current Exemptions: | $720.09 | | |
| | | | | Taxes w/o Exemptions: | $2,751.47 | | |
Improvement / Building
| Improvement #1: | RESIDENTIAL | State Code: | Y | 960.0 sqft | Value: | $169,231 |
| Bathrooms: | 1 | Bedrooms: | 1 | | Ceiling: | TONGUE & GROOVE | Exterior Wall/Cover: | WOOD SIDING | | Floor Covering: | CARPET 100% | Floor Structure: | WOOD W/SUBFLOOR | | Foundation: | CONCRETE | Heating: | BASEBOARD ELECTRIC | | Interior Finish: | DRYWALL PAINT | Plumbing Fixture Cnt: | 6 | | Roof Slope: | 12" IN 12" | Roof Structure/Cover: | BEAM ALUMINUM HEAVY |
|
| | Type | Description | Class CD | Sub Class CD | Year Built | Area |
| | BAS | BASE/MAIN FLOOR | 3 | 0 | 1970 | 720.0 |
| | UB6 | BASEMENT UNFINISHED 6" | 3 | 0 | 1970 | 160.0 |
| | UPH | HALF STORY | 3 | 0 | 1970 | 240.0 |
| | OWP | OPEN WOOD PORCH W/STEPS | 3 | 0 | 1970 | 276.0 |
| | ATU | ATTIC UNFINISHED | 3 | 0 | 1970 | 120.0 |
Sketch
Property Image
Land
| 1 | 14 | SQ (08001-12000) | 0.2273 | 9901.19 | 0.00 | 0.00 | 1.00 | $190,000 | $0 |
Roll Value History
| 2026 | N/A | N/A | N/A | N/A | N/A |
| 2025 | $169,231 | $190,000 | $0 | $359,231 | $143,140 |
| 2024 | $167,851 | $190,000 | $0 | $357,851 | $143,140 |
| 2023 | $170,174 | $180,000 | $0 | $350,174 | $350,174 |
| 2022 | $156,202 | $170,000 | $0 | $326,202 | $326,202 |
| 2021 | $137,652 | $140,000 | $0 | $277,652 | $277,652 |
| 2020 | $134,342 | $120,000 | $0 | $254,342 | $254,342 |
| 2019 | $96,770 | $155,000 | $0 | $251,770 | $251,770 |
| 2018 | $95,832 | $135,000 | $0 | $230,832 | $230,832 |
| 2017 | $96,458 | $115,000 | $0 | $211,458 | $211,458 |
| 2016 | $97,711 | $115,000 | $0 | $212,711 | $212,711 |
| 2015 | $98,963 | $90,000 | $0 | $188,963 | $188,963 |
| 2014 | $106,931 | $90,000 | $0 | $196,931 | $196,931 |
| 2013 | $108,266 | $90,000 | $0 | $198,266 | $198,266 |
| 2012 | $95,222 | $90,000 | $0 | $185,222 | $185,222 |
| 2011 | $96,455 | $100,000 | $0 | $196,455 | $196,455 |
| 2010 | $103,346 | $100,000 | $0 | $203,346 | $203,346 |
| 2009 | $108,040 | $125,000 | $0 | $233,040 | $233,040 |
| 2008 | $110,009 | $125,000 | $0 | $235,009 | $235,009 |
| 2007 | $111,819 | $125,000 | $0 | $236,819 | $236,819 |
Deed and Sales History
| 1 | 02/09/2024 | PRD | Personal Representatives Deed | LEE, JANET | SMITH, VERNON LEE | | | $0.00 | 59327 | 4569911 |
| 2 | 11/01/1989 | PRD | Personal Representatives Deed | BLACKFORD, VERNON E | LEE, JANET | | | $0.00 | 95737 | 89018388 |
| 3 | 06/01/1974 | TRUSTEED | Trustee's Deed | PALMER, WALTER T | BLACKFORD, VERNON E | | | $16,500.00 | 51431 | 0 |
| 4 | 01/01/1900 | OTHER | Other - Misc. Documents | Unknown | PALMER, WALTER T | | | $0.00 | 0 | 0 |
Payout Agreement
| No payout information available.. |