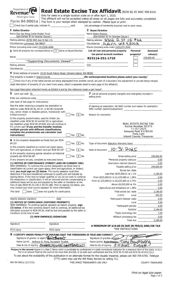
Property
Account |
| Property ID: | 388459 | Abbreviated Legal Description: | SHANG LA SH 2 LOT 18 BLK 4 |
| Geographic ID: | S8150-02-04018-0 | Agent Code: | |
| Type: | Real | | |
| Tax Area: | 310 - APPRAISER-Cpvl Schl Dist, outside Cpvl, improved & 1 acre or less | Land Use Code | 11 |
| Open Space: | N | DFL | N |
| Historic Property: | N | Remodel Property: | N |
| Multi-Family Redevelopment: | N | | |
| Township: | | Section: | |
| Range: | |
Location |
| Address: | 793 RACE RD COUPEVILLE, WA 98239 | Mapsco: | |
| Neighborhood: | Cycle 2 | Map ID: | 466 |
| Neighborhood CD: | 2 |
Owner |
| Name: | CASTRO, JUSTIN | Owner ID: | 275896 |
| Mailing Address: | JADE DREYER 793 RACE RD COUPEVILLE, WA 98239 | % Ownership: | 100.0000000000% |
| | | Exemptions: | |
Taxes and Assessment Details
Values
| (+) Improvement Homesite Value: | + | $0 | |
| (+) Improvement Non-Homesite Value: | + | $278,732 | |
| (+) Land Homesite Value: | + | $0 | |
| (+) Land Non-Homesite Value: | + | $220,000 | |
| (+) Curr Use (HS): | + | $0 | $0 |
| (+) Curr Use (NHS): | + | $0 | $0 |
| | | -------------------------- | |
| (=) Market Value: | = | $498,732 | |
| (–) Productivity Loss: | – | $0 | |
| | | -------------------------- | |
| (=) Subtotal: | = | $498,732 | |
| (+) Senior Appraised Value: | + | $0 | |
| (+) Non-Senior Appraised Value: | + | $498,732 | |
| | | -------------------------- | |
| (=) Total Appraised Value: | = | $498,732 | |
| (–) Senior Exemption Loss: | – | $0 | |
| (–) Exemption Loss: | – | $0 | |
| | | -------------------------- | |
| (=) Taxable Value: | = | $498,732 | |
Taxing Jurisdiction
| Owner: | CASTRO, JUSTIN | | |
| % Ownership: | 100.0000000000% | | |
| Total Value: | $498,732 | | |
| Tax Area: | 310 - APPRAISER-Cpvl Schl Dist, outside Cpvl, improved & 1 acre or less |
| CF | Conservation Futures | 0.0316035091 | $498,732 | $498,732 | $15.76 | | |
| CEM2 | Cemetery #2 | 0.0095056933 | $498,732 | $498,732 | $4.74 | | |
| FIRE5 | Fire & Rescue Dist #5 C Whidbey GEN | 1.2008080668 | $498,732 | $498,732 | $598.88 | | |
| FIRE5BOND | Fire & Rescue Dist #5 C Whidbey BOND | 0.1400090713 | $498,732 | $498,732 | $69.83 | | |
| HOBOND | Hospital BOND | 0.1910887512 | $498,732 | $498,732 | $95.30 | | |
| HOGEN | Hospital GEN | 0.3902502903 | $498,732 | $498,732 | $194.63 | | |
| CE | County Current Expense | 0.3708482477 | $498,732 | $498,732 | $184.95 | | |
| CR | County Roads | 0.4584763726 | $498,732 | $498,732 | $228.66 | | |
| ISLANDEMS | Hospital GEN (EMS) | 0.5000000000 | $498,732 | $498,732 | $249.37 | | |
| LIB | Library Sno-Isle GEN | 0.3153421757 | $498,732 | $498,732 | $157.27 | | |
| LIBCAP | Library Sno-Isle BOND (Cap Fac Imp Area) | 0.0543427938 | $498,732 | $498,732 | $27.10 | | |
| POCOUP | Port of Coupeville GEN | 0.1093371703 | $498,732 | $498,732 | $54.53 | | |
| POCOUPIDD | Port of Coupeville IDD | 0.3409740022 | $498,732 | $498,732 | $170.05 | | |
| COUPSDTECH | School 204 CP (TECH) | 0.7545480007 | $498,732 | $498,732 | $376.32 | | |
| SCH204MO | School 204 Enrichment | 0.6716186034 | $498,732 | $498,732 | $334.96 | | |
| ST | State School | 1.3035497053 | $498,732 | $498,732 | $650.12 | | |
| ST2 | State School Part 2 | 0.8169543533 | $498,732 | $498,732 | $407.44 | | |
| | Total Tax Rate: | 7.6592568070 | | | | | |
| | | | | Taxes w/Current Exemptions: | $3,819.91 | | |
| | | | | Taxes w/o Exemptions: | $3,819.91 | | |
Improvement / Building
| Improvement #1: | RESIDENTIAL | State Code: | Y | 1371.0 sqft | Value: | $278,732 |
| Bathrooms: | 2.5 | Bedrooms: | 2 | | Ceiling: | DRYWALL PAINTED | Exterior Wall/Cover: | CEMENT FIBER | | Floor Covering: | CARPET/VINYL 60-40 | Floor Structure: | WOOD W/SUBFLOOR | | Foundation: | CONCRETE | Heating: | WALL HEAT ELECTRIC | | Interior Finish: | DRYWALL PAINT | Plumbing Fixture Cnt: | 11 | | Roof Slope: | 3" IN 12" | Roof Structure/Cover: | CJ ASPHALT |
|
| | Type | Description | Class CD | Sub Class CD | Year Built | Area |
| | BAS | BASE/MAIN FLOOR | 3 | 0 | 2013 | 555.0 |
| | BIG | BUILT IN GARAGE | 3 | 0 | 2013 | 336.0 |
| | UPS | UPPER STORY | 3 | 0 | 2013 | 816.0 |
| | OP3 | OPEN PORCH W/ROOF | 3 | 0 | 2013 | 160.0 |
| | OP4 | OPEN PORCH W/CEILING-ROOF | 3 | 0 | 2013 | 40.0 |
Sketch
| No sketches available for this property. |
Property Image
Land
| 1 | 15 | SQ (12001-21780) | 0.2933 | 12776.15 | 0.00 | 0.00 | 1.00 | $220,000 | $0 |
Roll Value History
| 2026 | N/A | N/A | N/A | N/A | N/A |
| 2025 | $278,732 | $220,000 | $0 | $498,732 | $498,732 |
| 2024 | $272,387 | $190,000 | $0 | $462,387 | $462,387 |
| 2023 | $274,808 | $180,000 | $0 | $454,808 | $454,808 |
| 2022 | $250,761 | $170,000 | $0 | $420,761 | $420,761 |
| 2021 | $219,842 | $140,000 | $0 | $359,842 | $359,842 |
| 2020 | $212,767 | $120,000 | $0 | $332,767 | $332,767 |
| 2019 | $153,154 | $155,000 | $0 | $308,154 | $308,154 |
| 2018 | $155,278 | $135,000 | $0 | $290,278 | $290,278 |
| 2017 | $156,091 | $115,000 | $0 | $271,091 | $271,091 |
| 2016 | $157,718 | $115,000 | $0 | $272,718 | $272,718 |
| 2015 | $141,945 | $90,000 | $0 | $231,945 | $231,945 |
| 2014 | $122,004 | $55,000 | $0 | $177,004 | $177,004 |
| 2013 | $0 | $55,000 | $0 | $55,000 | $55,000 |
| 2012 | $0 | $42,500 | $0 | $42,500 | $42,500 |
| 2011 | $0 | $42,500 | $0 | $42,500 | $42,500 |
| 2010 | $0 | $42,500 | $0 | $42,500 | $42,500 |
| 2009 | $0 | $50,000 | $0 | $50,000 | $50,000 |
| 2008 | $0 | $50,000 | $0 | $50,000 | $50,000 |
| 2007 | $0 | $50,000 | $0 | $50,000 | $50,000 |
Deed and Sales History
| 1 | 06/24/2016 | WD | Warranty Deed | CASTRO, JUSTIN | CASTRO, JUSTIN | | | $0.00 | 25606 | 4404804 |
| 2 | 06/24/2016 | WD | Warranty Deed | JADERHOLM JR, JERRY E | CASTRO, JUSTIN | | | $280,000.00 | 25037 | 4402275 |
| 3 | 07/07/2005 | WD | Warranty Deed | LIPPERT, CINDY & | JADERHOLM JR, JERRY E | | | $7,000.00 | 53322 | 4140288 |
| 4 | 09/01/1989 | WD | Warranty Deed | BOESPFLUG, ANTON M | LIPPERT, CINDY & | | | $1,500.00 | 93853 | 89012874 |
Payout Agreement
| No payout information available.. |