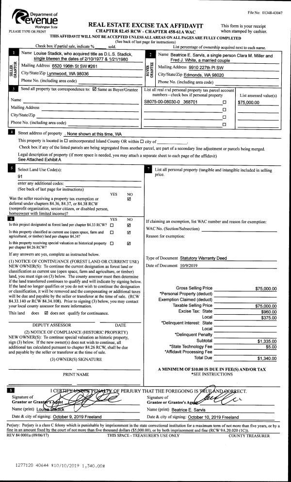
Property
Account |
| Property ID: | 388495 | Abbreviated Legal Description: | SHANG LA SH 2 LOT 4 BLK 5 |
| Geographic ID: | S8150-02-05004-0 | Agent Code: | |
| Type: | Real | | |
| Tax Area: | 310 - APPRAISER-Cpvl Schl Dist, outside Cpvl, improved & 1 acre or less | Land Use Code | 11 |
| Open Space: | N | DFL | N |
| Historic Property: | N | Remodel Property: | N |
| Multi-Family Redevelopment: | N | | |
| Township: | | Section: | |
| Range: | |
Location |
| Address: | 844 SHANGRI-LA CIR COUPEVILLE, WA 98239 | Mapsco: | |
| Neighborhood: | Cycle 2 | Map ID: | 466 |
| Neighborhood CD: | 2 |
Owner |
| Name: | GORDON, ROY | Owner ID: | 316692 |
| Mailing Address: | NICOLE GORDON 844 SHANGRI-LA CIR COUPEVILLE, WA 98239 | % Ownership: | 100.0000000000% |
| | | Exemptions: | |
Taxes and Assessment Details
Values
| (+) Improvement Homesite Value: | + | $0 | |
| (+) Improvement Non-Homesite Value: | + | $261,028 | |
| (+) Land Homesite Value: | + | $0 | |
| (+) Land Non-Homesite Value: | + | $190,000 | |
| (+) Curr Use (HS): | + | $0 | $0 |
| (+) Curr Use (NHS): | + | $0 | $0 |
| | | -------------------------- | |
| (=) Market Value: | = | $451,028 | |
| (–) Productivity Loss: | – | $0 | |
| | | -------------------------- | |
| (=) Subtotal: | = | $451,028 | |
| (+) Senior Appraised Value: | + | $0 | |
| (+) Non-Senior Appraised Value: | + | $451,028 | |
| | | -------------------------- | |
| (=) Total Appraised Value: | = | $451,028 | |
| (–) Senior Exemption Loss: | – | $0 | |
| (–) Exemption Loss: | – | $0 | |
| | | -------------------------- | |
| (=) Taxable Value: | = | $451,028 | |
Taxing Jurisdiction
| Owner: | GORDON, ROY | | |
| % Ownership: | 100.0000000000% | | |
| Total Value: | $451,028 | | |
| Tax Area: | 310 - APPRAISER-Cpvl Schl Dist, outside Cpvl, improved & 1 acre or less |
| CF | Conservation Futures | 0.0316035091 | $451,028 | $451,028 | $14.25 | | |
| CEM2 | Cemetery #2 | 0.0095056933 | $451,028 | $451,028 | $4.29 | | |
| FIRE5 | Fire & Rescue Dist #5 C Whidbey GEN | 1.2008080668 | $451,028 | $451,028 | $541.60 | | |
| FIRE5BOND | Fire & Rescue Dist #5 C Whidbey BOND | 0.1400090713 | $451,028 | $451,028 | $63.15 | | |
| HOBOND | Hospital BOND | 0.1910887512 | $451,028 | $451,028 | $86.19 | | |
| HOGEN | Hospital GEN | 0.3902502903 | $451,028 | $451,028 | $176.01 | | |
| CE | County Current Expense | 0.3708482477 | $451,028 | $451,028 | $167.26 | | |
| CR | County Roads | 0.4584763726 | $451,028 | $451,028 | $206.79 | | |
| ISLANDEMS | Hospital GEN (EMS) | 0.5000000000 | $451,028 | $451,028 | $225.51 | | |
| LIB | Library Sno-Isle GEN | 0.3153421757 | $451,028 | $451,028 | $142.23 | | |
| LIBCAP | Library Sno-Isle BOND (Cap Fac Imp Area) | 0.0543427938 | $451,028 | $451,028 | $24.51 | | |
| POCOUP | Port of Coupeville GEN | 0.1093371703 | $451,028 | $451,028 | $49.31 | | |
| POCOUPIDD | Port of Coupeville IDD | 0.3409740022 | $451,028 | $451,028 | $153.79 | | |
| COUPSDTECH | School 204 CP (TECH) | 0.7545480007 | $451,028 | $451,028 | $340.32 | | |
| SCH204MO | School 204 Enrichment | 0.6716186034 | $451,028 | $451,028 | $302.92 | | |
| ST | State School | 1.3035497053 | $451,028 | $451,028 | $587.94 | | |
| ST2 | State School Part 2 | 0.8169543533 | $451,028 | $451,028 | $368.47 | | |
| | Total Tax Rate: | 7.6592568070 | | | | | |
| | | | | Taxes w/Current Exemptions: | $3,454.54 | | |
| | | | | Taxes w/o Exemptions: | $3,454.54 | | |
Improvement / Building
| Improvement #1: | RESIDENTIAL | State Code: | Y | 1346.5 sqft | Value: | $261,028 |
| Bathrooms: | 2 | Bedrooms: | 2 | | Ceiling: | DRYWALL PAINTED | Exterior Wall/Cover: | WOOD SIDING | | Floor Covering: | VINYL 100% | Floor Structure: | WOOD W/SUBFLOOR | | Foundation: | CONCRETE | Heating: | WALL HEAT ELECTRIC | | Interior Finish: | DRYWALL PAINT | Plumbing Fixture Cnt: | 10 | | Roof Slope: | 4" IN 12" | Roof Structure/Cover: | CJ ASPHALT |
|
| | Type | Description | Class CD | Sub Class CD | Year Built | Area |
| | BAS | BASE/MAIN FLOOR | 3 | 0 | 1994 | 1346.5 |
| | AGR | ATTACHED GARAGE | 3 | 0 | 1994 | 480.0 |
| | OWP | OPEN WOOD PORCH W/STEPS | 3 | 0 | 1994 | 256.0 |
| | OWR | OPEN WOOD PORCH W/STEPS/ROOF | 3 | 0 | 1994 | 153.2 |
Sketch
Property Image
Land
| 1 | 14 | SQ (08001-12000) | 0.2453 | 10685.27 | 0.00 | 0.00 | 1.00 | $190,000 | $0 |
Roll Value History
| 2026 | N/A | N/A | N/A | N/A | N/A |
| 2025 | $261,028 | $190,000 | $0 | $451,028 | $451,028 |
| 2024 | $251,087 | $190,000 | $0 | $441,087 | $441,087 |
| 2023 | $254,217 | $180,000 | $0 | $434,217 | $434,217 |
| 2022 | $233,026 | $170,000 | $0 | $403,026 | $403,026 |
| 2021 | $205,092 | $140,000 | $0 | $345,092 | $345,092 |
| 2020 | $199,472 | $120,000 | $0 | $319,472 | $319,472 |
| 2019 | $137,710 | $155,000 | $0 | $292,710 | $292,710 |
| 2018 | $131,412 | $135,000 | $0 | $266,412 | $266,412 |
| 2017 | $132,181 | $115,000 | $0 | $247,181 | $247,181 |
| 2016 | $133,792 | $115,000 | $0 | $248,792 | $248,792 |
| 2015 | $135,405 | $90,000 | $0 | $225,405 | $225,405 |
| 2014 | $137,017 | $75,000 | $0 | $212,017 | $212,017 |
| 2013 | $138,628 | $75,000 | $0 | $213,628 | $213,628 |
| 2012 | $136,179 | $76,500 | $0 | $212,679 | $212,679 |
| 2011 | $137,796 | $85,000 | $0 | $222,796 | $222,796 |
| 2010 | $141,453 | $85,000 | $0 | $226,453 | $226,453 |
| 2009 | $147,498 | $100,000 | $0 | $247,498 | $247,498 |
| 2008 | $149,266 | $100,000 | $0 | $249,266 | $249,266 |
| 2007 | $151,004 | $100,000 | $0 | $251,004 | $251,004 |
Deed and Sales History
| 1 | 05/28/2025 | WD | Warranty Deed | MARTINEZ, TENLEY K | GORDON, ROY | | | $530,000.00 | 63610 | 4586392 |
| 2 | 08/29/2019 | WD | Warranty Deed | GESING JR, FRANK J | MARTINEZ, TENLEY K | | | $343,000.00 | 40171 | 4470979 |
| 3 | 09/17/2015 | WD | Warranty Deed | GLAZE, ANDREW S | GESING JR, FRANK J | | | $249,000.00 | 21405 | 4386223 |
| 4 | 02/21/2006 | WD | Warranty Deed | MCCULLOUGH, GERALD E | GLAZE, ANDREW S | | | $261,900.00 | 60842 | 4163390 |
| 5 | 04/01/1995 | WD | Warranty Deed | SAUNDERS, MICHAEL/AUTUMN | MCCULLOUGH, GERALD E | | | $119,500.00 | 51368 | 95006390 |
| 6 | 10/01/1994 | WD | Warranty Deed | BOSCHKE, GERHARD H | SAUNDERS, MICHAEL/AUTUMN | | | $16,500.00 | 44213 | 94021785 |
| 7 | 01/01/1900 | OTHER | Other - Misc. Documents | Unknown | BOSCHKE, GERHARD H | | | $0.00 | 0 | 0 |
Payout Agreement
| No payout information available.. |