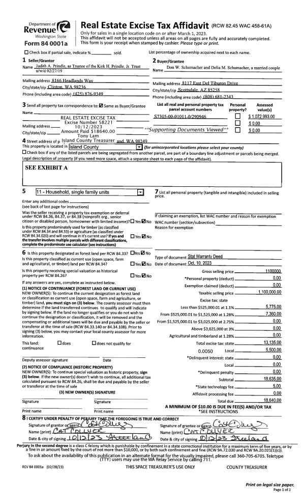
Property
Account |
| Property ID: | 38854 | Abbreviated Legal Description: | 8 - E/2 SW SE EX RDS ALSO EX W208' ALSO EX ANY PT OF SD E/2 SW SE LY NLY OF FOLL DESC LN: BG S 4/CR SD SEC 28 S88*E ALG SLN SD SW SE 662.34' TO WLN SD E/2 SW SE N1*E ALG SD WLN 1021.47' TP DENOTING N316.50' OF SD E/2 SW SE MEAS ALG WLN S88*E PARA/W NLN |
| Geographic ID: | R13328-068-3730 | Agent Code: | |
| Type: | Real | | |
| Tax Area: | 112 - APPRAISER-OH Schl Dist, outside OH, improved, greater than 1 acre | Land Use Code | 11 |
| Open Space: | N | DFL | N |
| Historic Property: | N | Remodel Property: | N |
| Multi-Family Redevelopment: | N | | |
| Township: | 33 | Section: | 28 |
| Range: | R1 |
Location |
| Address: | 2837 ALPINE DR OAK HARBOR, WA 98277 | Mapsco: | |
| Neighborhood: | Cycle 6 | Map ID: | 239 |
| Neighborhood CD: | 6 |
Owner |
| Name: | MEYERS, ROGER F | Owner ID: | 190317 |
| Mailing Address: | MARIE R MEYERS PO BOX 447 OAK HARBOR, WA 98277-0447 | % Ownership: | 100.0000000000% |
| | | Exemptions: | |
Taxes and Assessment Details
Values
| (+) Improvement Homesite Value: | + | $0 | |
| (+) Improvement Non-Homesite Value: | + | $518,869 | |
| (+) Land Homesite Value: | + | $0 | |
| (+) Land Non-Homesite Value: | + | $340,000 | |
| (+) Curr Use (HS): | + | $0 | $0 |
| (+) Curr Use (NHS): | + | $0 | $0 |
| | | -------------------------- | |
| (=) Market Value: | = | $858,869 | |
| (–) Productivity Loss: | – | $0 | |
| | | -------------------------- | |
| (=) Subtotal: | = | $858,869 | |
| (+) Senior Appraised Value: | + | $0 | |
| (+) Non-Senior Appraised Value: | + | $858,869 | |
| | | -------------------------- | |
| (=) Total Appraised Value: | = | $858,869 | |
| (–) Senior Exemption Loss: | – | $0 | |
| (–) Exemption Loss: | – | $0 | |
| | | -------------------------- | |
| (=) Taxable Value: | = | $858,869 | |
Taxing Jurisdiction
| Owner: | MEYERS, ROGER F | | |
| % Ownership: | 100.0000000000% | | |
| Total Value: | $858,869 | | |
| Tax Area: | 112 - APPRAISER-OH Schl Dist, outside OH, improved, greater than 1 acre |
| CF | Conservation Futures | 0.0316035091 | $858,869 | $858,869 | $27.14 | | |
| CEM1 | Cemetery #1 | 0.0040320932 | $858,869 | $858,869 | $3.46 | | |
| FIRE2 | Fire & Rescue Dist #2 N Whidbey GEN | 0.5475949600 | $858,869 | $858,869 | $470.31 | | |
| HOBOND | Hospital BOND | 0.1910887512 | $858,869 | $858,869 | $164.12 | | |
| HOGEN | Hospital GEN | 0.3902502903 | $858,869 | $858,869 | $335.17 | | |
| CE | County Current Expense | 0.3708482477 | $858,869 | $858,869 | $318.51 | | |
| CR | County Roads | 0.4584763726 | $858,869 | $858,869 | $393.77 | | |
| ISLANDEMS | Hospital GEN (EMS) | 0.5000000000 | $858,869 | $858,869 | $429.43 | | |
| LIB | Library Sno-Isle GEN | 0.3153421757 | $858,869 | $858,869 | $270.84 | | |
| NWHIDPRMT | P & R N Whidbey GEN | 0.2004466701 | $858,869 | $858,869 | $172.16 | | |
| SCH201MO | School 201 Enrichment | 1.8559231640 | $858,869 | $858,869 | $1,593.99 | | |
| ST | State School | 1.3035497053 | $858,869 | $858,869 | $1,119.58 | | |
| ST2 | State School Part 2 | 0.8169543533 | $858,869 | $858,869 | $701.66 | | |
| | Total Tax Rate: | 6.9861102925 | | | | | |
| | | | | Taxes w/Current Exemptions: | $6,000.14 | | |
| | | | | Taxes w/o Exemptions: | $6,000.14 | | |
Improvement / Building
| Improvement #1: | RESIDENTIAL | State Code: | Y | 2514.0 sqft | Value: | $518,869 |
| Bathrooms: | 0 | Bedrooms: | 3 | | Ceiling: | DRYWALL PAINTED | Exterior Wall/Cover: | CEMENT FIBER | | Floor Covering: | HARDWOOD/CARP 20-80 | Floor Structure: | WOOD W/SUBFLOOR | | Foundation: | CONCRETE | Heating: | FHA GAS | | Interior Finish: | DRYWALL PAINT | Plumbing Fixture Cnt: | 11 | | Roof Slope: | 6" IN 12" | Roof Structure/Cover: | CJ ASPHALT |
|
| | Type | Description | Class CD | Sub Class CD | Year Built | Area |
| | BAS | BASE/MAIN FLOOR | 4 | 0 | 2003 | 2514.0 |
| | AGR | ATTACHED GARAGE | 4 | 0 | 2003 | 528.0 |
| | OWP | OPEN WOOD PORCH W/STEPS | 4 | 0 | 2003 | 1014.0 |
| | OWC | OPEN WOOD PORCH W/STEPS/ROOF/C | 4 | 0 | 2003 | 184.5 |
| | UTY | STORAGE/UTILITY | 4 | 0 | 2003 | 192.0 |
Sketch
Property Image
Land
| 1 | 32 | AC (03.01-09.99) | 6.9500 | 302742.00 | 0.00 | 0.00 | 1.00 | $340,000 | $0 |
Roll Value History
| 2026 | N/A | N/A | N/A | N/A | N/A |
| 2025 | $518,869 | $340,000 | $0 | $858,869 | $858,869 |
| 2024 | $525,178 | $320,000 | $0 | $845,178 | $845,178 |
| 2023 | $531,486 | $320,000 | $0 | $851,486 | $851,486 |
| 2022 | $453,323 | $300,000 | $0 | $753,323 | $753,323 |
| 2021 | $398,941 | $200,000 | $0 | $598,941 | $598,941 |
| 2020 | $389,237 | $160,000 | $0 | $549,237 | $549,237 |
| 2019 | $291,839 | $220,000 | $0 | $511,839 | $511,839 |
| 2018 | $292,683 | $200,000 | $0 | $492,683 | $492,683 |
| 2017 | $294,375 | $165,000 | $0 | $459,375 | $459,375 |
| 2016 | $313,163 | $160,000 | $0 | $473,163 | $473,163 |
| 2015 | $316,762 | $140,000 | $0 | $456,762 | $456,762 |
| 2014 | $320,363 | $217,665 | $0 | $538,028 | $538,028 |
| 2013 | $323,962 | $217,665 | $0 | $541,627 | $541,627 |
| 2012 | $327,561 | $217,665 | $0 | $545,226 | $545,226 |
| 2011 | $331,162 | $241,850 | $0 | $573,012 | $573,012 |
| 2010 | $349,416 | $241,850 | $0 | $591,266 | $591,266 |
| 2009 | $367,770 | $255,670 | $0 | $623,440 | $623,440 |
| 2008 | $368,137 | $310,950 | $0 | $679,087 | $679,087 |
| 2007 | $372,223 | $141,379 | $0 | $513,602 | $513,602 |
Deed and Sales History
| 1 | 05/23/2003 | WD | Warranty Deed | Unknown | MEYERS, ROGER F | | | $27,585.00 | 33926 | 4073587 |
| 2 | 05/22/2003 | WD | Warranty Deed | Unknown | MEYERS, ROGER F | | | $27,585.00 | 32202 | 4060320 |
| 3 | 01/01/1900 | OTHER | Other - Misc. Documents | Unknown | MEYERS, Lisa C | | | $0.00 | 0 | 0 |
Payout Agreement
| No payout information available.. |