Property
Account |
| Property ID: | 388627 | Abbreviated Legal Description: | SHEERNESS ALL LOT 3 & LOT 4 EX NWLY 37' |
| Geographic ID: | S8155-00-00003-0 | Agent Code: | |
| Type: | Real | | |
| Tax Area: | 710 - APPRAISER-S Whid Schl Dist, outside Langley, improved & 1 acre or less | Land Use Code | 11 |
| Open Space: | N | DFL | N |
| Historic Property: | N | Remodel Property: | N |
| Multi-Family Redevelopment: | N | | |
| Township: | | Section: | |
| Range: | |
Location |
| Address: | 6665 WAHL RD FREELAND, WA 98249 | Mapsco: | |
| Neighborhood: | Cycle 3 | Map ID: | 346 |
| Neighborhood CD: | 3 |
Owner |
| Name: | LYLE TTEE, ANN B | Owner ID: | 285727 |
| Mailing Address: | PO BOX 411 CLINTON, WA 98236 | % Ownership: | 100.0000000000% |
| | | Exemptions: | |
Taxes and Assessment Details
Values
| (+) Improvement Homesite Value: | + | $0 | |
| (+) Improvement Non-Homesite Value: | + | $432,609 | |
| (+) Land Homesite Value: | + | $0 | |
| (+) Land Non-Homesite Value: | + | $703,530 | |
| (+) Curr Use (HS): | + | $0 | $0 |
| (+) Curr Use (NHS): | + | $0 | $0 |
| | | -------------------------- | |
| (=) Market Value: | = | $1,136,139 | |
| (–) Productivity Loss: | – | $0 | |
| | | -------------------------- | |
| (=) Subtotal: | = | $1,136,139 | |
| (+) Senior Appraised Value: | + | $0 | |
| (+) Non-Senior Appraised Value: | + | $1,136,139 | |
| | | -------------------------- | |
| (=) Total Appraised Value: | = | $1,136,139 | |
| (–) Senior Exemption Loss: | – | $0 | |
| (–) Exemption Loss: | – | $0 | |
| | | -------------------------- | |
| (=) Taxable Value: | = | $1,136,139 | |
Taxing Jurisdiction
| Owner: | LYLE TTEE, ANN B | | |
| % Ownership: | 100.0000000000% | | |
| Total Value: | $1,136,139 | | |
| Tax Area: | 710 - APPRAISER-S Whid Schl Dist, outside Langley, improved & 1 acre or less |
| CF | Conservation Futures | 0.0316035091 | $1,136,139 | $1,136,139 | $35.91 | | |
| FIRE3 | Fire & Rescue Dist #3 S Whidbey GEN | 1.2004855531 | $1,136,139 | $1,136,139 | $1,363.92 | | |
| HOBOND | Hospital BOND | 0.1910887512 | $1,136,139 | $1,136,139 | $217.10 | | |
| HOGEN | Hospital GEN | 0.3902502903 | $1,136,139 | $1,136,139 | $443.38 | | |
| CE | County Current Expense | 0.3708482477 | $1,136,139 | $1,136,139 | $421.34 | | |
| CR | County Roads | 0.4584763726 | $1,136,139 | $1,136,139 | $520.89 | | |
| ISLANDEMS | Hospital GEN (EMS) | 0.5000000000 | $1,136,139 | $1,136,139 | $568.07 | | |
| LIB | Library Sno-Isle GEN | 0.3153421757 | $1,136,139 | $1,136,139 | $358.27 | | |
| PORTWHID | Port of S Whidbey GEN | 0.1094540357 | $1,136,139 | $1,136,139 | $124.35 | | |
| SCH206BOND | School 206 BOND | 0.3161759235 | $1,136,139 | $1,136,139 | $359.22 | | |
| SCH206MO | School 206 Enrichment | 0.4547169547 | $1,136,139 | $1,136,139 | $516.62 | | |
| ST | State School | 1.3035497053 | $1,136,139 | $1,136,139 | $1,481.01 | | |
| ST2 | State School Part 2 | 0.8169543533 | $1,136,139 | $1,136,139 | $928.17 | | |
| SWHIDPRBD | P & R S Whidbey BOND | 0.0152817568 | $1,136,139 | $1,136,139 | $17.36 | | |
| SWHIDPRBD2 | P & R S Whidbey BOND2 | 0.0138911264 | $1,136,139 | $1,136,139 | $15.78 | | |
| SWHIDPRMT | P & R S Whidbey GEN | 0.2053334452 | $1,136,139 | $1,136,139 | $233.29 | | |
| | Total Tax Rate: | 6.6934522006 | | | | | |
| | | | | Taxes w/Current Exemptions: | $7,604.68 | | |
| | | | | Taxes w/o Exemptions: | $7,604.68 | | |
Improvement / Building
| Improvement #1: | RESIDENTIAL | State Code: | Y | 1615.0 sqft | Value: | $262,208 |
| Bathrooms: | 2 | Ceiling: | TONGUE & GROOVE | | Cooling: | HEAT PUMP/CONV/V | Exterior Wall/Cover: | WOOD SIDING | | Floor Covering: | SOFTWOOD/VINYL 60-40 | Floor Structure: | WOOD W/SUBFLOOR | | Foundation: | PEIRS | Interior Finish: | DRYWALL PAINT | | Plumbing Fixture Cnt: | 11 | Roof Slope: | 6" IN 12" | | Roof Structure/Cover: | BEAM WOOD SHINGLE |   |   |
|
| | Type | Description | Class CD | Sub Class CD | Year Built | Area |
| | BAS | BASE/MAIN FLOOR | 3 | 0 | 1950 | 1615.0 |
| | UTY | STORAGE/UTILITY | 3 | 0 | 1950 | 56.0 |
| | UTY | STORAGE/UTILITY | 3 | 0 | 1950 | 36.0 |
| | OWP | OPEN WOOD PORCH W/STEPS | 3 | 0 | 1950 | 719.0 |
| | OWP | OPEN WOOD PORCH W/STEPS | 3 | 0 | 1950 | 99.0 |
| Improvement #2: | RESIDENTIAL | State Code: | Y | 972.0 sqft | Value: | $170,401 |
| Bathrooms: | 1 | Bedrooms: | 1 | | Ceiling: | BEAM PAINTED | Cooling: | HEAT PUMP/CONV/V | | Exterior Wall/Cover: | WOOD SIDING | Floor Covering: | SOFTWOOD/VINYL 80-20 | | Floor Structure: | WOOD W/SUBFLOOR | Foundation: | CONCRETE | | Interior Finish: | DRYWALL PAINT | Plumbing Fixture Cnt: | 5 | | Roof Slope: | 5" IN 12" | Roof Structure/Cover: | BEAM ASPHALT |
|
| | Type | Description | Class CD | Sub Class CD | Year Built | Area |
| | BAS | BASE/MAIN FLOOR | 3 | 0 | 1981 | 702.0 |
| | OP1 | OPEN PORCH SLAB | 3 | 0 | 1981 | 108.0 |
| | BAW | BALCONY WOOD RAIL | 3 | 0 | 1981 | 60.0 |
| | OWP | OPEN WOOD PORCH W/STEPS | 3 | 0 | 1981 | 291.0 |
| | OWR | OPEN WOOD PORCH W/STEPS/ROOF | 3 | 0 | 1981 | 270.0 |
| | LOF | LOFT | 3 | 0 | 1981 | 270.0 |
| | CPD | OPEN CARPORT DIRT FLOOR | 3 | 0 | 1981 | 400.0 |
Sketch
Property Image
Land
| 1 | HB | HIGH BLUFF | 0.0000 | 0.00 | 353.00 | 0.00 | 1.00 | $700,000 | $0 |
| 2 | 55 | TIDES | 0.0000 | 0.00 | 353.00 | 0.00 | 1.00 | $3,530 | $0 |
Roll Value History
| 2026 | N/A | N/A | N/A | N/A | N/A |
| 2025 | $432,609 | $703,530 | $0 | $1,136,139 | $1,136,139 |
| 2024 | $435,660 | $703,530 | $0 | $1,139,190 | $1,139,190 |
| 2023 | $441,628 | $703,530 | $0 | $1,145,158 | $1,145,158 |
| 2022 | $405,302 | $653,530 | $0 | $1,058,832 | $1,058,832 |
| 2021 | $357,133 | $653,530 | $0 | $1,010,663 | $1,010,663 |
| 2020 | $348,384 | $603,530 | $0 | $951,914 | $951,914 |
| 2019 | $254,599 | $703,530 | $0 | $958,129 | $958,129 |
| 2018 | $255,416 | $603,530 | $0 | $858,946 | $858,946 |
| 2017 | $248,854 | $603,530 | $0 | $852,384 | $852,384 |
| 2016 | $252,013 | $603,530 | $0 | $855,543 | $855,543 |
| 2015 | $166,237 | $603,530 | $0 | $769,767 | $769,767 |
| 2014 | $170,737 | $603,530 | $0 | $774,267 | $774,267 |
| 2013 | $165,504 | $693,390 | $0 | $858,894 | $858,894 |
| 2012 | $168,157 | $693,390 | $0 | $861,547 | $861,547 |
| 2011 | $170,814 | $693,390 | $0 | $864,204 | $864,204 |
| 2010 | $186,687 | $693,390 | $0 | $880,077 | $880,077 |
| 2009 | $194,995 | $695,329 | $0 | $890,324 | $890,324 |
| 2008 | $197,827 | $721,232 | $0 | $919,059 | $919,059 |
| 2007 | $197,693 | $718,761 | $0 | $916,454 | $916,454 |
Deed and Sales History
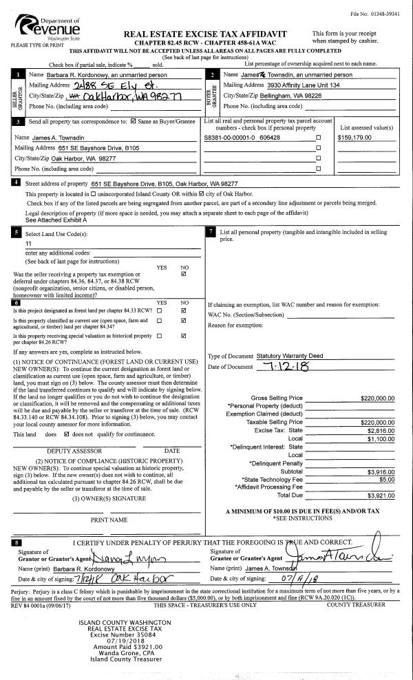
| 1 | 06/27/2018 | WD | Warranty Deed | BLACK, WILLIAM M | LYLE TTEE, ANN B | | | $0.00 | 34694 | 4446870 |
Payout Agreement
| No payout information available.. |