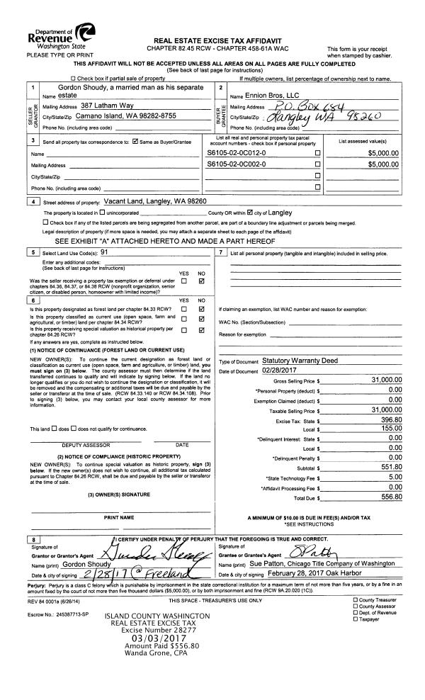
Property
Account |
| Property ID: | 389163 | Abbreviated Legal Description: | SIERRA LOT 2 BLK 4 |
| Geographic ID: | S8160-00-04002-0 | Agent Code: | |
| Type: | Real | | |
| Tax Area: | 330 - APPRAISER-Cpvl Schl Dist, Special Dist, improved & less than 1 acre | Land Use Code | 11 |
| Open Space: | N | DFL | N |
| Historic Property: | N | Remodel Property: | N |
| Multi-Family Redevelopment: | N | | |
| Township: | | Section: | |
| Range: | |
Location |
| Address: | 610 PALISADES DR COUPEVILLE, WA 98239 | Mapsco: | |
| Neighborhood: | Cycle 2 | Map ID: | 9 |
| Neighborhood CD: | 2 |
Owner |
| Name: | SMITH, STEVEN SCOTT | Owner ID: | 313971 |
| Mailing Address: | WANDA JEAN SMITH 610 PALISADES DR COUPEVILLE, WA 98239 | % Ownership: | 100.0000000000% |
| | | Exemptions: | |
Taxes and Assessment Details
Values
| (+) Improvement Homesite Value: | + | $0 | |
| (+) Improvement Non-Homesite Value: | + | $286,804 | |
| (+) Land Homesite Value: | + | $0 | |
| (+) Land Non-Homesite Value: | + | $240,000 | |
| (+) Curr Use (HS): | + | $0 | $0 |
| (+) Curr Use (NHS): | + | $0 | $0 |
| | | -------------------------- | |
| (=) Market Value: | = | $526,804 | |
| (–) Productivity Loss: | – | $0 | |
| | | -------------------------- | |
| (=) Subtotal: | = | $526,804 | |
| (+) Senior Appraised Value: | + | $0 | |
| (+) Non-Senior Appraised Value: | + | $526,804 | |
| | | -------------------------- | |
| (=) Total Appraised Value: | = | $526,804 | |
| (–) Senior Exemption Loss: | – | $0 | |
| (–) Exemption Loss: | – | $0 | |
| | | -------------------------- | |
| (=) Taxable Value: | = | $526,804 | |
Taxing Jurisdiction
| Owner: | SMITH, STEVEN SCOTT | | |
| % Ownership: | 100.0000000000% | | |
| Total Value: | $526,804 | | |
| Tax Area: | 330 - APPRAISER-Cpvl Schl Dist, Special Dist, improved & less than 1 acre |
| CF | Conservation Futures | 0.0316035091 | $526,804 | $526,804 | $16.65 | | |
| CEM2 | Cemetery #2 | 0.0095056933 | $526,804 | $526,804 | $5.01 | | |
| FIRE2 | Fire & Rescue Dist #2 N Whidbey GEN | 0.5475949600 | $526,804 | $526,804 | $288.48 | | |
| HOBOND | Hospital BOND | 0.1910887512 | $526,804 | $526,804 | $100.67 | | |
| HOGEN | Hospital GEN | 0.3902502903 | $526,804 | $526,804 | $205.59 | | |
| CE | County Current Expense | 0.3708482477 | $526,804 | $526,804 | $195.36 | | |
| CR | County Roads | 0.4584763726 | $526,804 | $526,804 | $241.53 | | |
| ISLANDEMS | Hospital GEN (EMS) | 0.5000000000 | $526,804 | $526,804 | $263.40 | | |
| LIB | Library Sno-Isle GEN | 0.3153421757 | $526,804 | $526,804 | $166.12 | | |
| LIBCAP | Library Sno-Isle BOND (Cap Fac Imp Area) | 0.0543427938 | $526,804 | $526,804 | $28.63 | | |
| POCOUP | Port of Coupeville GEN | 0.1093371703 | $526,804 | $526,804 | $57.60 | | |
| POCOUPIDD | Port of Coupeville IDD | 0.3409740022 | $526,804 | $526,804 | $179.63 | | |
| COUPSDTECH | School 204 CP (TECH) | 0.7545480007 | $526,804 | $526,804 | $397.50 | | |
| SCH204MO | School 204 Enrichment | 0.6716186034 | $526,804 | $526,804 | $353.81 | | |
| ST | State School | 1.3035497053 | $526,804 | $526,804 | $686.72 | | |
| ST2 | State School Part 2 | 0.8169543533 | $526,804 | $526,804 | $430.37 | | |
| | Total Tax Rate: | 6.8660346289 | | | | | |
| | | | | Taxes w/Current Exemptions: | $3,617.07 | | |
| | | | | Taxes w/o Exemptions: | $3,617.07 | | |
Improvement / Building
| Improvement #1: | RESIDENTIAL | State Code: | Y | 1622.5 sqft | Value: | $286,804 |
| Bathrooms: | 2 | Bedrooms: | 3 | | Ceiling: | DRYWALL PAINTED | Cooling: | HEAT PUMP/CONV/V | | Exterior Wall/Cover: | CEMENT FIBER | Floor Covering: | CARPET/VINYL 20-80 | | Floor Structure: | WOOD ON WOOD JOIST | Foundation: | CONCRETE | | Interior Finish: | DRYWALL PAINT | Plumbing Fixture Cnt: | 9 | | Roof Slope: | 5" IN 12" | Roof Structure/Cover: | CJ ASPHALT |
|
| | Type | Description | Class CD | Sub Class CD | Year Built | Area |
| | BAS | BASE/MAIN FLOOR | 3 | 0 | 2024 | 1622.5 |
| | AGR | ATTACHED GARAGE | 3 | 0 | 2024 | 330.0 |
| | OWP | OPEN WOOD PORCH W/STEPS | 3 | 0 | 2024 | 36.3 |
Sketch
Property Image
Land
| 1 | 13 | SQ (06001-08000) | 0.1653 | 7200.47 | 0.00 | 0.00 | 1.00 | $240,000 | $0 |
Roll Value History
| 2026 | N/A | N/A | N/A | N/A | N/A |
| 2025 | $286,804 | $240,000 | $0 | $526,804 | $526,804 |
| 2024 | $123,143 | $55,000 | $0 | $178,143 | $178,143 |
| 2023 | $0 | $60,000 | $0 | $60,000 | $60,000 |
| 2022 | $0 | $14,000 | $0 | $14,000 | $14,000 |
| 2021 | $0 | $11,000 | $0 | $11,000 | $11,000 |
| 2020 | $0 | $6,500 | $0 | $6,500 | $6,500 |
| 2019 | $0 | $7,000 | $0 | $7,000 | $7,000 |
| 2018 | $0 | $7,000 | $0 | $7,000 | $7,000 |
| 2017 | $0 | $7,000 | $0 | $7,000 | $7,000 |
| 2016 | $0 | $7,000 | $0 | $7,000 | $7,000 |
| 2015 | $0 | $7,000 | $0 | $7,000 | $7,000 |
| 2014 | $0 | $7,000 | $0 | $7,000 | $7,000 |
| 2013 | $0 | $5,000 | $0 | $5,000 | $5,000 |
| 2012 | $0 | $6,000 | $0 | $6,000 | $6,000 |
| 2011 | $0 | $6,000 | $0 | $6,000 | $6,000 |
| 2010 | $0 | $6,000 | $0 | $6,000 | $6,000 |
| 2009 | $0 | $6,900 | $0 | $6,900 | $6,900 |
| 2008 | $0 | $6,200 | $0 | $6,200 | $6,200 |
| 2007 | $0 | $9,000 | $0 | $9,000 | $9,000 |
Deed and Sales History
| 1 | 09/19/2024 | WD | Warranty Deed | WALDRON CONSTRUCTION, INC | SMITH, STEVEN SCOTT | | | $579,900.00 | 61358 | 4577419 |
| 2 | 08/10/2023 | WD | Warranty Deed | TOLMICH, CHRISTINE | WALDRON CONSTRUCTION, INC | | | $55,000.00 | 57681 | 4563728 |
| 3 | 01/17/2017 | QCD | Quit Claim Deed | TOLMICH, ANTHONY | TOLMICH, CHRISTINE | | | $0.00 | 27908 | 4416160 |
| 4 | 05/27/2007 | QCD | Quit Claim Deed | ARNOLD, KATHLEEN L | TOLMICH, ANTHONY | | | $5,500.00 | 80217 | 4220587 |
| 5 | 09/18/2006 | ESTSEPPROP | Establish Separate Property | KNIGHT, KATHLENE & | ARNOLD, KATHLEEN L | | | $1,500.00 | 64896 | 4187177 |
| 6 | 05/01/1975 | EXECUTORD | Executor Deed | CRAIG, GILBERT G | KNIGHT, KATHLENE & | | | $0.00 | 55329 | 0 |
Payout Agreement
| No payout information available.. |