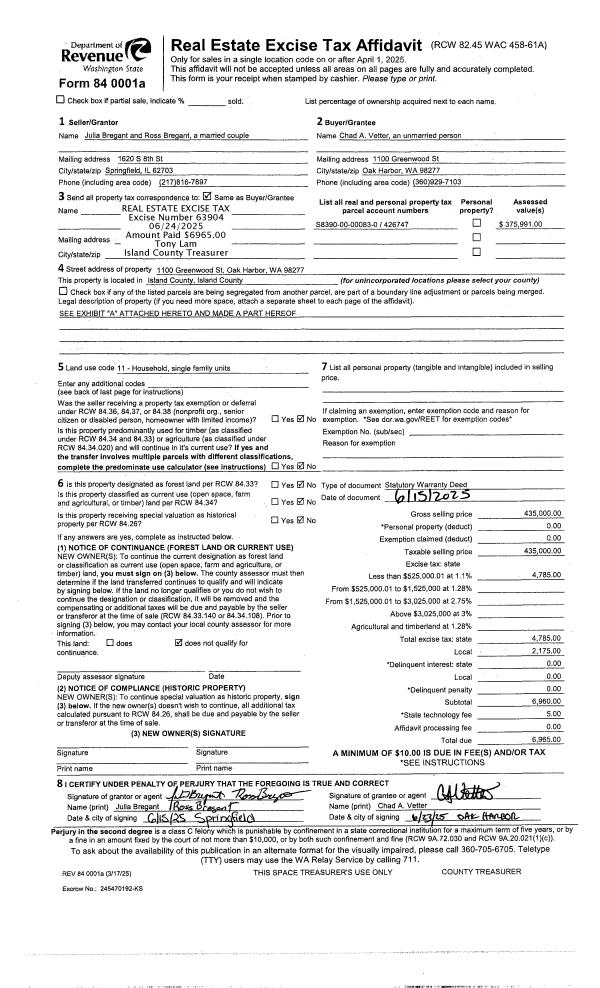
Property
Account |
| Property ID: | 391347 | Abbreviated Legal Description: | Sierra - 1,s Lot 006,s Blk 13;s LOT A LOT COMB AF#4520784s |
| Geographic ID: | S8160-00-13006-0 | Agent Code: | |
| Type: | Real | | |
| Tax Area: | 330 - APPRAISER-Cpvl Schl Dist, Special Dist, improved & less than 1 acre | Land Use Code | 11 |
| Open Space: | N | DFL | N |
| Historic Property: | N | Remodel Property: | N |
| Multi-Family Redevelopment: | N | | |
| Township: | | Section: | |
| Range: | |
Location |
| Address: | 2691 BALBOA WAY COUPEVILLE, WA 98239 | Mapsco: | |
| Neighborhood: | Cycle 2 | Map ID: | 9 |
| Neighborhood CD: | 2 |
Owner |
| Name: | WARD, SABINE | Owner ID: | 298895 |
| Mailing Address: | 2691 BALBOA WAY COUPEVILLE, WA 98239 | % Ownership: | 100.0000000000% |
| | | Exemptions: | SNR/DSBL |
Taxes and Assessment Details
Values
| (+) Improvement Homesite Value: | + | $374,238 | |
| (+) Improvement Non-Homesite Value: | + | $0 | |
| (+) Land Homesite Value: | + | $310,000 | |
| (+) Land Non-Homesite Value: | + | $0 | |
| (+) Curr Use (HS): | + | $0 | $0 |
| (+) Curr Use (NHS): | + | $0 | $0 |
| | | -------------------------- | |
| (=) Market Value: | = | $684,238 | |
| (–) Productivity Loss: | – | $0 | |
| | | -------------------------- | |
| (=) Subtotal: | = | $684,238 | |
| (+) Senior Appraised Value: | + | $653,167 | |
| (+) Non-Senior Appraised Value: | + | $0 | |
| | | -------------------------- | |
| (=) Total Appraised Value: | = | $653,167 | |
| (–) Senior Exemption Loss: | – | $70,000 | |
| (–) Exemption Loss: | – | $0 | |
| | | -------------------------- | |
| (=) Taxable Value: | = | $583,167 | |
Taxing Jurisdiction
| Owner: | WARD, SABINE | | |
| % Ownership: | 100.0000000000% | | |
| Total Value: | $684,238 | | |
| Tax Area: | 330 - APPRAISER-Cpvl Schl Dist, Special Dist, improved & less than 1 acre |
| CF | Conservation Futures | 0.0316035091 | $684,238 | $583,167 | $18.43 | | |
| CEM2 | Cemetery #2 | 0.0095056933 | $684,238 | $583,167 | $5.54 | | |
| FIRE2 | Fire & Rescue Dist #2 N Whidbey GEN | 0.5475949600 | $684,238 | $583,167 | $319.34 | | |
| HOBOND | Hospital BOND | 0.0000000000 | $684,238 | $0 | $0.00 | | |
| HOGEN | Hospital GEN | 0.3902502903 | $684,238 | $583,167 | $227.58 | | |
| CE | County Current Expense | 0.3708482477 | $684,238 | $583,167 | $216.27 | | |
| CR | County Roads | 0.4584763726 | $684,238 | $583,167 | $267.37 | | |
| ISLANDEMS | Hospital GEN (EMS) | 0.5000000000 | $684,238 | $583,167 | $291.58 | | |
| LIB | Library Sno-Isle GEN | 0.3153421757 | $684,238 | $583,167 | $183.90 | | |
| LIBCAP | Library Sno-Isle BOND (Cap Fac Imp Area) | 0.0000000000 | $684,238 | $0 | $0.00 | | |
| POCOUP | Port of Coupeville GEN | 0.1093371703 | $684,238 | $583,167 | $63.76 | | |
| POCOUPIDD | Port of Coupeville IDD | 0.3409740022 | $684,238 | $583,167 | $198.84 | | |
| COUPSDTECH | School 204 CP (TECH) | 0.0000000000 | $684,238 | $0 | $0.00 | | |
| SCH204MO | School 204 Enrichment | 0.0000000000 | $684,238 | $0 | $0.00 | | |
| ST | State School | 1.3035497053 | $684,238 | $583,167 | $760.19 | | |
| ST2 | State School Part 2 | 0.0000000000 | $684,238 | $0 | $0.00 | | |
| | Total Tax Rate: | 4.3774821265 | | | | | |
| | | | | Taxes w/Current Exemptions: | $2,552.80 | | |
| | | | | Taxes w/o Exemptions: | $4,698.00 | | |
Improvement / Building
| Improvement #1: | RESIDENTIAL | State Code: | Y | 1742.0 sqft | Value: | $374,238 |
| Bathrooms: | 2 | Bedrooms: | 2 | | Ceiling: | DRYWALL PAINTED | Cooling: | HEAT PUMP/CONV/V | | Exterior Wall/Cover: | CEMENT FIBER | Floor Covering: | CARPET/VINYL 60-40 | | Floor Structure: | WOOD W/SUBFLOOR | Foundation: | CONCRETE | | Interior Finish: | DRYWALL PAINT | Plumbing Fixture Cnt: | 11 | | Roof Slope: | 4" IN 12" | Roof Structure/Cover: | CJ ASPHALT |
|
| | Type | Description | Class CD | Sub Class CD | Year Built | Area |
| | BAS | BASE/MAIN FLOOR | 3 | 0 | 2022 | 1742.0 |
| | AGR | ATTACHED GARAGE | 3 | 0 | 2022 | 540.0 |
| | OWC | OPEN WOOD PORCH W/STEPS/ROOF/C | 3 | 0 | 2022 | 155.0 |
| | OP4 | OPEN PORCH W/CEILING-ROOF | 3 | 0 | 2022 | 75.0 |
Sketch
Property Image
Land
| 1 | 15 | SQ (12001-21780) | 0.3700 | 16117.20 | 0.00 | 0.00 | 1.00 | $310,000 | $0 |
Roll Value History
| 2026 | N/A | N/A | N/A | N/A | N/A |
| 2025 | $374,238 | $310,000 | $0 | $684,238 | $583,167 |
| 2024 | $378,167 | $275,000 | $0 | $653,167 | $583,167 |
| 2023 | $385,042 | $275,000 | $0 | $660,042 | $660,042 |
| 2022 | $0 | $140,000 | $0 | $140,000 | $140,000 |
| 2021 | $0 | $11,000 | $0 | $11,000 | $11,000 |
| 2020 | $0 | $6,500 | $0 | $6,500 | $6,500 |
| 2019 | $0 | $7,000 | $0 | $7,000 | $7,000 |
| 2018 | $0 | $7,000 | $0 | $7,000 | $7,000 |
| 2017 | $0 | $7,000 | $0 | $7,000 | $7,000 |
| 2016 | $0 | $7,000 | $0 | $7,000 | $7,000 |
| 2015 | $0 | $7,000 | $0 | $7,000 | $7,000 |
| 2014 | $0 | $7,000 | $0 | $7,000 | $7,000 |
| 2013 | $0 | $5,000 | $0 | $5,000 | $5,000 |
| 2012 | $0 | $6,000 | $0 | $6,000 | $6,000 |
| 2011 | $0 | $6,000 | $0 | $6,000 | $6,000 |
| 2010 | $0 | $6,000 | $0 | $6,000 | $6,000 |
| 2009 | $0 | $6,900 | $0 | $6,900 | $6,900 |
| 2008 | $0 | $6,200 | $0 | $6,200 | $6,200 |
| 2007 | $0 | $9,000 | $0 | $9,000 | $9,000 |
Deed and Sales History
| 1 | 05/09/2022 | QCD | Quit Claim Deed | SUCEE, RICHARD A | WARD, SABINE | | | $0.00 | 53095 | 4545092 |
| 2 | 07/28/2021 | WD | Warranty Deed | SUCEE, RICHARD A | WARD, SABINE | | | $8,000.00 | 49411 | 4525710 |
| 3 | 06/02/2021 | QCD | Quit Claim Deed | SUCEE, RICHARD A | WARD, SABINE | | | $0.00 | 48507 | 4520759 |
| 4 | 03/28/2017 | QCD | Quit Claim Deed | SUCEE, RICHARD ALLEN | SUCEE, RICHARD ALLEN | | | $0.00 | 28821 | 4420464 |
| 5 | 05/01/1994 | QCD | Quit Claim Deed | SUCEE, ALMA 1 | SUCEE, RICHARD A | | | $0.00 | 42040 | 94011907 |
| 6 | 08/01/1979 | CD | DNU - Correction Deed | SUCEE, JOSEPH E | SUCEE, ALMA 1 | | | $0.00 | 94381 | 358298 |
| 7 | 01/01/1900 | OTHER | Other - Misc. Documents | SUCEE, JOSEPH E | SUCEE, JOSEPH E | | | $0.00 | 0 | 0 |
| 8 | 01/01/1900 | OTHER | Other - Misc. Documents | Unknown | SUCEE, JOSEPH E | | | $0.00 | 0 | 0 |
Payout Agreement
| No payout information available.. |