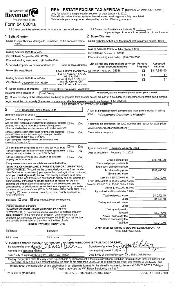
Property
Account |
| Property ID: | 391551 | Abbreviated Legal Description: | SIERRA LOT 1 BLK 16 |
| Geographic ID: | S8160-00-16001-0 | Agent Code: | |
| Type: | Real | | |
| Tax Area: | 330 - APPRAISER-Cpvl Schl Dist, Special Dist, improved & less than 1 acre | Land Use Code | 11 |
| Open Space: | N | DFL | N |
| Historic Property: | N | Remodel Property: | N |
| Multi-Family Redevelopment: | N | | |
| Township: | | Section: | |
| Range: | |
Location |
| Address: | 746 FORT EBEY RD COUPEVILLE, WA 98239 | Mapsco: | |
| Neighborhood: | Cycle 2 | Map ID: | 9 |
| Neighborhood CD: | 2 |
Owner |
| Name: | GRIMM, DIANNA S | Owner ID: | 311182 |
| Mailing Address: | 2408 148TH ST SW LYNNWOOD, WA 98087 | % Ownership: | 100.0000000000% |
| | | Exemptions: | |
Taxes and Assessment Details
Values
| (+) Improvement Homesite Value: | + | $0 | |
| (+) Improvement Non-Homesite Value: | + | $200,543 | |
| (+) Land Homesite Value: | + | $0 | |
| (+) Land Non-Homesite Value: | + | $275,000 | |
| (+) Curr Use (HS): | + | $0 | $0 |
| (+) Curr Use (NHS): | + | $0 | $0 |
| | | -------------------------- | |
| (=) Market Value: | = | $475,543 | |
| (–) Productivity Loss: | – | $0 | |
| | | -------------------------- | |
| (=) Subtotal: | = | $475,543 | |
| (+) Senior Appraised Value: | + | $0 | |
| (+) Non-Senior Appraised Value: | + | $475,543 | |
| | | -------------------------- | |
| (=) Total Appraised Value: | = | $475,543 | |
| (–) Senior Exemption Loss: | – | $0 | |
| (–) Exemption Loss: | – | $0 | |
| | | -------------------------- | |
| (=) Taxable Value: | = | $475,543 | |
Taxing Jurisdiction
| Owner: | GRIMM, DIANNA S | | |
| % Ownership: | 100.0000000000% | | |
| Total Value: | $475,543 | | |
| Tax Area: | 330 - APPRAISER-Cpvl Schl Dist, Special Dist, improved & less than 1 acre |
| CF | Conservation Futures | 0.0316035091 | $475,543 | $475,543 | $15.03 | | |
| CEM2 | Cemetery #2 | 0.0095056933 | $475,543 | $475,543 | $4.52 | | |
| FIRE2 | Fire & Rescue Dist #2 N Whidbey GEN | 0.5475949600 | $475,543 | $475,543 | $260.40 | | |
| HOBOND | Hospital BOND | 0.1910887512 | $475,543 | $475,543 | $90.87 | | |
| HOGEN | Hospital GEN | 0.3902502903 | $475,543 | $475,543 | $185.58 | | |
| CE | County Current Expense | 0.3708482477 | $475,543 | $475,543 | $176.35 | | |
| CR | County Roads | 0.4584763726 | $475,543 | $475,543 | $218.03 | | |
| ISLANDEMS | Hospital GEN (EMS) | 0.5000000000 | $475,543 | $475,543 | $237.77 | | |
| LIB | Library Sno-Isle GEN | 0.3153421757 | $475,543 | $475,543 | $149.96 | | |
| LIBCAP | Library Sno-Isle BOND (Cap Fac Imp Area) | 0.0543427938 | $475,543 | $475,543 | $25.84 | | |
| POCOUP | Port of Coupeville GEN | 0.1093371703 | $475,543 | $475,543 | $51.99 | | |
| POCOUPIDD | Port of Coupeville IDD | 0.3409740022 | $475,543 | $475,543 | $162.15 | | |
| COUPSDTECH | School 204 CP (TECH) | 0.7545480007 | $475,543 | $475,543 | $358.82 | | |
| SCH204MO | School 204 Enrichment | 0.6716186034 | $475,543 | $475,543 | $319.38 | | |
| ST | State School | 1.3035497053 | $475,543 | $475,543 | $619.89 | | |
| ST2 | State School Part 2 | 0.8169543533 | $475,543 | $475,543 | $388.50 | | |
| | Total Tax Rate: | 6.8660346289 | | | | | |
| | | | | Taxes w/Current Exemptions: | $3,265.08 | | |
| | | | | Taxes w/o Exemptions: | $3,265.08 | | |
Improvement / Building
| Improvement #1: | RESIDENTIAL | State Code: | Y | 1182.0 sqft | Value: | $200,543 |
| Bathrooms: | 2 | Bedrooms: | 1 | | Ceiling: | DRY WALL SPRAYED | Exterior Wall/Cover: | WOOD SIDING | | Floor Covering: | CARPET/VINYL 60-40 | Floor Structure: | WOOD W/SUBFLOOR | | Foundation: | CONCRETE | Heating: | WALL HEAT ELECTRIC | | Interior Finish: | DRYWALL PAINT | Plumbing Fixture Cnt: | 9 | | Roof Slope: | 4" IN 12" | Roof Structure/Cover: | CJ ASPHALT |
|
| | Type | Description | Class CD | Sub Class CD | Year Built | Area |
| | BAS | BASE/MAIN FLOOR | 3 | 0 | 1988 | 734.0 |
| | UB8 | BASEMENT UNFINISHED 8" | 3 | 0 | 1988 | 448.0 |
| | OWP | OPEN WOOD PORCH W/STEPS | 3 | 0 | 1988 | 162.0 |
| | UPS | UPPER STORY | 3 | 0 | 1988 | 448.0 |
Sketch
Property Image
Land
| 1 | 14 | SQ (08001-12000) | 0.1908 | 8311.25 | 0.00 | 0.00 | 1.00 | $275,000 | $0 |
Roll Value History
| 2026 | N/A | N/A | N/A | N/A | N/A |
| 2025 | $200,543 | $275,000 | $0 | $475,543 | $475,543 |
| 2024 | $187,217 | $275,000 | $0 | $462,217 | $462,217 |
| 2023 | $189,883 | $275,000 | $0 | $464,883 | $464,883 |
| 2022 | $174,351 | $260,000 | $0 | $434,351 | $434,351 |
| 2021 | $153,705 | $175,000 | $0 | $328,705 | $328,705 |
| 2020 | $149,668 | $160,000 | $0 | $309,668 | $309,668 |
| 2019 | $106,126 | $185,000 | $0 | $291,126 | $291,126 |
| 2018 | $84,938 | $165,000 | $0 | $249,938 | $249,938 |
| 2017 | $85,549 | $140,000 | $0 | $225,549 | $225,549 |
| 2016 | $86,771 | $125,000 | $0 | $211,771 | $211,771 |
| 2015 | $87,994 | $125,000 | $0 | $212,994 | $212,994 |
| 2014 | $89,215 | $85,000 | $0 | $174,215 | $174,215 |
| 2013 | $90,438 | $75,000 | $0 | $165,438 | $165,438 |
| 2012 | $90,850 | $79,900 | $0 | $170,750 | $170,750 |
| 2011 | $93,063 | $94,000 | $0 | $187,063 | $187,063 |
| 2010 | $96,158 | $94,000 | $0 | $190,158 | $190,158 |
| 2009 | $100,435 | $129,720 | $0 | $230,155 | $230,155 |
| 2008 | $101,779 | $145,700 | $0 | $247,479 | $247,479 |
| 2007 | $103,122 | $140,000 | $0 | $243,122 | $243,122 |
Deed and Sales History
| 1 | 12/28/2023 | PRD | Personal Representatives Deed | GRIMM, THOMAS | GRIMM, DIANNA S | | | $0.00 | 58988 | 4568503 |
| 2 | 10/26/2021 | QCD | Quit Claim Deed | GRIMM, OLIVER | GRIMM, THOMAS | | | $0.00 | 50751 | 4533129 |
| 3 | 12/07/2020 | WD | Warranty Deed | HELLER, CHARLES H | GRIMM, OLIVER | | | $300,000.00 | 46039 | 4504603 |
| 4 | 02/01/1979 | OTHER | Other - Misc. Documents | Unknown | HELLER, CHARLES H | | | $8,000.00 | 90873 | 348181 |
Payout Agreement
| No payout information available.. |