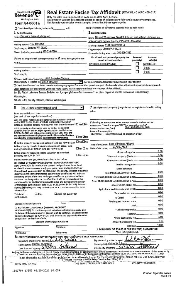
Property
Account |
| Property ID: | 391775 | Abbreviated Legal Description: | SR91-813N L10 B19 SIERRA LOTS 10 & 11 BLK 19 COMB 6/92 |
| Geographic ID: | S8160-00-19010-0 | Agent Code: | |
| Type: | Real | | |
| Tax Area: | 330 - APPRAISER-Cpvl Schl Dist, Special Dist, improved & less than 1 acre | Land Use Code | 11 |
| Open Space: | N | DFL | N |
| Historic Property: | N | Remodel Property: | N |
| Multi-Family Redevelopment: | N | | |
| Township: | | Section: | |
| Range: | |
Location |
| Address: | 687 FORT EBEY RD COUPEVILLE, WA 98239 | Mapsco: | |
| Neighborhood: | Cycle 2 | Map ID: | 9 |
| Neighborhood CD: | 2 |
Owner |
| Name: | THOMAS, JAY E | Owner ID: | 55555 |
| Mailing Address: | SUSANNE M THOMAS PO BOX 394 COUPEVILLE, WA 98239-0394 | % Ownership: | 100.0000000000% |
| | | Exemptions: | |
Taxes and Assessment Details
Values
| (+) Improvement Homesite Value: | + | $0 | |
| (+) Improvement Non-Homesite Value: | + | $514,008 | |
| (+) Land Homesite Value: | + | $0 | |
| (+) Land Non-Homesite Value: | + | $550,000 | |
| (+) Curr Use (HS): | + | $0 | $0 |
| (+) Curr Use (NHS): | + | $0 | $0 |
| | | -------------------------- | |
| (=) Market Value: | = | $1,064,008 | |
| (–) Productivity Loss: | – | $0 | |
| | | -------------------------- | |
| (=) Subtotal: | = | $1,064,008 | |
| (+) Senior Appraised Value: | + | $0 | |
| (+) Non-Senior Appraised Value: | + | $1,064,008 | |
| | | -------------------------- | |
| (=) Total Appraised Value: | = | $1,064,008 | |
| (–) Senior Exemption Loss: | – | $0 | |
| (–) Exemption Loss: | – | $0 | |
| | | -------------------------- | |
| (=) Taxable Value: | = | $1,064,008 | |
Taxing Jurisdiction
| Owner: | THOMAS, JAY E | | |
| % Ownership: | 100.0000000000% | | |
| Total Value: | $1,064,008 | | |
| Tax Area: | 330 - APPRAISER-Cpvl Schl Dist, Special Dist, improved & less than 1 acre |
| CF | Conservation Futures | 0.0316035091 | $1,064,008 | $1,064,008 | $33.63 | | |
| CEM2 | Cemetery #2 | 0.0095056933 | $1,064,008 | $1,064,008 | $10.11 | | |
| FIRE2 | Fire & Rescue Dist #2 N Whidbey GEN | 0.5475949600 | $1,064,008 | $1,064,008 | $582.65 | | |
| HOBOND | Hospital BOND | 0.1910887512 | $1,064,008 | $1,064,008 | $203.32 | | |
| HOGEN | Hospital GEN | 0.3902502903 | $1,064,008 | $1,064,008 | $415.23 | | |
| CE | County Current Expense | 0.3708482477 | $1,064,008 | $1,064,008 | $394.59 | | |
| CR | County Roads | 0.4584763726 | $1,064,008 | $1,064,008 | $487.82 | | |
| ISLANDEMS | Hospital GEN (EMS) | 0.5000000000 | $1,064,008 | $1,064,008 | $532.00 | | |
| LIB | Library Sno-Isle GEN | 0.3153421757 | $1,064,008 | $1,064,008 | $335.53 | | |
| LIBCAP | Library Sno-Isle BOND (Cap Fac Imp Area) | 0.0543427938 | $1,064,008 | $1,064,008 | $57.82 | | |
| POCOUP | Port of Coupeville GEN | 0.1093371703 | $1,064,008 | $1,064,008 | $116.34 | | |
| POCOUPIDD | Port of Coupeville IDD | 0.3409740022 | $1,064,008 | $1,064,008 | $362.80 | | |
| COUPSDTECH | School 204 CP (TECH) | 0.7545480007 | $1,064,008 | $1,064,008 | $802.85 | | |
| SCH204MO | School 204 Enrichment | 0.6716186034 | $1,064,008 | $1,064,008 | $714.61 | | |
| ST | State School | 1.3035497053 | $1,064,008 | $1,064,008 | $1,386.99 | | |
| ST2 | State School Part 2 | 0.8169543533 | $1,064,008 | $1,064,008 | $869.25 | | |
| | Total Tax Rate: | 6.8660346289 | | | | | |
| | | | | Taxes w/Current Exemptions: | $7,305.54 | | |
| | | | | Taxes w/o Exemptions: | $7,305.54 | | |
Improvement / Building
| Improvement #1: | RESIDENTIAL | State Code: | Y | 2357.9 sqft | Value: | $514,008 |
| Bathrooms: | 2.5 | Bedrooms: | 2 | | Ceiling: | DRYWALL PAINTED | Exterior Wall/Cover: | CEMENT FIBER | | Floor Covering: | COLORED CONCRETE | Floor Structure: | SLAB ABOVE GRADE | | Foundation: | SLAB/CONCRETE | Heating: | RADIANT FLOOR | | Interior Finish: | DRYWALL PAINT | Plumbing Fixture Cnt: | 13 | | Roof Slope: | 8" IN 12" | Roof Structure/Cover: | CJ ASPHALT |
|
| | Type | Description | Class CD | Sub Class CD | Year Built | Area |
| | BAS | BASE/MAIN FLOOR | 4 | 0 | 2002 | 2357.9 |
| | OP4 | OPEN PORCH W/CEILING-ROOF | 4 | 0 | 2002 | 24.6 |
| | AGR | ATTACHED GARAGE | 4 | 0 | 2002 | 887.9 |
| | OWP | OPEN WOOD PORCH W/STEPS | 4 | 0 | 2002 | 670.8 |
Sketch
Property Image
Land
| 1 | HB | HIGH BLUFF | 0.7916 | 34482.10 | 120.00 | 0.00 | 1.00 | $550,000 | $0 |
Roll Value History
| 2026 | N/A | N/A | N/A | N/A | N/A |
| 2025 | $514,008 | $550,000 | $0 | $1,064,008 | $1,064,008 |
| 2024 | $507,979 | $550,000 | $0 | $1,057,979 | $1,057,979 |
| 2023 | $514,008 | $450,000 | $0 | $964,008 | $964,008 |
| 2022 | $470,896 | $400,000 | $0 | $870,896 | $870,896 |
| 2021 | $414,207 | $325,000 | $0 | $739,207 | $739,207 |
| 2020 | $403,299 | $285,000 | $0 | $688,299 | $688,299 |
| 2019 | $301,522 | $300,000 | $0 | $601,522 | $601,522 |
| 2018 | $287,415 | $250,000 | $0 | $537,415 | $537,415 |
| 2017 | $288,943 | $250,000 | $0 | $538,943 | $538,943 |
| 2016 | $292,227 | $250,000 | $0 | $542,227 | $542,227 |
| 2015 | $295,510 | $250,000 | $0 | $545,510 | $545,510 |
| 2014 | $298,794 | $250,000 | $0 | $548,794 | $548,794 |
| 2013 | $302,077 | $261,285 | $0 | $563,362 | $563,362 |
| 2012 | $315,787 | $261,285 | $0 | $577,072 | $577,072 |
| 2011 | $319,298 | $261,285 | $0 | $580,583 | $580,583 |
| 2010 | $335,898 | $261,285 | $0 | $597,183 | $597,183 |
| 2009 | $346,412 | $270,345 | $0 | $616,757 | $616,757 |
| 2008 | $350,431 | $270,345 | $0 | $620,776 | $620,776 |
| 2007 | $357,991 | $270,345 | $0 | $628,336 | $628,336 |
Deed and Sales History
| 1 | 10/03/2000 | WD | Warranty Deed | MURPHY, STEVEN D | THOMAS, JAY E | | | $100,000.00 | 3864 | 20017681 |
| 2 | 05/01/1996 | WD | Warranty Deed | ROOKE, JOHN A | MURPHY, STEVEN D | | | $100,000.00 | 61657 | 96008374 |
| 3 | 02/01/1994 | WD | Warranty Deed | MALLOY, STEVE/ELIZABETH A | ROOKE, JOHN A | | | $93,000.00 | 40568 | 94003719 |
| 4 | 06/01/1992 | OTHER | Other - Misc. Documents | MALLOY, STEVE/ELIZABETH A | MALLOY, STEVE/ELIZABETH A | | | $0.00 | 64872 | 92010059 |
| 5 | 04/01/1992 | WD | Warranty Deed | NELSON, AMBER L | MALLOY, STEVE/ELIZABETH A | | | $48,500.00 | 21507 | 92007361 |
| 6 | 01/01/1900 | OTHER | Other - Misc. Documents | Unknown | NELSON, AMBER L | | | $0.00 | 0 | 0 |
Payout Agreement
| No payout information available.. |