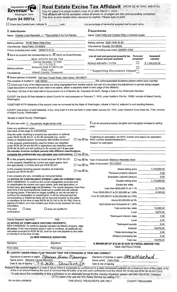
Property
Account |
| Property ID: | 39229 | Abbreviated Legal Description: | 53 - IN NE NE: BG NECR NE NE S1*W759.13' W384.78' N1*E175.07' N84*W82.86' N3*E TO NLN NE NE E432.7' TPB EX RD R/W |
| Geographic ID: | R13328-488-5060 | Agent Code: | |
| Type: | Real | | |
| Tax Area: | 112 - APPRAISER-OH Schl Dist, outside OH, improved, greater than 1 acre | Land Use Code | 11 |
| Open Space: | N | DFL | N |
| Historic Property: | N | Remodel Property: | N |
| Multi-Family Redevelopment: | N | | |
| Township: | 33 | Section: | 28 |
| Range: | R1 |
Location |
| Address: | 3157 FREEDOM LN OAK HARBOR, WA 98277 | Mapsco: | |
| Neighborhood: | Cycle 6 | Map ID: | 241 |
| Neighborhood CD: | 6 |
Owner |
| Name: | STRANDELL, SHIRLEY M | Owner ID: | 287547 |
| Mailing Address: | RODNEY STRANDELL 3157 FREEDOM LN OAK HARBOR, WA 98277 | % Ownership: | 100.0000000000% |
| | | Exemptions: | |
Taxes and Assessment Details
Values
| (+) Improvement Homesite Value: | + | $0 | |
| (+) Improvement Non-Homesite Value: | + | $325,079 | |
| (+) Land Homesite Value: | + | $0 | |
| (+) Land Non-Homesite Value: | + | $300,000 | |
| (+) Curr Use (HS): | + | $0 | $0 |
| (+) Curr Use (NHS): | + | $0 | $0 |
| | | -------------------------- | |
| (=) Market Value: | = | $625,079 | |
| (–) Productivity Loss: | – | $0 | |
| | | -------------------------- | |
| (=) Subtotal: | = | $625,079 | |
| (+) Senior Appraised Value: | + | $0 | |
| (+) Non-Senior Appraised Value: | + | $625,079 | |
| | | -------------------------- | |
| (=) Total Appraised Value: | = | $625,079 | |
| (–) Senior Exemption Loss: | – | $0 | |
| (–) Exemption Loss: | – | $0 | |
| | | -------------------------- | |
| (=) Taxable Value: | = | $625,079 | |
Taxing Jurisdiction
| Owner: | STRANDELL, SHIRLEY M | | |
| % Ownership: | 100.0000000000% | | |
| Total Value: | $625,079 | | |
| Tax Area: | 112 - APPRAISER-OH Schl Dist, outside OH, improved, greater than 1 acre |
| CF | Conservation Futures | 0.0316035091 | $625,079 | $625,079 | $19.75 | | |
| CEM1 | Cemetery #1 | 0.0040320932 | $625,079 | $625,079 | $2.52 | | |
| FIRE2 | Fire & Rescue Dist #2 N Whidbey GEN | 0.5475949600 | $625,079 | $625,079 | $342.29 | | |
| HOBOND | Hospital BOND | 0.1910887512 | $625,079 | $625,079 | $119.45 | | |
| HOGEN | Hospital GEN | 0.3902502903 | $625,079 | $625,079 | $243.94 | | |
| CE | County Current Expense | 0.3708482477 | $625,079 | $625,079 | $231.81 | | |
| CR | County Roads | 0.4584763726 | $625,079 | $625,079 | $286.58 | | |
| ISLANDEMS | Hospital GEN (EMS) | 0.5000000000 | $625,079 | $625,079 | $312.54 | | |
| LIB | Library Sno-Isle GEN | 0.3153421757 | $625,079 | $625,079 | $197.11 | | |
| NWHIDPRMT | P & R N Whidbey GEN | 0.2004466701 | $625,079 | $625,079 | $125.30 | | |
| SCH201MO | School 201 Enrichment | 1.8559231640 | $625,079 | $625,079 | $1,160.10 | | |
| ST | State School | 1.3035497053 | $625,079 | $625,079 | $814.82 | | |
| ST2 | State School Part 2 | 0.8169543533 | $625,079 | $625,079 | $510.66 | | |
| | Total Tax Rate: | 6.9861102925 | | | | | |
| | | | | Taxes w/Current Exemptions: | $4,366.87 | | |
| | | | | Taxes w/o Exemptions: | $4,366.87 | | |
Improvement / Building
| Improvement #1: | RESIDENTIAL | State Code: | Y | 964.0 sqft | Value: | $31,656 |
| Bathrooms: | 2 | Bedrooms: | 3 | | Ceiling: | PLYWOOD PAINTED | Exterior Wall/Cover: | SHINGLE | | Floor Covering: | CARPET/VINYL 80-20 | Floor Structure: | WOOD W/SUBFLOOR | | Foundation: | WOOD BLOCKS | Heating: | FHA GAS | | Interior Finish: | DRYWALL PAINT | Plumbing Fixture Cnt: | 8 | | Roof Slope: | 6" IN 12" | Roof Structure/Cover: | CJ ASPHALT |
|
| | Type | Description | Class CD | Sub Class CD | Year Built | Area |
| | BAS | BASE/MAIN FLOOR | 3 | 0 | 1923 | 964.0 |
| | ATF | ATTIC FINISHED | 3 | 0 | 1923 | 416.0 |
| | AGR | ATTACHED GARAGE | 3 | 0 | 1923 | 350.0 |
| Improvement #2: | RESIDENTIAL | State Code: | Y | 1620.0 sqft | Value: | $293,423 |
| Bathrooms: | 1 | Bedrooms: | 3 | | Ceiling: | TONGUE & GROOVE | Cooling: | HEAT PUMP/CONV/V | | Exterior Wall/Cover: | WOOD SIDING | Floor Covering: | CARPET/VINYL 80-20 | | Floor Structure: | WOOD W/SUBFLOOR | Foundation: | CONCRETE | | Interior Finish: | DRYWALL PAINT | Plumbing Fixture Cnt: | 8 | | Roof Slope: | 4" IN 12" | Roof Structure/Cover: | CJ CONCRETE TILE |
|
| | Type | Description | Class CD | Sub Class CD | Year Built | Area |
| | BAS | BASE/MAIN FLOOR | 3 | 0 | 1979 | 1620.0 |
| | OWP | OPEN WOOD PORCH W/STEPS | 3 | 0 | 1979 | 656.0 |
| | UTY | STORAGE/UTILITY | 3 | 0 | 1979 | 600.0 |
| | DGR | DETACHED GARAGE | 3 | 0 | 1979 | 900.0 |
Sketch
Property Image
Land
| 1 | 32 | AC (03.01-09.99) | 7.1500 | 311454.00 | 0.00 | 0.00 | 1.00 | $300,000 | $0 |
Roll Value History
| 2026 | N/A | N/A | N/A | N/A | N/A |
| 2025 | $325,079 | $300,000 | $0 | $625,079 | $625,079 |
| 2024 | $329,197 | $280,000 | $0 | $609,197 | $609,197 |
| 2023 | $333,315 | $270,000 | $0 | $603,315 | $603,315 |
| 2022 | $298,090 | $240,000 | $0 | $538,090 | $538,090 |
| 2021 | $262,450 | $175,000 | $0 | $437,450 | $437,450 |
| 2020 | $256,133 | $150,000 | $0 | $406,133 | $406,133 |
| 2019 | $188,302 | $185,000 | $0 | $373,302 | $373,302 |
| 2018 | $188,871 | $170,000 | $0 | $358,871 | $358,871 |
| 2017 | $190,013 | $150,000 | $0 | $340,013 | $340,013 |
| 2016 | $145,712 | $140,000 | $0 | $285,712 | $285,712 |
| 2015 | $147,216 | $155,000 | $0 | $302,216 | $302,216 |
| 2014 | $132,786 | $143,000 | $0 | $275,786 | $275,786 |
| 2013 | $135,146 | $121,550 | $0 | $256,696 | $256,696 |
| 2012 | $137,508 | $77,220 | $0 | $214,728 | $214,728 |
| 2011 | $139,872 | $85,800 | $0 | $225,672 | $225,672 |
| 2010 | $153,375 | $85,800 | $0 | $239,175 | $239,175 |
| 2009 | $159,497 | $157,300 | $0 | $316,797 | $316,797 |
| 2008 | $162,209 | $207,350 | $0 | $369,559 | $369,559 |
| 2007 | $164,922 | $92,021 | $0 | $256,943 | $256,943 |
Deed and Sales History
| 1 | 10/11/2018 | QCD | Quit Claim Deed | STRANDELL, RODNEY R | STRANDELL, SHIRLEY M | | | $0.00 | 36339 | 4453614 |
| 2 | 08/01/1992 | WD | Warranty Deed | O'BRIEN, JUDITH | STRANDELL, RODNEY R | | | $135,000.00 | 23158 | 92015431 |
| 3 | 02/01/1992 | WD | Warranty Deed | O'BRIEN, JUDITH | O'BRIEN, JUDITH | | | $0.00 | 21244 | 92006058 |
| 4 | 02/01/1992 | WD | Warranty Deed | TRIPP, JUDITH | O'BRIEN, JUDITH | | | $0.00 | 21245 | 92006059 |
| 5 | 03/01/1987 | QCD | Quit Claim Deed | TRIPP, JUDITH | TRIPP, JUDITH | | | $2,800.00 | 62106 | 85009877 |
| 6 | 06/01/1985 | DECREE | Divorce Decree/Legal Separation | TRIPP, JUDITH | TRIPP, JUDITH | | | $0.00 | 51815 | 85007072 |
| 7 | 06/01/1985 | QCD | Quit Claim Deed | TRIPP, JOHN P | TRIPP, JUDITH | | | $0.00 | 52415 | 85009552 |
| 8 | 12/01/1982 | WD | Warranty Deed | HOME, PURCHASE C | TRIPP, JOHN P | | | $113,000.00 | 23094 | 404058 |
| 9 | 04/01/1982 | WD | Warranty Deed | VANCE, CHARLES E | HOME, PURCHASE C | | | $115,000.00 | 23093 | 404058 |
| 10 | 01/01/1900 | OTHER | Other - Misc. Documents | Unknown | VANCE, CHARLES E | | | $0.00 | 0 | 0 |
Payout Agreement
| No payout information available.. |