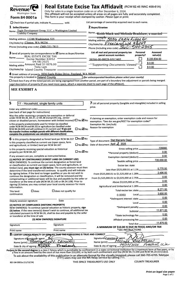
Property
Account |
| Property ID: | 392471 | Abbreviated Legal Description: | SIERRA 2 LOT 14 BLK 23 |
| Geographic ID: | S8160-02-23014-0 | Agent Code: | |
| Type: | Real | | |
| Tax Area: | 330 - APPRAISER-Cpvl Schl Dist, Special Dist, improved & less than 1 acre | Land Use Code | 11 |
| Open Space: | N | DFL | N |
| Historic Property: | N | Remodel Property: | N |
| Multi-Family Redevelopment: | N | | |
| Township: | | Section: | |
| Range: | |
Location |
| Address: | 760 EL TORO ST COUPEVILLE, WA 98239 | Mapsco: | |
| Neighborhood: | Cycle 2 | Map ID: | 10 |
| Neighborhood CD: | 2 |
Owner |
| Name: | SMITH TTEE, SHARON | Owner ID: | 312623 |
| Mailing Address: | 335 JAY AVE SEVERANCE, CO 80530 | % Ownership: | 100.0000000000% |
| | | Exemptions: | |
Taxes and Assessment Details
Values
| (+) Improvement Homesite Value: | + | $0 | |
| (+) Improvement Non-Homesite Value: | + | $46,820 | |
| (+) Land Homesite Value: | + | $0 | |
| (+) Land Non-Homesite Value: | + | $275,000 | |
| (+) Curr Use (HS): | + | $0 | $0 |
| (+) Curr Use (NHS): | + | $0 | $0 |
| | | -------------------------- | |
| (=) Market Value: | = | $321,820 | |
| (–) Productivity Loss: | – | $0 | |
| | | -------------------------- | |
| (=) Subtotal: | = | $321,820 | |
| (+) Senior Appraised Value: | + | $0 | |
| (+) Non-Senior Appraised Value: | + | $321,820 | |
| | | -------------------------- | |
| (=) Total Appraised Value: | = | $321,820 | |
| (–) Senior Exemption Loss: | – | $0 | |
| (–) Exemption Loss: | – | $0 | |
| | | -------------------------- | |
| (=) Taxable Value: | = | $321,820 | |
Taxing Jurisdiction
| Owner: | SMITH TTEE, SHARON | | |
| % Ownership: | 100.0000000000% | | |
| Total Value: | $321,820 | | |
| Tax Area: | 330 - APPRAISER-Cpvl Schl Dist, Special Dist, improved & less than 1 acre |
| CF | Conservation Futures | 0.0316035091 | $321,820 | $321,820 | $10.17 | | |
| CEM2 | Cemetery #2 | 0.0095056933 | $321,820 | $321,820 | $3.06 | | |
| FIRE2 | Fire & Rescue Dist #2 N Whidbey GEN | 0.5475949600 | $321,820 | $321,820 | $176.23 | | |
| HOBOND | Hospital BOND | 0.1910887512 | $321,820 | $321,820 | $61.50 | | |
| HOGEN | Hospital GEN | 0.3902502903 | $321,820 | $321,820 | $125.59 | | |
| CE | County Current Expense | 0.3708482477 | $321,820 | $321,820 | $119.35 | | |
| CR | County Roads | 0.4584763726 | $321,820 | $321,820 | $147.55 | | |
| ISLANDEMS | Hospital GEN (EMS) | 0.5000000000 | $321,820 | $321,820 | $160.91 | | |
| LIB | Library Sno-Isle GEN | 0.3153421757 | $321,820 | $321,820 | $101.48 | | |
| LIBCAP | Library Sno-Isle BOND (Cap Fac Imp Area) | 0.0543427938 | $321,820 | $321,820 | $17.49 | | |
| POCOUP | Port of Coupeville GEN | 0.1093371703 | $321,820 | $321,820 | $35.19 | | |
| POCOUPIDD | Port of Coupeville IDD | 0.3409740022 | $321,820 | $321,820 | $109.73 | | |
| COUPSDTECH | School 204 CP (TECH) | 0.7545480007 | $321,820 | $321,820 | $242.83 | | |
| SCH204MO | School 204 Enrichment | 0.6716186034 | $321,820 | $321,820 | $216.14 | | |
| ST | State School | 1.3035497053 | $321,820 | $321,820 | $419.51 | | |
| ST2 | State School Part 2 | 0.8169543533 | $321,820 | $321,820 | $262.91 | | |
| | Total Tax Rate: | 6.8660346289 | | | | | |
| | | | | Taxes w/Current Exemptions: | $2,209.64 | | |
| | | | | Taxes w/o Exemptions: | $2,209.64 | | |
Improvement / Building
| Improvement #1: | MANUFACTURED HOME | State Code: | Y | 1336.5 sqft | Value: | $46,820 |
| Bathrooms: | 0 | Bedrooms: | 0 | | Ceiling: | PLASTER PAINTED | Cooling: | EVAP NO DUCT | | Exterior Wall/Cover: | VINYL | Floor Covering: | CARPET 100% | | Floor Structure: | SLAB ON GRADE | Foundation: | SLAB | | Heating: | FHA ELECTRIC | Interior Finish: | PLASTER | | Plumbing Fixture Cnt: | 1 | Roof Slope: | FLAT | | Roof Structure/Cover: | CJ ALUMINIUM HEAVY |   |   |
|
Sketch
Property Image
Land
| 1 | 14 | SQ (08001-12000) | 0.2268 | 9879.41 | 0.00 | 0.00 | 1.00 | $275,000 | $0 |
Roll Value History
| 2026 | N/A | N/A | N/A | N/A | N/A |
| 2025 | $46,820 | $275,000 | $0 | $321,820 | $321,820 |
| 2024 | $31,214 | $275,000 | $0 | $306,214 | $306,214 |
| 2023 | $33,443 | $275,000 | $0 | $308,443 | $308,443 |
| 2022 | $31,293 | $260,000 | $0 | $291,293 | $291,293 |
| 2021 | $28,968 | $175,000 | $0 | $203,968 | $203,968 |
| 2020 | $29,825 | $160,000 | $0 | $189,825 | $189,825 |
| 2019 | $25,505 | $185,000 | $0 | $210,505 | $210,505 |
| 2018 | $18,119 | $135,000 | $0 | $153,119 | $153,119 |
| 2017 | $18,790 | $100,000 | $0 | $118,790 | $118,790 |
| 2016 | $20,132 | $75,000 | $0 | $95,132 | $95,132 |
| 2015 | $20,803 | $55,000 | $0 | $75,803 | $75,803 |
| 2014 | $22,145 | $50,000 | $0 | $72,145 | $72,145 |
| 2013 | $23,487 | $50,000 | $0 | $73,487 | $73,487 |
| 2012 | $26,682 | $57,800 | $0 | $84,482 | $84,482 |
| 2011 | $27,864 | $68,000 | $0 | $95,864 | $95,864 |
| 2010 | $21,252 | $68,000 | $0 | $89,252 | $89,252 |
| 2009 | $21,780 | $88,320 | $0 | $110,100 | $110,100 |
| 2008 | $22,282 | $99,200 | $0 | $121,482 | $121,482 |
| 2007 | $23,787 | $87,000 | $0 | $110,787 | $110,787 |
Deed and Sales History
| 1 | 05/31/2024 | MANHOME | Manufactured Home | ESTATE OF ERLINDA ROCK | SMITH TTEE, SHARON | | | $500.00 | 60202 | |
| 2 | 05/31/2024 | WD | Warranty Deed | ESTATE OF ERLINDA ROCK | SMITH TTEE, SHARON | | | $299,500.00 | 60201 | 4573090 |
|   | |
| 3 | 05/11/2015 | WD | Warranty Deed | SANTIAGUEL, FRED | ROCK, ERLINDA J | | | $49,500.00 | 19560 | 4378440 |
|   | |
| 4 | 08/01/2003 | QCD | Quit Claim Deed | SANTIAGUEL, JUANITA B | SANTIAGUEL, FRED | | | $0.00 | 33390 | 4069595 |
| 5 | 05/05/1999 | OTHER | Other - Misc. Documents | SANTIAGUEL, JUANITA B | SANTIAGUEL, JUANITA B | | | $0.00 | 91710 | 0 |
| 6 | 07/01/1979 | EZ | Easement | SIERRA, | SANTIAGUEL, JUANITA B | | | $0.00 | 93358 | 0 |
| 7 | 08/01/1972 | TRUSTEED | Trustee's Deed | MCMILLAN, DEVELOPMENT C | SIERRA, | | | $0.00 | 901 | 366441 |
Payout Agreement
| No payout information available.. |