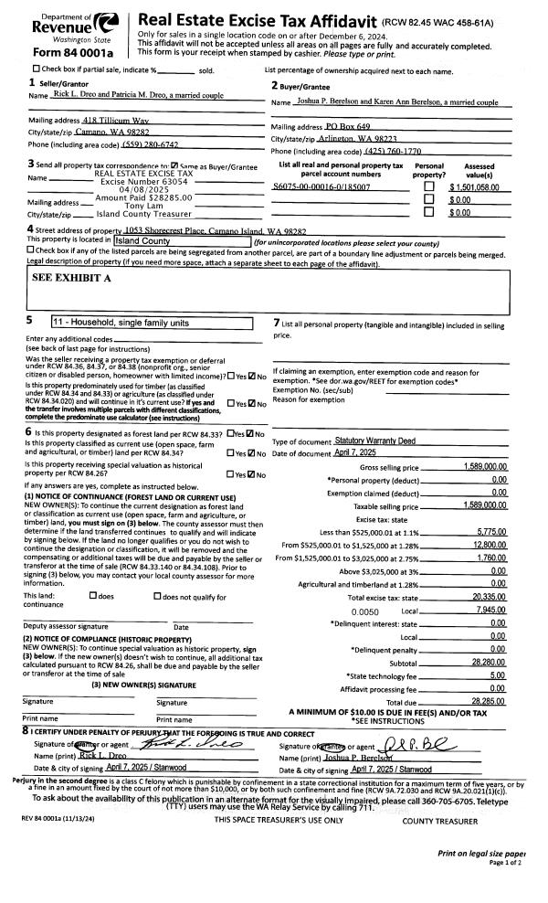
Property
Account |
| Property ID: | 392499 | Abbreviated Legal Description: | SIERRA 2 LOT 16 BLK 23 |
| Geographic ID: | S8160-02-23016-0 | Agent Code: | |
| Type: | Real | | |
| Tax Area: | 330 - APPRAISER-Cpvl Schl Dist, Special Dist, improved & less than 1 acre | Land Use Code | 11 |
| Open Space: | N | DFL | N |
| Historic Property: | N | Remodel Property: | N |
| Multi-Family Redevelopment: | N | | |
| Township: | | Section: | |
| Range: | |
Location |
| Address: | | Mapsco: | |
| Neighborhood: | Cycle 2 | Map ID: | 10 |
| Neighborhood CD: | 2 |
Owner |
| Name: | FAKKEMA, KEVIN J | Owner ID: | 274183 |
| Mailing Address: | JAMES WOESSNER CAROLINE VINSON 3147 SW SCENIC HEIGHTS ST OAK HARBOR, WA 98277 | % Ownership: | 100.0000000000% |
| | | Exemptions: | |
Taxes and Assessment Details
Values
| (+) Improvement Homesite Value: | + | $0 | |
| (+) Improvement Non-Homesite Value: | + | $4,000 | |
| (+) Land Homesite Value: | + | $0 | |
| (+) Land Non-Homesite Value: | + | $24,000 | |
| (+) Curr Use (HS): | + | $0 | $0 |
| (+) Curr Use (NHS): | + | $0 | $0 |
| | | -------------------------- | |
| (=) Market Value: | = | $28,000 | |
| (–) Productivity Loss: | – | $0 | |
| | | -------------------------- | |
| (=) Subtotal: | = | $28,000 | |
| (+) Senior Appraised Value: | + | $0 | |
| (+) Non-Senior Appraised Value: | + | $28,000 | |
| | | -------------------------- | |
| (=) Total Appraised Value: | = | $28,000 | |
| (–) Senior Exemption Loss: | – | $0 | |
| (–) Exemption Loss: | – | $0 | |
| | | -------------------------- | |
| (=) Taxable Value: | = | $28,000 | |
Taxing Jurisdiction
| Owner: | FAKKEMA, KEVIN J | | |
| % Ownership: | 100.0000000000% | | |
| Total Value: | $28,000 | | |
| Tax Area: | 330 - APPRAISER-Cpvl Schl Dist, Special Dist, improved & less than 1 acre |
| CF | Conservation Futures | 0.0316035091 | $28,000 | $28,000 | $0.88 | | |
| CEM2 | Cemetery #2 | 0.0095056933 | $28,000 | $28,000 | $0.27 | | |
| FIRE2 | Fire & Rescue Dist #2 N Whidbey GEN | 0.5475949600 | $28,000 | $28,000 | $15.33 | | |
| HOBOND | Hospital BOND | 0.1910887512 | $28,000 | $28,000 | $5.35 | | |
| HOGEN | Hospital GEN | 0.3902502903 | $28,000 | $28,000 | $10.93 | | |
| CE | County Current Expense | 0.3708482477 | $28,000 | $28,000 | $10.38 | | |
| CR | County Roads | 0.4584763726 | $28,000 | $28,000 | $12.84 | | |
| ISLANDEMS | Hospital GEN (EMS) | 0.5000000000 | $28,000 | $28,000 | $14.00 | | |
| LIB | Library Sno-Isle GEN | 0.3153421757 | $28,000 | $28,000 | $8.83 | | |
| LIBCAP | Library Sno-Isle BOND (Cap Fac Imp Area) | 0.0543427938 | $28,000 | $28,000 | $1.52 | | |
| POCOUP | Port of Coupeville GEN | 0.1093371703 | $28,000 | $28,000 | $3.06 | | |
| POCOUPIDD | Port of Coupeville IDD | 0.3409740022 | $28,000 | $28,000 | $9.55 | | |
| COUPSDTECH | School 204 CP (TECH) | 0.7545480007 | $28,000 | $28,000 | $21.13 | | |
| SCH204MO | School 204 Enrichment | 0.6716186034 | $28,000 | $28,000 | $18.81 | | |
| ST | State School | 1.3035497053 | $28,000 | $28,000 | $36.50 | | |
| ST2 | State School Part 2 | 0.8169543533 | $28,000 | $28,000 | $22.87 | | |
| | Total Tax Rate: | 6.8660346289 | | | | | |
| | | | | Taxes w/Current Exemptions: | $192.25 | | |
| | | | | Taxes w/o Exemptions: | $192.25 | | |
Improvement / Building
| Improvement #1: | RESIDENTIAL | State Code: | Y | 0.0 sqft | Value: | $4,000 |
Sketch
| No sketches available for this property. |
Property Image
Land
| 1 | 13 | SQ (06001-08000) | 0.1777 | 7740.61 | 0.00 | 0.00 | 1.00 | $24,000 | $0 |
Roll Value History
| 2026 | N/A | N/A | N/A | N/A | N/A |
| 2025 | $4,000 | $24,000 | $0 | $28,000 | $28,000 |
| 2024 | $4,000 | $20,000 | $0 | $24,000 | $24,000 |
| 2023 | $4,000 | $14,000 | $0 | $18,000 | $18,000 |
| 2022 | $4,000 | $14,000 | $0 | $18,000 | $18,000 |
| 2021 | $4,000 | $11,000 | $0 | $15,000 | $15,000 |
| 2020 | $4,000 | $6,500 | $0 | $10,500 | $10,500 |
| 2019 | $4,000 | $7,000 | $0 | $11,000 | $11,000 |
| 2018 | $4,000 | $7,000 | $0 | $11,000 | $11,000 |
| 2017 | $4,000 | $7,000 | $0 | $11,000 | $11,000 |
| 2016 | $4,000 | $7,000 | $0 | $11,000 | $11,000 |
| 2015 | $4,000 | $7,000 | $0 | $11,000 | $11,000 |
| 2014 | $4,000 | $7,000 | $0 | $11,000 | $11,000 |
| 2013 | $4,000 | $6,000 | $0 | $10,000 | $10,000 |
| 2012 | $4,000 | $5,100 | $0 | $9,100 | $9,100 |
| 2011 | $4,000 | $6,000 | $0 | $10,000 | $10,000 |
| 2010 | $4,000 | $6,000 | $0 | $10,000 | $10,000 |
| 2009 | $4,000 | $6,900 | $0 | $10,900 | $10,900 |
| 2008 | $4,000 | $12,400 | $0 | $16,400 | $16,400 |
| 2007 | $4,000 | $9,000 | $0 | $13,000 | $13,000 |
Deed and Sales History
| 1 | 03/23/2016 | QCD | Quit Claim Deed | FAKKEMA, KEVIN J | FAKKEMA, KEVIN J | | | $0.00 | 23660 | 4396387 |
| 2 | 04/02/2015 | WD | Warranty Deed | CUSHING, BRYAN J | FAKKEMA, KEVIN J | | | $8,000.00 | 19151 | 4376574 |
Payout Agreement
| No payout information available.. |