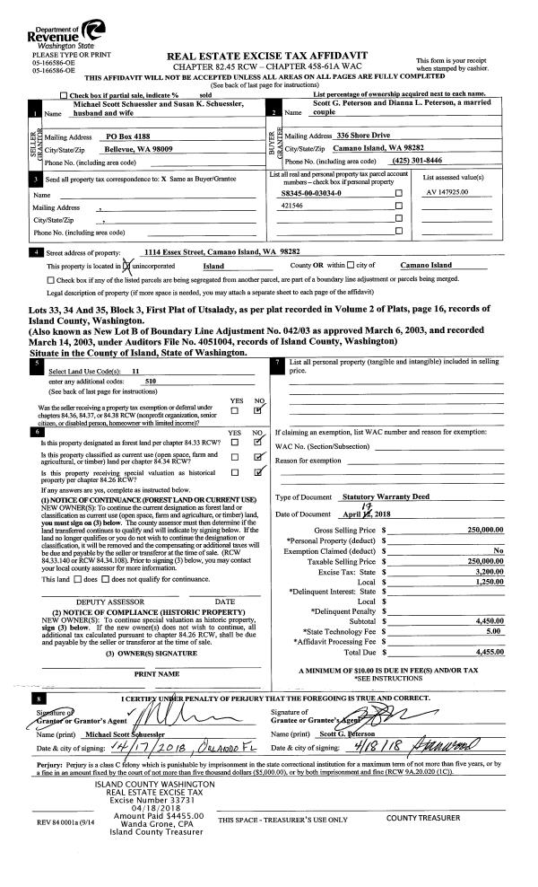
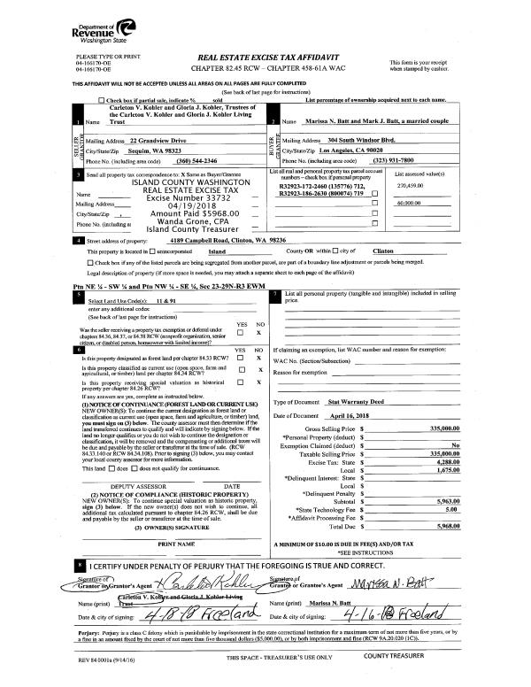
Property
Account |
| Property ID: | 392587 | Abbreviated Legal Description: | SIERRA 2 LOT 9 BLK 24 |
| Geographic ID: | S8160-02-24009-0 | Agent Code: | |
| Type: | Real | | |
| Tax Area: | 330 - APPRAISER-Cpvl Schl Dist, Special Dist, improved & less than 1 acre | Land Use Code | 11 |
| Open Space: | N | DFL | N |
| Historic Property: | N | Remodel Property: | N |
| Multi-Family Redevelopment: | N | | |
| Township: | | Section: | |
| Range: | |
Location |
| Address: | 2549 LA MESA DR COUPEVILLE, WA 98239 | Mapsco: | |
| Neighborhood: | Cycle 2 | Map ID: | 10 |
| Neighborhood CD: | 2 |
Owner |
| Name: | EDWARDS, JASON | Owner ID: | 284063 |
| Mailing Address: | MARY EDWARDS 2549 LA MESA DR COUPEVILLE, WA 98239 | % Ownership: | 100.0000000000% |
| | | Exemptions: | |
Taxes and Assessment Details
Values
| (+) Improvement Homesite Value: | + | $0 | |
| (+) Improvement Non-Homesite Value: | + | $68,529 | |
| (+) Land Homesite Value: | + | $0 | |
| (+) Land Non-Homesite Value: | + | $275,000 | |
| (+) Curr Use (HS): | + | $0 | $0 |
| (+) Curr Use (NHS): | + | $0 | $0 |
| | | -------------------------- | |
| (=) Market Value: | = | $343,529 | |
| (–) Productivity Loss: | – | $0 | |
| | | -------------------------- | |
| (=) Subtotal: | = | $343,529 | |
| (+) Senior Appraised Value: | + | $0 | |
| (+) Non-Senior Appraised Value: | + | $343,529 | |
| | | -------------------------- | |
| (=) Total Appraised Value: | = | $343,529 | |
| (–) Senior Exemption Loss: | – | $0 | |
| (–) Exemption Loss: | – | $0 | |
| | | -------------------------- | |
| (=) Taxable Value: | = | $343,529 | |
Taxing Jurisdiction
| Owner: | EDWARDS, JASON | | |
| % Ownership: | 100.0000000000% | | |
| Total Value: | $343,529 | | |
| Tax Area: | 330 - APPRAISER-Cpvl Schl Dist, Special Dist, improved & less than 1 acre |
| CF | Conservation Futures | 0.0316035091 | $343,529 | $343,529 | $10.86 | | |
| CEM2 | Cemetery #2 | 0.0095056933 | $343,529 | $343,529 | $3.27 | | |
| FIRE2 | Fire & Rescue Dist #2 N Whidbey GEN | 0.5475949600 | $343,529 | $343,529 | $188.11 | | |
| HOBOND | Hospital BOND | 0.1910887512 | $343,529 | $343,529 | $65.64 | | |
| HOGEN | Hospital GEN | 0.3902502903 | $343,529 | $343,529 | $134.06 | | |
| CE | County Current Expense | 0.3708482477 | $343,529 | $343,529 | $127.40 | | |
| CR | County Roads | 0.4584763726 | $343,529 | $343,529 | $157.50 | | |
| ISLANDEMS | Hospital GEN (EMS) | 0.5000000000 | $343,529 | $343,529 | $171.76 | | |
| LIB | Library Sno-Isle GEN | 0.3153421757 | $343,529 | $343,529 | $108.33 | | |
| LIBCAP | Library Sno-Isle BOND (Cap Fac Imp Area) | 0.0543427938 | $343,529 | $343,529 | $18.67 | | |
| POCOUP | Port of Coupeville GEN | 0.1093371703 | $343,529 | $343,529 | $37.56 | | |
| POCOUPIDD | Port of Coupeville IDD | 0.3409740022 | $343,529 | $343,529 | $117.13 | | |
| COUPSDTECH | School 204 CP (TECH) | 0.7545480007 | $343,529 | $343,529 | $259.21 | | |
| SCH204MO | School 204 Enrichment | 0.6716186034 | $343,529 | $343,529 | $230.72 | | |
| ST | State School | 1.3035497053 | $343,529 | $343,529 | $447.81 | | |
| ST2 | State School Part 2 | 0.8169543533 | $343,529 | $343,529 | $280.65 | | |
| | Total Tax Rate: | 6.8660346289 | | | | | |
| | | | | Taxes w/Current Exemptions: | $2,358.68 | | |
| | | | | Taxes w/o Exemptions: | $2,358.68 | | |
Improvement / Building
| Improvement #1: | MANUFACTURED HOME | State Code: | Y | 1435.4 sqft | Value: | $68,529 |
| Bathrooms: | 2 | Bedrooms: | 2 | | Ceiling: | DRY WALL SPRAYED | Exterior Wall/Cover: | VINYL | | Floor Covering: | CARPET 100% | Floor Structure: | WOOD W/SUBFLOOR | | Foundation: | CONCRETE | Heating: | BASEBOARD ELECTRIC | | Interior Finish: | DRYWALL PAINT | Plumbing Fixture Cnt: | 9 | | Roof Slope: | 3" IN 12" | Roof Structure/Cover: | CJ ASPHALT |
|
| | Type | Description | Class CD | Sub Class CD | Year Built | Area |
| | BAS | BASE/MAIN FLOOR | 4 | 0 | 1978 | 1435.4 |
| | DGR | DETACHED GARAGE | 4 | 0 | 1978 | 576.0 |
| | UTY | STORAGE/UTILITY | 4 | 0 | 1978 | 140.0 |
| | OWP | OPEN WOOD PORCH W/STEPS | 4 | 0 | 1978 | 183.7 |
| | ENP | ENCLOSED PORCH | 4 | 0 | 1978 | 288.0 |
Sketch
Property Image
Land
| 1 | 14 | SQ (08001-12000) | 0.1945 | 8472.42 | 0.00 | 0.00 | 1.00 | $275,000 | $0 |
Roll Value History
| 2026 | N/A | N/A | N/A | N/A | N/A |
| 2025 | $68,529 | $275,000 | $0 | $343,529 | $343,529 |
| 2024 | $74,626 | $275,000 | $0 | $349,626 | $349,626 |
| 2023 | $68,132 | $275,000 | $0 | $343,132 | $343,132 |
| 2022 | $64,630 | $260,000 | $0 | $324,630 | $324,630 |
| 2021 | $58,759 | $175,000 | $0 | $233,759 | $233,759 |
| 2020 | $59,525 | $160,000 | $0 | $219,525 | $219,525 |
| 2019 | $49,835 | $185,000 | $0 | $234,835 | $234,835 |
| 2018 | $87,958 | $135,000 | $0 | $222,958 | $222,958 |
| 2017 | $88,678 | $100,000 | $0 | $188,678 | $188,678 |
| 2016 | $90,155 | $75,000 | $0 | $165,155 | $165,155 |
| 2015 | $91,633 | $55,000 | $0 | $146,633 | $146,633 |
| 2014 | $93,110 | $50,000 | $0 | $143,110 | $143,110 |
| 2013 | $94,588 | $50,000 | $0 | $144,588 | $144,588 |
| 2012 | $94,695 | $56,950 | $0 | $151,645 | $151,645 |
| 2011 | $96,065 | $67,000 | $0 | $163,065 | $163,065 |
| 2010 | $101,937 | $67,000 | $0 | $168,937 | $168,937 |
| 2009 | $106,436 | $88,320 | $0 | $194,756 | $194,756 |
| 2008 | $107,822 | $99,200 | $0 | $207,022 | $207,022 |
| 2007 | $109,236 | $116,000 | $0 | $225,236 | $225,236 |
Deed and Sales History
| 1 | 02/26/2018 | WD | Warranty Deed | BLANCHETTE, BRENDA I | EDWARDS, JASON | | | $105,000.00 | 33105 | 4439954 |
|   | |
| 2 | 02/27/2018 | WD | Warranty Deed | MAXWELL, CRAIG | BLANCHETTE, BRENDA I | | | $0.00 | 33104 | 4439953 |
| 3 | 04/01/1996 | QCD | Quit Claim Deed | MAXWELL, E F | MAXWELL, CRAIG | | | $0.00 | 61274 | 96006536 |
| 4 | 05/01/1990 | WD | Warranty Deed | WESTOVER, DONALD W | MAXWELL, E F | | | $63,000.00 | 3179 | 90010285 |
| 5 | 01/01/1900 | OTHER | Other - Misc. Documents | Unknown | WESTOVER, DONALD W | | | $0.00 | 0 | 0 |
Payout Agreement
| No payout information available.. |