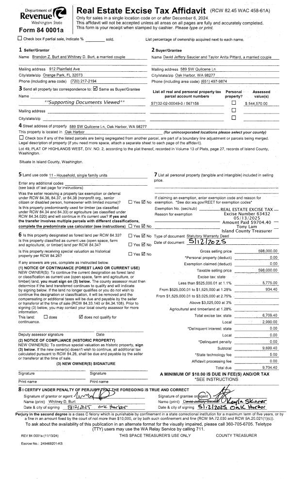
Property
Account |
| Property ID: | 392658 | Abbreviated Legal Description: | SIERRA 2 LOT 7 BLK 25 |
| Geographic ID: | S8160-02-25007-0 | Agent Code: | |
| Type: | Real | | |
| Tax Area: | 330 - APPRAISER-Cpvl Schl Dist, Special Dist, improved & less than 1 acre | Land Use Code | 11 |
| Open Space: | N | DFL | N |
| Historic Property: | N | Remodel Property: | N |
| Multi-Family Redevelopment: | N | | |
| Township: | | Section: | |
| Range: | |
Location |
| Address: | 2554 LA MESA DR COUPEVILLE, WA 98239 | Mapsco: | |
| Neighborhood: | Cycle 2 | Map ID: | 10 |
| Neighborhood CD: | 2 |
Owner |
| Name: | STOERMER, MARK | Owner ID: | 183198 |
| Mailing Address: | MARGARET STOERMER 14620 9TH AVE NE SHORELINE, WA 98155-7039 | % Ownership: | 100.0000000000% |
| | | Exemptions: | |
Taxes and Assessment Details
Values
| (+) Improvement Homesite Value: | + | $0 | |
| (+) Improvement Non-Homesite Value: | + | $45,826 | |
| (+) Land Homesite Value: | + | $0 | |
| (+) Land Non-Homesite Value: | + | $275,000 | |
| (+) Curr Use (HS): | + | $0 | $0 |
| (+) Curr Use (NHS): | + | $0 | $0 |
| | | -------------------------- | |
| (=) Market Value: | = | $320,826 | |
| (–) Productivity Loss: | – | $0 | |
| | | -------------------------- | |
| (=) Subtotal: | = | $320,826 | |
| (+) Senior Appraised Value: | + | $0 | |
| (+) Non-Senior Appraised Value: | + | $320,826 | |
| | | -------------------------- | |
| (=) Total Appraised Value: | = | $320,826 | |
| (–) Senior Exemption Loss: | – | $0 | |
| (–) Exemption Loss: | – | $0 | |
| | | -------------------------- | |
| (=) Taxable Value: | = | $320,826 | |
Taxing Jurisdiction
| Owner: | STOERMER, MARK | | |
| % Ownership: | 100.0000000000% | | |
| Total Value: | $320,826 | | |
| Tax Area: | 330 - APPRAISER-Cpvl Schl Dist, Special Dist, improved & less than 1 acre |
| CF | Conservation Futures | 0.0316035091 | $320,826 | $320,826 | $10.14 | | |
| CEM2 | Cemetery #2 | 0.0095056933 | $320,826 | $320,826 | $3.05 | | |
| FIRE2 | Fire & Rescue Dist #2 N Whidbey GEN | 0.5475949600 | $320,826 | $320,826 | $175.68 | | |
| HOBOND | Hospital BOND | 0.1910887512 | $320,826 | $320,826 | $61.31 | | |
| HOGEN | Hospital GEN | 0.3902502903 | $320,826 | $320,826 | $125.20 | | |
| CE | County Current Expense | 0.3708482477 | $320,826 | $320,826 | $118.98 | | |
| CR | County Roads | 0.4584763726 | $320,826 | $320,826 | $147.09 | | |
| ISLANDEMS | Hospital GEN (EMS) | 0.5000000000 | $320,826 | $320,826 | $160.41 | | |
| LIB | Library Sno-Isle GEN | 0.3153421757 | $320,826 | $320,826 | $101.17 | | |
| LIBCAP | Library Sno-Isle BOND (Cap Fac Imp Area) | 0.0543427938 | $320,826 | $320,826 | $17.43 | | |
| POCOUP | Port of Coupeville GEN | 0.1093371703 | $320,826 | $320,826 | $35.08 | | |
| POCOUPIDD | Port of Coupeville IDD | 0.3409740022 | $320,826 | $320,826 | $109.39 | | |
| COUPSDTECH | School 204 CP (TECH) | 0.7545480007 | $320,826 | $320,826 | $242.08 | | |
| SCH204MO | School 204 Enrichment | 0.6716186034 | $320,826 | $320,826 | $215.47 | | |
| ST | State School | 1.3035497053 | $320,826 | $320,826 | $418.21 | | |
| ST2 | State School Part 2 | 0.8169543533 | $320,826 | $320,826 | $262.10 | | |
| | Total Tax Rate: | 6.8660346289 | | | | | |
| | | | | Taxes w/Current Exemptions: | $2,202.79 | | |
| | | | | Taxes w/o Exemptions: | $2,202.79 | | |
Improvement / Building
| Improvement #1: | MANUFACTURED HOME | State Code: | Y | 915.0 sqft | Value: | $45,826 |
| Bathrooms: | 0 | Bedrooms: | 0 | | Ceiling: | PLASTER PAINTED | Cooling: | EVAP NO DUCT | | Exterior Wall/Cover: | VINYL | Floor Covering: | CARPET 100% | | Floor Structure: | SLAB ON GRADE | Foundation: | SLAB | | Heating: | FHA ELECTRIC | Interior Finish: | PLASTER | | Plumbing Fixture Cnt: | 1 | Roof Slope: | FLAT | | Roof Structure/Cover: | CJ ALUMINIUM HEAVY |   |   |
|
| | Type | Description | Class CD | Sub Class CD | Year Built | Area |
| | BAS | BASE/MAIN FLOOR | 3 | 0 | 1972 | 915.0 |
| | OWP | OPEN WOOD PORCH W/STEPS | 3 | 0 | 1972 | 481.0 |
| | OCP | OPEN CARPORT | 3 | 0 | 1972 | 320.0 |
Sketch
| No sketches available for this property. |
Property Image
Land
| 1 | 13 | SQ (06001-08000) | 0.1785 | 7775.46 | 0.00 | 0.00 | 1.00 | $275,000 | $0 |
Roll Value History
| 2026 | N/A | N/A | N/A | N/A | N/A |
| 2025 | $45,826 | $275,000 | $0 | $320,826 | $320,826 |
| 2024 | $57,097 | $275,000 | $0 | $332,097 | $332,097 |
| 2023 | $59,692 | $275,000 | $0 | $334,692 | $334,692 |
| 2022 | $56,397 | $260,000 | $0 | $316,397 | $316,397 |
| 2021 | $52,109 | $175,000 | $0 | $227,109 | $227,109 |
| 2020 | $52,575 | $160,000 | $0 | $212,575 | $212,575 |
| 2019 | $42,974 | $185,000 | $0 | $227,974 | $227,974 |
| 2018 | $20,188 | $135,000 | $0 | $155,188 | $155,188 |
| 2017 | $21,376 | $100,000 | $0 | $121,376 | $121,376 |
| 2016 | $21,970 | $75,000 | $0 | $96,970 | $96,970 |
| 2015 | $23,158 | $55,000 | $0 | $78,158 | $78,158 |
| 2014 | $23,751 | $50,000 | $0 | $73,751 | $73,751 |
| 2013 | $24,939 | $50,000 | $0 | $74,939 | $74,939 |
| 2012 | $27,690 | $57,800 | $0 | $85,490 | $85,490 |
| 2011 | $28,751 | $68,000 | $0 | $96,751 | $96,751 |
| 2010 | $28,904 | $68,000 | $0 | $96,904 | $96,904 |
| 2009 | $29,502 | $88,320 | $0 | $117,822 | $117,822 |
| 2008 | $29,553 | $99,200 | $0 | $128,753 | $128,753 |
| 2007 | $30,059 | $87,000 | $0 | $117,059 | $117,059 |
Deed and Sales History
| 1 | 04/24/2000 | WD | Warranty Deed | STOERMER, MARK | STOERMER, MARK | | | $53,446.00 | 1547 | 20007412 |
| 2 | 04/24/2000 | OTHER | Other - Misc. Documents | ROSS, PATRICIA | STOERMER, MARK | | | $17,810.00 | 1548 | 0 |
| 3 | 04/09/1996 | QCD | Quit Claim Deed | ROSS, PATRICIA | ROSS, PATRICIA | | | $0.00 | 90425 | 99002728 |
| 4 | 04/01/1996 | OTHER | Other - Misc. Documents | MAXWELL, ELMORE F | ROSS, PATRICIA | | | $0.00 | 61273 | 0 |
| 5 | 04/01/1996 | QCD | Quit Claim Deed | ROSS, PATRICIA | ROSS, PATRICIA | | | $0.00 | 61275 | 96006537 |
| 6 | 02/01/1988 | OTHER | Other - Misc. Documents | MAXWELL, ELMORE F | MAXWELL, ELMORE F | | | $0.00 | 80437 | 0 |
| 7 | 07/01/1981 | OTHER | Other - Misc. Documents | MAXWELL, ELMORE F | MAXWELL, ELMORE F | | | $13,685.00 | 12022 | 0 |
| 8 | 06/01/1981 | EZ | Easement | COSTAR, JUNE J | MAXWELL, ELMORE F | | | $25,315.00 | 12023 | 384919 |
| 9 | 08/01/1980 | OTHER | Other - Misc. Documents | COSTAR, JUNE J | COSTAR, JUNE J | | | $0.00 | 2752 | 0 |
| 10 | 04/01/1980 | EXECUTORD | Executor Deed | TOUTZ, ALFRED L | COSTAR, JUNE J | | | $34,500.00 | 1193 | 367473 |
| 11 | 09/01/1978 | OTHER | Other - Misc. Documents | TOUTZ, ALFRED L | TOUTZ, ALFRED L | | | $24,900.00 | 85078 | 339586 |
| 12 | 01/01/1900 | OTHER | Other - Misc. Documents | Unknown | TOUTZ, ALFRED L | | | $0.00 | 0 | 0 |
Payout Agreement
| No payout information available.. |