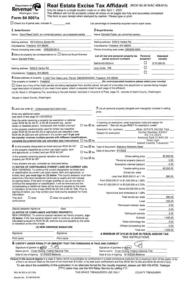
Property
Account |
| Property ID: | 392685 | Abbreviated Legal Description: | SIERRA 2 LOT 10 BLK 25 |
| Geographic ID: | S8160-02-25010-0 | Agent Code: | |
| Type: | Real | | |
| Tax Area: | 339 - APPRAISER-Cpvl Schl Dist, Special Dist, vacant & 50 acres or less | Land Use Code | 99 |
| Open Space: | N | DFL | N |
| Historic Property: | N | Remodel Property: | N |
| Multi-Family Redevelopment: | N | | |
| Township: | | Section: | |
| Range: | |
Location |
| Address: | | Mapsco: | |
| Neighborhood: | Cycle 2 | Map ID: | 10 |
| Neighborhood CD: | 2 |
Owner |
| Name: | LEONARDO, ELIJAH | Owner ID: | 271495 |
| Mailing Address: | 2570 LA MESA DR COUPEVILLE, WA 98239 | % Ownership: | 100.0000000000% |
| | | Exemptions: | |
Taxes and Assessment Details
Values
| (+) Improvement Homesite Value: | + | $0 | |
| (+) Improvement Non-Homesite Value: | + | $0 | |
| (+) Land Homesite Value: | + | $0 | |
| (+) Land Non-Homesite Value: | + | $24,000 | |
| (+) Curr Use (HS): | + | $0 | $0 |
| (+) Curr Use (NHS): | + | $0 | $0 |
| | | -------------------------- | |
| (=) Market Value: | = | $24,000 | |
| (–) Productivity Loss: | – | $0 | |
| | | -------------------------- | |
| (=) Subtotal: | = | $24,000 | |
| (+) Senior Appraised Value: | + | $0 | |
| (+) Non-Senior Appraised Value: | + | $24,000 | |
| | | -------------------------- | |
| (=) Total Appraised Value: | = | $24,000 | |
| (–) Senior Exemption Loss: | – | $0 | |
| (–) Exemption Loss: | – | $0 | |
| | | -------------------------- | |
| (=) Taxable Value: | = | $24,000 | |
Taxing Jurisdiction
| Owner: | LEONARDO, ELIJAH | | |
| % Ownership: | 100.0000000000% | | |
| Total Value: | $24,000 | | |
| Tax Area: | 339 - APPRAISER-Cpvl Schl Dist, Special Dist, vacant & 50 acres or less |
| CF | Conservation Futures | 0.0316035091 | $24,000 | $24,000 | $0.76 | | |
| CEM2 | Cemetery #2 | 0.0095056933 | $24,000 | $24,000 | $0.23 | | |
| HOBOND | Hospital BOND | 0.1910887512 | $24,000 | $24,000 | $4.59 | | |
| HOGEN | Hospital GEN | 0.3902502903 | $24,000 | $24,000 | $9.37 | | |
| CE | County Current Expense | 0.3708482477 | $24,000 | $24,000 | $8.90 | | |
| CR | County Roads | 0.4584763726 | $24,000 | $24,000 | $11.00 | | |
| ISLANDEMS | Hospital GEN (EMS) | 0.5000000000 | $24,000 | $24,000 | $12.00 | | |
| LIB | Library Sno-Isle GEN | 0.3153421757 | $24,000 | $24,000 | $7.57 | | |
| LIBCAP | Library Sno-Isle BOND (Cap Fac Imp Area) | 0.0543427938 | $24,000 | $24,000 | $1.30 | | |
| POCOUP | Port of Coupeville GEN | 0.1093371703 | $24,000 | $24,000 | $2.62 | | |
| POCOUPIDD | Port of Coupeville IDD | 0.3409740022 | $24,000 | $24,000 | $8.18 | | |
| COUPSDTECH | School 204 CP (TECH) | 0.7545480007 | $24,000 | $24,000 | $18.11 | | |
| SCH204MO | School 204 Enrichment | 0.6716186034 | $24,000 | $24,000 | $16.12 | | |
| ST | State School | 1.3035497053 | $24,000 | $24,000 | $31.29 | | |
| ST2 | State School Part 2 | 0.8169543533 | $24,000 | $24,000 | $19.61 | | |
| | Total Tax Rate: | 6.3184396689 | | | | | |
| | | | | Taxes w/Current Exemptions: | $151.65 | | |
| | | | | Taxes w/o Exemptions: | $151.65 | | |
Improvement / Building
Sketch
| No sketches available for this property. |
Property Image
Land
| 1 | 13 | SQ (06001-08000) | 0.1791 | 7801.60 | 0.00 | 0.00 | 1.00 | $24,000 | $0 |
Roll Value History
| 2026 | N/A | N/A | N/A | N/A | N/A |
| 2025 | $0 | $24,000 | $0 | $24,000 | $24,000 |
| 2024 | $0 | $20,000 | $0 | $20,000 | $20,000 |
| 2023 | $0 | $14,000 | $0 | $14,000 | $14,000 |
| 2022 | $0 | $14,000 | $0 | $14,000 | $14,000 |
| 2021 | $0 | $11,000 | $0 | $11,000 | $11,000 |
| 2020 | $0 | $6,500 | $0 | $6,500 | $6,500 |
| 2019 | $0 | $7,000 | $0 | $7,000 | $7,000 |
| 2018 | $0 | $7,000 | $0 | $7,000 | $7,000 |
| 2017 | $0 | $5,000 | $0 | $5,000 | $5,000 |
| 2016 | $0 | $5,000 | $0 | $5,000 | $5,000 |
| 2015 | $0 | $7,000 | $0 | $7,000 | $7,000 |
| 2014 | $0 | $7,000 | $0 | $7,000 | $7,000 |
| 2013 | $0 | $5,000 | $0 | $5,000 | $5,000 |
| 2012 | $0 | $6,000 | $0 | $6,000 | $6,000 |
| 2011 | $0 | $6,000 | $0 | $6,000 | $6,000 |
| 2010 | $0 | $6,000 | $0 | $6,000 | $6,000 |
| 2009 | $0 | $6,900 | $0 | $6,900 | $6,900 |
| 2008 | $0 | $6,200 | $0 | $6,200 | $6,200 |
| 2007 | $0 | $9,000 | $0 | $9,000 | $9,000 |
Deed and Sales History
| 1 | 07/20/2015 | WD | Warranty Deed | FINDLAY, JACQUELYN M | LEONARDO, ELIJAH | | | $231,500.00 | 20550 | 4382557 |
|   | |
| 2 | 09/21/1998 | OTHER | Other - Misc. Documents | HOLMBERG, JACQUELINE/DONALD | HOLMBERG, JACQUELINE | | | $0.00 | 68005 | 0 |
| 3 | 09/17/1998 | WD | Warranty Deed | HOLMBERG, JACQUELINE | FINDLAY, JACQUELYN M | | | $3,864.00 | 83880 | 98020932 |
| 4 | 08/01/1996 | QCD | Quit Claim Deed | SIERRA, | HOLMBERG, JACQUELINE/DONALD | | | $3,000.00 | 63112 | 97000619 |
| 5 | 10/01/1979 | CD | DNU - Correction Deed | MCMILLIAN, DEVELOPMENT C | SIERRA, | | | $0.00 | 0 | 361307 |
| 6 | 01/01/1900 | OTHER | Other - Misc. Documents | WARD, MELVIN R | MCMILLIAN, DEVELOPMENT C | | | $0.00 | 0 | 0 |
| 7 | 01/01/1900 | OTHER | Other - Misc. Documents | Unknown | WARD, MELVIN R | | | $0.00 | 0 | 0 |
Payout Agreement
| No payout information available.. |