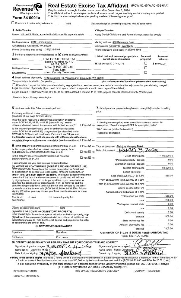
Property
Account |
| Property ID: | 392783 | Abbreviated Legal Description: | SIERRA 3 LOT 24 BLK 10 |
| Geographic ID: | S8160-03-10024-0 | Agent Code: | |
| Type: | Real | | |
| Tax Area: | 330 - APPRAISER-Cpvl Schl Dist, Special Dist, improved & less than 1 acre | Land Use Code | 11 |
| Open Space: | N | DFL | N |
| Historic Property: | N | Remodel Property: | N |
| Multi-Family Redevelopment: | N | | |
| Township: | | Section: | |
| Range: | |
Location |
| Address: | 705 LA CANA ST COUPEVILLE, WA 98239 | Mapsco: | |
| Neighborhood: | Cycle 2 | Map ID: | 10 |
| Neighborhood CD: | 2 |
Owner |
| Name: | MCINTYRE, GARY | Owner ID: | 89621 |
| Mailing Address: | BRYNN MCINTYRE 705 LA CANA ST COUPEVILLE, WA 98239-9787 | % Ownership: | 100.0000000000% |
| | | Exemptions: | |
Taxes and Assessment Details
Values
| (+) Improvement Homesite Value: | + | $0 | |
| (+) Improvement Non-Homesite Value: | + | $390,647 | |
| (+) Land Homesite Value: | + | $0 | |
| (+) Land Non-Homesite Value: | + | $275,000 | |
| (+) Curr Use (HS): | + | $0 | $0 |
| (+) Curr Use (NHS): | + | $0 | $0 |
| | | -------------------------- | |
| (=) Market Value: | = | $665,647 | |
| (–) Productivity Loss: | – | $0 | |
| | | -------------------------- | |
| (=) Subtotal: | = | $665,647 | |
| (+) Senior Appraised Value: | + | $0 | |
| (+) Non-Senior Appraised Value: | + | $665,647 | |
| | | -------------------------- | |
| (=) Total Appraised Value: | = | $665,647 | |
| (–) Senior Exemption Loss: | – | $0 | |
| (–) Exemption Loss: | – | $0 | |
| | | -------------------------- | |
| (=) Taxable Value: | = | $665,647 | |
Taxing Jurisdiction
| Owner: | MCINTYRE, GARY | | |
| % Ownership: | 100.0000000000% | | |
| Total Value: | $665,647 | | |
| Tax Area: | 330 - APPRAISER-Cpvl Schl Dist, Special Dist, improved & less than 1 acre |
| CF | Conservation Futures | 0.0316035091 | $665,647 | $665,647 | $21.04 | | |
| CEM2 | Cemetery #2 | 0.0095056933 | $665,647 | $665,647 | $6.33 | | |
| FIRE2 | Fire & Rescue Dist #2 N Whidbey GEN | 0.5475949600 | $665,647 | $665,647 | $364.50 | | |
| HOBOND | Hospital BOND | 0.1910887512 | $665,647 | $665,647 | $127.20 | | |
| HOGEN | Hospital GEN | 0.3902502903 | $665,647 | $665,647 | $259.77 | | |
| CE | County Current Expense | 0.3708482477 | $665,647 | $665,647 | $246.85 | | |
| CR | County Roads | 0.4584763726 | $665,647 | $665,647 | $305.18 | | |
| ISLANDEMS | Hospital GEN (EMS) | 0.5000000000 | $665,647 | $665,647 | $332.82 | | |
| LIB | Library Sno-Isle GEN | 0.3153421757 | $665,647 | $665,647 | $209.91 | | |
| LIBCAP | Library Sno-Isle BOND (Cap Fac Imp Area) | 0.0543427938 | $665,647 | $665,647 | $36.17 | | |
| POCOUP | Port of Coupeville GEN | 0.1093371703 | $665,647 | $665,647 | $72.78 | | |
| POCOUPIDD | Port of Coupeville IDD | 0.3409740022 | $665,647 | $665,647 | $226.97 | | |
| COUPSDTECH | School 204 CP (TECH) | 0.7545480007 | $665,647 | $665,647 | $502.26 | | |
| SCH204MO | School 204 Enrichment | 0.6716186034 | $665,647 | $665,647 | $447.06 | | |
| ST | State School | 1.3035497053 | $665,647 | $665,647 | $867.70 | | |
| ST2 | State School Part 2 | 0.8169543533 | $665,647 | $665,647 | $543.80 | | |
| | Total Tax Rate: | 6.8660346289 | | | | | |
| | | | | Taxes w/Current Exemptions: | $4,570.34 | | |
| | | | | Taxes w/o Exemptions: | $4,570.34 | | |
Improvement / Building
| Improvement #1: | RESIDENTIAL | State Code: | Y | 2455.6 sqft | Value: | $390,647 |
| Bathrooms: | 2.5 | Bedrooms: | 3 | | Ceiling: | DRYWALL PAINTED | Cooling: | HEAT PUMP/CONV/V | | Exterior Wall/Cover: | WOOD SIDING | Floor Covering: | HARDWOOD/CARP 60-40 | | Floor Structure: | WOOD W/SUBFLOOR | Foundation: | CONCRETE | | Interior Finish: | DRYWALL PAINT | Plumbing Fixture Cnt: | 12 | | Roof Slope: | 4" IN 12" | Roof Structure/Cover: | CJ ASPHALT |
|
| | Type | Description | Class CD | Sub Class CD | Year Built | Area |
| | BAS | BASE/MAIN FLOOR | 3 | 0 | 1988 | 1236.5 |
| | OP1 | OPEN PORCH SLAB | 3 | 0 | 1988 | 452.0 |
| | OP4 | OPEN PORCH W/CEILING-ROOF | 3 | 0 | 1988 | 167.5 |
| | AGR | ATTACHED GARAGE | 3 | 0 | 1988 | 467.2 |
| | OWP | OPEN WOOD PORCH W/STEPS | 3 | 0 | 1988 | 495.2 |
| | DWN | DOWNSTAIRS LIVING AREA | 3 | 0 | 1988 | 1219.1 |
Sketch
Property Image
Land
| 1 | 13 | SQ (06001-08000) | 0.1791 | 7801.60 | 0.00 | 0.00 | 1.00 | $275,000 | $0 |
Roll Value History
| 2026 | N/A | N/A | N/A | N/A | N/A |
| 2025 | $390,647 | $275,000 | $0 | $665,647 | $665,647 |
| 2024 | $385,956 | $275,000 | $0 | $660,956 | $660,956 |
| 2023 | $390,647 | $275,000 | $0 | $665,647 | $665,647 |
| 2022 | $344,695 | $260,000 | $0 | $604,695 | $604,695 |
| 2021 | $303,295 | $175,000 | $0 | $478,295 | $478,295 |
| 2020 | $295,854 | $160,000 | $0 | $455,854 | $455,854 |
| 2019 | $229,158 | $185,000 | $0 | $414,158 | $414,158 |
| 2018 | $187,688 | $165,000 | $0 | $352,688 | $352,688 |
| 2017 | $188,873 | $140,000 | $0 | $328,873 | $328,873 |
| 2016 | $191,327 | $125,000 | $0 | $316,327 | $316,327 |
| 2015 | $193,778 | $125,000 | $0 | $318,778 | $318,778 |
| 2014 | $196,231 | $85,000 | $0 | $281,231 | $281,231 |
| 2013 | $198,685 | $75,000 | $0 | $273,685 | $273,685 |
| 2012 | $195,667 | $85,000 | $0 | $280,667 | $280,667 |
| 2011 | $198,144 | $100,000 | $0 | $298,144 | $298,144 |
| 2010 | $203,484 | $100,000 | $0 | $303,484 | $303,484 |
| 2009 | $212,294 | $138,000 | $0 | $350,294 | $350,294 |
| 2008 | $214,927 | $155,000 | $0 | $369,927 | $369,927 |
| 2007 | $217,573 | $155,000 | $0 | $372,573 | $372,573 |
Deed and Sales History
| 1 | 08/04/2005 | WD | Warranty Deed | LAMBIRTH, DONALD L | MCINTYRE, GARY | | | $360,000.00 | 53962 | 4143949 |
| 2 | 10/01/1987 | QCD | Quit Claim Deed | CONGDON, H S | LAMBIRTH, DONALD L | | | $0.00 | 73400 | 87014941 |
| 3 | 10/01/1987 | WD | Warranty Deed | LAMBIRTH, DONALD L | CONGDON, H S | | | $12,300.00 | 73401 | 87014942 |
| 4 | 12/01/1981 | WD | Warranty Deed | GARRON, DALE G | LAMBIRTH, DONALD L | | | $11,000.00 | 13869 | 391498 |
| 5 | 03/01/1979 | OTHER | Other - Misc. Documents | Unknown | GARRON, DALE G | | | $8,500.00 | 91137 | 349060 |
Payout Agreement
| No payout information available.. |