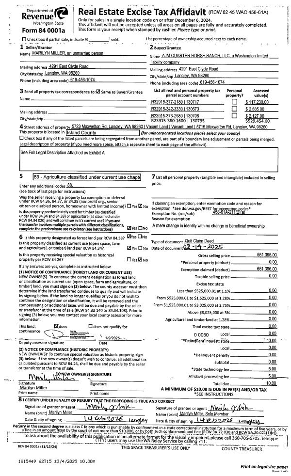
Property
Account |
| Property ID: | 392818 | Abbreviated Legal Description: | SIERRA 3 LOT 27 BLK 10 |
| Geographic ID: | S8160-03-10027-0 | Agent Code: | |
| Type: | Real | | |
| Tax Area: | 330 - APPRAISER-Cpvl Schl Dist, Special Dist, improved & less than 1 acre | Land Use Code | 11 |
| Open Space: | N | DFL | N |
| Historic Property: | N | Remodel Property: | N |
| Multi-Family Redevelopment: | N | | |
| Township: | | Section: | |
| Range: | |
Location |
| Address: | 693 LA CANA ST COUPEVILLE, WA 98239 | Mapsco: | |
| Neighborhood: | Cycle 2 | Map ID: | 10 |
| Neighborhood CD: | 2 |
Owner |
| Name: | FISHER, EDWARD L | Owner ID: | 274635 |
| Mailing Address: | NATCHANON NA NAKHON-FISHER 693 LA CANA ST COUPEVILLE, WA 98239 | % Ownership: | 100.0000000000% |
| | | Exemptions: | |
Taxes and Assessment Details
Values
| (+) Improvement Homesite Value: | + | $0 | |
| (+) Improvement Non-Homesite Value: | + | $407,709 | |
| (+) Land Homesite Value: | + | $0 | |
| (+) Land Non-Homesite Value: | + | $330,000 | |
| (+) Curr Use (HS): | + | $0 | $0 |
| (+) Curr Use (NHS): | + | $0 | $0 |
| | | -------------------------- | |
| (=) Market Value: | = | $737,709 | |
| (–) Productivity Loss: | – | $0 | |
| | | -------------------------- | |
| (=) Subtotal: | = | $737,709 | |
| (+) Senior Appraised Value: | + | $0 | |
| (+) Non-Senior Appraised Value: | + | $737,709 | |
| | | -------------------------- | |
| (=) Total Appraised Value: | = | $737,709 | |
| (–) Senior Exemption Loss: | – | $0 | |
| (–) Exemption Loss: | – | $0 | |
| | | -------------------------- | |
| (=) Taxable Value: | = | $737,709 | |
Taxing Jurisdiction
| Owner: | FISHER, EDWARD L | | |
| % Ownership: | 100.0000000000% | | |
| Total Value: | $737,709 | | |
| Tax Area: | 330 - APPRAISER-Cpvl Schl Dist, Special Dist, improved & less than 1 acre |
| CF | Conservation Futures | 0.0316035091 | $737,709 | $737,709 | $23.31 | | |
| CEM2 | Cemetery #2 | 0.0095056933 | $737,709 | $737,709 | $7.01 | | |
| FIRE2 | Fire & Rescue Dist #2 N Whidbey GEN | 0.5475949600 | $737,709 | $737,709 | $403.97 | | |
| HOBOND | Hospital BOND | 0.1910887512 | $737,709 | $737,709 | $140.97 | | |
| HOGEN | Hospital GEN | 0.3902502903 | $737,709 | $737,709 | $287.89 | | |
| CE | County Current Expense | 0.3708482477 | $737,709 | $737,709 | $273.58 | | |
| CR | County Roads | 0.4584763726 | $737,709 | $737,709 | $338.22 | | |
| ISLANDEMS | Hospital GEN (EMS) | 0.5000000000 | $737,709 | $737,709 | $368.85 | | |
| LIB | Library Sno-Isle GEN | 0.3153421757 | $737,709 | $737,709 | $232.63 | | |
| LIBCAP | Library Sno-Isle BOND (Cap Fac Imp Area) | 0.0543427938 | $737,709 | $737,709 | $40.09 | | |
| POCOUP | Port of Coupeville GEN | 0.1093371703 | $737,709 | $737,709 | $80.66 | | |
| POCOUPIDD | Port of Coupeville IDD | 0.3409740022 | $737,709 | $737,709 | $251.54 | | |
| COUPSDTECH | School 204 CP (TECH) | 0.7545480007 | $737,709 | $737,709 | $556.64 | | |
| SCH204MO | School 204 Enrichment | 0.6716186034 | $737,709 | $737,709 | $495.46 | | |
| ST | State School | 1.3035497053 | $737,709 | $737,709 | $961.64 | | |
| ST2 | State School Part 2 | 0.8169543533 | $737,709 | $737,709 | $602.67 | | |
| | Total Tax Rate: | 6.8660346289 | | | | | |
| | | | | Taxes w/Current Exemptions: | $5,065.13 | | |
| | | | | Taxes w/o Exemptions: | $5,065.13 | | |
Improvement / Building
| Improvement #1: | RESIDENTIAL | State Code: | Y | 2507.5 sqft | Value: | $407,709 |
| Bathrooms: | 3 | Bedrooms: | 3 | | Ceiling: | DRYWALL PAINTED | Cooling: | HEAT PUMP/CONV/V | | Exterior Wall/Cover: | CEMENT FIBER | Floor Covering: | CARPET/VINYL 80-20 | | Floor Structure: | WOOD W/SUBFLOOR | Foundation: | CONCRETE | | Interior Finish: | DRYWALL PAINT | Plumbing Fixture Cnt: | 14 | | Roof Slope: | 4" IN 12" | Roof Structure/Cover: | CJ ALUMINIUM HEAVY |
|
| | Type | Description | Class CD | Sub Class CD | Year Built | Area |
| | BAS | BASE/MAIN FLOOR | 3 | 0 | 1985 | 1458.1 |
| | DWN | DOWNSTAIRS LIVING AREA | 3 | 0 | 1985 | 1049.4 |
| | OWP | OPEN WOOD PORCH W/STEPS | 3 | 0 | 1985 | 28.0 |
| | AGR | ATTACHED GARAGE | 3 | 0 | 1985 | 544.5 |
| | OWP | OPEN WOOD PORCH W/STEPS | 3 | 0 | 1985 | 570.8 |
Sketch
Property Image
Land
| 1 | 14 | SQ (08001-12000) | 0.1871 | 8150.08 | 0.00 | 0.00 | 1.00 | $330,000 | $0 |
Roll Value History
| 2026 | N/A | N/A | N/A | N/A | N/A |
| 2025 | $407,709 | $330,000 | $0 | $737,709 | $737,709 |
| 2024 | $391,370 | $310,000 | $0 | $701,370 | $701,370 |
| 2023 | $396,128 | $310,000 | $0 | $706,128 | $706,128 |
| 2022 | $363,000 | $310,000 | $0 | $673,000 | $673,000 |
| 2021 | $319,413 | $190,000 | $0 | $509,413 | $509,413 |
| 2020 | $311,355 | $160,000 | $0 | $471,355 | $471,355 |
| 2019 | $237,007 | $185,000 | $0 | $422,007 | $422,007 |
| 2018 | $210,153 | $165,000 | $0 | $375,153 | $375,153 |
| 2017 | $211,401 | $140,000 | $0 | $351,401 | $351,401 |
| 2016 | $182,561 | $125,000 | $0 | $307,561 | $307,561 |
| 2015 | $174,702 | $125,000 | $0 | $299,702 | $299,702 |
| 2014 | $177,065 | $85,000 | $0 | $262,065 | $262,065 |
| 2013 | $179,425 | $75,000 | $0 | $254,425 | $254,425 |
| 2012 | $174,578 | $85,000 | $0 | $259,578 | $259,578 |
| 2011 | $176,941 | $100,000 | $0 | $276,941 | $276,941 |
| 2010 | $187,780 | $100,000 | $0 | $287,780 | $287,780 |
| 2009 | $195,965 | $138,000 | $0 | $333,965 | $333,965 |
| 2008 | $198,395 | $155,000 | $0 | $353,395 | $353,395 |
| 2007 | $200,826 | $155,000 | $0 | $355,826 | $355,826 |
Deed and Sales History
| 1 | 04/26/2016 | WD | Warranty Deed | THOMAS, MICHAEL R | FISHER, EDWARD L | | | $354,900.00 | 24117 | 4398593 |
| 2 | 06/19/2007 | WD | Warranty Deed | LEMPRIERE, BRIAN M | THOMAS, MICHAEL R | | | $380,000.00 | 72093 | 4205316 |
| 3 | 01/01/1900 | OTHER | Other - Misc. Documents | Unknown | LEMPRIERE, BRIAN M | | | $0.00 | 0 | 0 |
Payout Agreement
| No payout information available.. |