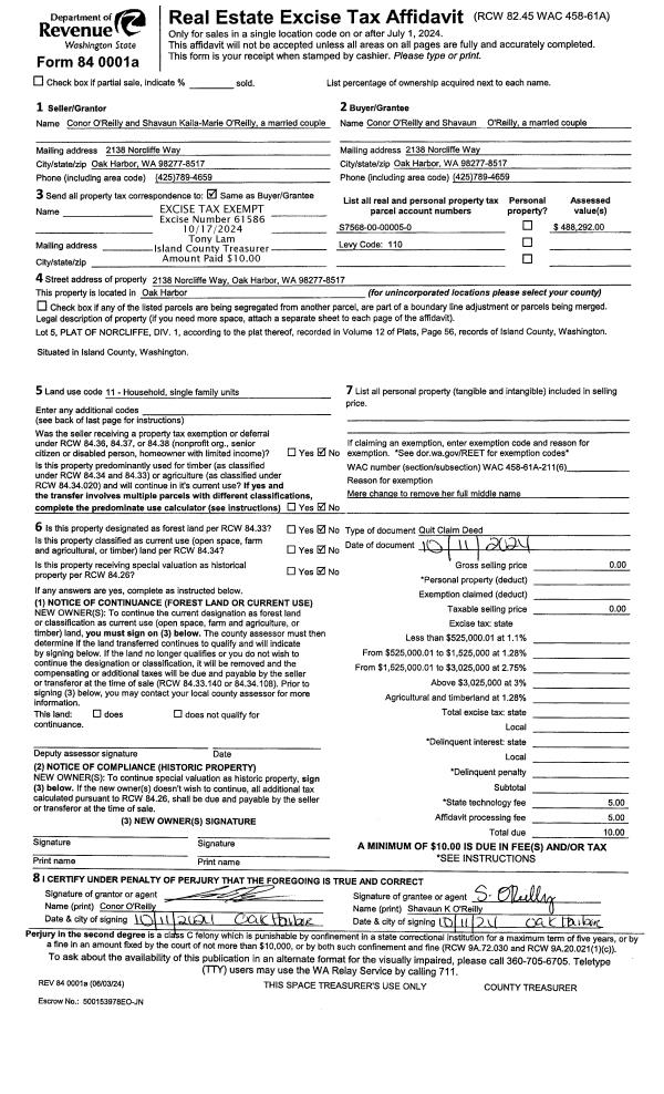
Property
Account |
| Property ID: | 393390 | Abbreviated Legal Description: | SIERRA 3 LOT 13 & 14 BLK 18 |
| Geographic ID: | S8160-03-18013-0 | Agent Code: | |
| Type: | Real | | |
| Tax Area: | 339 - APPRAISER-Cpvl Schl Dist, Special Dist, vacant & 50 acres or less | Land Use Code | 99 |
| Open Space: | N | DFL | N |
| Historic Property: | N | Remodel Property: | N |
| Multi-Family Redevelopment: | N | | |
| Township: | | Section: | |
| Range: | |
Location |
| Address: | | Mapsco: | |
| Neighborhood: | Cycle 2 | Map ID: | 9 |
| Neighborhood CD: | 2 |
Owner |
| Name: | LANGE, JONATHAN KENT | Owner ID: | 316090 |
| Mailing Address: | ELIZABETH LUCILE LANGE 2613 SAN JUAN ST COUPEVILLE, WA 98239 | % Ownership: | 100.0000000000% |
| | | Exemptions: | |
Taxes and Assessment Details
Values
| (+) Improvement Homesite Value: | + | $0 | |
| (+) Improvement Non-Homesite Value: | + | $0 | |
| (+) Land Homesite Value: | + | $0 | |
| (+) Land Non-Homesite Value: | + | $98,000 | |
| (+) Curr Use (HS): | + | $0 | $0 |
| (+) Curr Use (NHS): | + | $0 | $0 |
| | | -------------------------- | |
| (=) Market Value: | = | $98,000 | |
| (–) Productivity Loss: | – | $0 | |
| | | -------------------------- | |
| (=) Subtotal: | = | $98,000 | |
| (+) Senior Appraised Value: | + | $0 | |
| (+) Non-Senior Appraised Value: | + | $98,000 | |
| | | -------------------------- | |
| (=) Total Appraised Value: | = | $98,000 | |
| (–) Senior Exemption Loss: | – | $0 | |
| (–) Exemption Loss: | – | $0 | |
| | | -------------------------- | |
| (=) Taxable Value: | = | $98,000 | |
Taxing Jurisdiction
| Owner: | LANGE, JONATHAN KENT | | |
| % Ownership: | 100.0000000000% | | |
| Total Value: | $98,000 | | |
| Tax Area: | 339 - APPRAISER-Cpvl Schl Dist, Special Dist, vacant & 50 acres or less |
| CF | Conservation Futures | 0.0316035091 | $98,000 | $98,000 | $3.10 | | |
| CEM2 | Cemetery #2 | 0.0095056933 | $98,000 | $98,000 | $0.93 | | |
| HOBOND | Hospital BOND | 0.1910887512 | $98,000 | $98,000 | $18.73 | | |
| HOGEN | Hospital GEN | 0.3902502903 | $98,000 | $98,000 | $38.24 | | |
| CE | County Current Expense | 0.3708482477 | $98,000 | $98,000 | $36.34 | | |
| CR | County Roads | 0.4584763726 | $98,000 | $98,000 | $44.93 | | |
| ISLANDEMS | Hospital GEN (EMS) | 0.5000000000 | $98,000 | $98,000 | $49.00 | | |
| LIB | Library Sno-Isle GEN | 0.3153421757 | $98,000 | $98,000 | $30.90 | | |
| LIBCAP | Library Sno-Isle BOND (Cap Fac Imp Area) | 0.0543427938 | $98,000 | $98,000 | $5.33 | | |
| POCOUP | Port of Coupeville GEN | 0.1093371703 | $98,000 | $98,000 | $10.72 | | |
| POCOUPIDD | Port of Coupeville IDD | 0.3409740022 | $98,000 | $98,000 | $33.42 | | |
| COUPSDTECH | School 204 CP (TECH) | 0.7545480007 | $98,000 | $98,000 | $73.95 | | |
| SCH204MO | School 204 Enrichment | 0.6716186034 | $98,000 | $98,000 | $65.82 | | |
| ST | State School | 1.3035497053 | $98,000 | $98,000 | $127.75 | | |
| ST2 | State School Part 2 | 0.8169543533 | $98,000 | $98,000 | $80.06 | | |
| | Total Tax Rate: | 6.3184396689 | | | | | |
| | | | | Taxes w/Current Exemptions: | $619.22 | | |
| | | | | Taxes w/o Exemptions: | $619.22 | | |
Improvement / Building
Sketch
| No sketches available for this property. |
Property Image
Land
| 1 | 15 | SQ (12001-21780) | 0.3904 | 17007.00 | 0.00 | 0.00 | 1.00 | $98,000 | $0 |
Roll Value History
| 2026 | N/A | N/A | N/A | N/A | N/A |
| 2025 | $0 | $98,000 | $0 | $98,000 | $98,000 |
| 2024 | $0 | $14,000 | $0 | $14,000 | $14,000 |
| 2023 | $0 | $14,000 | $0 | $14,000 | $14,000 |
| 2022 | $0 | $14,000 | $0 | $14,000 | $14,000 |
| 2021 | $0 | $11,000 | $0 | $11,000 | $11,000 |
| 2020 | $0 | $6,500 | $0 | $6,500 | $6,500 |
| 2019 | $0 | $7,000 | $0 | $7,000 | $7,000 |
| 2018 | $0 | $7,000 | $0 | $7,000 | $7,000 |
| 2017 | $0 | $7,000 | $0 | $7,000 | $7,000 |
| 2016 | $0 | $7,000 | $0 | $7,000 | $7,000 |
| 2015 | $0 | $7,000 | $0 | $7,000 | $7,000 |
| 2014 | $0 | $7,000 | $0 | $7,000 | $7,000 |
| 2013 | $0 | $5,000 | $0 | $5,000 | $5,000 |
| 2012 | $0 | $6,000 | $0 | $6,000 | $6,000 |
| 2011 | $0 | $6,000 | $0 | $6,000 | $6,000 |
| 2010 | $0 | $6,000 | $0 | $6,000 | $6,000 |
| 2009 | $0 | $6,900 | $0 | $6,900 | $6,900 |
| 2008 | $0 | $6,200 | $0 | $6,200 | $6,200 |
| 2007 | $0 | $9,000 | $0 | $9,000 | $9,000 |
Deed and Sales History
| 1 | 04/09/2025 | WD | Warranty Deed | COSTNER, NANCYJEAN M | LANGE, JONATHAN KENT | | | $125,000.00 | 63100 | 4584377 |
| 2 | 01/01/1900 | OTHER | Other - Misc. Documents | Unknown | COSTNER, NANCYJEAN M | | | $0.00 | 0 | 0 |
Payout Agreement
| No payout information available.. |