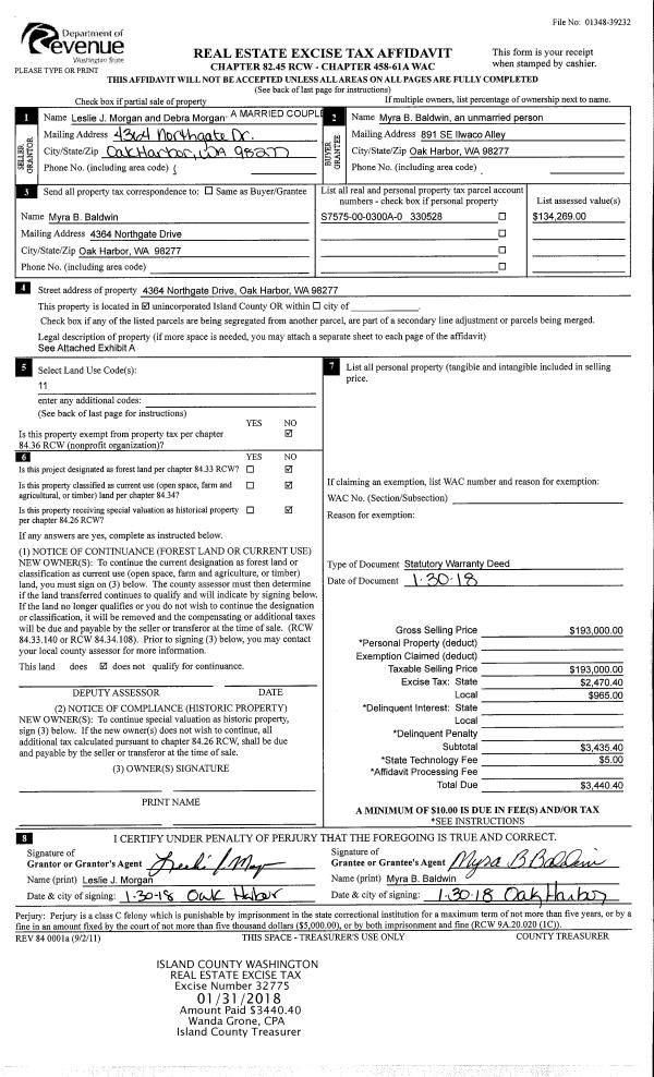
Property
Account |
| Property ID: | 393443 | Abbreviated Legal Description: | SIERRA 3 LOTS 18 & 19 BLK 18 |
| Geographic ID: | S8160-03-18018-0 | Agent Code: | |
| Type: | Real | | |
| Tax Area: | 330 - APPRAISER-Cpvl Schl Dist, Special Dist, improved & less than 1 acre | Land Use Code | 11 |
| Open Space: | N | DFL | N |
| Historic Property: | N | Remodel Property: | N |
| Multi-Family Redevelopment: | N | | |
| Township: | | Section: | |
| Range: | |
Location |
| Address: | 734 LA FIESTA ST COUPEVILLE, WA 98239 | Mapsco: | |
| Neighborhood: | Cycle 2 | Map ID: | 9 |
| Neighborhood CD: | 2 |
Owner |
| Name: | 734 LA FIESTA STREET LLC | Owner ID: | 304400 |
| Mailing Address: | PMB 761, 2121 LOHMANS CROSSING RD STE 7873 LAKEWAY, TX 78734 | % Ownership: | 100.0000000000% |
| | | Exemptions: | |
Taxes and Assessment Details
Values
| (+) Improvement Homesite Value: | + | $0 | |
| (+) Improvement Non-Homesite Value: | + | $573,624 | |
| (+) Land Homesite Value: | + | $0 | |
| (+) Land Non-Homesite Value: | + | $340,000 | |
| (+) Curr Use (HS): | + | $0 | $0 |
| (+) Curr Use (NHS): | + | $0 | $0 |
| | | -------------------------- | |
| (=) Market Value: | = | $913,624 | |
| (–) Productivity Loss: | – | $0 | |
| | | -------------------------- | |
| (=) Subtotal: | = | $913,624 | |
| (+) Senior Appraised Value: | + | $0 | |
| (+) Non-Senior Appraised Value: | + | $913,624 | |
| | | -------------------------- | |
| (=) Total Appraised Value: | = | $913,624 | |
| (–) Senior Exemption Loss: | – | $0 | |
| (–) Exemption Loss: | – | $0 | |
| | | -------------------------- | |
| (=) Taxable Value: | = | $913,624 | |
Taxing Jurisdiction
| Owner: | 734 LA FIESTA STREET LLC | | |
| % Ownership: | 100.0000000000% | | |
| Total Value: | $913,624 | | |
| Tax Area: | 330 - APPRAISER-Cpvl Schl Dist, Special Dist, improved & less than 1 acre |
| CF | Conservation Futures | 0.0316035091 | $913,624 | $913,624 | $28.87 | | |
| CEM2 | Cemetery #2 | 0.0095056933 | $913,624 | $913,624 | $8.68 | | |
| FIRE2 | Fire & Rescue Dist #2 N Whidbey GEN | 0.5475949600 | $913,624 | $913,624 | $500.30 | | |
| HOBOND | Hospital BOND | 0.1910887512 | $913,624 | $913,624 | $174.58 | | |
| HOGEN | Hospital GEN | 0.3902502903 | $913,624 | $913,624 | $356.54 | | |
| CE | County Current Expense | 0.3708482477 | $913,624 | $913,624 | $338.82 | | |
| CR | County Roads | 0.4584763726 | $913,624 | $913,624 | $418.88 | | |
| ISLANDEMS | Hospital GEN (EMS) | 0.5000000000 | $913,624 | $913,624 | $456.81 | | |
| LIB | Library Sno-Isle GEN | 0.3153421757 | $913,624 | $913,624 | $288.10 | | |
| LIBCAP | Library Sno-Isle BOND (Cap Fac Imp Area) | 0.0543427938 | $913,624 | $913,624 | $49.65 | | |
| POCOUP | Port of Coupeville GEN | 0.1093371703 | $913,624 | $913,624 | $99.89 | | |
| POCOUPIDD | Port of Coupeville IDD | 0.3409740022 | $913,624 | $913,624 | $311.52 | | |
| COUPSDTECH | School 204 CP (TECH) | 0.7545480007 | $913,624 | $913,624 | $689.37 | | |
| SCH204MO | School 204 Enrichment | 0.6716186034 | $913,624 | $913,624 | $613.61 | | |
| ST | State School | 1.3035497053 | $913,624 | $913,624 | $1,190.95 | | |
| ST2 | State School Part 2 | 0.8169543533 | $913,624 | $913,624 | $746.39 | | |
| | Total Tax Rate: | 6.8660346289 | | | | | |
| | | | | Taxes w/Current Exemptions: | $6,272.96 | | |
| | | | | Taxes w/o Exemptions: | $6,272.96 | | |
Improvement / Building
| Improvement #1: | RESIDENTIAL | State Code: | Y | 3218.2 sqft | Value: | $573,624 |
| Bathrooms: | 2.5 | Bedrooms: | 3 | | Ceiling: | DRYWALL PAINTED | Exterior Wall/Cover: | CEMENT FIBER | | Floor Covering: | CARPET/VINYL 60-40 | Floor Structure: | WOOD W/SUBFLOOR | | Foundation: | CONCRETE | Heating: | FHA GAS | | Interior Finish: | DRYWALL PAINT | Plumbing Fixture Cnt: | 12 | | Roof Slope: | 10" IN 12" | Roof Structure/Cover: | CJ ASPHALT |
|
| | Type | Description | Class CD | Sub Class CD | Year Built | Area |
| | BAS | BASE/MAIN FLOOR | 4 | 0 | 2004 | 1870.2 |
| | OP2 | OPEN PORCH W/STEPS | 4 | 0 | 2004 | 72.0 |
| | AGR | ATTACHED GARAGE | 4 | 0 | 2004 | 264.0 |
| | BIG | BUILT IN GARAGE | 4 | 0 | 2004 | 516.0 |
| | OWP | OPEN WOOD PORCH W/STEPS | 4 | 0 | 2004 | 61.5 |
| | OWP | OPEN WOOD PORCH W/STEPS | 4 | 0 | 2004 | 349.8 |
| | DWN | DOWNSTAIRS LIVING AREA | 4 | 0 | 2004 | 1348.0 |
Sketch
Property Image
Land
| 1 | 15 | SQ (12001-21780) | 0.3767 | 16409.05 | 0.00 | 0.00 | 1.00 | $340,000 | $0 |
Roll Value History
| 2026 | N/A | N/A | N/A | N/A | N/A |
| 2025 | $573,624 | $340,000 | $0 | $913,624 | $913,624 |
| 2024 | $559,635 | $310,000 | $0 | $869,635 | $869,635 |
| 2023 | $564,608 | $310,000 | $0 | $874,608 | $874,608 |
| 2022 | $506,772 | $310,000 | $0 | $816,772 | $816,772 |
| 2021 | $444,590 | $190,000 | $0 | $634,590 | $634,590 |
| 2020 | $432,430 | $160,000 | $0 | $592,430 | $592,430 |
| 2019 | $348,315 | $185,000 | $0 | $533,315 | $533,315 |
| 2018 | $334,308 | $165,000 | $0 | $499,308 | $499,308 |
| 2017 | $272,175 | $140,000 | $0 | $412,175 | $412,175 |
| 2016 | $275,339 | $125,000 | $0 | $400,339 | $400,339 |
| 2015 | $278,506 | $125,000 | $0 | $403,506 | $403,506 |
| 2014 | $281,670 | $85,000 | $0 | $366,670 | $366,670 |
| 2013 | $284,835 | $75,000 | $0 | $359,835 | $359,835 |
| 2012 | $294,871 | $85,000 | $0 | $379,871 | $379,871 |
| 2011 | $298,047 | $100,000 | $0 | $398,047 | $398,047 |
| 2010 | $302,845 | $100,000 | $0 | $402,845 | $402,845 |
| 2009 | $318,821 | $138,000 | $0 | $456,821 | $456,821 |
| 2008 | $319,581 | $155,000 | $0 | $474,581 | $474,581 |
| 2007 | $323,487 | $155,000 | $0 | $478,487 | $478,487 |
Deed and Sales History
| 1 | 05/17/2022 | WD | Warranty Deed | MASON TTEE, KIMBERLY G | 734 LA FIESTA STREET LLC | | | $875,000.00 | 53208 | 4545595 |
| 2 | 12/14/2018 | QCD | Quit Claim Deed | MURRAY, JAMES D | MASON TTEE, KIMBERLY G | | | $0.00 | 37048 | 4456922 |
| 3 | 12/14/2018 | QCD | Quit Claim Deed | MASON, KIMBERLY G | MASON TTEE, KIMBERLY G | | | $0.00 | 37065 | 4456921 |
| 4 | 12/08/2017 | WD | Warranty Deed | OVERLY, SHANTELLE J | MASON, KIMBERLY G | | | $500,000.00 | 32208 | 4435489 |
|   | |
| 5 | 06/22/2004 | WD | Warranty Deed | MAIN FRAME CONSTRUCTION, | OVERLY, SHANTELLE J | | | $335,000.00 | 42746 | 4104650 |
| 6 | 05/07/2004 | BLA | DNU - Boundary Line Adjustment | BACKMAN, TERRY D | BACKMAN, TERRY D | | | $0.00 | 70262 | 4082321 |
| 7 | 12/23/2003 | WD | Warranty Deed | BACKMAN, TERRY D | MAIN FRAME CONSTRUCTION, | | | $65,000.00 | 40186 | 4088656 |
| 8 | 01/08/1999 | WD | Warranty Deed | Unknown | BACKMAN, TERRY D | | | $10,000.00 | 90206 | 99001271 |
Payout Agreement
| No payout information available.. |