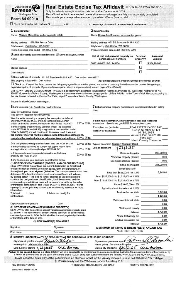
Property
Account |
| Property ID: | 393470 | Abbreviated Legal Description: | SIERRA 3 LOT 25 BLK 19 |
| Geographic ID: | S8160-03-19025-0 | Agent Code: | |
| Type: | Real | | |
| Tax Area: | 330 - APPRAISER-Cpvl Schl Dist, Special Dist, improved & less than 1 acre | Land Use Code | 11 |
| Open Space: | N | DFL | N |
| Historic Property: | N | Remodel Property: | N |
| Multi-Family Redevelopment: | N | | |
| Township: | | Section: | |
| Range: | |
Location |
| Address: | 747 FORT EBEY RD COUPEVILLE, WA 98239 | Mapsco: | |
| Neighborhood: | Cycle 2 | Map ID: | 9 |
| Neighborhood CD: | 2 |
Owner |
| Name: | KOEPKE, WILLIAM J | Owner ID: | 89687 |
| Mailing Address: | MARY J HOMOLA-KOEPKE 316 SE PIONEER WAY #552 OAK HARBOR, WA 98277-5716 | % Ownership: | 100.0000000000% |
| | | Exemptions: | |
Taxes and Assessment Details
Values
| (+) Improvement Homesite Value: | + | $0 | |
| (+) Improvement Non-Homesite Value: | + | $249,897 | |
| (+) Land Homesite Value: | + | $0 | |
| (+) Land Non-Homesite Value: | + | $500,000 | |
| (+) Curr Use (HS): | + | $0 | $0 |
| (+) Curr Use (NHS): | + | $0 | $0 |
| | | -------------------------- | |
| (=) Market Value: | = | $749,897 | |
| (–) Productivity Loss: | – | $0 | |
| | | -------------------------- | |
| (=) Subtotal: | = | $749,897 | |
| (+) Senior Appraised Value: | + | $0 | |
| (+) Non-Senior Appraised Value: | + | $749,897 | |
| | | -------------------------- | |
| (=) Total Appraised Value: | = | $749,897 | |
| (–) Senior Exemption Loss: | – | $0 | |
| (–) Exemption Loss: | – | $0 | |
| | | -------------------------- | |
| (=) Taxable Value: | = | $749,897 | |
Taxing Jurisdiction
| Owner: | KOEPKE, WILLIAM J | | |
| % Ownership: | 100.0000000000% | | |
| Total Value: | $749,897 | | |
| Tax Area: | 330 - APPRAISER-Cpvl Schl Dist, Special Dist, improved & less than 1 acre |
| CF | Conservation Futures | 0.0316035091 | $749,897 | $749,897 | $23.70 | | |
| CEM2 | Cemetery #2 | 0.0095056933 | $749,897 | $749,897 | $7.13 | | |
| FIRE2 | Fire & Rescue Dist #2 N Whidbey GEN | 0.5475949600 | $749,897 | $749,897 | $410.64 | | |
| HOBOND | Hospital BOND | 0.1910887512 | $749,897 | $749,897 | $143.30 | | |
| HOGEN | Hospital GEN | 0.3902502903 | $749,897 | $749,897 | $292.65 | | |
| CE | County Current Expense | 0.3708482477 | $749,897 | $749,897 | $278.10 | | |
| CR | County Roads | 0.4584763726 | $749,897 | $749,897 | $343.81 | | |
| ISLANDEMS | Hospital GEN (EMS) | 0.5000000000 | $749,897 | $749,897 | $374.95 | | |
| LIB | Library Sno-Isle GEN | 0.3153421757 | $749,897 | $749,897 | $236.47 | | |
| LIBCAP | Library Sno-Isle BOND (Cap Fac Imp Area) | 0.0543427938 | $749,897 | $749,897 | $40.75 | | |
| POCOUP | Port of Coupeville GEN | 0.1093371703 | $749,897 | $749,897 | $81.99 | | |
| POCOUPIDD | Port of Coupeville IDD | 0.3409740022 | $749,897 | $749,897 | $255.70 | | |
| COUPSDTECH | School 204 CP (TECH) | 0.7545480007 | $749,897 | $749,897 | $565.83 | | |
| SCH204MO | School 204 Enrichment | 0.6716186034 | $749,897 | $749,897 | $503.64 | | |
| ST | State School | 1.3035497053 | $749,897 | $749,897 | $977.53 | | |
| ST2 | State School Part 2 | 0.8169543533 | $749,897 | $749,897 | $612.63 | | |
| | Total Tax Rate: | 6.8660346289 | | | | | |
| | | | | Taxes w/Current Exemptions: | $5,148.82 | | |
| | | | | Taxes w/o Exemptions: | $5,148.82 | | |
Improvement / Building
| Improvement #1: | RESIDENTIAL | State Code: | Y | 1194.8 sqft | Value: | $249,897 |
| Bathrooms: | 2 | Bedrooms: | 0 | | Ceiling: | BEAM PAINTED | Exterior Wall/Cover: | CEMENT FIBER | | Floor Covering: | CARPET/VINYL 80-20 | Floor Structure: | WOOD W/SUBFLOOR | | Foundation: | CONCRETE | Heating: | BASEBOARD ELECTRIC | | Interior Finish: | DRYWALL PAINT | Plumbing Fixture Cnt: | 10 | | Roof Slope: | 5" IN 12" | Roof Structure/Cover: | BEAM ASPHALT |
|
| | Type | Description | Class CD | Sub Class CD | Year Built | Area |
| | BAS | BASE/MAIN FLOOR | 3 | 0 | 1987 | 1194.8 |
| | OP4 | OPEN PORCH W/CEILING-ROOF | 3 | 0 | 1987 | 9.2 |
| | AGR | ATTACHED GARAGE | 3 | 0 | 1987 | 308.0 |
| | OWP | OPEN WOOD PORCH W/STEPS | 3 | 0 | 1987 | 408.0 |
Sketch
Property Image
Land
| 1 | HB | HIGH BLUFF | 0.4785 | 20843.46 | 60.00 | 0.00 | 1.00 | $500,000 | $0 |
Roll Value History
| 2026 | N/A | N/A | N/A | N/A | N/A |
| 2025 | $249,897 | $500,000 | $0 | $749,897 | $749,897 |
| 2024 | $247,432 | $475,000 | $0 | $722,432 | $722,432 |
| 2023 | $250,514 | $450,000 | $0 | $700,514 | $700,514 |
| 2022 | $229,636 | $400,000 | $0 | $629,636 | $629,636 |
| 2021 | $202,109 | $300,000 | $0 | $502,109 | $502,109 |
| 2020 | $196,389 | $240,000 | $0 | $436,389 | $436,389 |
| 2019 | $138,510 | $275,000 | $0 | $413,510 | $413,510 |
| 2018 | $111,272 | $250,000 | $0 | $361,272 | $361,272 |
| 2017 | $111,978 | $200,000 | $0 | $311,978 | $311,978 |
| 2016 | $113,470 | $200,000 | $0 | $313,470 | $313,470 |
| 2015 | $114,963 | $200,000 | $0 | $314,963 | $314,963 |
| 2014 | $116,456 | $200,000 | $0 | $316,456 | $316,456 |
| 2013 | $117,949 | $143,959 | $0 | $261,908 | $261,908 |
| 2012 | $109,115 | $143,959 | $0 | $253,074 | $253,074 |
| 2011 | $110,587 | $143,959 | $0 | $254,546 | $254,546 |
| 2010 | $117,470 | $143,959 | $0 | $261,429 | $261,429 |
| 2009 | $122,490 | $204,042 | $0 | $326,532 | $326,532 |
| 2008 | $123,982 | $204,042 | $0 | $328,024 | $328,024 |
| 2007 | $125,474 | $204,042 | $0 | $329,516 | $329,516 |
Deed and Sales History
| 1 | 10/01/1993 | QCD | Quit Claim Deed | KOEPKE, WILLIAM J | KOEPKE, WILLIAM J | | | $0.00 | 34203 | 93021971 |
| 2 | 09/01/1993 | OTHER | Other - Misc. Documents | KOEPKE, WILLIAM J | KOEPKE, WILLIAM J | | | $0.00 | 65576 | 0 |
| 3 | 03/01/1989 | QCD | Quit Claim Deed | KOEPKE, WILLIAM J | KOEPKE, WILLIAM J | | | $0.00 | 91074 | 89003751 |
| 4 | 02/01/1987 | WD | Warranty Deed | LOFGREN, JAMES | KOEPKE, WILLIAM J | | | $27,000.00 | 70431 | 87002706 |
| 5 | 09/01/1980 | WD | Warranty Deed | NELSON, LLOYD Q | LOFGREN, JAMES | | | $18,500.00 | 3069 | 373674 |
| 6 | 01/01/1900 | OTHER | Other - Misc. Documents | Unknown | NELSON, LLOYD Q | | | $0.00 | 0 | 0 |
Payout Agreement
| No payout information available.. |