Property
Account |
| Property ID: | 393719 | Abbreviated Legal Description: | SIERRA 3 LOT 8 BLK 26 |
| Geographic ID: | S8160-03-26008-0 | Agent Code: | |
| Type: | Real | | |
| Tax Area: | 330 - APPRAISER-Cpvl Schl Dist, Special Dist, improved & less than 1 acre | Land Use Code | 11 |
| Open Space: | N | DFL | N |
| Historic Property: | N | Remodel Property: | N |
| Multi-Family Redevelopment: | N | | |
| Township: | | Section: | |
| Range: | |
Location |
| Address: | 742 EL CINE ST COUPEVILLE, WA 98239 | Mapsco: | |
| Neighborhood: | Cycle 2 | Map ID: | 10 |
| Neighborhood CD: | 2 |
Owner |
| Name: | PENDERGRAFT, DOUGLAS | Owner ID: | 12496 |
| Mailing Address: | PO BOX 1168 OAK HARBOR, WA 98277-1168 | % Ownership: | 100.0000000000% |
| | | Exemptions: | |
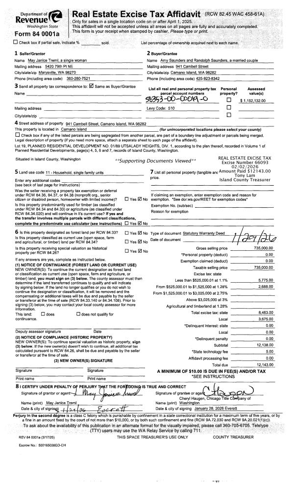
Taxes and Assessment Details
Values
| (+) Improvement Homesite Value: | + | $0 | |
| (+) Improvement Non-Homesite Value: | + | $362,166 | |
| (+) Land Homesite Value: | + | $0 | |
| (+) Land Non-Homesite Value: | + | $275,000 | |
| (+) Curr Use (HS): | + | $0 | $0 |
| (+) Curr Use (NHS): | + | $0 | $0 |
| | | -------------------------- | |
| (=) Market Value: | = | $637,166 | |
| (–) Productivity Loss: | – | $0 | |
| | | -------------------------- | |
| (=) Subtotal: | = | $637,166 | |
| (+) Senior Appraised Value: | + | $0 | |
| (+) Non-Senior Appraised Value: | + | $637,166 | |
| | | -------------------------- | |
| (=) Total Appraised Value: | = | $637,166 | |
| (–) Senior Exemption Loss: | – | $0 | |
| (–) Exemption Loss: | – | $0 | |
| | | -------------------------- | |
| (=) Taxable Value: | = | $637,166 | |
Taxing Jurisdiction
| Owner: | PENDERGRAFT, DOUGLAS | | |
| % Ownership: | 100.0000000000% | | |
| Total Value: | $637,166 | | |
| Tax Area: | 330 - APPRAISER-Cpvl Schl Dist, Special Dist, improved & less than 1 acre |
| CF | Conservation Futures | 0.0316035091 | $637,166 | $637,166 | $20.14 | | |
| CEM2 | Cemetery #2 | 0.0095056933 | $637,166 | $637,166 | $6.06 | | |
| FIRE2 | Fire & Rescue Dist #2 N Whidbey GEN | 0.5475949600 | $637,166 | $637,166 | $348.91 | | |
| HOBOND | Hospital BOND | 0.1910887512 | $637,166 | $637,166 | $121.76 | | |
| HOGEN | Hospital GEN | 0.3902502903 | $637,166 | $637,166 | $248.65 | | |
| CE | County Current Expense | 0.3708482477 | $637,166 | $637,166 | $236.29 | | |
| CR | County Roads | 0.4584763726 | $637,166 | $637,166 | $292.13 | | |
| ISLANDEMS | Hospital GEN (EMS) | 0.5000000000 | $637,166 | $637,166 | $318.58 | | |
| LIB | Library Sno-Isle GEN | 0.3153421757 | $637,166 | $637,166 | $200.93 | | |
| LIBCAP | Library Sno-Isle BOND (Cap Fac Imp Area) | 0.0543427938 | $637,166 | $637,166 | $34.63 | | |
| POCOUP | Port of Coupeville GEN | 0.1093371703 | $637,166 | $637,166 | $69.67 | | |
| POCOUPIDD | Port of Coupeville IDD | 0.3409740022 | $637,166 | $637,166 | $217.26 | | |
| COUPSDTECH | School 204 CP (TECH) | 0.7545480007 | $637,166 | $637,166 | $480.77 | | |
| SCH204MO | School 204 Enrichment | 0.6716186034 | $637,166 | $637,166 | $427.93 | | |
| ST | State School | 1.3035497053 | $637,166 | $637,166 | $830.58 | | |
| ST2 | State School Part 2 | 0.8169543533 | $637,166 | $637,166 | $520.54 | | |
| | Total Tax Rate: | 6.8660346289 | | | | | |
| | | | | Taxes w/Current Exemptions: | $4,374.83 | | |
| | | | | Taxes w/o Exemptions: | $4,374.83 | | |
Improvement / Building
| Improvement #1: | RESIDENTIAL | State Code: | Y | 2083.6 sqft | Value: | $362,166 |
| Bathrooms: | 2.5 | Bedrooms: | 3 | | Ceiling: | DRYWALL PAINTED | Exterior Wall/Cover: | CEMENT FIBER | | Floor Covering: | CARPET/VINYL 80-20 | Floor Structure: | WOOD W/SUBFLOOR | | Foundation: | CONCRETE | Heating: | FHA GAS | | Interior Finish: | DRYWALL PAINT | Plumbing Fixture Cnt: | 11 | | Roof Slope: | 8" IN 12" | Roof Structure/Cover: | CJ ASPHALT |
|
| | Type | Description | Class CD | Sub Class CD | Year Built | Area |
| | BAS | BASE/MAIN FLOOR | 3 | 0 | 2005 | 2083.6 |
| | AGR | ATTACHED GARAGE | 3 | 0 | 2005 | 576.0 |
| | OWP | OPEN WOOD PORCH W/STEPS | 3 | 0 | 2005 | 553.4 |
| | OWC | OPEN WOOD PORCH W/STEPS/ROOF/C | 3 | 0 | 2005 | 74.0 |
Sketch
Property Image
Land
| 1 | 13 | SQ (06001-08000) | 0.2027 | 8829.61 | 0.00 | 0.00 | 1.00 | $275,000 | $0 |
Roll Value History
| 2026 | N/A | N/A | N/A | N/A | N/A |
| 2025 | $362,166 | $275,000 | $0 | $637,166 | $637,166 |
| 2024 | $357,919 | $275,000 | $0 | $632,919 | $632,919 |
| 2023 | $362,166 | $275,000 | $0 | $637,166 | $637,166 |
| 2022 | $331,789 | $260,000 | $0 | $591,789 | $591,789 |
| 2021 | $291,861 | $175,000 | $0 | $466,861 | $466,861 |
| 2020 | $284,459 | $160,000 | $0 | $444,459 | $444,459 |
| 2019 | $217,278 | $185,000 | $0 | $402,278 | $402,278 |
| 2018 | $198,814 | $165,000 | $0 | $363,814 | $363,814 |
| 2017 | $199,891 | $140,000 | $0 | $339,891 | $339,891 |
| 2016 | $202,188 | $125,000 | $0 | $327,188 | $327,188 |
| 2015 | $204,485 | $125,000 | $0 | $329,485 | $329,485 |
| 2014 | $206,783 | $85,000 | $0 | $291,783 | $291,783 |
| 2013 | $209,081 | $75,000 | $0 | $284,081 | $284,081 |
| 2012 | $211,378 | $85,000 | $0 | $296,378 | $296,378 |
| 2011 | $213,676 | $100,000 | $0 | $313,676 | $313,676 |
| 2010 | $222,065 | $100,000 | $0 | $322,065 | $322,065 |
| 2009 | $229,123 | $138,000 | $0 | $367,123 | $367,123 |
| 2008 | $231,744 | $155,000 | $0 | $386,744 | $386,744 |
| 2007 | $234,350 | $155,000 | $0 | $389,350 | $389,350 |
Deed and Sales History
Payout Agreement
| No payout information available.. |