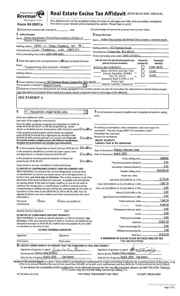
Property
Account |
| Property ID: | 393835 | Abbreviated Legal Description: | SIERRA 3 LOTS 20 & 21 BLK 26 |
| Geographic ID: | S8160-03-26020-0 | Agent Code: | |
| Type: | Real | | |
| Tax Area: | 330 - APPRAISER-Cpvl Schl Dist, Special Dist, improved & less than 1 acre | Land Use Code | 11 |
| Open Space: | N | DFL | N |
| Historic Property: | N | Remodel Property: | N |
| Multi-Family Redevelopment: | N | | |
| Township: | | Section: | |
| Range: | |
Location |
| Address: | 765 EL TORO ST COUPEVILLE, WA 98239 | Mapsco: | |
| Neighborhood: | Cycle 2 | Map ID: | 10 |
| Neighborhood CD: | 2 |
Owner |
| Name: | RYBIJ, JOHN H | Owner ID: | 276312 |
| Mailing Address: | CHRISTINE A BOWER 765 EL TORO ST COUPEVILLE, WA 98239 | % Ownership: | 100.0000000000% |
| | | Exemptions: | |
Taxes and Assessment Details
Values
| (+) Improvement Homesite Value: | + | $0 | |
| (+) Improvement Non-Homesite Value: | + | $259,202 | |
| (+) Land Homesite Value: | + | $0 | |
| (+) Land Non-Homesite Value: | + | $275,000 | |
| (+) Curr Use (HS): | + | $0 | $0 |
| (+) Curr Use (NHS): | + | $0 | $0 |
| | | -------------------------- | |
| (=) Market Value: | = | $534,202 | |
| (–) Productivity Loss: | – | $0 | |
| | | -------------------------- | |
| (=) Subtotal: | = | $534,202 | |
| (+) Senior Appraised Value: | + | $0 | |
| (+) Non-Senior Appraised Value: | + | $534,202 | |
| | | -------------------------- | |
| (=) Total Appraised Value: | = | $534,202 | |
| (–) Senior Exemption Loss: | – | $0 | |
| (–) Exemption Loss: | – | $0 | |
| | | -------------------------- | |
| (=) Taxable Value: | = | $534,202 | |
Taxing Jurisdiction
| Owner: | RYBIJ, JOHN H | | |
| % Ownership: | 100.0000000000% | | |
| Total Value: | $534,202 | | |
| Tax Area: | 330 - APPRAISER-Cpvl Schl Dist, Special Dist, improved & less than 1 acre |
| CF | Conservation Futures | 0.0316035091 | $534,202 | $534,202 | $16.88 | | |
| CEM2 | Cemetery #2 | 0.0095056933 | $534,202 | $534,202 | $5.08 | | |
| FIRE2 | Fire & Rescue Dist #2 N Whidbey GEN | 0.5475949600 | $534,202 | $534,202 | $292.53 | | |
| HOBOND | Hospital BOND | 0.1910887512 | $534,202 | $534,202 | $102.08 | | |
| HOGEN | Hospital GEN | 0.3902502903 | $534,202 | $534,202 | $208.47 | | |
| CE | County Current Expense | 0.3708482477 | $534,202 | $534,202 | $198.11 | | |
| CR | County Roads | 0.4584763726 | $534,202 | $534,202 | $244.92 | | |
| ISLANDEMS | Hospital GEN (EMS) | 0.5000000000 | $534,202 | $534,202 | $267.10 | | |
| LIB | Library Sno-Isle GEN | 0.3153421757 | $534,202 | $534,202 | $168.46 | | |
| LIBCAP | Library Sno-Isle BOND (Cap Fac Imp Area) | 0.0543427938 | $534,202 | $534,202 | $29.03 | | |
| POCOUP | Port of Coupeville GEN | 0.1093371703 | $534,202 | $534,202 | $58.41 | | |
| POCOUPIDD | Port of Coupeville IDD | 0.3409740022 | $534,202 | $534,202 | $182.15 | | |
| COUPSDTECH | School 204 CP (TECH) | 0.7545480007 | $534,202 | $534,202 | $403.08 | | |
| SCH204MO | School 204 Enrichment | 0.6716186034 | $534,202 | $534,202 | $358.78 | | |
| ST | State School | 1.3035497053 | $534,202 | $534,202 | $696.36 | | |
| ST2 | State School Part 2 | 0.8169543533 | $534,202 | $534,202 | $436.42 | | |
| | Total Tax Rate: | 6.8660346289 | | | | | |
| | | | | Taxes w/Current Exemptions: | $3,667.86 | | |
| | | | | Taxes w/o Exemptions: | $3,667.86 | | |
Improvement / Building
| Improvement #1: | RESIDENTIAL | State Code: | Y | 1601.3 sqft | Value: | $259,202 |
| Bathrooms: | 2 | Bedrooms: | 2 | | Ceiling: | DRYWALL PAINTED | Cooling: | HEAT PUMP/CONV/V | | Exterior Wall/Cover: | VINYL | Floor Covering: | CARPET/VINYL 80-20 | | Floor Structure: | WOOD W/SUBFLOOR | Foundation: | CONCRETE | | Interior Finish: | DRYWALL PAINT | Plumbing Fixture Cnt: | 9 | | Roof Slope: | 4" IN 12" | Roof Structure/Cover: | CJ ASPHALT |
|
| | Type | Description | Class CD | Sub Class CD | Year Built | Area |
| | BAS | BASE/MAIN FLOOR | 3 | 0 | 1986 | 1601.3 |
| | AGR | ATTACHED GARAGE | 3 | 0 | 1986 | 245.0 |
| | OWP | OPEN WOOD PORCH W/STEPS | 3 | 0 | 1986 | 440.0 |
Sketch
Property Image
Land
| 1 | 14 | SQ (08001-12000) | 0.3626 | 15794.86 | 0.00 | 0.00 | 1.00 | $275,000 | $0 |
Roll Value History
| 2026 | N/A | N/A | N/A | N/A | N/A |
| 2025 | $259,202 | $275,000 | $0 | $534,202 | $534,202 |
| 2024 | $255,847 | $275,000 | $0 | $530,847 | $530,847 |
| 2023 | $254,697 | $275,000 | $0 | $529,697 | $529,697 |
| 2022 | $233,617 | $260,000 | $0 | $493,617 | $493,617 |
| 2021 | $205,736 | $175,000 | $0 | $380,736 | $380,736 |
| 2020 | $200,682 | $160,000 | $0 | $360,682 | $360,682 |
| 2019 | $146,911 | $185,000 | $0 | $331,911 | $331,911 |
| 2018 | $124,389 | $165,000 | $0 | $289,389 | $289,389 |
| 2017 | $124,718 | $140,000 | $0 | $264,718 | $264,718 |
| 2016 | $126,404 | $125,000 | $0 | $251,404 | $251,404 |
| 2015 | $128,089 | $125,000 | $0 | $253,089 | $253,089 |
| 2014 | $129,774 | $85,000 | $0 | $214,774 | $214,774 |
| 2013 | $131,461 | $75,000 | $0 | $206,461 | $206,461 |
| 2012 | $126,768 | $85,000 | $0 | $211,768 | $211,768 |
| 2011 | $128,493 | $100,000 | $0 | $228,493 | $228,493 |
| 2010 | $134,593 | $100,000 | $0 | $234,593 | $234,593 |
| 2009 | $140,517 | $138,000 | $0 | $278,517 | $278,517 |
| 2008 | $142,342 | $155,000 | $0 | $297,342 | $297,342 |
| 2007 | $144,168 | $155,000 | $0 | $299,168 | $299,168 |
Deed and Sales History
| 1 | 08/04/2016 | TRUSTEED | Trustee's Deed | RYBIJ TRUSTEE, JOHN H | RYBIJ, JOHN H | | | $0.00 | 25559 | 4404582 |
| 2 | 05/02/2011 | WD | Warranty Deed | RYBIJ, JOHN | RYBIJ TRUSTEE, JOHN H | | | $0.00 | 4816 | 4297309 |
| 3 | 05/01/1997 | WD | Warranty Deed | ALLEY-SMITH, JOY | RYBIJ, JOHN & | | | $154,000.00 | 71482 | 97006792 |
| 4 | 03/01/1997 | ESTSEPPROP | Establish Separate Property | SIMMONS, RICHARD P | ALLEY-SMITH, JOY | | | $0.00 | 70892 | 97004108 |
| 5 | 03/01/1993 | WD | Warranty Deed | REICHARD, FLOYD E | SIMMONS, RICHARD P | | | $134,500.00 | 30826 | 93004287 |
| 6 | 04/01/1986 | OTHER | Other - Misc. Documents | REICHARD, FLOYD E | REICHARD, FLOYD E | | | $0.00 | 61564 | 86003891 |
| 7 | 06/01/1985 | WD | Warranty Deed | SIERRA, | REICHARD, FLOYD E | | | $4,750.00 | 51720 | 85006846 |
| 8 | 01/01/1900 | OTHER | Other - Misc. Documents | Unknown | SIERRA, | | | $0.00 | 0 | 0 |
Payout Agreement
| No payout information available.. |