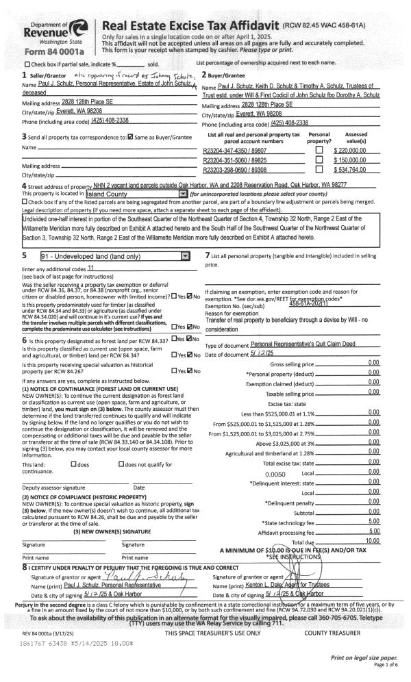
Property
Account |
| Property ID: | 394488 | Abbreviated Legal Description: | SIERRA 3 LOTS 2 & 3 BLK 29 COMB 6/95 |
| Geographic ID: | S8160-03-29003-0 | Agent Code: | |
| Type: | Real | | |
| Tax Area: | 330 - APPRAISER-Cpvl Schl Dist, Special Dist, improved & less than 1 acre | Land Use Code | 11 |
| Open Space: | N | DFL | N |
| Historic Property: | N | Remodel Property: | N |
| Multi-Family Redevelopment: | N | | |
| Township: | | Section: | |
| Range: | |
Location |
| Address: | 2608 LA MESA DR COUPEVILLE, WA 98239 | Mapsco: | |
| Neighborhood: | Cycle 2 | Map ID: | 9 |
| Neighborhood CD: | 2 |
Owner |
| Name: | MURPHY, JOSHUA A | Owner ID: | 306104 |
| Mailing Address: | STEFFANI E. MURPHY 2608 LA MESA DR COUPEVILLE, WA 98239 | % Ownership: | 100.0000000000% |
| | | Exemptions: | |
Taxes and Assessment Details
Values
| (+) Improvement Homesite Value: | + | $0 | |
| (+) Improvement Non-Homesite Value: | + | $261,501 | |
| (+) Land Homesite Value: | + | $0 | |
| (+) Land Non-Homesite Value: | + | $310,000 | |
| (+) Curr Use (HS): | + | $0 | $0 |
| (+) Curr Use (NHS): | + | $0 | $0 |
| | | -------------------------- | |
| (=) Market Value: | = | $571,501 | |
| (–) Productivity Loss: | – | $0 | |
| | | -------------------------- | |
| (=) Subtotal: | = | $571,501 | |
| (+) Senior Appraised Value: | + | $0 | |
| (+) Non-Senior Appraised Value: | + | $571,501 | |
| | | -------------------------- | |
| (=) Total Appraised Value: | = | $571,501 | |
| (–) Senior Exemption Loss: | – | $0 | |
| (–) Exemption Loss: | – | $0 | |
| | | -------------------------- | |
| (=) Taxable Value: | = | $571,501 | |
Taxing Jurisdiction
| Owner: | MURPHY, JOSHUA A | | |
| % Ownership: | 100.0000000000% | | |
| Total Value: | $571,501 | | |
| Tax Area: | 330 - APPRAISER-Cpvl Schl Dist, Special Dist, improved & less than 1 acre |
| CF | Conservation Futures | 0.0316035091 | $571,501 | $571,501 | $18.06 | | |
| CEM2 | Cemetery #2 | 0.0095056933 | $571,501 | $571,501 | $5.43 | | |
| FIRE2 | Fire & Rescue Dist #2 N Whidbey GEN | 0.5475949600 | $571,501 | $571,501 | $312.95 | | |
| HOBOND | Hospital BOND | 0.1910887512 | $571,501 | $571,501 | $109.21 | | |
| HOGEN | Hospital GEN | 0.3902502903 | $571,501 | $571,501 | $223.03 | | |
| CE | County Current Expense | 0.3708482477 | $571,501 | $571,501 | $211.94 | | |
| CR | County Roads | 0.4584763726 | $571,501 | $571,501 | $262.02 | | |
| ISLANDEMS | Hospital GEN (EMS) | 0.5000000000 | $571,501 | $571,501 | $285.75 | | |
| LIB | Library Sno-Isle GEN | 0.3153421757 | $571,501 | $571,501 | $180.22 | | |
| LIBCAP | Library Sno-Isle BOND (Cap Fac Imp Area) | 0.0543427938 | $571,501 | $571,501 | $31.06 | | |
| POCOUP | Port of Coupeville GEN | 0.1093371703 | $571,501 | $571,501 | $62.49 | | |
| POCOUPIDD | Port of Coupeville IDD | 0.3409740022 | $571,501 | $571,501 | $194.87 | | |
| COUPSDTECH | School 204 CP (TECH) | 0.7545480007 | $571,501 | $571,501 | $431.22 | | |
| SCH204MO | School 204 Enrichment | 0.6716186034 | $571,501 | $571,501 | $383.83 | | |
| ST | State School | 1.3035497053 | $571,501 | $571,501 | $744.98 | | |
| ST2 | State School Part 2 | 0.8169543533 | $571,501 | $571,501 | $466.89 | | |
| | Total Tax Rate: | 6.8660346289 | | | | | |
| | | | | Taxes w/Current Exemptions: | $3,923.95 | | |
| | | | | Taxes w/o Exemptions: | $3,923.95 | | |
Improvement / Building
| Improvement #1: | RESIDENTIAL | State Code: | Y | 1545.8 sqft | Value: | $261,501 |
| Bathrooms: | 1.5 | Bedrooms: | 3 | | Ceiling: | DRYWALL PAINTED | Cooling: | HEAT PUMP/CONV/V | | Exterior Wall/Cover: | PLY/HARDBOARD T-111 | Floor Covering: | VINYL 100% | | Floor Structure: | WOOD W/SUBFLOOR | Foundation: | CONCRETE | | Interior Finish: | DRYWALL PAINT | Plumbing Fixture Cnt: | 8 | | Roof Slope: | 3" IN 12" | Roof Structure/Cover: | CJ ASPHALT |
|
| | Type | Description | Class CD | Sub Class CD | Year Built | Area |
| | BAS | BASE/MAIN FLOOR | 3 | 0 | 1988 | 1545.8 |
| | AGR | ATTACHED GARAGE | 3 | 0 | 1988 | 752.4 |
| | OWP | OPEN WOOD PORCH W/STEPS | 3 | 0 | 1988 | 96.0 |
| | ENP | ENCLOSED PORCH | 3 | 0 | 1988 | 60.0 |
Sketch
Property Image
Land
| 1 | 15 | SQ (12001-21780) | 0.3641 | 15860.20 | 0.00 | 0.00 | 1.00 | $310,000 | $0 |
Roll Value History
| 2026 | N/A | N/A | N/A | N/A | N/A |
| 2025 | $261,501 | $310,000 | $0 | $571,501 | $571,501 |
| 2024 | $251,075 | $275,000 | $0 | $526,075 | $526,075 |
| 2023 | $254,551 | $275,000 | $0 | $529,551 | $529,551 |
| 2022 | $228,088 | $260,000 | $0 | $488,088 | $488,088 |
| 2021 | $201,007 | $175,000 | $0 | $376,007 | $376,007 |
| 2020 | $196,269 | $160,000 | $0 | $356,269 | $356,269 |
| 2019 | $143,998 | $185,000 | $0 | $328,998 | $328,998 |
| 2018 | $127,098 | $165,000 | $0 | $292,098 | $292,098 |
| 2017 | $127,489 | $140,000 | $0 | $267,489 | $267,489 |
| 2016 | $129,260 | $125,000 | $0 | $254,260 | $254,260 |
| 2015 | $131,031 | $125,000 | $0 | $256,031 | $256,031 |
| 2014 | $132,802 | $85,000 | $0 | $217,802 | $217,802 |
| 2013 | $134,572 | $75,000 | $0 | $209,572 | $209,572 |
| 2012 | $136,529 | $85,000 | $0 | $221,529 | $221,529 |
| 2011 | $138,302 | $100,000 | $0 | $238,302 | $238,302 |
| 2010 | $144,518 | $100,000 | $0 | $244,518 | $244,518 |
| 2009 | $150,795 | $138,000 | $0 | $288,795 | $288,795 |
| 2008 | $151,468 | $155,000 | $0 | $306,468 | $306,468 |
| 2007 | $153,332 | $155,000 | $0 | $308,332 | $308,332 |
Deed and Sales History
| 1 | 09/22/2022 | WD | Warranty Deed | LANG, CHARLES A / ELEANOR J | MURPHY, JOSHUA A | | | $550,000.00 | 54636 | 4551609 |
| 2 | 06/01/1995 | OTHER | Other - Misc. Documents | LANG, CHARLES A | LANG, CHARLES A | | | $0.00 | 66486 | 95009513 |
| 3 | 04/01/1994 | WD | Warranty Deed | LANG, CHARLES A | LANG, CHARLES A | | | $104,990.00 | 41380 | 94008457 |
| 4 | 04/01/1994 | WD | Warranty Deed | JUSTUS, BETTY I | LANG, CHARLES A | | | $116,990.00 | 41380 | 94008457 |
| 5 | 08/01/1987 | QCD | Quit Claim Deed | JUSTUS, BETTY I | JUSTUS, BETTY I | | | $0.00 | 72382 | 87010917 |
| 6 | 07/01/1987 | WD | Warranty Deed | RULLMAN, LLOYD R | JUSTUS, BETTY I | | | $10,500.00 | 72280 | 87010326 |
| 7 | 09/01/1985 | WD | Warranty Deed | LEHMAN, P B | RULLMAN, LLOYD R | | | $10,500.00 | 52584 | 85010225 |
| 8 | 08/01/1985 | QCD | Quit Claim Deed | LEHMAN, P B | LEHMAN, P B | | | $0.00 | 52583 | 85010224 |
| 9 | 01/01/1900 | OTHER | Other - Misc. Documents | Unknown | LEHMAN, P B | | | $0.00 | 0 | 0 |
Payout Agreement
| No payout information available.. |