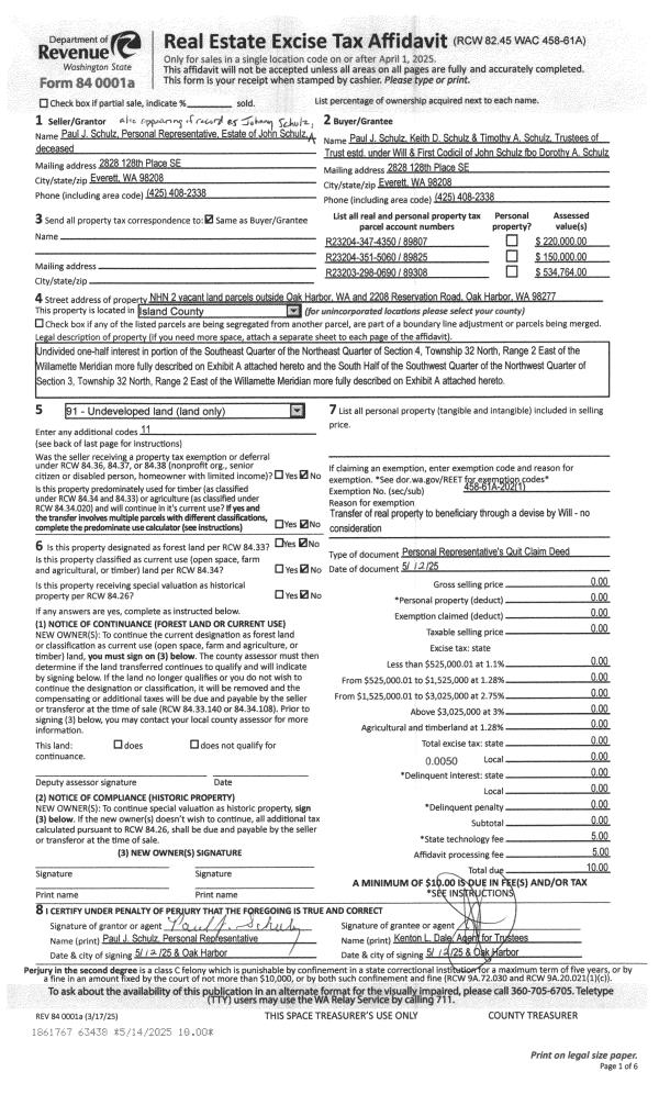
Property
Account |
| Property ID: | 394497 | Abbreviated Legal Description: | SIERRA 3 LOTS 4 & 5 BLK 29 |
| Geographic ID: | S8160-03-29004-0 | Agent Code: | |
| Type: | Real | | |
| Tax Area: | 330 - APPRAISER-Cpvl Schl Dist, Special Dist, improved & less than 1 acre | Land Use Code | 11 |
| Open Space: | N | DFL | N |
| Historic Property: | N | Remodel Property: | N |
| Multi-Family Redevelopment: | N | | |
| Township: | | Section: | |
| Range: | |
Location |
| Address: | 2612 LA MESA DR COUPEVILLE, WA 98239 | Mapsco: | |
| Neighborhood: | Cycle 2 | Map ID: | 9 |
| Neighborhood CD: | 2 |
Owner |
| Name: | ANDERSON, MICHAEL | Owner ID: | 190958 |
| Mailing Address: | 2612 LA MESA DR COUPEVILLE, WA 98239-3021 | % Ownership: | 100.0000000000% |
| | | Exemptions: | |
Taxes and Assessment Details
Values
| (+) Improvement Homesite Value: | + | $0 | |
| (+) Improvement Non-Homesite Value: | + | $190,262 | |
| (+) Land Homesite Value: | + | $0 | |
| (+) Land Non-Homesite Value: | + | $310,000 | |
| (+) Curr Use (HS): | + | $0 | $0 |
| (+) Curr Use (NHS): | + | $0 | $0 |
| | | -------------------------- | |
| (=) Market Value: | = | $500,262 | |
| (–) Productivity Loss: | – | $0 | |
| | | -------------------------- | |
| (=) Subtotal: | = | $500,262 | |
| (+) Senior Appraised Value: | + | $0 | |
| (+) Non-Senior Appraised Value: | + | $500,262 | |
| | | -------------------------- | |
| (=) Total Appraised Value: | = | $500,262 | |
| (–) Senior Exemption Loss: | – | $0 | |
| (–) Exemption Loss: | – | $0 | |
| | | -------------------------- | |
| (=) Taxable Value: | = | $500,262 | |
Taxing Jurisdiction
| Owner: | ANDERSON, MICHAEL | | |
| % Ownership: | 100.0000000000% | | |
| Total Value: | $500,262 | | |
| Tax Area: | 330 - APPRAISER-Cpvl Schl Dist, Special Dist, improved & less than 1 acre |
| CF | Conservation Futures | 0.0316035091 | $500,262 | $500,262 | $15.81 | | |
| CEM2 | Cemetery #2 | 0.0095056933 | $500,262 | $500,262 | $4.76 | | |
| FIRE2 | Fire & Rescue Dist #2 N Whidbey GEN | 0.5475949600 | $500,262 | $500,262 | $273.94 | | |
| HOBOND | Hospital BOND | 0.1910887512 | $500,262 | $500,262 | $95.59 | | |
| HOGEN | Hospital GEN | 0.3902502903 | $500,262 | $500,262 | $195.23 | | |
| CE | County Current Expense | 0.3708482477 | $500,262 | $500,262 | $185.52 | | |
| CR | County Roads | 0.4584763726 | $500,262 | $500,262 | $229.36 | | |
| ISLANDEMS | Hospital GEN (EMS) | 0.5000000000 | $500,262 | $500,262 | $250.13 | | |
| LIB | Library Sno-Isle GEN | 0.3153421757 | $500,262 | $500,262 | $157.75 | | |
| LIBCAP | Library Sno-Isle BOND (Cap Fac Imp Area) | 0.0543427938 | $500,262 | $500,262 | $27.19 | | |
| POCOUP | Port of Coupeville GEN | 0.1093371703 | $500,262 | $500,262 | $54.70 | | |
| POCOUPIDD | Port of Coupeville IDD | 0.3409740022 | $500,262 | $500,262 | $170.58 | | |
| COUPSDTECH | School 204 CP (TECH) | 0.7545480007 | $500,262 | $500,262 | $377.47 | | |
| SCH204MO | School 204 Enrichment | 0.6716186034 | $500,262 | $500,262 | $335.99 | | |
| ST | State School | 1.3035497053 | $500,262 | $500,262 | $652.12 | | |
| ST2 | State School Part 2 | 0.8169543533 | $500,262 | $500,262 | $408.69 | | |
| | Total Tax Rate: | 6.8660346289 | | | | | |
| | | | | Taxes w/Current Exemptions: | $3,434.83 | | |
| | | | | Taxes w/o Exemptions: | $3,434.83 | | |
Improvement / Building
| Improvement #1: | RESIDENTIAL | State Code: | Y | 960.0 sqft | Value: | $190,262 |
| Bathrooms: | 2 | Bedrooms: | 2 | | Ceiling: | DRYWALL PAINTED | Exterior Wall/Cover: | CEMENT FIBER | | Floor Covering: | CARPET/VINYL 80-20 | Floor Structure: | WOOD W/SUBFLOOR | | Foundation: | CONCRETE | Heating: | WALL HEAT ELECTRIC | | Interior Finish: | DRYWALL PAINT | Plumbing Fixture Cnt: | 10 | | Roof Slope: | 4" IN 12" | Roof Structure/Cover: | CJ ASPHALT |
|
| | Type | Description | Class CD | Sub Class CD | Year Built | Area |
| | BAS | BASE/MAIN FLOOR | 3 | 0 | 1985 | 960.0 |
| | OWP | OPEN WOOD PORCH W/STEPS | 3 | 0 | 1985 | 642.5 |
Sketch
Property Image
Land
| 1 | 15 | SQ (12001-21780) | 0.3641 | 15860.20 | 0.00 | 0.00 | 1.00 | $310,000 | $0 |
Roll Value History
| 2026 | N/A | N/A | N/A | N/A | N/A |
| 2025 | $190,262 | $310,000 | $0 | $500,262 | $500,262 |
| 2024 | $187,862 | $275,000 | $0 | $462,862 | $462,862 |
| 2023 | $198,716 | $275,000 | $0 | $473,716 | $473,716 |
| 2022 | $182,211 | $260,000 | $0 | $442,211 | $442,211 |
| 2021 | $160,409 | $175,000 | $0 | $335,409 | $335,409 |
| 2020 | $155,511 | $160,000 | $0 | $315,511 | $315,511 |
| 2019 | $107,712 | $185,000 | $0 | $292,712 | $292,712 |
| 2018 | $88,350 | $165,000 | $0 | $253,350 | $253,350 |
| 2017 | $88,943 | $140,000 | $0 | $228,943 | $228,943 |
| 2016 | $90,141 | $125,000 | $0 | $215,141 | $215,141 |
| 2015 | $91,339 | $125,000 | $0 | $216,339 | $216,339 |
| 2014 | $92,537 | $85,000 | $0 | $177,537 | $177,537 |
| 2013 | $93,735 | $75,000 | $0 | $168,735 | $168,735 |
| 2012 | $96,853 | $85,000 | $0 | $181,853 | $181,853 |
| 2011 | $98,057 | $100,000 | $0 | $198,057 | $198,057 |
| 2010 | $103,471 | $100,000 | $0 | $203,471 | $203,471 |
| 2009 | $102,497 | $141,544 | $0 | $244,041 | $244,041 |
| 2008 | $96,556 | $155,000 | $0 | $251,556 | $251,556 |
| 2007 | $97,870 | $155,000 | $0 | $252,870 | $252,870 |
Deed and Sales History
| 1 | 08/28/2009 | BLA | DNU - Boundary Line Adjustment | ANDERSON, MICHAEL | ANDERSON, MICHAEL | | | $0.00 | 81359 | 4259185 |
| 2 | 06/08/2005 | ESTSEPPROP | Establish Separate Property | ANDERSON, MICHAEL | ANDERSON, MICHAEL | | | $0.00 | 52903 | 4138437 |
| 3 | 08/28/2003 | ESTSEPPROP | Establish Separate Property | ANDERSON, MICHAEL | ANDERSON, MICHAEL | | | $0.00 | 33825 | 4073002 |
| 4 | 08/28/2003 | WD | Warranty Deed | TAYLOR, WILLIAM E | ANDERSON, MICHAEL | | | $142,025.00 | 33822 | 4073000 |
| 5 | 04/01/1988 | WD | Warranty Deed | DOUGHERTY, CLARK E | TAYLOR, WILLIAM E | | | $55,000.00 | 81099 | 88004193 |
| 6 | 10/01/1983 | WD | Warranty Deed | FRY, MARY E | DOUGHERTY, CLARK E | | | $9,000.00 | 33149 | 416750 |
| 7 | 01/01/1900 | OTHER | Other - Misc. Documents | Unknown | FRY, MARY E | | | $0.00 | 0 | 0 |
Payout Agreement
| No payout information available.. |