Property
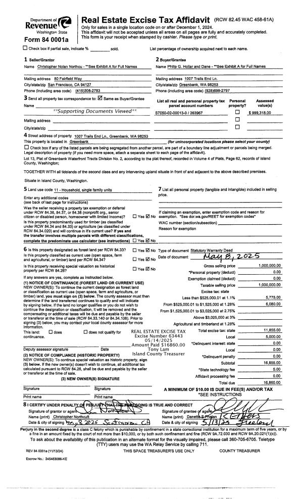
Account |
| Property ID: | 394558 | Abbreviated Legal Description: | SIERRA 3 LOTS 10 & 11 BLK 29 COMB 4/85 |
| Geographic ID: | S8160-03-29010-0 | Agent Code: | |
| Type: | Real | | |
| Tax Area: | 330 - APPRAISER-Cpvl Schl Dist, Special Dist, improved & less than 1 acre | Land Use Code | 11 |
| Open Space: | N | DFL | N |
| Historic Property: | N | Remodel Property: | N |
| Multi-Family Redevelopment: | N | | |
| Township: | | Section: | |
| Range: | |
Location |
| Address: | 2644 LA MESA DR COUPEVILLE, WA 98239 | Mapsco: | |
| Neighborhood: | Cycle 2 | Map ID: | 9 |
| Neighborhood CD: | 2 |
Owner |
| Name: | BRYSON, MARY A | Owner ID: | 291709 |
| Mailing Address: | 2644 LA MESA DR COUPEVILLE, WA 98239 | % Ownership: | 100.0000000000% |
| | | Exemptions: | |
Taxes and Assessment Details
Values
| (+) Improvement Homesite Value: | + | $0 | |
| (+) Improvement Non-Homesite Value: | + | $339,694 | |
| (+) Land Homesite Value: | + | $0 | |
| (+) Land Non-Homesite Value: | + | $310,000 | |
| (+) Curr Use (HS): | + | $0 | $0 |
| (+) Curr Use (NHS): | + | $0 | $0 |
| | | -------------------------- | |
| (=) Market Value: | = | $649,694 | |
| (–) Productivity Loss: | – | $0 | |
| | | -------------------------- | |
| (=) Subtotal: | = | $649,694 | |
| (+) Senior Appraised Value: | + | $0 | |
| (+) Non-Senior Appraised Value: | + | $649,694 | |
| | | -------------------------- | |
| (=) Total Appraised Value: | = | $649,694 | |
| (–) Senior Exemption Loss: | – | $0 | |
| (–) Exemption Loss: | – | $0 | |
| | | -------------------------- | |
| (=) Taxable Value: | = | $649,694 | |
Taxing Jurisdiction
| Owner: | BRYSON, MARY A | | |
| % Ownership: | 100.0000000000% | | |
| Total Value: | $649,694 | | |
| Tax Area: | 330 - APPRAISER-Cpvl Schl Dist, Special Dist, improved & less than 1 acre |
| CF | Conservation Futures | 0.0316035091 | $649,694 | $649,694 | $20.53 | | |
| CEM2 | Cemetery #2 | 0.0095056933 | $649,694 | $649,694 | $6.18 | | |
| FIRE2 | Fire & Rescue Dist #2 N Whidbey GEN | 0.5475949600 | $649,694 | $649,694 | $355.77 | | |
| HOBOND | Hospital BOND | 0.1910887512 | $649,694 | $649,694 | $124.15 | | |
| HOGEN | Hospital GEN | 0.3902502903 | $649,694 | $649,694 | $253.54 | | |
| CE | County Current Expense | 0.3708482477 | $649,694 | $649,694 | $240.94 | | |
| CR | County Roads | 0.4584763726 | $649,694 | $649,694 | $297.87 | | |
| ISLANDEMS | Hospital GEN (EMS) | 0.5000000000 | $649,694 | $649,694 | $324.85 | | |
| LIB | Library Sno-Isle GEN | 0.3153421757 | $649,694 | $649,694 | $204.88 | | |
| LIBCAP | Library Sno-Isle BOND (Cap Fac Imp Area) | 0.0543427938 | $649,694 | $649,694 | $35.31 | | |
| POCOUP | Port of Coupeville GEN | 0.1093371703 | $649,694 | $649,694 | $71.04 | | |
| POCOUPIDD | Port of Coupeville IDD | 0.3409740022 | $649,694 | $649,694 | $221.53 | | |
| COUPSDTECH | School 204 CP (TECH) | 0.7545480007 | $649,694 | $649,694 | $490.23 | | |
| SCH204MO | School 204 Enrichment | 0.6716186034 | $649,694 | $649,694 | $436.35 | | |
| ST | State School | 1.3035497053 | $649,694 | $649,694 | $846.91 | | |
| ST2 | State School Part 2 | 0.8169543533 | $649,694 | $649,694 | $530.77 | | |
| | Total Tax Rate: | 6.8660346289 | | | | | |
| | | | | Taxes w/Current Exemptions: | $4,460.85 | | |
| | | | | Taxes w/o Exemptions: | $4,460.85 | | |
Improvement / Building
| Improvement #1: | RESIDENTIAL | State Code: | Y | 2009.0 sqft | Value: | $339,694 |
| Bathrooms: | 2 | Bedrooms: | 3 | | Ceiling: | DRYWALL PAINTED | Cooling: | HEAT PUMP/CONV/V | | Exterior Wall/Cover: | PLY/HARDBOARD T-111 | Floor Covering: | VINYL/HARDWOOD 80-20 | | Floor Structure: | WOOD W/SUBFLOOR | Foundation: | CONCRETE | | Interior Finish: | DRYWALL PAINT | Plumbing Fixture Cnt: | 9 | | Roof Slope: | 4" IN 12" | Roof Structure/Cover: | CJ ASPHALT |
|
| | Type | Description | Class CD | Sub Class CD | Year Built | Area |
| | BAS | BASE/MAIN FLOOR | 3 | 0 | 1985 | 2009.0 |
| | OP3 | OPEN PORCH W/ROOF | 3 | 0 | 1985 | 198.0 |
| | AGR | ATTACHED GARAGE | 3 | 0 | 1985 | 644.0 |
Sketch
Property Image
Land
| 1 | 15 | SQ (12001-21780) | 0.3641 | 15860.20 | 0.00 | 0.00 | 1.00 | $310,000 | $0 |
Roll Value History
| 2026 | N/A | N/A | N/A | N/A | N/A |
| 2025 | $339,694 | $310,000 | $0 | $649,694 | $649,694 |
| 2024 | $351,795 | $275,000 | $0 | $626,795 | $626,795 |
| 2023 | $356,125 | $275,000 | $0 | $631,125 | $631,125 |
| 2022 | $326,382 | $260,000 | $0 | $586,382 | $586,382 |
| 2021 | $287,218 | $175,000 | $0 | $462,218 | $462,218 |
| 2020 | $227,377 | $160,000 | $0 | $387,377 | $387,377 |
| 2019 | $175,198 | $185,000 | $0 | $360,198 | $360,198 |
| 2018 | $158,669 | $165,000 | $0 | $323,669 | $323,669 |
| 2017 | $159,780 | $140,000 | $0 | $299,780 | $299,780 |
| 2016 | $162,029 | $125,000 | $0 | $287,029 | $287,029 |
| 2015 | $164,280 | $125,000 | $0 | $289,280 | $289,280 |
| 2014 | $166,530 | $85,000 | $0 | $251,530 | $251,530 |
| 2013 | $168,781 | $75,000 | $0 | $243,781 | $243,781 |
| 2012 | $169,788 | $85,000 | $0 | $254,788 | $254,788 |
| 2011 | $172,083 | $100,000 | $0 | $272,083 | $272,083 |
| 2010 | $178,993 | $100,000 | $0 | $278,993 | $278,993 |
| 2009 | $186,810 | $138,000 | $0 | $324,810 | $324,810 |
| 2008 | $189,140 | $155,000 | $0 | $344,140 | $344,140 |
| 2007 | $191,471 | $155,000 | $0 | $346,471 | $346,471 |
Deed and Sales History
| 1 | 09/09/2019 | QCD | Quit Claim Deed | BRYSON, BRUCE R | BRYSON, MARY A | | | $0.00 | 40178 | 4471030 |
| 2 | 09/03/2019 | WD | Warranty Deed | JOHNSON, WAINO W | BRYSON, MARY A | | | $390,000.00 | 40177 | 4471029 |
|   | |
| 3 | 04/01/1985 | WD | Warranty Deed | JOHNSON, WAINO W | JOHNSON, WAINO W | | | $10,000.00 | 50813 | 0 |
| 4 | 04/01/1985 | OTHER | Other - Misc. Documents | HANSON, FLORINE Z | JOHNSON, WAINO W | | | $0.00 | 61115 | 85003384 |
| 5 | 02/01/1979 | PACD | Purchaser's Assignment | HANSON, NORMAN C | HANSON, FLORINE Z | | | $0.00 | 58646 | 0 |
| 6 | 01/01/1900 | OTHER | Other - Misc. Documents | Unknown | HANSON, NORMAN C | | | $0.00 | 0 | 0 |
Payout Agreement
| No payout information available.. |