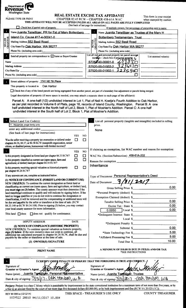
Property
Account |
| Property ID: | 394825 | Abbreviated Legal Description: | SIERRA PARK LOT 12 |
| Geographic ID: | S8165-00-00012-0 | Agent Code: | |
| Type: | Real | | |
| Tax Area: | 540 - APPRAISER-Stan/Cam Schl Dist, Special Dist, improved & less than 1 acre | Land Use Code | 11 |
| Open Space: | N | DFL | N |
| Historic Property: | N | Remodel Property: | N |
| Multi-Family Redevelopment: | N | | |
| Township: | | Section: | |
| Range: | |
Location |
| Address: | 1499 SIERRA PARK LN CAMANO ISLAND, WA 98282 | Mapsco: | |
| Neighborhood: | 58RecamS-East Cam | Map ID: | 866 |
| Neighborhood CD: | 58RecamS |
Owner |
| Name: | CINKOVICH-WILSON, SANDRA | Owner ID: | 279674 |
| Mailing Address: | 1499 SIERRA PARK LN CAMANO ISLAND, WA 98282 | % Ownership: | 100.0000000000% |
| | | Exemptions: | |
Taxes and Assessment Details
Values
| (+) Improvement Homesite Value: | + | $0 | |
| (+) Improvement Non-Homesite Value: | + | $203,507 | |
| (+) Land Homesite Value: | + | $0 | |
| (+) Land Non-Homesite Value: | + | $225,000 | |
| (+) Curr Use (HS): | + | $0 | $0 |
| (+) Curr Use (NHS): | + | $0 | $0 |
| | | -------------------------- | |
| (=) Market Value: | = | $428,507 | |
| (–) Productivity Loss: | – | $0 | |
| | | -------------------------- | |
| (=) Subtotal: | = | $428,507 | |
| (+) Senior Appraised Value: | + | $0 | |
| (+) Non-Senior Appraised Value: | + | $428,507 | |
| | | -------------------------- | |
| (=) Total Appraised Value: | = | $428,507 | |
| (–) Senior Exemption Loss: | – | $0 | |
| (–) Exemption Loss: | – | $0 | |
| | | -------------------------- | |
| (=) Taxable Value: | = | $428,507 | |
Taxing Jurisdiction
| Owner: | CINKOVICH-WILSON, SANDRA | | |
| % Ownership: | 100.0000000000% | | |
| Total Value: | $428,507 | | |
| Tax Area: | 540 - APPRAISER-Stan/Cam Schl Dist, Special Dist, improved & less than 1 acre |
| CF | Conservation Futures | 0.0316035091 | $428,507 | $428,507 | $13.54 | | |
| EMS1 | Fire & Rescue Dist #1 Camano GEN (EMS) | 0.3677864386 | $428,507 | $428,507 | $157.60 | | |
| FIRE1 | Fire & Rescue Dist #1 Camano GEN | 1.2502910536 | $428,507 | $428,507 | $535.76 | | |
| FIRE1BOND | Fire & Rescue Dist #1 Camano BOND | 0.1570001679 | $428,507 | $428,507 | $67.28 | | |
| CE | County Current Expense | 0.3708482477 | $428,507 | $428,507 | $158.91 | | |
| CR | County Roads | 0.4584763726 | $428,507 | $428,507 | $196.46 | | |
| LCIB | Library Sno-Isle BOND (Camano Island) | 0.0396325772 | $428,507 | $428,507 | $16.98 | | |
| LIB | Library Sno-Isle GEN | 0.3153421757 | $428,507 | $428,507 | $135.13 | | |
| SCH205_401 | School 205-401 Enrichment | 1.2698420524 | $428,507 | $428,507 | $544.14 | | |
| SCH205BOND | School 205-401 BOND | 0.9396497583 | $428,507 | $428,507 | $402.65 | | |
| ST | State School | 1.3035497053 | $428,507 | $428,507 | $558.58 | | |
| ST2 | State School Part 2 | 0.8169543533 | $428,507 | $428,507 | $350.07 | | |
| | Total Tax Rate: | 7.3209764117 | | | | | |
| | | | | Taxes w/Current Exemptions: | $3,137.10 | | |
| | | | | Taxes w/o Exemptions: | $3,137.10 | | |
Improvement / Building
| Improvement #1: | RESIDENTIAL | State Code: | Y | 1000.0 sqft | Value: | $203,507 |
| Bathrooms: | 1.5 | Bedrooms: | 2 | | Ceiling: | DRYWALL PAINTED | Exterior Wall/Cover: | WOOD SIDING | | Floor Covering: | HARDWOOD/CARP 60-40 | Floor Structure: | WOOD W/SUBFLOOR | | Foundation: | CONCRETE | Heating: | WALL HEAT ELECTRIC | | Interior Finish: | DRYWALL PAINT | Plumbing Fixture Cnt: | 8 | | Roof Slope: | 6" IN 12" | Roof Structure/Cover: | CJ ASPHALT |
|
| | Type | Description | Class CD | Sub Class CD | Year Built | Area |
| | BAS | BASE/MAIN FLOOR | 3 | 0 | 1997 | 1000.0 |
| | OWP | OPEN WOOD PORCH W/STEPS | 3 | 0 | 1997 | 70.5 |
| | OWR | OPEN WOOD PORCH W/STEPS/ROOF | 3 | 0 | 1997 | 275.0 |
| | OCP | OPEN CARPORT | 3 | 0 | 1997 | 864.0 |
Sketch
Property Image
Land
| 1 | 14 | SQ (08001-12000) | 0.0000 | 0.00 | 0.00 | 0.00 | 1.00 | $225,000 | $0 |
Roll Value History
| 2026 | N/A | N/A | N/A | N/A | N/A |
| 2025 | $203,507 | $225,000 | $0 | $428,507 | $428,507 |
| 2024 | $206,044 | $220,000 | $0 | $426,044 | $426,044 |
| 2023 | $208,579 | $220,000 | $0 | $428,579 | $428,579 |
| 2022 | $191,167 | $200,000 | $0 | $391,167 | $391,167 |
| 2021 | $155,901 | $140,000 | $0 | $295,901 | $295,901 |
| 2020 | $151,680 | $110,000 | $0 | $261,680 | $261,680 |
| 2019 | $106,461 | $140,000 | $0 | $246,461 | $246,461 |
| 2018 | $106,785 | $130,000 | $0 | $236,785 | $236,785 |
| 2017 | $107,443 | $110,000 | $0 | $217,443 | $217,443 |
| 2016 | $108,737 | $75,000 | $0 | $183,737 | $183,737 |
| 2015 | $94,180 | $50,000 | $0 | $144,180 | $144,180 |
| 2014 | $95,278 | $50,000 | $0 | $145,278 | $145,278 |
| 2013 | $96,377 | $50,000 | $0 | $146,377 | $146,377 |
| 2012 | $97,475 | $66,400 | $0 | $163,875 | $163,875 |
| 2011 | $98,573 | $83,000 | $0 | $181,573 | $181,573 |
| 2010 | $103,285 | $83,000 | $0 | $186,285 | $186,285 |
| 2009 | $102,463 | $80,000 | $0 | $182,463 | $182,463 |
| 2008 | $103,814 | $78,750 | $0 | $182,564 | $182,564 |
| 2007 | $105,136 | $78,750 | $0 | $183,886 | $183,886 |
Deed and Sales History
| 1 | 04/25/2017 | WD | Warranty Deed | MORAN, CHRISTOPHER M | CINKOVICH-WILSON, SANDRA | | | $175,000.00 | 29074 | 4421582 |
| 2 | 12/12/2012 | WD | Warranty Deed | FEDERAL NATIONAL MORTGAGE ASSOCIATION | MORAN, CHRISTOPHER M | | | $133,000.00 | 9782 | 4329389 |
| 3 | 03/27/2012 | TRUSTEED | Trustee's Deed | CISNEROS III, JOE M | FEDERAL NATIONAL MORTGAGE ASSOCIATION | | | $215,863.00 | 7253 | 4312628 |
| 4 | 01/05/2007 | WD | Warranty Deed | MILLER, DONALD D | CISNEROS III, JOE M | | | $249,995.00 | 70047 | 4191043 |
| 5 | 07/19/2006 | WD | Warranty Deed | DAVIS, ANGELA M | MILLER, DONALD D | | | $155,000.00 | 63206 | 4177139 |
| 6 | 01/04/2002 | WD | Warranty Deed | ELLSWORTH, ROBERT A | DAVIS, ANGELA M | | | $108,500.00 | 20119 | 4007923 |
| 7 | 03/01/1998 | WD | Warranty Deed | BENCE, ROBERT F | ELLSWORTH, ROBERT A | | | $80,000.00 | 80763 | 98004246 |
| 8 | 08/01/1995 | WD | Warranty Deed | LAITENBERGER, ROLF & | BENCE, ROBERT F | | | $26,500.00 | 52850 | 95013172 |
| 9 | 07/01/1990 | WD | Warranty Deed | LAITENBERGER, ROLF & | LAITENBERGER, ROLF & | | | $25,700.00 | 4513 | 90014845 |
| 10 | 07/01/1990 | WD | Warranty Deed | BERGMANN, PHILIP J | LAITENBERGER, ROLF & | | | $25,700.00 | 4513 | 90014845 |
| 11 | 10/01/1984 | WD | Warranty Deed | SCHMIDT, ELDON R | BERGMANN, PHILIP J | | | $7,000.00 | 43098 | 84004810 |
| 12 | 01/01/1984 | 2 | DNU - Superior Court Case | GLONEK, VICTOR O | SCHMIDT, ELDON R | | | $0.00 | 60881 | 0 |
| 13 | 11/01/1978 | OTHER | Other - Misc. Documents | Unknown | GLONEK, VICTOR O | | | $12,500.00 | 85732 | 343497 |
Payout Agreement
| No payout information available.. |