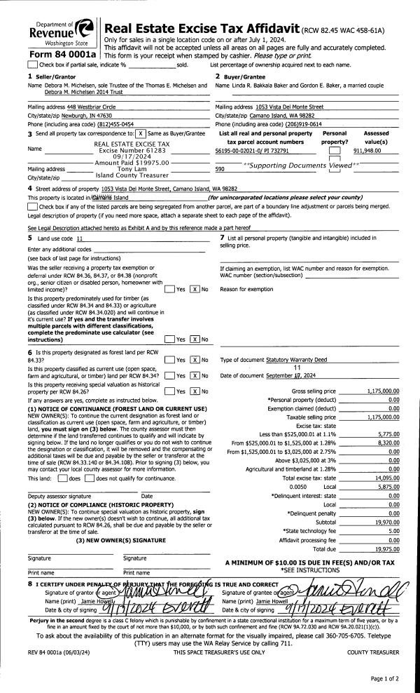
Property
Account |
| Property ID: | 394852 | Abbreviated Legal Description: | SIERRA PARK LOT 15 |
| Geographic ID: | S8165-00-00015-0 | Agent Code: | |
| Type: | Real | | |
| Tax Area: | 540 - APPRAISER-Stan/Cam Schl Dist, Special Dist, improved & less than 1 acre | Land Use Code | 11 |
| Open Space: | N | DFL | N |
| Historic Property: | N | Remodel Property: | N |
| Multi-Family Redevelopment: | N | | |
| Township: | | Section: | |
| Range: | |
Location |
| Address: | 1481 SIERRA PARK LN CAMANO ISLAND, WA 98282 | Mapsco: | |
| Neighborhood: | 58RecamS-East Cam | Map ID: | 866 |
| Neighborhood CD: | 58RecamS |
Owner |
| Name: | DANCULOVIC, DAMIR | Owner ID: | 312561 |
| Mailing Address: | MICHELE LEE IMHOLT 1481 SIERRA PARK LN CAMANO ISLAND, WA 98282 | % Ownership: | 100.0000000000% |
| | | Exemptions: | |
Taxes and Assessment Details
Values
| (+) Improvement Homesite Value: | + | $0 | |
| (+) Improvement Non-Homesite Value: | + | $221,643 | |
| (+) Land Homesite Value: | + | $0 | |
| (+) Land Non-Homesite Value: | + | $225,000 | |
| (+) Curr Use (HS): | + | $0 | $0 |
| (+) Curr Use (NHS): | + | $0 | $0 |
| | | -------------------------- | |
| (=) Market Value: | = | $446,643 | |
| (–) Productivity Loss: | – | $0 | |
| | | -------------------------- | |
| (=) Subtotal: | = | $446,643 | |
| (+) Senior Appraised Value: | + | $0 | |
| (+) Non-Senior Appraised Value: | + | $446,643 | |
| | | -------------------------- | |
| (=) Total Appraised Value: | = | $446,643 | |
| (–) Senior Exemption Loss: | – | $0 | |
| (–) Exemption Loss: | – | $0 | |
| | | -------------------------- | |
| (=) Taxable Value: | = | $446,643 | |
Taxing Jurisdiction
| Owner: | DANCULOVIC, DAMIR | | |
| % Ownership: | 100.0000000000% | | |
| Total Value: | $446,643 | | |
| Tax Area: | 540 - APPRAISER-Stan/Cam Schl Dist, Special Dist, improved & less than 1 acre |
| CF | Conservation Futures | 0.0316035091 | $446,643 | $446,643 | $14.12 | | |
| EMS1 | Fire & Rescue Dist #1 Camano GEN (EMS) | 0.3677864386 | $446,643 | $446,643 | $164.27 | | |
| FIRE1 | Fire & Rescue Dist #1 Camano GEN | 1.2502910536 | $446,643 | $446,643 | $558.43 | | |
| FIRE1BOND | Fire & Rescue Dist #1 Camano BOND | 0.1570001679 | $446,643 | $446,643 | $70.12 | | |
| CE | County Current Expense | 0.3708482477 | $446,643 | $446,643 | $165.64 | | |
| CR | County Roads | 0.4584763726 | $446,643 | $446,643 | $204.78 | | |
| LCIB | Library Sno-Isle BOND (Camano Island) | 0.0396325772 | $446,643 | $446,643 | $17.70 | | |
| LIB | Library Sno-Isle GEN | 0.3153421757 | $446,643 | $446,643 | $140.85 | | |
| SCH205_401 | School 205-401 Enrichment | 1.2698420524 | $446,643 | $446,643 | $567.17 | | |
| SCH205BOND | School 205-401 BOND | 0.9396497583 | $446,643 | $446,643 | $419.69 | | |
| ST | State School | 1.3035497053 | $446,643 | $446,643 | $582.22 | | |
| ST2 | State School Part 2 | 0.8169543533 | $446,643 | $446,643 | $364.89 | | |
| | Total Tax Rate: | 7.3209764117 | | | | | |
| | | | | Taxes w/Current Exemptions: | $3,269.88 | | |
| | | | | Taxes w/o Exemptions: | $3,269.88 | | |
Improvement / Building
| Improvement #1: | RESIDENTIAL | State Code: | Y | 1304.0 sqft | Value: | $221,643 |
| Bathrooms: | 1 | Bedrooms: | 3 | | Ceiling: | DRYWALL PAINTED | Exterior Wall/Cover: | WOOD SIDING | | Floor Covering: | LAMINATE/LVP | Floor Structure: | WOOD W/SUBFLOOR | | Foundation: | CONCRETE | Heating: | WALL HEAT ELECTRIC | | Interior Finish: | DRYWALL PAINT | Plumbing Fixture Cnt: | 6 | | Roof Slope: | 4" IN 12" | Roof Structure/Cover: | CJ ASPHALT |
|
| | Type | Description | Class CD | Sub Class CD | Year Built | Area |
| | BAS | BASE/MAIN FLOOR | 3 | 0 | 1990 | 1304.0 |
| | UTY | STORAGE/UTILITY | 3 | 0 | 1990 | 240.0 |
| | OWC | OPEN WOOD PORCH W/STEPS/ROOF/C | 3 | 0 | 1990 | 48.0 |
| | OWP | OPEN WOOD PORCH W/STEPS | 3 | 0 | 1990 | 283.8 |
| | OP4 | OPEN PORCH W/CEILING-ROOF | 3 | 0 | 1990 | 108.0 |
Sketch
| No sketches available for this property. |
Property Image
Land
| 1 | 14 | SQ (08001-12000) | 0.0000 | 0.00 | 0.00 | 0.00 | 1.00 | $225,000 | $0 |
Roll Value History
| 2026 | N/A | N/A | N/A | N/A | N/A |
| 2025 | $221,643 | $225,000 | $0 | $446,643 | $446,643 |
| 2024 | $196,792 | $220,000 | $0 | $416,792 | $416,792 |
| 2023 | $199,442 | $220,000 | $0 | $419,442 | $419,442 |
| 2022 | $182,999 | $200,000 | $0 | $382,999 | $382,999 |
| 2021 | $134,119 | $140,000 | $0 | $274,119 | $274,119 |
| 2020 | $130,892 | $110,000 | $0 | $240,892 | $240,892 |
| 2019 | $93,338 | $140,000 | $0 | $233,338 | $233,338 |
| 2018 | $93,644 | $130,000 | $0 | $223,644 | $223,644 |
| 2017 | $94,256 | $110,000 | $0 | $204,256 | $204,256 |
| 2016 | $95,482 | $75,000 | $0 | $170,482 | $170,482 |
| 2015 | $95,516 | $50,000 | $0 | $145,516 | $145,516 |
| 2014 | $96,756 | $50,000 | $0 | $146,756 | $146,756 |
| 2013 | $97,997 | $50,000 | $0 | $147,997 | $147,997 |
| 2012 | $99,238 | $66,400 | $0 | $165,638 | $165,638 |
| 2011 | $100,478 | $83,000 | $0 | $183,478 | $183,478 |
| 2010 | $102,625 | $83,000 | $0 | $185,625 | $185,625 |
| 2009 | $103,370 | $80,000 | $0 | $183,370 | $183,370 |
| 2008 | $104,610 | $78,750 | $0 | $183,360 | $183,360 |
| 2007 | $105,849 | $78,750 | $0 | $184,599 | $184,599 |
Deed and Sales History
| 1 | 05/29/2024 | WD | Warranty Deed | CHRISTOPHERSON, ADAM LEE | DANCULOVIC, DAMIR | | | $450,000.00 | 60138 | 4572915 |
| 2 | 10/14/2021 | QCD | Quit Claim Deed | CHRISTOPHERSON, ADAM L | CHRISTOPHERSON, ADAM LEE | | | $0.00 | 50538 | 4531729 |
| 3 | 01/10/2006 | WD | Warranty Deed | WALTER, ANDREW P | CHRISTOPHERSON, ADAM L | | | $210,950.00 | 60207 | 4159960 |
| 4 | 09/29/2005 | WD | Warranty Deed | WILLIAMS, CINDY A | WALTER, ANDREW P | | | $164,000.00 | 55203 | 4150781 |
| 5 | 11/06/2000 | WD | Warranty Deed | HANSEN, KAREN | WILLIAMS, CINDY A | | | $116,000.00 | 4366 | 20020133 |
| 6 | 03/01/1990 | WD | Warranty Deed | MONTY, RALPH G | HANSEN, KAREN | | | $69,500.00 | 1885 | 90006061 |
| 7 | 06/01/1987 | WD | Warranty Deed | EQUALS, DON & | MONTY, RALPH G | | | $3,490.00 | 71952 | 87009026 |
| 8 | 10/01/1985 | QCD | Quit Claim Deed | EQUALS, DON R | EQUALS, DON & | | | $0.00 | 52906 | 85011526 |
| 9 | 10/01/1985 | QCD | Quit Claim Deed | HUBER, DEVELOPMENT I | EQUALS, DON R | | | $0.00 | 53018 | 85011952 |
| 10 | 09/01/1982 | EZ | Easement | HUBER, NORMAN C | HUBER, DEVELOPMENT I | | | $0.00 | 22271 | 400889 |
| 11 | 04/01/1979 | OTHER | Other - Misc. Documents | Unknown | HUBER, NORMAN C | | | $59,200.00 | 91986 | 351613 |
Payout Agreement
| No payout information available.. |