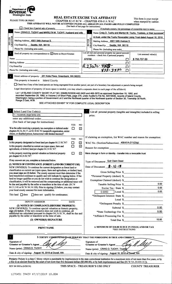
Property
Account |
| Property ID: | 395085 | Abbreviated Legal Description: | SIERRA VISTA LOT 10 |
| Geographic ID: | S8170-00-00010-0 | Agent Code: | |
| Type: | Real | | |
| Tax Area: | 540 - APPRAISER-Stan/Cam Schl Dist, Special Dist, improved & less than 1 acre | Land Use Code | 11 |
| Open Space: | N | DFL | N |
| Historic Property: | N | Remodel Property: | N |
| Multi-Family Redevelopment: | N | | |
| Township: | | Section: | |
| Range: | |
Location |
| Address: | 2879 NEWELL RD CAMANO ISLAND, WA 98282 | Mapsco: | |
| Neighborhood: | 58RecamWV-East Cam | Map ID: | 866 |
| Neighborhood CD: | 58RecamWV |
Owner |
| Name: | SPIRO, ROBERT DAVID | Owner ID: | 291320 |
| Mailing Address: | DIANNE MARGARET SPIRO 2033 247TH PL NE SAMMAMISH, WA 98074 | % Ownership: | 100.0000000000% |
| | | Exemptions: | |
Taxes and Assessment Details
Values
| (+) Improvement Homesite Value: | + | $0 | |
| (+) Improvement Non-Homesite Value: | + | $247,810 | |
| (+) Land Homesite Value: | + | $0 | |
| (+) Land Non-Homesite Value: | + | $475,000 | |
| (+) Curr Use (HS): | + | $0 | $0 |
| (+) Curr Use (NHS): | + | $0 | $0 |
| | | -------------------------- | |
| (=) Market Value: | = | $722,810 | |
| (–) Productivity Loss: | – | $0 | |
| | | -------------------------- | |
| (=) Subtotal: | = | $722,810 | |
| (+) Senior Appraised Value: | + | $0 | |
| (+) Non-Senior Appraised Value: | + | $722,810 | |
| | | -------------------------- | |
| (=) Total Appraised Value: | = | $722,810 | |
| (–) Senior Exemption Loss: | – | $0 | |
| (–) Exemption Loss: | – | $0 | |
| | | -------------------------- | |
| (=) Taxable Value: | = | $722,810 | |
Taxing Jurisdiction
| Owner: | SPIRO, ROBERT DAVID | | |
| % Ownership: | 100.0000000000% | | |
| Total Value: | $722,810 | | |
| Tax Area: | 540 - APPRAISER-Stan/Cam Schl Dist, Special Dist, improved & less than 1 acre |
| CF | Conservation Futures | 0.0316035091 | $722,810 | $722,810 | $22.84 | | |
| EMS1 | Fire & Rescue Dist #1 Camano GEN (EMS) | 0.3677864386 | $722,810 | $722,810 | $265.84 | | |
| FIRE1 | Fire & Rescue Dist #1 Camano GEN | 1.2502910536 | $722,810 | $722,810 | $903.72 | | |
| FIRE1BOND | Fire & Rescue Dist #1 Camano BOND | 0.1570001679 | $722,810 | $722,810 | $113.48 | | |
| CE | County Current Expense | 0.3708482477 | $722,810 | $722,810 | $268.05 | | |
| CR | County Roads | 0.4584763726 | $722,810 | $722,810 | $331.39 | | |
| LCIB | Library Sno-Isle BOND (Camano Island) | 0.0396325772 | $722,810 | $722,810 | $28.65 | | |
| LIB | Library Sno-Isle GEN | 0.3153421757 | $722,810 | $722,810 | $227.93 | | |
| SCH205_401 | School 205-401 Enrichment | 1.2698420524 | $722,810 | $722,810 | $917.85 | | |
| SCH205BOND | School 205-401 BOND | 0.9396497583 | $722,810 | $722,810 | $679.19 | | |
| ST | State School | 1.3035497053 | $722,810 | $722,810 | $942.22 | | |
| ST2 | State School Part 2 | 0.8169543533 | $722,810 | $722,810 | $590.50 | | |
| | Total Tax Rate: | 7.3209764117 | | | | | |
| | | | | Taxes w/Current Exemptions: | $5,291.66 | | |
| | | | | Taxes w/o Exemptions: | $5,291.66 | | |
Improvement / Building
| Improvement #1: | RESIDENTIAL | State Code: | Y | 1200.0 sqft | Value: | $247,810 |
| Bathrooms: | 1 | Bedrooms: | 2 | | Ceiling: | DRYWALL PAINTED | Cooling: | HEAT PUMP/CONV/V | | Exterior Wall/Cover: | PLY/HARDBOARD T-111 | Floor Covering: | CERAMIC TILE/CPT 40-60 | | Floor Structure: | WOOD W/SUBFLOOR | Foundation: | CONCRETE | | Interior Finish: | DRYWALL PAINT | Plumbing Fixture Cnt: | 6 | | Roof Slope: | 6" IN 12" | Roof Structure/Cover: | CJ ASPHALT |
|
| | Type | Description | Class CD | Sub Class CD | Year Built | Area |
| | BAS | BASE/MAIN FLOOR | 3 | 0 | 1987 | 1200.0 |
| | DGR | DETACHED GARAGE | 3 | 0 | 1987 | 360.0 |
| | OWP | OPEN WOOD PORCH W/STEPS | 3 | 0 | 1987 | 1066.0 |
Sketch
Property Image
Land
| 1 | HB | HIGH BLUFF | 0.3751 | 16339.36 | 75.00 | 0.00 | 1.00 | $475,000 | $0 |
Roll Value History
| 2026 | N/A | N/A | N/A | N/A | N/A |
| 2025 | $247,810 | $475,000 | $0 | $722,810 | $722,810 |
| 2024 | $250,937 | $450,000 | $0 | $700,937 | $700,937 |
| 2023 | $254,063 | $450,000 | $0 | $704,063 | $704,063 |
| 2022 | $232,884 | $375,000 | $0 | $607,884 | $607,884 |
| 2021 | $189,422 | $275,000 | $0 | $464,422 | $464,422 |
| 2020 | $183,667 | $250,000 | $0 | $433,667 | $433,667 |
| 2019 | $117,215 | $300,000 | $0 | $417,215 | $417,215 |
| 2018 | $117,615 | $250,000 | $0 | $367,615 | $367,615 |
| 2017 | $118,415 | $200,000 | $0 | $318,415 | $318,415 |
| 2016 | $120,016 | $200,000 | $0 | $320,016 | $320,016 |
| 2015 | $106,429 | $200,000 | $0 | $306,429 | $306,429 |
| 2014 | $107,886 | $200,000 | $0 | $307,886 | $307,886 |
| 2013 | $109,344 | $172,105 | $0 | $281,449 | $281,449 |
| 2012 | $110,802 | $172,105 | $0 | $282,907 | $282,907 |
| 2011 | $112,259 | $215,131 | $0 | $327,390 | $327,390 |
| 2010 | $119,461 | $215,131 | $0 | $334,592 | $334,592 |
| 2009 | $122,331 | $264,025 | $0 | $386,356 | $386,356 |
| 2008 | $129,257 | $101,894 | $0 | $231,151 | $231,151 |
| 2007 | $130,894 | $123,292 | $0 | $254,186 | $254,186 |
Deed and Sales History
| 1 | 08/13/2019 | WD | Warranty Deed | DAVIS, RANDY BERRY | SPIRO, ROBERT DAVID | | | $540,000.00 | 39833 | 4469227 |
| 2 | 10/01/2014 | WD | Warranty Deed | HINE, EUGENE S | DAVIS, RANDY BERRY | | | $311,750.00 | 17065 | 4366595 |
| 3 | 07/12/2006 | WD | Warranty Deed | D'ETTORRE, BARBARA A | HINE, EUGENE S | | | $389,000.00 | 63046 | 4175807 |
| 4 | 10/07/1998 | WD | Warranty Deed | PITTSFORD, DAVID F | D'ETTORRE, BARBARA A | | | $148,000.00 | 84046 | 98021818 |
| 5 | 07/01/1993 | WD | Warranty Deed | SNOWSELL, LEONARD W | PITTSFORD, DAVID F | | | $148,000.00 | 32882 | 93014798 |
| 6 | 07/01/1981 | TRUSTEED | Trustee's Deed | Unknown | SNOWSELL, LEONARD W | | | $20,000.00 | 12390 | 386304 |
Payout Agreement
| No payout information available.. |