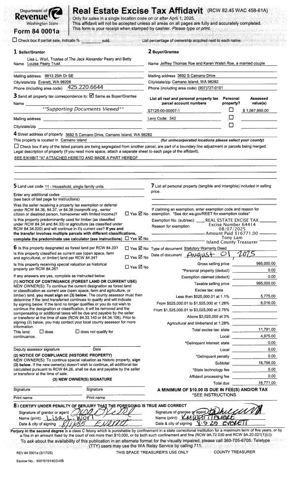
Property
Account |
| Property ID: | 3953 | Abbreviated Legal Description: | 53 ALEX DC - PT J ALEXANDER DLC DESC: BG SECR SD DLC N1*E (DEED N) ALG ELN 782.60' N88*W (DEED W) 20' TPB BEING PT ON W R/W LN ENGLE RD N1*E ALG SD WLN 1069.09' (DEED 1063) TO LN EST BLA AF#91020095 N88*W495' TO WLY TERM SD LN S1*W177.70' N88*W1165.35' TO |
| Geographic ID: | R13104-237-3420 | Agent Code: | |
| Type: | Real | | |
| Tax Area: | 319 - APPRAISER-Cpvl Schl Dist, outside Cpvl, vacant & 50 acres or less | Land Use Code | 83 |
| Open Space: | Y | DFL | N |
| Historic Property: | N | Remodel Property: | N |
| Multi-Family Redevelopment: | N | | |
| Township: | 31 | Section: | 04 |
| Range: | R1 |
Location |
| Address: | ENGLE RD COUPEVILLE, WA 98239 | Mapsco: | |
| Neighborhood: | Cycle 2 | Map ID: | 30 |
| Neighborhood CD: | 2 |
Owner |
| Name: | ENGLE, PHILIP B | Owner ID: | 287848 |
| Mailing Address: | 701 S MAIN ST TRLR 16 COUPEVILLE, WA 98239 | % Ownership: | 100.0000000000% |
| | | Exemptions: | |
Taxes and Assessment Details
Values
| (+) Improvement Homesite Value: | + | $0 | |
| (+) Improvement Non-Homesite Value: | + | $0 | |
| (+) Land Homesite Value: | + | $0 | |
| (+) Land Non-Homesite Value: | + | $0 | |
| (+) Curr Use (HS): | + | $0 | $0 |
| (+) Curr Use (NHS): | + | $460,765 | $25,848 |
| | | -------------------------- | |
| (=) Market Value: | = | $460,765 | |
| (–) Productivity Loss: | – | $434,917 | |
| | | -------------------------- | |
| (=) Subtotal: | = | $25,848 | |
| (+) Senior Appraised Value: | + | $0 | |
| (+) Non-Senior Appraised Value: | + | $25,848 | |
| | | -------------------------- | |
| (=) Total Appraised Value: | = | $25,848 | |
| (–) Senior Exemption Loss: | – | $0 | |
| (–) Exemption Loss: | – | $0 | |
| | | -------------------------- | |
| (=) Taxable Value: | = | $25,848 | |
Taxing Jurisdiction
| Owner: | ENGLE, PHILIP B | | |
| % Ownership: | 100.0000000000% | | |
| Total Value: | $460,765 | | |
| Tax Area: | 319 - APPRAISER-Cpvl Schl Dist, outside Cpvl, vacant & 50 acres or less |
| CF | Conservation Futures | 0.0316035091 | $25,848 | $25,848 | $0.82 | | |
| CEM2 | Cemetery #2 | 0.0095056933 | $25,848 | $25,848 | $0.25 | | |
| HOBOND | Hospital BOND | 0.1910887512 | $25,848 | $25,848 | $4.94 | | |
| HOGEN | Hospital GEN | 0.3902502903 | $25,848 | $25,848 | $10.09 | | |
| CE | County Current Expense | 0.3708482477 | $25,848 | $25,848 | $9.59 | | |
| CR | County Roads | 0.4584763726 | $25,848 | $25,848 | $11.85 | | |
| ISLANDEMS | Hospital GEN (EMS) | 0.5000000000 | $25,848 | $25,848 | $12.92 | | |
| LIB | Library Sno-Isle GEN | 0.3153421757 | $25,848 | $25,848 | $8.15 | | |
| LIBCAP | Library Sno-Isle BOND (Cap Fac Imp Area) | 0.0543427938 | $25,848 | $25,848 | $1.40 | | |
| POCOUP | Port of Coupeville GEN | 0.1093371703 | $25,848 | $25,848 | $2.83 | | |
| POCOUPIDD | Port of Coupeville IDD | 0.3409740022 | $25,848 | $25,848 | $8.81 | | |
| COUPSDTECH | School 204 CP (TECH) | 0.7545480007 | $25,848 | $25,848 | $19.50 | | |
| SCH204MO | School 204 Enrichment | 0.6716186034 | $25,848 | $25,848 | $17.36 | | |
| ST | State School | 1.3035497053 | $25,848 | $25,848 | $33.69 | | |
| ST2 | State School Part 2 | 0.8169543533 | $25,848 | $25,848 | $21.12 | | |
| | Total Tax Rate: | 6.3184396689 | | | | | |
| | | | | Taxes w/Current Exemptions: | $163.32 | | |
| | | | | Taxes w/o Exemptions: | $163.32 | | |
Improvement / Building
Sketch
| No sketches available for this property. |
Property Image
Land
| 1 | 37 | AC (31.00-+) | 32.4100 | 1411779.60 | 0.00 | 0.00 | 1.00 | $460,765 | $25,848 |
Roll Value History
| 2026 | N/A | N/A | N/A | N/A | N/A |
| 2025 | $0 | $460,765 | $25,848 | $25,848 | $25,848 |
| 2024 | $0 | $450,000 | $25,848 | $25,848 | $25,848 |
| 2023 | $0 | $400,000 | $25,848 | $25,848 | $25,848 |
| 2022 | $0 | $400,000 | $25,848 | $25,848 | $25,848 |
| 2021 | $0 | $350,000 | $25,848 | $25,848 | $25,848 |
| 2020 | $0 | $350,000 | $25,848 | $25,848 | $25,848 |
| 2019 | $0 | $350,000 | $25,848 | $25,848 | $25,848 |
| 2018 | $0 | $300,000 | $25,848 | $25,848 | $25,848 |
| 2017 | $0 | $300,000 | $25,848 | $25,848 | $25,848 |
| 2016 | $0 | $300,000 | $25,848 | $25,848 | $25,848 |
| 2015 | $0 | $259,712 | $25,848 | $25,848 | $25,848 |
| 2014 | $0 | $259,712 | $25,848 | $25,848 | $25,848 |
| 2013 | $0 | $259,712 | $25,848 | $25,848 | $25,848 |
| 2012 | $0 | $259,712 | $25,848 | $25,848 | $25,848 |
| 2011 | $0 | $305,544 | $25,848 | $25,848 | $25,848 |
| 2010 | $0 | $305,544 | $25,848 | $25,848 | $25,848 |
| 2009 | $0 | $351,200 | $25,848 | $25,848 | $25,848 |
| 2008 | $0 | $368,760 | $25,848 | $25,848 | $25,848 |
| 2007 | $0 | $456,560 | $25,848 | $25,848 | $25,848 |
Deed and Sales History
| 1 | 06/19/2018 | QCD | Quit Claim Deed | ENGLE, RALPH E | ENGLE, PHILIP B | | | $0.00 | 36965 | 4456483 |
| 2 | 06/30/2006 | QCD | Quit Claim Deed | ENGLE, RALPH E | | | | | 3737 | 4291609 |
| 3 | 06/30/2006 | QCD | Quit Claim Deed | ENGLE, RALPH E | | | | | 62849 | 4174785 |
| 4 | 07/02/2004 | PRD | Personal Representatives Deed | ENGLE, VERNA E | ENGLE, RALPH E | | | $0.00 | 43192 | 4106978 |
| 5 | 04/01/1994 | PRD | Personal Representatives Deed | ENGLE, BURTON C | ENGLE, VERNA E | | | $0.00 | 41602 | 94009745 |
| 6 | 01/01/1900 | OTHER | Other - Misc. Documents | Unknown | ENGLE, BURTON C | | | $0.00 | 0 | 0 |
Payout Agreement
| No payout information available.. |