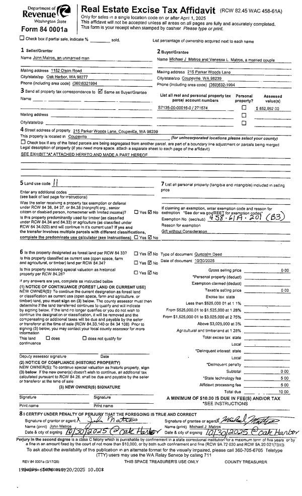
Property
Account |
| Property ID: | 395726 | Abbreviated Legal Description: | SKYLINE WEST 1 LOT 25 |
| Geographic ID: | S8175-00-00025-0 | Agent Code: | |
| Type: | Real | | |
| Tax Area: | 712 - APPRAISER-S Whid Schl Dist, outside Langley, improved, greater than 1 acre | Land Use Code | 11 |
| Open Space: | N | DFL | N |
| Historic Property: | N | Remodel Property: | N |
| Multi-Family Redevelopment: | N | | |
| Township: | | Section: | |
| Range: | |
Location |
| Address: | 2103 MIDDLE DR FREELAND, WA 98249 | Mapsco: | |
| Neighborhood: | Cycle 3 | Map ID: | 447 |
| Neighborhood CD: | 3 |
Owner |
| Name: | FREE, GORDON G / LAURASUE H | Owner ID: | 101237 |
| Mailing Address: | 2103 MIDDLE DR FREELAND, WA 98249-9516 | % Ownership: | 100.0000000000% |
| | | Exemptions: | |
Taxes and Assessment Details
Values
| (+) Improvement Homesite Value: | + | $0 | |
| (+) Improvement Non-Homesite Value: | + | $245,494 | |
| (+) Land Homesite Value: | + | $0 | |
| (+) Land Non-Homesite Value: | + | $290,000 | |
| (+) Curr Use (HS): | + | $0 | $0 |
| (+) Curr Use (NHS): | + | $0 | $0 |
| | | -------------------------- | |
| (=) Market Value: | = | $535,494 | |
| (–) Productivity Loss: | – | $0 | |
| | | -------------------------- | |
| (=) Subtotal: | = | $535,494 | |
| (+) Senior Appraised Value: | + | $0 | |
| (+) Non-Senior Appraised Value: | + | $535,494 | |
| | | -------------------------- | |
| (=) Total Appraised Value: | = | $535,494 | |
| (–) Senior Exemption Loss: | – | $0 | |
| (–) Exemption Loss: | – | $0 | |
| | | -------------------------- | |
| (=) Taxable Value: | = | $535,494 | |
Taxing Jurisdiction
| Owner: | FREE, GORDON G / LAURASUE H | | |
| % Ownership: | 100.0000000000% | | |
| Total Value: | $535,494 | | |
| Tax Area: | 712 - APPRAISER-S Whid Schl Dist, outside Langley, improved, greater than 1 acre |
| CF | Conservation Futures | 0.0316035091 | $535,494 | $535,494 | $16.92 | | |
| FIRE3 | Fire & Rescue Dist #3 S Whidbey GEN | 1.2004855531 | $535,494 | $535,494 | $642.85 | | |
| HOBOND | Hospital BOND | 0.1910887512 | $535,494 | $535,494 | $102.33 | | |
| HOGEN | Hospital GEN | 0.3902502903 | $535,494 | $535,494 | $208.98 | | |
| CE | County Current Expense | 0.3708482477 | $535,494 | $535,494 | $198.59 | | |
| CR | County Roads | 0.4584763726 | $535,494 | $535,494 | $245.51 | | |
| ISLANDEMS | Hospital GEN (EMS) | 0.5000000000 | $535,494 | $535,494 | $267.75 | | |
| LIB | Library Sno-Isle GEN | 0.3153421757 | $535,494 | $535,494 | $168.86 | | |
| PORTWHID | Port of S Whidbey GEN | 0.1094540357 | $535,494 | $535,494 | $58.61 | | |
| SCH206BOND | School 206 BOND | 0.3161759235 | $535,494 | $535,494 | $169.31 | | |
| SCH206MO | School 206 Enrichment | 0.4547169547 | $535,494 | $535,494 | $243.50 | | |
| ST | State School | 1.3035497053 | $535,494 | $535,494 | $698.04 | | |
| ST2 | State School Part 2 | 0.8169543533 | $535,494 | $535,494 | $437.47 | | |
| SWHIDPRBD | P & R S Whidbey BOND | 0.0152817568 | $535,494 | $535,494 | $8.18 | | |
| SWHIDPRBD2 | P & R S Whidbey BOND2 | 0.0138911264 | $535,494 | $535,494 | $7.44 | | |
| SWHIDPRMT | P & R S Whidbey GEN | 0.2053334452 | $535,494 | $535,494 | $109.95 | | |
| | Total Tax Rate: | 6.6934522006 | | | | | |
| | | | | Taxes w/Current Exemptions: | $3,584.29 | | |
| | | | | Taxes w/o Exemptions: | $3,584.29 | | |
Improvement / Building
| Improvement #1: | RESIDENTIAL | State Code: | Y | 2684.0 sqft | Value: | $245,494 |
| Bathrooms: | 2 | Bedrooms: | 3 | | Ceiling: | TONGUE & GROOVE | Exterior Wall/Cover: | SHINGLE | | Floor Covering: | HARDWOOD/CARP 60-40 | Floor Structure: | WOOD W/SUBFLOOR | | Foundation: | CONCRETE | Heating: | FHA GAS | | Interior Finish: | DRYWALL PAINT | Plumbing Fixture Cnt: | 9 | | Roof Slope: | 5" IN 12" | Roof Structure/Cover: | CJ ASPHALT |
|
| | Type | Description | Class CD | Sub Class CD | Year Built | Area |
| | BAS | BASE/MAIN FLOOR | 3 | 0 | 1984 | 1188.0 |
| | UB8 | BASEMENT UNFINISHED 8" | 3 | 0 | 1984 | 96.0 |
| | OP1 | OPEN PORCH SLAB | 3 | 0 | 1984 | 324.0 |
| | OWP | OPEN WOOD PORCH W/STEPS | 3 | 0 | 1984 | 202.0 |
| | DWN | DOWNSTAIRS LIVING AREA | 3 | 0 | 1984 | 768.0 |
| | BIG | BUILT IN GARAGE | 3 | 0 | 1984 | 728.0 |
| | LOF | LOFT | 3 | 0 | 1984 | 728.0 |
| | UTY | STORAGE/UTILITY | 3 | 0 | 1984 | 0.0 |
Sketch
Property Image
Land
| 1 | 17 | AC (01.01-02.00) | 0.0000 | 0.00 | 0.00 | 0.00 | 1.00 | $290,000 | $0 |
Roll Value History
| 2026 | N/A | N/A | N/A | N/A | N/A |
| 2025 | $245,494 | $290,000 | $0 | $535,494 | $535,494 |
| 2024 | $249,236 | $280,000 | $0 | $529,236 | $529,236 |
| 2023 | $252,982 | $260,000 | $0 | $512,982 | $512,982 |
| 2022 | $232,584 | $250,000 | $0 | $482,584 | $482,584 |
| 2021 | $205,362 | $175,000 | $0 | $380,362 | $380,362 |
| 2020 | $201,331 | $165,000 | $0 | $366,331 | $366,331 |
| 2019 | $160,060 | $200,000 | $0 | $360,060 | $360,060 |
| 2018 | $160,616 | $170,000 | $0 | $330,616 | $330,616 |
| 2017 | $161,731 | $130,000 | $0 | $291,731 | $291,731 |
| 2016 | $163,961 | $100,000 | $0 | $263,961 | $263,961 |
| 2015 | $166,191 | $100,000 | $0 | $266,191 | $266,191 |
| 2014 | $168,422 | $75,000 | $0 | $243,422 | $243,422 |
| 2013 | $193,535 | $85,000 | $0 | $278,535 | $278,535 |
| 2012 | $195,456 | $68,850 | $0 | $264,306 | $264,306 |
| 2011 | $197,375 | $81,000 | $0 | $278,375 | $278,375 |
| 2010 | $203,967 | $90,000 | $0 | $293,967 | $293,967 |
| 2009 | $211,740 | $90,000 | $0 | $301,740 | $301,740 |
| 2008 | $212,671 | $95,000 | $0 | $307,671 | $307,671 |
| 2007 | $215,657 | $95,000 | $0 | $310,657 | $310,657 |
Deed and Sales History
| 1 | 03/01/1992 | WD | Warranty Deed | BOSKOVICH, DAN & | FREE, GORDON G | | | $140,000.00 | 21162 | 92005664 |
| 2 | 02/01/1985 | QCD | Quit Claim Deed | BOSKOVICH, DAN | BOSKOVICH, DAN & | | | $0.00 | 51903 | 85007361 |
| 3 | 01/01/1900 | OTHER | Other - Misc. Documents | Unknown | BOSKOVICH, DAN | | | $0.00 | 0 | 0 |
Payout Agreement
| No payout information available.. |