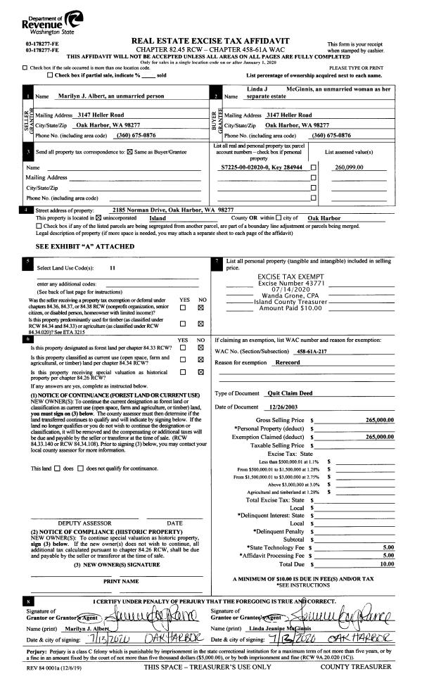
Property
Account |
| Property ID: | 395744 | Abbreviated Legal Description: | SKYLINE WEST 1 LOT 27 |
| Geographic ID: | S8175-00-00027-0 | Agent Code: | |
| Type: | Real | | |
| Tax Area: | 712 - APPRAISER-S Whid Schl Dist, outside Langley, improved, greater than 1 acre | Land Use Code | 11 |
| Open Space: | N | DFL | N |
| Historic Property: | N | Remodel Property: | N |
| Multi-Family Redevelopment: | N | | |
| Township: | | Section: | |
| Range: | |
Location |
| Address: | 4542 SKYLINE DR FREELAND, WA 98249 | Mapsco: | |
| Neighborhood: | Cycle 3 | Map ID: | 447 |
| Neighborhood CD: | 3 |
Owner |
| Name: | STEPHENS, URSULA M | Owner ID: | 101239 |
| Mailing Address: | 4542 SKYLINE DR FREELAND, WA 98249-9512 | % Ownership: | 100.0000000000% |
| | | Exemptions: | |
Taxes and Assessment Details
Values
| (+) Improvement Homesite Value: | + | $0 | |
| (+) Improvement Non-Homesite Value: | + | $193,111 | |
| (+) Land Homesite Value: | + | $0 | |
| (+) Land Non-Homesite Value: | + | $290,000 | |
| (+) Curr Use (HS): | + | $0 | $0 |
| (+) Curr Use (NHS): | + | $0 | $0 |
| | | -------------------------- | |
| (=) Market Value: | = | $483,111 | |
| (–) Productivity Loss: | – | $0 | |
| | | -------------------------- | |
| (=) Subtotal: | = | $483,111 | |
| (+) Senior Appraised Value: | + | $0 | |
| (+) Non-Senior Appraised Value: | + | $483,111 | |
| | | -------------------------- | |
| (=) Total Appraised Value: | = | $483,111 | |
| (–) Senior Exemption Loss: | – | $0 | |
| (–) Exemption Loss: | – | $0 | |
| | | -------------------------- | |
| (=) Taxable Value: | = | $483,111 | |
Taxing Jurisdiction
| Owner: | STEPHENS, URSULA M | | |
| % Ownership: | 100.0000000000% | | |
| Total Value: | $483,111 | | |
| Tax Area: | 712 - APPRAISER-S Whid Schl Dist, outside Langley, improved, greater than 1 acre |
| CF | Conservation Futures | 0.0316035091 | $483,111 | $483,111 | $15.27 | | |
| FIRE3 | Fire & Rescue Dist #3 S Whidbey GEN | 1.2004855531 | $483,111 | $483,111 | $579.97 | | |
| HOBOND | Hospital BOND | 0.1910887512 | $483,111 | $483,111 | $92.32 | | |
| HOGEN | Hospital GEN | 0.3902502903 | $483,111 | $483,111 | $188.53 | | |
| CE | County Current Expense | 0.3708482477 | $483,111 | $483,111 | $179.16 | | |
| CR | County Roads | 0.4584763726 | $483,111 | $483,111 | $221.49 | | |
| ISLANDEMS | Hospital GEN (EMS) | 0.5000000000 | $483,111 | $483,111 | $241.56 | | |
| LIB | Library Sno-Isle GEN | 0.3153421757 | $483,111 | $483,111 | $152.35 | | |
| PORTWHID | Port of S Whidbey GEN | 0.1094540357 | $483,111 | $483,111 | $52.88 | | |
| SCH206BOND | School 206 BOND | 0.3161759235 | $483,111 | $483,111 | $152.75 | | |
| SCH206MO | School 206 Enrichment | 0.4547169547 | $483,111 | $483,111 | $219.68 | | |
| ST | State School | 1.3035497053 | $483,111 | $483,111 | $629.76 | | |
| ST2 | State School Part 2 | 0.8169543533 | $483,111 | $483,111 | $394.68 | | |
| SWHIDPRBD | P & R S Whidbey BOND | 0.0152817568 | $483,111 | $483,111 | $7.38 | | |
| SWHIDPRBD2 | P & R S Whidbey BOND2 | 0.0138911264 | $483,111 | $483,111 | $6.71 | | |
| SWHIDPRMT | P & R S Whidbey GEN | 0.2053334452 | $483,111 | $483,111 | $99.20 | | |
| | Total Tax Rate: | 6.6934522006 | | | | | |
| | | | | Taxes w/Current Exemptions: | $3,233.69 | | |
| | | | | Taxes w/o Exemptions: | $3,233.69 | | |
Improvement / Building
| Improvement #1: | RESIDENTIAL | State Code: | Y | 1882.0 sqft | Value: | $193,111 |
| Bathrooms: | 2 | Bedrooms: | 3 | | Ceiling: | DRY WALL SPRAYED | Exterior Wall/Cover: | WOOD SIDING | | Floor Covering: | CARPET/VINYL 80-20 | Floor Structure: | WOOD W/SUBFLOOR | | Foundation: | CONCRETE | Heating: | FHA ELECTRIC | | Interior Finish: | DRYWALL PAINT | Plumbing Fixture Cnt: | 9 | | Roof Slope: | 4" IN 12" | Roof Structure/Cover: | BEAM WOOD SHAKES |
|
| | Type | Description | Class CD | Sub Class CD | Year Built | Area |
| | BAS | BASE/MAIN FLOOR | 3 | 0 | 1978 | 1138.0 |
| | DWN | DOWNSTAIRS LIVING AREA | 3 | 0 | 1978 | 744.0 |
| | OP1 | OPEN PORCH SLAB | 3 | 0 | 1978 | 168.0 |
| | BGR | BASEMENT GARAGE | 3 | 0 | 1978 | 264.0 |
| | OWP | OPEN WOOD PORCH W/STEPS | 3 | 0 | 1978 | 386.0 |
| | oFN3 | WD 2RL 36" | 3 | 0 | 1978 | 0.0 |
Sketch
Property Image
Land
| 1 | 17 | AC (01.01-02.00) | 0.0000 | 0.00 | 0.00 | 0.00 | 1.00 | $290,000 | $0 |
Roll Value History
| 2026 | N/A | N/A | N/A | N/A | N/A |
| 2025 | $193,111 | $290,000 | $0 | $483,111 | $483,111 |
| 2024 | $196,473 | $280,000 | $0 | $476,473 | $476,473 |
| 2023 | $199,837 | $260,000 | $0 | $459,837 | $459,837 |
| 2022 | $184,056 | $250,000 | $0 | $434,056 | $145,635 |
| 2021 | $171,216 | $175,000 | $0 | $346,216 | $145,635 |
| 2020 | $167,238 | $165,000 | $0 | $332,238 | $145,635 |
| 2019 | $112,439 | $200,000 | $0 | $312,439 | $145,635 |
| 2018 | $112,895 | $170,000 | $0 | $282,895 | $145,635 |
| 2017 | $113,809 | $130,000 | $0 | $243,809 | $215,635 |
| 2016 | $115,635 | $100,000 | $0 | $215,635 | $215,635 |
| 2015 | $117,461 | $100,000 | $0 | $217,461 | $217,461 |
| 2014 | $119,289 | $85,000 | $0 | $204,289 | $204,289 |
| 2013 | $117,461 | $85,000 | $0 | $202,461 | $202,461 |
| 2012 | $119,289 | $68,850 | $0 | $188,139 | $188,139 |
| 2011 | $121,115 | $81,000 | $0 | $202,115 | $202,115 |
| 2010 | $127,983 | $90,000 | $0 | $217,983 | $217,983 |
| 2009 | $133,639 | $90,000 | $0 | $223,639 | $223,639 |
| 2008 | $135,503 | $95,000 | $0 | $230,503 | $230,503 |
| 2007 | $137,366 | $95,000 | $0 | $232,366 | $232,366 |
Deed and Sales History
| 1 | 08/01/1984 | REC | Real Estate Contract | STEPHENS, WARREN L | STEPHENS, URSULA M | | | $0.00 | 42814 | 0 |
| 2 | 01/01/1900 | OTHER | Other - Misc. Documents | Unknown | STEPHENS, WARREN L | | | $0.00 | 0 | 0 |
Payout Agreement
| No payout information available.. |