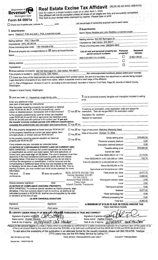
Property
Account |
| Property ID: | 395824 | Abbreviated Legal Description: | SKYLINE WEST 1 LOT 35 |
| Geographic ID: | S8175-00-00035-0 | Agent Code: | |
| Type: | Real | | |
| Tax Area: | 712 - APPRAISER-S Whid Schl Dist, outside Langley, improved, greater than 1 acre | Land Use Code | 11 |
| Open Space: | N | DFL | N |
| Historic Property: | N | Remodel Property: | N |
| Multi-Family Redevelopment: | N | | |
| Township: | | Section: | |
| Range: | |
Location |
| Address: | 4488 SKYLINE DR FREELAND, WA 98249 | Mapsco: | |
| Neighborhood: | Cycle 3 | Map ID: | 447 |
| Neighborhood CD: | 3 |
Owner |
| Name: | GINAAP-HICKS, RUBILIA | Owner ID: | 293250 |
| Mailing Address: | MARK HICKS 4488 SKYLIHNE DR FREELAND, WA 98249 | % Ownership: | 100.0000000000% |
| | | Exemptions: | |
Taxes and Assessment Details
Values
| (+) Improvement Homesite Value: | + | $0 | |
| (+) Improvement Non-Homesite Value: | + | $179,407 | |
| (+) Land Homesite Value: | + | $0 | |
| (+) Land Non-Homesite Value: | + | $310,000 | |
| (+) Curr Use (HS): | + | $0 | $0 |
| (+) Curr Use (NHS): | + | $0 | $0 |
| | | -------------------------- | |
| (=) Market Value: | = | $489,407 | |
| (–) Productivity Loss: | – | $0 | |
| | | -------------------------- | |
| (=) Subtotal: | = | $489,407 | |
| (+) Senior Appraised Value: | + | $0 | |
| (+) Non-Senior Appraised Value: | + | $489,407 | |
| | | -------------------------- | |
| (=) Total Appraised Value: | = | $489,407 | |
| (–) Senior Exemption Loss: | – | $0 | |
| (–) Exemption Loss: | – | $0 | |
| | | -------------------------- | |
| (=) Taxable Value: | = | $489,407 | |
Taxing Jurisdiction
| Owner: | GINAAP-HICKS, RUBILIA | | |
| % Ownership: | 100.0000000000% | | |
| Total Value: | $489,407 | | |
| Tax Area: | 712 - APPRAISER-S Whid Schl Dist, outside Langley, improved, greater than 1 acre |
| CF | Conservation Futures | 0.0316035091 | $489,407 | $489,407 | $15.47 | | |
| FIRE3 | Fire & Rescue Dist #3 S Whidbey GEN | 1.2004855531 | $489,407 | $489,407 | $587.53 | | |
| HOBOND | Hospital BOND | 0.1910887512 | $489,407 | $489,407 | $93.52 | | |
| HOGEN | Hospital GEN | 0.3902502903 | $489,407 | $489,407 | $190.99 | | |
| CE | County Current Expense | 0.3708482477 | $489,407 | $489,407 | $181.50 | | |
| CR | County Roads | 0.4584763726 | $489,407 | $489,407 | $224.38 | | |
| ISLANDEMS | Hospital GEN (EMS) | 0.5000000000 | $489,407 | $489,407 | $244.70 | | |
| LIB | Library Sno-Isle GEN | 0.3153421757 | $489,407 | $489,407 | $154.33 | | |
| PORTWHID | Port of S Whidbey GEN | 0.1094540357 | $489,407 | $489,407 | $53.57 | | |
| SCH206BOND | School 206 BOND | 0.3161759235 | $489,407 | $489,407 | $154.74 | | |
| SCH206MO | School 206 Enrichment | 0.4547169547 | $489,407 | $489,407 | $222.54 | | |
| ST | State School | 1.3035497053 | $489,407 | $489,407 | $637.97 | | |
| ST2 | State School Part 2 | 0.8169543533 | $489,407 | $489,407 | $399.82 | | |
| SWHIDPRBD | P & R S Whidbey BOND | 0.0152817568 | $489,407 | $489,407 | $7.48 | | |
| SWHIDPRBD2 | P & R S Whidbey BOND2 | 0.0138911264 | $489,407 | $489,407 | $6.80 | | |
| SWHIDPRMT | P & R S Whidbey GEN | 0.2053334452 | $489,407 | $489,407 | $100.49 | | |
| | Total Tax Rate: | 6.6934522006 | | | | | |
| | | | | Taxes w/Current Exemptions: | $3,275.83 | | |
| | | | | Taxes w/o Exemptions: | $3,275.83 | | |
Improvement / Building
| Improvement #1: | MANUFACTURED HOME | State Code: | Y | 2476.0 sqft | Value: | $179,407 |
| Bathrooms: | 2.5 | Bedrooms: | 5 | | Ceiling: | PLASTER PAINTED | Cooling: | EVAP NO DUCT | | Exterior Wall/Cover: | VINYL | Floor Covering: | CARPET 100% | | Floor Structure: | SLAB ON GRADE | Foundation: | SLAB | | Heating: | FHA ELECTRIC | Interior Finish: | PLASTER | | Plumbing Fixture Cnt: | 1 | Roof Slope: | FLAT | | Roof Structure/Cover: | CJ ALUMINIUM HEAVY |   |   |
|
| | Type | Description | Class CD | Sub Class CD | Year Built | Area |
| | BAS | BASE/MAIN FLOOR | 4 | 0 | 1995 | 2188.0 |
| | UB6 | BASEMENT UNFINISHED 6" | 4 | 0 | 1995 | 396.0 |
| | ENP | ENCLOSED PORCH | 4 | 0 | 1995 | 360.0 |
| | UTY | STORAGE/UTILITY | 4 | 0 | 1995 | 126.0 |
| | OWP | OPEN WOOD PORCH W/STEPS | 4 | 0 | 1995 | 220.0 |
| | OP4 | OPEN PORCH W/CEILING-ROOF | 4 | 0 | 1995 | 120.0 |
| | BIG | BUILT IN GARAGE | 4 | 0 | 1995 | 576.0 |
| | LOF | LOFT | 4 | 0 | 1995 | 288.0 |
Sketch
Property Image
Land
| 1 | 18 | AC (02.01-03.00) | 0.0000 | 0.00 | 0.00 | 0.00 | 1.00 | $310,000 | $0 |
Roll Value History
| 2026 | N/A | N/A | N/A | N/A | N/A |
| 2025 | $179,407 | $310,000 | $0 | $489,407 | $489,407 |
| 2024 | $185,386 | $290,000 | $0 | $475,386 | $475,386 |
| 2023 | $166,418 | $290,000 | $0 | $456,418 | $456,418 |
| 2022 | $155,396 | $270,000 | $0 | $425,396 | $425,396 |
| 2021 | $139,219 | $190,000 | $0 | $329,219 | $329,219 |
| 2020 | $139,136 | $165,000 | $0 | $304,136 | $304,136 |
| 2019 | $108,462 | $200,000 | $0 | $308,462 | $308,462 |
| 2018 | $109,606 | $170,000 | $0 | $279,606 | $279,606 |
| 2017 | $111,897 | $130,000 | $0 | $241,897 | $241,897 |
| 2016 | $114,187 | $100,000 | $0 | $214,187 | $214,187 |
| 2015 | $116,477 | $100,000 | $0 | $216,477 | $216,477 |
| 2014 | $118,769 | $85,000 | $0 | $203,769 | $203,769 |
| 2013 | $129,628 | $95,000 | $0 | $224,628 | $224,628 |
| 2012 | $131,405 | $68,850 | $0 | $200,255 | $200,255 |
| 2011 | $133,182 | $81,000 | $0 | $214,182 | $214,182 |
| 2010 | $126,044 | $90,000 | $0 | $216,044 | $216,044 |
| 2009 | $131,166 | $90,000 | $0 | $221,166 | $221,166 |
| 2008 | $134,530 | $95,000 | $0 | $229,530 | $229,530 |
| 2007 | $126,239 | $95,000 | $0 | $221,239 | $221,239 |
Deed and Sales History
| 1 | 11/22/2019 | QCD | Quit Claim Deed | HICKS, MARK S | GINAAP-HICKS, RUBILIA | | | $0.00 | 41846 | 4479586 |
| 2 | 11/24/2010 | WD | Warranty Deed | CROUCH, BRUCE A / ELIZABETH V | HICKS, MARK S | | | $288,000.00 | 2959 | 4285811 |
| 3 | 09/01/1993 | WD | Warranty Deed | COLFER, A M | CROUCH, BRUCE A | | | $31,500.00 | 33547 | 93018522 |
| 4 | 04/01/1990 | WD | Warranty Deed | DIMOF, A G | COLFER, A M | | | $25,000.00 | 2187 | 90007153 |
| 5 | 01/01/1900 | OTHER | Other - Misc. Documents | Unknown | DIMOF, A G | | | $0.00 | 0 | 0 |
Payout Agreement
| No payout information available.. |