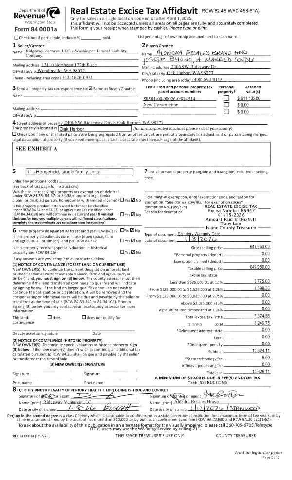
Property
Account |
| Property ID: | 395851 | Abbreviated Legal Description: | SKYLINE WEST 1 LOT 38 |
| Geographic ID: | S8175-00-00038-0 | Agent Code: | |
| Type: | Real | | |
| Tax Area: | 712 - APPRAISER-S Whid Schl Dist, outside Langley, improved, greater than 1 acre | Land Use Code | 11 |
| Open Space: | N | DFL | N |
| Historic Property: | N | Remodel Property: | N |
| Multi-Family Redevelopment: | N | | |
| Township: | | Section: | |
| Range: | |
Location |
| Address: | 4462 SKYLINE DR FREELAND, WA 98249 | Mapsco: | |
| Neighborhood: | Cycle 3 | Map ID: | 447 |
| Neighborhood CD: | 3 |
Owner |
| Name: | REESE-WHITING, ZACHARY JAMES | Owner ID: | 285109 |
| Mailing Address: | MICHELE RAE GUINN 4462 SKYLINE DR FREELAND, WA 98249 | % Ownership: | 100.0000000000% |
| | | Exemptions: | |
Taxes and Assessment Details
Values
| (+) Improvement Homesite Value: | + | $0 | |
| (+) Improvement Non-Homesite Value: | + | $256,567 | |
| (+) Land Homesite Value: | + | $0 | |
| (+) Land Non-Homesite Value: | + | $290,000 | |
| (+) Curr Use (HS): | + | $0 | $0 |
| (+) Curr Use (NHS): | + | $0 | $0 |
| | | -------------------------- | |
| (=) Market Value: | = | $546,567 | |
| (–) Productivity Loss: | – | $0 | |
| | | -------------------------- | |
| (=) Subtotal: | = | $546,567 | |
| (+) Senior Appraised Value: | + | $0 | |
| (+) Non-Senior Appraised Value: | + | $546,567 | |
| | | -------------------------- | |
| (=) Total Appraised Value: | = | $546,567 | |
| (–) Senior Exemption Loss: | – | $0 | |
| (–) Exemption Loss: | – | $0 | |
| | | -------------------------- | |
| (=) Taxable Value: | = | $546,567 | |
Taxing Jurisdiction
| Owner: | REESE-WHITING, ZACHARY JAMES | | |
| % Ownership: | 100.0000000000% | | |
| Total Value: | $546,567 | | |
| Tax Area: | 712 - APPRAISER-S Whid Schl Dist, outside Langley, improved, greater than 1 acre |
| CF | Conservation Futures | 0.0316035091 | $546,567 | $546,567 | $17.27 | | |
| FIRE3 | Fire & Rescue Dist #3 S Whidbey GEN | 1.2004855531 | $546,567 | $546,567 | $656.15 | | |
| HOBOND | Hospital BOND | 0.1910887512 | $546,567 | $546,567 | $104.44 | | |
| HOGEN | Hospital GEN | 0.3902502903 | $546,567 | $546,567 | $213.30 | | |
| CE | County Current Expense | 0.3708482477 | $546,567 | $546,567 | $202.69 | | |
| CR | County Roads | 0.4584763726 | $546,567 | $546,567 | $250.59 | | |
| ISLANDEMS | Hospital GEN (EMS) | 0.5000000000 | $546,567 | $546,567 | $273.28 | | |
| LIB | Library Sno-Isle GEN | 0.3153421757 | $546,567 | $546,567 | $172.36 | | |
| PORTWHID | Port of S Whidbey GEN | 0.1094540357 | $546,567 | $546,567 | $59.82 | | |
| SCH206BOND | School 206 BOND | 0.3161759235 | $546,567 | $546,567 | $172.81 | | |
| SCH206MO | School 206 Enrichment | 0.4547169547 | $546,567 | $546,567 | $248.53 | | |
| ST | State School | 1.3035497053 | $546,567 | $546,567 | $712.48 | | |
| ST2 | State School Part 2 | 0.8169543533 | $546,567 | $546,567 | $446.52 | | |
| SWHIDPRBD | P & R S Whidbey BOND | 0.0152817568 | $546,567 | $546,567 | $8.35 | | |
| SWHIDPRBD2 | P & R S Whidbey BOND2 | 0.0138911264 | $546,567 | $546,567 | $7.59 | | |
| SWHIDPRMT | P & R S Whidbey GEN | 0.2053334452 | $546,567 | $546,567 | $112.23 | | |
| | Total Tax Rate: | 6.6934522006 | | | | | |
| | | | | Taxes w/Current Exemptions: | $3,658.41 | | |
| | | | | Taxes w/o Exemptions: | $3,658.41 | | |
Improvement / Building
| Improvement #1: | MANUFACTURED HOME | State Code: | Y | 3024.0 sqft | Value: | $256,567 |
| Bathrooms: | 2 | Bedrooms: | 3 | | Ceiling: | PLASTER PAINTED | Cooling: | EVAP NO DUCT | | Exterior Wall/Cover: | VINYL | Floor Covering: | CARPET 100% | | Floor Structure: | SLAB ON GRADE | Foundation: | SLAB | | Heating: | FHA ELECTRIC | Interior Finish: | PLASTER | | Plumbing Fixture Cnt: | 1 | Roof Slope: | FLAT | | Roof Structure/Cover: | CJ ALUMINIUM HEAVY |   |   |
|
| | Type | Description | Class CD | Sub Class CD | Year Built | Area |
| | BAS | BASE/MAIN FLOOR | 4 | 0 | 1997 | 1782.0 |
| | DWN | DOWNSTAIRS LIVING AREA | 4 | 0 | 1997 | 1242.0 |
| | BIG | BUILT IN GARAGE | 4 | 0 | 1997 | 540.0 |
| | OWP | OPEN WOOD PORCH W/STEPS | 4 | 0 | 1997 | 715.0 |
| | OWP | OPEN WOOD PORCH W/STEPS | 4 | 0 | 1997 | 480.0 |
| | UTY | STORAGE/UTILITY | 4 | 0 | 1997 | 192.0 |
Sketch
Property Image
Land
| 1 | 17 | AC (01.01-02.00) | 0.0000 | 0.00 | 0.00 | 0.00 | 1.00 | $290,000 | $0 |
Roll Value History
| 2026 | N/A | N/A | N/A | N/A | N/A |
| 2025 | $256,567 | $290,000 | $0 | $546,567 | $546,567 |
| 2024 | $263,408 | $280,000 | $0 | $543,408 | $543,408 |
| 2023 | $235,023 | $260,000 | $0 | $495,023 | $495,023 |
| 2022 | $218,184 | $250,000 | $0 | $468,184 | $468,184 |
| 2021 | $194,397 | $175,000 | $0 | $369,397 | $369,397 |
| 2020 | $193,214 | $165,000 | $0 | $358,214 | $358,214 |
| 2019 | $141,024 | $200,000 | $0 | $341,024 | $341,024 |
| 2018 | $139,460 | $170,000 | $0 | $309,460 | $309,460 |
| 2017 | $142,819 | $130,000 | $0 | $272,819 | $272,819 |
| 2016 | $144,501 | $100,000 | $0 | $244,501 | $244,501 |
| 2015 | $146,181 | $100,000 | $0 | $246,181 | $246,181 |
| 2014 | $149,541 | $75,000 | $0 | $224,541 | $224,541 |
| 2013 | $169,243 | $85,000 | $0 | $254,243 | $254,243 |
| 2012 | $171,309 | $84,150 | $0 | $255,459 | $255,459 |
| 2011 | $173,375 | $99,000 | $0 | $272,375 | $272,375 |
| 2010 | $179,375 | $110,000 | $0 | $289,375 | $289,375 |
| 2009 | $185,892 | $90,000 | $0 | $275,892 | $275,892 |
| 2008 | $188,723 | $95,000 | $0 | $283,723 | $283,723 |
| 2007 | $186,817 | $96,239 | $0 | $283,056 | $283,056 |
Deed and Sales History
| 1 | 05/18/2018 | WD | Warranty Deed | CASALE, PETER R | REESE-WHITING, ZACHARY JAMES | | | $354,900.00 | 34189 | 4444808 |
| 2 | 12/01/2014 | WD | Warranty Deed | TURNER, CHARLES R | CASALE, PETER R | | | $255,000.00 | 17921 | 4370263 |
| 3 | 01/22/2008 | WD | Warranty Deed | READSHAW, RICHARD L | TURNER, CHARLES R | | | $285,000.00 | 80276 | 4220914 |
| 4 | 08/01/1996 | OTHER | Other - Misc. Documents | READSHAW, RICHARD L | READSHAW, RICHARD L | | | $67,500.00 | 11111111 | 0 |
| 5 | 04/01/1996 | WD | Warranty Deed | ADAD, HERNAN Z | READSHAW, RICHARD L | | | $36,000.00 | 61550 | 96007639 |
| 6 | 12/01/1992 | WD | Warranty Deed | NICHOLS, WILLIAM J | ADAD, HERNAN Z | | | $32,000.00 | 25009 | 92024772 |
| 7 | 05/01/1991 | WD | Warranty Deed | COLFER, A M | NICHOLS, WILLIAM J | | | $27,900.00 | 11928 | 91008214 |
| 8 | 03/01/1990 | WD | Warranty Deed | BLUNDELL, CURTIS C | COLFER, A M | | | $16,606.00 | 1437 | 90004674 |
| 9 | 01/01/1900 | OTHER | Other - Misc. Documents | Unknown | BLUNDELL, CURTIS C | | | $0.00 | 0 | 0 |
Payout Agreement
| No payout information available.. |