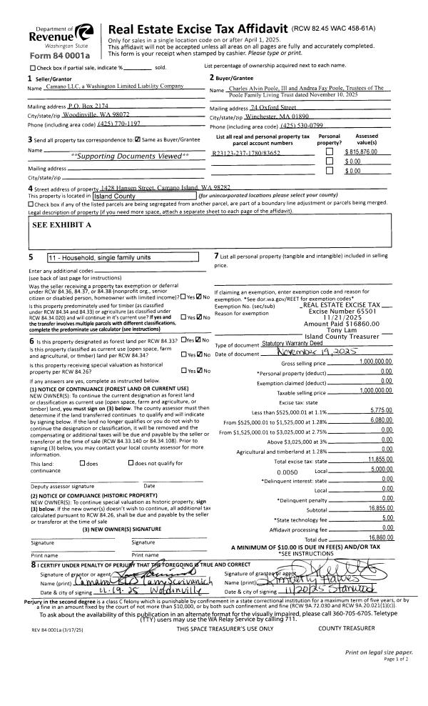
Property
Account |
| Property ID: | 395860 | Abbreviated Legal Description: | SKYLINE WEST 1 LOT 39 |
| Geographic ID: | S8175-00-00039-0 | Agent Code: | |
| Type: | Real | | |
| Tax Area: | 712 - APPRAISER-S Whid Schl Dist, outside Langley, improved, greater than 1 acre | Land Use Code | 11 |
| Open Space: | N | DFL | N |
| Historic Property: | N | Remodel Property: | N |
| Multi-Family Redevelopment: | N | | |
| Township: | | Section: | |
| Range: | |
Location |
| Address: | 2134 NAUTILUS RD FREELAND, WA 98249 | Mapsco: | |
| Neighborhood: | Cycle 3 | Map ID: | 447 |
| Neighborhood CD: | 3 |
Owner |
| Name: | LOVERN, SHIRLEY ANN | Owner ID: | 126456 |
| Mailing Address: | 2134 NAUTILUS RD FREELAND, WA 98249-9485 | % Ownership: | 100.0000000000% |
| | | Exemptions: | SNR/DSBL |
Taxes and Assessment Details
Values
| (+) Improvement Homesite Value: | + | $295,233 | |
| (+) Improvement Non-Homesite Value: | + | $0 | |
| (+) Land Homesite Value: | + | $290,000 | |
| (+) Land Non-Homesite Value: | + | $0 | |
| (+) Curr Use (HS): | + | $0 | $0 |
| (+) Curr Use (NHS): | + | $0 | $0 |
| | | -------------------------- | |
| (=) Market Value: | = | $585,233 | |
| (–) Productivity Loss: | – | $0 | |
| | | -------------------------- | |
| (=) Subtotal: | = | $585,233 | |
| (+) Senior Appraised Value: | + | $254,740 | |
| (+) Non-Senior Appraised Value: | + | $0 | |
| | | -------------------------- | |
| (=) Total Appraised Value: | = | $254,740 | |
| (–) Senior Exemption Loss: | – | $152,844 | |
| (–) Exemption Loss: | – | $0 | |
| | | -------------------------- | |
| (=) Taxable Value: | = | $101,896 | |
Taxing Jurisdiction
| Owner: | LOVERN, SHIRLEY ANN | | |
| % Ownership: | 100.0000000000% | | |
| Total Value: | $585,233 | | |
| Tax Area: | 712 - APPRAISER-S Whid Schl Dist, outside Langley, improved, greater than 1 acre |
| CF | Conservation Futures | 0.0316035091 | $585,233 | $101,896 | $3.22 | | |
| FIRE3 | Fire & Rescue Dist #3 S Whidbey GEN | 1.2004855531 | $585,233 | $101,896 | $122.32 | | |
| HOBOND | Hospital BOND | 0.0000000000 | $585,233 | $0 | $0.00 | | |
| HOGEN | Hospital GEN | 0.3902502903 | $585,233 | $101,896 | $39.76 | | |
| CE | County Current Expense | 0.3708482477 | $585,233 | $101,896 | $37.79 | | |
| CR | County Roads | 0.4584763726 | $585,233 | $101,896 | $46.72 | | |
| ISLANDEMS | Hospital GEN (EMS) | 0.5000000000 | $585,233 | $101,896 | $50.95 | | |
| LIB | Library Sno-Isle GEN | 0.3153421757 | $585,233 | $101,896 | $32.13 | | |
| PORTWHID | Port of S Whidbey GEN | 0.1094540357 | $585,233 | $101,896 | $11.15 | | |
| SCH206BOND | School 206 BOND | 0.3161759235 | $585,233 | $101,896 | $32.22 | | |
| SCH206MO | School 206 Enrichment | 0.0000000000 | $585,233 | $0 | $0.00 | | |
| ST | State School | 1.3035497053 | $585,233 | $101,896 | $132.83 | | |
| ST2 | State School Part 2 | 0.0000000000 | $585,233 | $0 | $0.00 | | |
| SWHIDPRBD | P & R S Whidbey BOND | 0.0000000000 | $585,233 | $0 | $0.00 | | |
| SWHIDPRBD2 | P & R S Whidbey BOND2 | 0.0000000000 | $585,233 | $0 | $0.00 | | |
| SWHIDPRMT | P & R S Whidbey GEN | 0.2053334452 | $585,233 | $101,896 | $20.92 | | |
| | Total Tax Rate: | 5.2015192582 | | | | | |
| | | | | Taxes w/Current Exemptions: | $530.01 | | |
| | | | | Taxes w/o Exemptions: | $3,917.25 | | |
Improvement / Building
| Improvement #1: | RESIDENTIAL | State Code: | Y | 2088.0 sqft | Value: | $295,233 |
| Bathrooms: | 2 | Bedrooms: | 3 | | Ceiling: | DRYWALL PAINTED | Exterior Wall/Cover: | WOOD SIDING | | Floor Covering: | HARDWOOD/CARP 80-20 | Floor Structure: | WOOD W/SUBFLOOR | | Foundation: | CONCRETE | Heating: | WALL HEAT ELECTRIC | | Interior Finish: | DRYWALL PAINT | Plumbing Fixture Cnt: | 9 | | Roof Slope: | 5" IN 12" | Roof Structure/Cover: | CJ ASPHALT |
|
| | Type | Description | Class CD | Sub Class CD | Year Built | Area |
| | BAS | BASE/MAIN FLOOR | 3 | 0 | 1981 | 1876.0 |
| | UB8 | BASEMENT UNFINISHED 8" | 3 | 0 | 1981 | 2000.0 |
| | OWP | OPEN WOOD PORCH W/STEPS | 3 | 0 | 1981 | 816.0 |
| | OWC | OPEN WOOD PORCH W/STEPS/ROOF/C | 3 | 0 | 1981 | 144.0 |
| | LOF | LOFT | 3 | 0 | 1981 | 212.0 |
| | UTY | STORAGE/UTILITY | 3 | 0 | 1981 | 480.0 |
Sketch
Property Image
Land
| 1 | 17 | AC (01.01-02.00) | 0.0000 | 0.00 | 0.00 | 0.00 | 1.00 | $290,000 | $0 |
Roll Value History
| 2026 | N/A | N/A | N/A | N/A | N/A |
| 2025 | $295,233 | $290,000 | $0 | $585,233 | $101,896 |
| 2024 | $300,216 | $280,000 | $0 | $580,216 | $101,896 |
| 2023 | $305,199 | $260,000 | $0 | $565,199 | $101,896 |
| 2022 | $280,870 | $250,000 | $0 | $530,870 | $101,896 |
| 2021 | $248,156 | $175,000 | $0 | $423,156 | $101,896 |
| 2020 | $243,275 | $165,000 | $0 | $408,275 | $101,896 |
| 2019 | $122,534 | $200,000 | $0 | $322,534 | $101,896 |
| 2018 | $123,014 | $170,000 | $0 | $293,014 | $101,896 |
| 2017 | $123,971 | $130,000 | $0 | $253,971 | $101,588 |
| 2016 | $125,892 | $100,000 | $0 | $225,892 | $90,357 |
| 2015 | $127,814 | $100,000 | $0 | $227,814 | $91,126 |
| 2014 | $129,734 | $75,000 | $0 | $204,734 | $81,894 |
| 2013 | $131,983 | $85,000 | $0 | $216,983 | $86,793 |
| 2012 | $133,904 | $68,850 | $0 | $202,754 | $81,102 |
| 2011 | $135,824 | $81,000 | $0 | $216,824 | $86,730 |
| 2010 | $146,131 | $90,000 | $0 | $236,131 | $94,452 |
| 2009 | $152,624 | $90,000 | $0 | $242,624 | $97,050 |
| 2008 | $154,751 | $95,000 | $0 | $249,751 | $99,900 |
| 2007 | $156,422 | $95,872 | $0 | $252,294 | $100,918 |
Deed and Sales History
| 1 | 03/01/1998 | DECREE | Divorce Decree/Legal Separation | CORNELIUS, RANDALL E | LOVERN, SHIRLEY A | | | $0.00 | 80812 | 98004562 |
| 2 | 01/01/1900 | OTHER | Other - Misc. Documents | Unknown | CORNELIUS, RANDALL E | | | $0.00 | 0 | 0 |
Payout Agreement
| No payout information available.. |