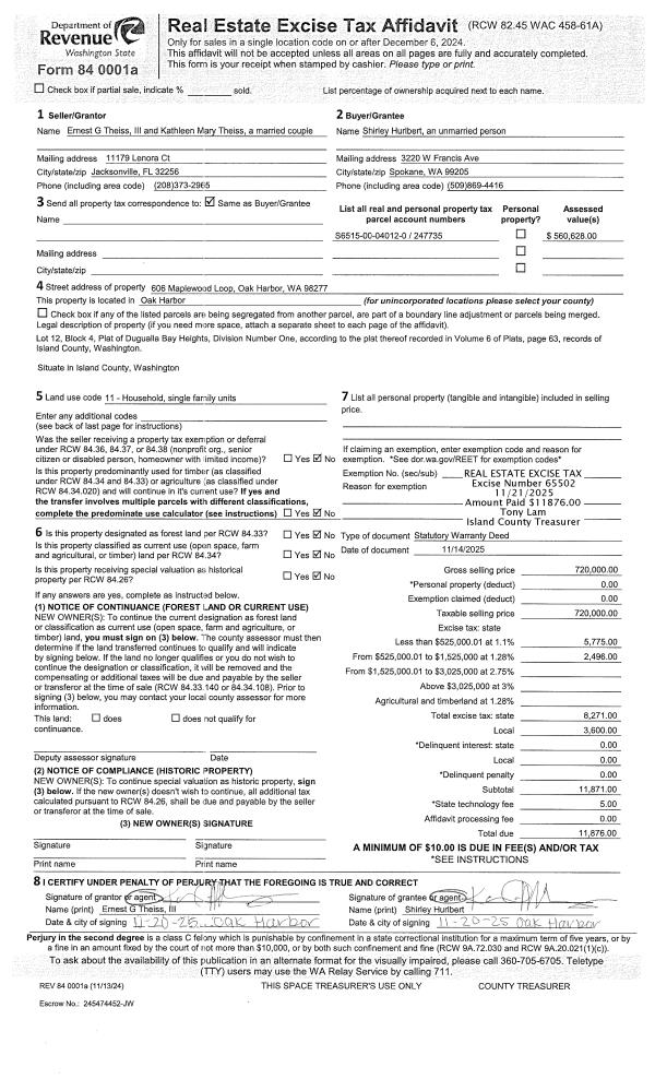
Property
Account |
| Property ID: | 395879 | Abbreviated Legal Description: | SKYLINE WEST 1 LOT 40 |
| Geographic ID: | S8175-00-00040-0 | Agent Code: | |
| Type: | Real | | |
| Tax Area: | 712 - APPRAISER-S Whid Schl Dist, outside Langley, improved, greater than 1 acre | Land Use Code | 11 |
| Open Space: | N | DFL | N |
| Historic Property: | N | Remodel Property: | N |
| Multi-Family Redevelopment: | N | | |
| Township: | | Section: | |
| Range: | |
Location |
| Address: | 2114 NAUTILUS RD FREELAND, WA 98249 | Mapsco: | |
| Neighborhood: | Cycle 3 | Map ID: | 447 |
| Neighborhood CD: | 3 |
Owner |
| Name: | NEWLAND, LORRAINE | Owner ID: | 274353 |
| Mailing Address: | 4465 NOB HILL LN FREELAND, WA 98249-9554 | % Ownership: | 100.0000000000% |
| | | Exemptions: | |
Taxes and Assessment Details
Values
| (+) Improvement Homesite Value: | + | $0 | |
| (+) Improvement Non-Homesite Value: | + | $362,462 | |
| (+) Land Homesite Value: | + | $0 | |
| (+) Land Non-Homesite Value: | + | $290,000 | |
| (+) Curr Use (HS): | + | $0 | $0 |
| (+) Curr Use (NHS): | + | $0 | $0 |
| | | -------------------------- | |
| (=) Market Value: | = | $652,462 | |
| (–) Productivity Loss: | – | $0 | |
| | | -------------------------- | |
| (=) Subtotal: | = | $652,462 | |
| (+) Senior Appraised Value: | + | $0 | |
| (+) Non-Senior Appraised Value: | + | $652,462 | |
| | | -------------------------- | |
| (=) Total Appraised Value: | = | $652,462 | |
| (–) Senior Exemption Loss: | – | $0 | |
| (–) Exemption Loss: | – | $0 | |
| | | -------------------------- | |
| (=) Taxable Value: | = | $652,462 | |
Taxing Jurisdiction
| Owner: | NEWLAND, LORRAINE | | |
| % Ownership: | 100.0000000000% | | |
| Total Value: | $652,462 | | |
| Tax Area: | 712 - APPRAISER-S Whid Schl Dist, outside Langley, improved, greater than 1 acre |
| CF | Conservation Futures | 0.0316035091 | $652,462 | $652,462 | $20.62 | | |
| FIRE3 | Fire & Rescue Dist #3 S Whidbey GEN | 1.2004855531 | $652,462 | $652,462 | $783.27 | | |
| HOBOND | Hospital BOND | 0.1910887512 | $652,462 | $652,462 | $124.68 | | |
| HOGEN | Hospital GEN | 0.3902502903 | $652,462 | $652,462 | $254.62 | | |
| CE | County Current Expense | 0.3708482477 | $652,462 | $652,462 | $241.96 | | |
| CR | County Roads | 0.4584763726 | $652,462 | $652,462 | $299.14 | | |
| ISLANDEMS | Hospital GEN (EMS) | 0.5000000000 | $652,462 | $652,462 | $326.23 | | |
| LIB | Library Sno-Isle GEN | 0.3153421757 | $652,462 | $652,462 | $205.75 | | |
| PORTWHID | Port of S Whidbey GEN | 0.1094540357 | $652,462 | $652,462 | $71.41 | | |
| SCH206BOND | School 206 BOND | 0.3161759235 | $652,462 | $652,462 | $206.29 | | |
| SCH206MO | School 206 Enrichment | 0.4547169547 | $652,462 | $652,462 | $296.69 | | |
| ST | State School | 1.3035497053 | $652,462 | $652,462 | $850.52 | | |
| ST2 | State School Part 2 | 0.8169543533 | $652,462 | $652,462 | $533.03 | | |
| SWHIDPRBD | P & R S Whidbey BOND | 0.0152817568 | $652,462 | $652,462 | $9.97 | | |
| SWHIDPRBD2 | P & R S Whidbey BOND2 | 0.0138911264 | $652,462 | $652,462 | $9.06 | | |
| SWHIDPRMT | P & R S Whidbey GEN | 0.2053334452 | $652,462 | $652,462 | $133.97 | | |
| | Total Tax Rate: | 6.6934522006 | | | | | |
| | | | | Taxes w/Current Exemptions: | $4,367.21 | | |
| | | | | Taxes w/o Exemptions: | $4,367.21 | | |
Improvement / Building
| Improvement #1: | RESIDENTIAL | State Code: | Y | 2226.0 sqft | Value: | $362,462 |
| Bathrooms: | 2.5 | Bedrooms: | 2 | | Ceiling: | DRYWALL PAINTED | Cooling: | HEAT PUMP/CONV/V | | Exterior Wall/Cover: | WOOD SIDING | Floor Covering: | CARPET/VINYL 60-40 | | Floor Structure: | WOOD W/SUBFLOOR | Foundation: | CONCRETE | | Interior Finish: | DRYWALL PAINT | Plumbing Fixture Cnt: | 11 | | Roof Slope: | 8" IN 12" | Roof Structure/Cover: | CJ ALUMINIUM HEAVY |
|
| | Type | Description | Class CD | Sub Class CD | Year Built | Area |
| | BAS | BASE/MAIN FLOOR | 3 | 0 | 1993 | 1048.0 |
| | AGR | ATTACHED GARAGE | 3 | 0 | 1993 | 312.0 |
| | UPS | UPPER STORY | 3 | 0 | 1993 | 678.0 |
| | OWC | OPEN WOOD PORCH W/STEPS/ROOF/C | 3 | 0 | 1993 | 210.0 |
| | OWP | OPEN WOOD PORCH W/STEPS | 3 | 0 | 1993 | 248.0 |
| | OWR | OPEN WOOD PORCH W/STEPS/ROOF | 3 | 0 | 1993 | 104.0 |
| | OWC | OPEN WOOD PORCH W/STEPS/ROOF/C | 3 | 0 | 1993 | 24.0 |
| | oBAR | BARN | 3 | 0 | 1993 | 1728.0 |
| | BIG | BUILT IN GARAGE | 3 | 0 | 1993 | 768.0 |
| | LOF | LOFT | 3 | 0 | 1993 | 500.0 |
Sketch
Property Image
Land
| 1 | 17 | AC (01.01-02.00) | 0.0000 | 0.00 | 0.00 | 0.00 | 1.00 | $290,000 | $0 |
Roll Value History
| 2026 | N/A | N/A | N/A | N/A | N/A |
| 2025 | $362,462 | $290,000 | $0 | $652,462 | $652,462 |
| 2024 | $366,702 | $280,000 | $0 | $646,702 | $646,702 |
| 2023 | $370,946 | $260,000 | $0 | $630,946 | $630,946 |
| 2022 | $344,632 | $250,000 | $0 | $594,632 | $594,632 |
| 2021 | $309,795 | $175,000 | $0 | $484,795 | $484,795 |
| 2020 | $303,842 | $165,000 | $0 | $468,842 | $468,842 |
| 2019 | $254,365 | $200,000 | $0 | $454,365 | $454,365 |
| 2018 | $254,972 | $170,000 | $0 | $424,972 | $424,972 |
| 2017 | $256,186 | $130,000 | $0 | $386,186 | $386,186 |
| 2016 | $258,612 | $100,000 | $0 | $358,612 | $358,612 |
| 2015 | $261,039 | $100,000 | $0 | $361,039 | $361,039 |
| 2014 | $263,466 | $85,000 | $0 | $348,466 | $348,466 |
| 2013 | $280,211 | $85,000 | $0 | $365,211 | $365,211 |
| 2012 | $282,312 | $68,850 | $0 | $351,162 | $351,162 |
| 2011 | $284,414 | $81,000 | $0 | $365,414 | $365,414 |
| 2010 | $291,160 | $90,000 | $0 | $381,160 | $381,160 |
| 2009 | $282,862 | $90,000 | $0 | $372,862 | $372,862 |
| 2008 | $245,430 | $95,000 | $0 | $340,430 | $340,430 |
| 2007 | $232,135 | $95,000 | $0 | $327,135 | $327,135 |
Deed and Sales History
| 1 | 03/17/2016 | DECREE | Divorce Decree/Legal Separation | SALMON, GREGG T | NEWLAND, LORRAINE | | | $0.00 | 23802 | 4397128 |
| 2 | 03/01/1990 | WD | Warranty Deed | WILSON, CAROL B | SALMON, GREGG T | | | $30,000.00 | 1145 | 90003704 |
| 3 | 10/01/1988 | WD | Warranty Deed | JESPERSEN, HAFDEN H | WILSON, CAROL B | | | $16,500.00 | 83505 | 88013063 |
| 4 | 01/01/1988 | QCD | Quit Claim Deed | LEA, WILLIAM M | JESPERSEN, HAFDEN H | | | $0.00 | 83504 | 88013061 |
| 5 | 09/01/1986 | WD | Warranty Deed | JESPERSEN, HAFDEN H | LEA, WILLIAM M | | | $17,784.00 | 62652 | 86012011 |
| 6 | 10/01/1984 | WD | Warranty Deed | BUQUET, WILLIAM | JESPERSEN, HAFDEN H | | | $16,500.00 | 42973 | 84004257 |
| 7 | 11/01/1978 | OTHER | Other - Misc. Documents | Unknown | BUQUET, WILLIAM | | | $9,125.00 | 85501 | 342786 |
Payout Agreement
| No payout information available.. |