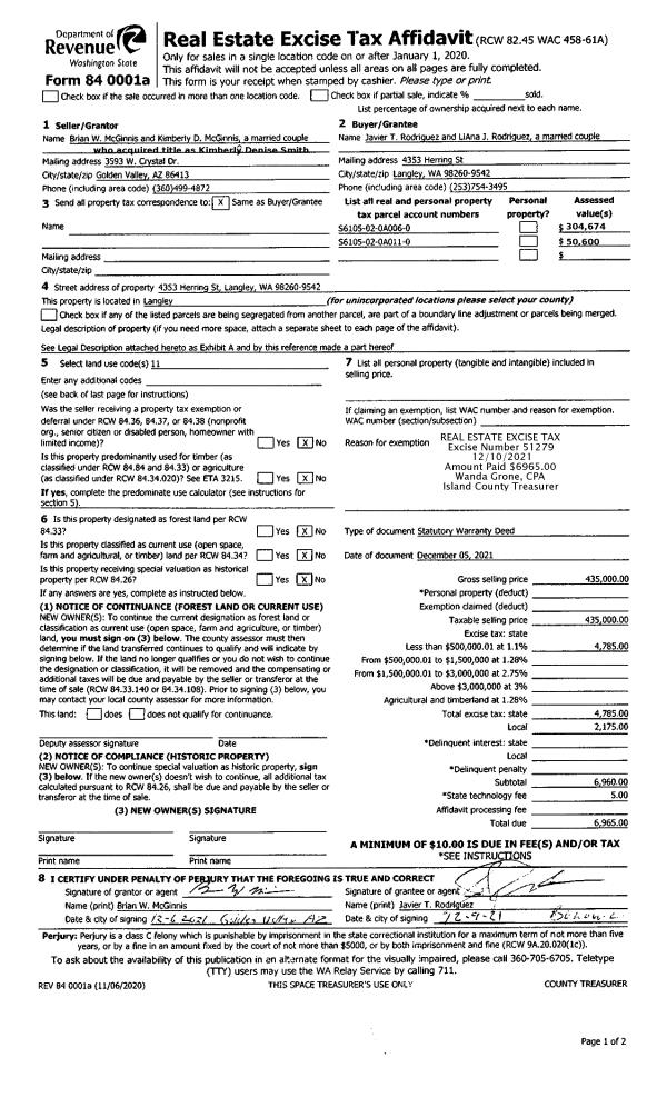
Property
Account |
| Property ID: | 396235 | Abbreviated Legal Description: | SOUND VIEW LOT 13 EX E10' ALSO EX S104.5' TGW N104.5' OF W45 OF E320' OF GL1 TGW N104.5' OF W50' OF E370' OF GL1 OF SEC 6-29-2E |
| Geographic ID: | S8185-00-00013-0 | Agent Code: | |
| Type: | Real | | |
| Tax Area: | 780 - APPRAISER-S Whid Schl Dist, Special District, improved & less than 1 acre | Land Use Code | 11 |
| Open Space: | N | DFL | N |
| Historic Property: | N | Remodel Property: | N |
| Multi-Family Redevelopment: | N | | |
| Township: | | Section: | |
| Range: | |
Location |
| Address: | 397 CARDINAL WAY FREELAND, WA 98249 | Mapsco: | |
| Neighborhood: | Cycle 3 | Map ID: | 300 |
| Neighborhood CD: | 3 |
Owner |
| Name: | BUTLER, BRUCE | Owner ID: | 313470 |
| Mailing Address: | TERRI BUTLER 3065 NW LYNNWOOD CIR CORVALLIS, OR 97330 | % Ownership: | 100.0000000000% |
| | | Exemptions: | |
Taxes and Assessment Details
Values
| (+) Improvement Homesite Value: | + | $0 | |
| (+) Improvement Non-Homesite Value: | + | $609,382 | |
| (+) Land Homesite Value: | + | $0 | |
| (+) Land Non-Homesite Value: | + | $400,000 | |
| (+) Curr Use (HS): | + | $0 | $0 |
| (+) Curr Use (NHS): | + | $0 | $0 |
| | | -------------------------- | |
| (=) Market Value: | = | $1,009,382 | |
| (–) Productivity Loss: | – | $0 | |
| | | -------------------------- | |
| (=) Subtotal: | = | $1,009,382 | |
| (+) Senior Appraised Value: | + | $0 | |
| (+) Non-Senior Appraised Value: | + | $1,009,382 | |
| | | -------------------------- | |
| (=) Total Appraised Value: | = | $1,009,382 | |
| (–) Senior Exemption Loss: | – | $0 | |
| (–) Exemption Loss: | – | $0 | |
| | | -------------------------- | |
| (=) Taxable Value: | = | $1,009,382 | |
Taxing Jurisdiction
| Owner: | BUTLER, BRUCE | | |
| % Ownership: | 100.0000000000% | | |
| Total Value: | $1,009,382 | | |
| Tax Area: | 780 - APPRAISER-S Whid Schl Dist, Special District, improved & less than 1 acre |
| CF | Conservation Futures | 0.0316035091 | $1,009,382 | $1,009,382 | $31.90 | | |
| FIRE3 | Fire & Rescue Dist #3 S Whidbey GEN | 1.2004855531 | $1,009,382 | $1,009,382 | $1,211.75 | | |
| HOBOND | Hospital BOND | 0.1910887512 | $1,009,382 | $1,009,382 | $192.88 | | |
| HOGEN | Hospital GEN | 0.3902502903 | $1,009,382 | $1,009,382 | $393.91 | | |
| CE | County Current Expense | 0.3708482477 | $1,009,382 | $1,009,382 | $374.33 | | |
| CR | County Roads | 0.4584763726 | $1,009,382 | $1,009,382 | $462.78 | | |
| ISLANDEMS | Hospital GEN (EMS) | 0.5000000000 | $1,009,382 | $1,009,382 | $504.69 | | |
| LIB | Library Sno-Isle GEN | 0.3153421757 | $1,009,382 | $1,009,382 | $318.30 | | |
| PORTWHID | Port of S Whidbey GEN | 0.1094540357 | $1,009,382 | $1,009,382 | $110.48 | | |
| SCH206BOND | School 206 BOND | 0.3161759235 | $1,009,382 | $1,009,382 | $319.14 | | |
| SCH206MO | School 206 Enrichment | 0.4547169547 | $1,009,382 | $1,009,382 | $458.98 | | |
| ST | State School | 1.3035497053 | $1,009,382 | $1,009,382 | $1,315.78 | | |
| ST2 | State School Part 2 | 0.8169543533 | $1,009,382 | $1,009,382 | $824.62 | | |
| SWHIDPRBD | P & R S Whidbey BOND | 0.0152817568 | $1,009,382 | $1,009,382 | $15.43 | | |
| SWHIDPRBD2 | P & R S Whidbey BOND2 | 0.0138911264 | $1,009,382 | $1,009,382 | $14.02 | | |
| SWHIDPRMT | P & R S Whidbey GEN | 0.2053334452 | $1,009,382 | $1,009,382 | $207.26 | | |
| | Total Tax Rate: | 6.6934522006 | | | | | |
| | | | | Taxes w/Current Exemptions: | $6,756.25 | | |
| | | | | Taxes w/o Exemptions: | $6,756.25 | | |
Improvement / Building
| Improvement #1: | RESIDENTIAL | State Code: | Y | 2337.8 sqft | Value: | $609,382 |
| Bathrooms: | 3 | Bedrooms: | 2 | | Ceiling: | DRYWALL PAINTED | Exterior Wall/Cover: | WOOD SIDING | | Floor Covering: | CARPET/VINYL 20-80 | Floor Structure: | WOOD W/SUBFLOOR | | Foundation: | CONCRETE | Heating: | FHA GAS | | Interior Finish: | DRYWALL PAINT | Plumbing Fixture Cnt: | 15 | | Roof Slope: | FLAT | Roof Structure/Cover: | BEAM ALUMINUM HEAVY |
|
| | Type | Description | Class CD | Sub Class CD | Year Built | Area |
| | BAS | BASE/MAIN FLOOR | 5 | 0 | 1997 | 1225.0 |
| | BIG | BUILT IN GARAGE | 5 | 0 | 1997 | 768.0 |
| | UPS | UPPER STORY | 5 | 0 | 1997 | 556.8 |
| | OWP | OPEN WOOD PORCH W/STEPS | 5 | 0 | 1997 | 180.0 |
| | OWP | OPEN WOOD PORCH W/STEPS | 5 | 0 | 1997 | 279.0 |
| | OWR | OPEN WOOD PORCH W/STEPS/ROOF | 5 | 0 | 1997 | 180.0 |
| | DWN | DOWNSTAIRS LIVING AREA | 5 | 0 | 1997 | 556.0 |
| | OWR | OPEN WOOD PORCH W/STEPS/ROOF | 5 | 0 | 1997 | 180.0 |
Sketch
| No sketches available for this property. |
Property Image
Land
| 1 | 16 | AC (00.51-01.00) | 0.8400 | 36590.40 | 0.00 | 0.00 | 1.00 | $400,000 | $0 |
Roll Value History
| 2026 | N/A | N/A | N/A | N/A | N/A |
| 2025 | $609,382 | $400,000 | $0 | $1,009,382 | $1,009,382 |
| 2024 | $553,653 | $300,000 | $0 | $853,653 | $853,653 |
| 2023 | $560,225 | $300,000 | $0 | $860,225 | $860,225 |
| 2022 | $513,215 | $280,000 | $0 | $793,215 | $793,215 |
| 2021 | $451,449 | $170,000 | $0 | $621,449 | $621,449 |
| 2020 | $415,355 | $170,000 | $0 | $585,355 | $585,355 |
| 2019 | $314,436 | $200,000 | $0 | $514,436 | $514,436 |
| 2018 | $315,441 | $150,000 | $0 | $465,441 | $465,441 |
| 2017 | $317,450 | $150,000 | $0 | $467,450 | $467,450 |
| 2016 | $321,468 | $150,000 | $0 | $471,468 | $471,468 |
| 2015 | $325,487 | $150,000 | $0 | $475,487 | $475,487 |
| 2014 | $329,505 | $120,000 | $0 | $449,505 | $449,505 |
| 2013 | $333,523 | $157,250 | $0 | $490,773 | $490,773 |
| 2012 | $337,542 | $157,250 | $0 | $494,792 | $494,792 |
| 2011 | $341,561 | $185,000 | $0 | $526,561 | $526,561 |
| 2010 | $353,652 | $185,000 | $0 | $538,652 | $538,652 |
| 2009 | $368,831 | $190,000 | $0 | $558,831 | $558,831 |
| 2008 | $373,261 | $210,000 | $0 | $583,261 | $583,261 |
| 2007 | $377,429 | $210,000 | $0 | $587,429 | $587,429 |
Deed and Sales History
| 1 | 07/18/2024 | WD | Warranty Deed | ROHRBACH, MARY KATHRYN | BUTLER, BRUCE | | | $1,025,000.00 | 60913 | 4575739 |
| 2 | 06/09/2021 | WD | Warranty Deed | GREENWALD, ROGER A | ROHRBACH, MARY KATHRYN | | | $825,000.00 | 48629 | 4521589 |
| 3 | 06/05/2019 | WD | Warranty Deed | MOYER, THOMAS M | GREENWALD, ROGER A | | | $605,000.00 | 38908 | 4465100 |
| 4 | 01/29/2001 | BLA | DNU - Boundary Line Adjustment | MOYER, THOMAS & | MOYER, THOMAS M | | | $0.00 | 68945 | 20010371 |
| 5 | 09/01/1995 | WD | Warranty Deed | CARDCO, | MOYER, THOMAS & | | | $26,500.00 | 53504 | 95016030 |
| 6 | 08/01/1992 | OTHER | Other - Misc. Documents | CARDCO, | CARDCO, | | | $0.00 | 64985 | 92014581 |
| 7 | 01/01/1900 | OTHER | Other - Misc. Documents | Unknown | CARDCO, | | | $0.00 | 0 | 0 |
Payout Agreement
| No payout information available.. |