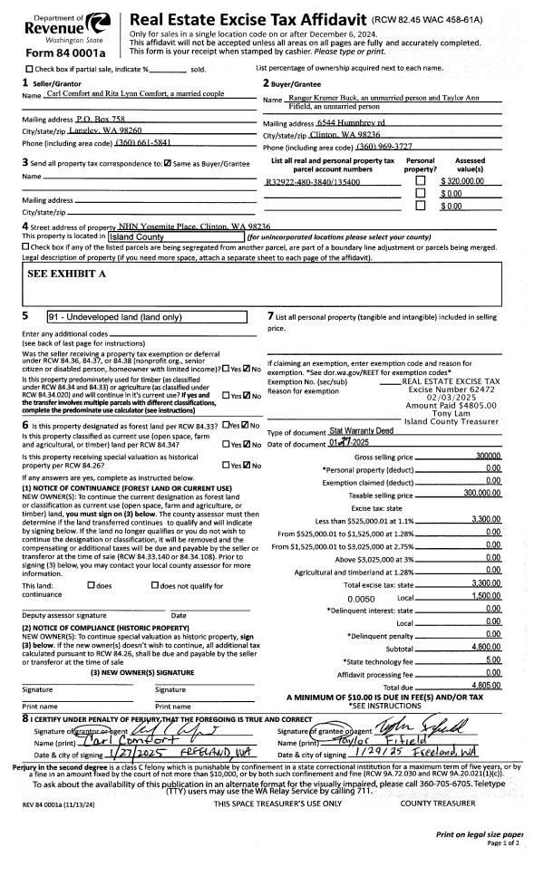
Property
Account |
| Property ID: | 39675 | Abbreviated Legal Description: | 34 - IN GL3:BG SWCR L12 VAC JUANITA N87*W118.89'TPB S87*E116.28' S30*W103.46' N62*W TO WLN TDS NE ALG WLN TP N52*W FR TPB S52*E TPB EX RD |
| Geographic ID: | R13332-262-0320 | Agent Code: | |
| Type: | Real | | |
| Tax Area: | 110 - APPRAISER-OH Schl Dist, outside OH, improved & 1 acre or less | Land Use Code | 11 |
| Open Space: | N | DFL | N |
| Historic Property: | N | Remodel Property: | N |
| Multi-Family Redevelopment: | N | | |
| Township: | 33 | Section: | 32 |
| Range: | R1 |
Location |
| Address: | 2597 WEST BEACH RD OAK HARBOR, WA 98277 | Mapsco: | |
| Neighborhood: | Cycle 1 | Map ID: | 244 |
| Neighborhood CD: | 1 |
Owner |
| Name: | SCHNEE JTWROS, MARILOU S | Owner ID: | 306630 |
| Mailing Address: | RODGER E. SCHNEE JTWROS 2597 W. BEACH RD OAK HARBOR, WA 98277 | % Ownership: | 100.0000000000% |
| | | Exemptions: | |
Taxes and Assessment Details
Values
| (+) Improvement Homesite Value: | + | $0 | |
| (+) Improvement Non-Homesite Value: | + | $403,915 | |
| (+) Land Homesite Value: | + | $0 | |
| (+) Land Non-Homesite Value: | + | $500,000 | |
| (+) Curr Use (HS): | + | $0 | $0 |
| (+) Curr Use (NHS): | + | $0 | $0 |
| | | -------------------------- | |
| (=) Market Value: | = | $903,915 | |
| (–) Productivity Loss: | – | $0 | |
| | | -------------------------- | |
| (=) Subtotal: | = | $903,915 | |
| (+) Senior Appraised Value: | + | $0 | |
| (+) Non-Senior Appraised Value: | + | $903,915 | |
| | | -------------------------- | |
| (=) Total Appraised Value: | = | $903,915 | |
| (–) Senior Exemption Loss: | – | $0 | |
| (–) Exemption Loss: | – | $0 | |
| | | -------------------------- | |
| (=) Taxable Value: | = | $903,915 | |
Taxing Jurisdiction
| Owner: | SCHNEE JTWROS, MARILOU S | | |
| % Ownership: | 100.0000000000% | | |
| Total Value: | $903,915 | | |
| Tax Area: | 110 - APPRAISER-OH Schl Dist, outside OH, improved & 1 acre or less |
| CF | Conservation Futures | 0.0316035091 | $903,915 | $903,915 | $28.57 | | |
| CEM1 | Cemetery #1 | 0.0040320932 | $903,915 | $903,915 | $3.64 | | |
| FIRE2 | Fire & Rescue Dist #2 N Whidbey GEN | 0.5475949600 | $903,915 | $903,915 | $494.98 | | |
| HOBOND | Hospital BOND | 0.1910887512 | $903,915 | $903,915 | $172.73 | | |
| HOGEN | Hospital GEN | 0.3902502903 | $903,915 | $903,915 | $352.75 | | |
| CE | County Current Expense | 0.3708482477 | $903,915 | $903,915 | $335.22 | | |
| CR | County Roads | 0.4584763726 | $903,915 | $903,915 | $414.42 | | |
| ISLANDEMS | Hospital GEN (EMS) | 0.5000000000 | $903,915 | $903,915 | $451.96 | | |
| LIB | Library Sno-Isle GEN | 0.3153421757 | $903,915 | $903,915 | $285.04 | | |
| NWHIDPRMT | P & R N Whidbey GEN | 0.2004466701 | $903,915 | $903,915 | $181.19 | | |
| SCH201MO | School 201 Enrichment | 1.8559231640 | $903,915 | $903,915 | $1,677.60 | | |
| ST | State School | 1.3035497053 | $903,915 | $903,915 | $1,178.30 | | |
| ST2 | State School Part 2 | 0.8169543533 | $903,915 | $903,915 | $738.46 | | |
| | Total Tax Rate: | 6.9861102925 | | | | | |
| | | | | Taxes w/Current Exemptions: | $6,314.86 | | |
| | | | | Taxes w/o Exemptions: | $6,314.86 | | |
Improvement / Building
| Improvement #1: | RESIDENTIAL | State Code: | Y | 1984.1 sqft | Value: | $403,915 |
| Bathrooms: | 2 | Bedrooms: | 2 | | Ceiling: | DRYWALL PAINTED | Exterior Wall/Cover: | SHINGLE | | Floor Covering: | CERAMIC TILE/CPT 40-60 | Floor Structure: | WOOD W/SUBFLOOR | | Foundation: | CONCRETE | Heating: | FHA GAS | | Interior Finish: | DRYWALL PAINT | Plumbing Fixture Cnt: | 9 | | Roof Slope: | 5" IN 12" | Roof Structure/Cover: | CJ ASPHALT |
|
| | Type | Description | Class CD | Sub Class CD | Year Built | Area |
| | BAS | BASE/MAIN FLOOR | 4 | 0 | 1976 | 1304.0 |
| | UTY | STORAGE/UTILITY | 4 | 0 | 1976 | 120.0 |
| | AGR | ATTACHED GARAGE | 4 | 0 | 1976 | 618.0 |
| | UPS | UPPER STORY | 4 | 0 | 1976 | 680.1 |
| | BAW | BALCONY WOOD RAIL | 4 | 0 | 1976 | 72.0 |
| | OWP | OPEN WOOD PORCH W/STEPS | 4 | 0 | 1976 | 1075.5 |
| | OWC | OPEN WOOD PORCH W/STEPS/ROOF/C | 4 | 0 | 1976 | 110.0 |
Sketch
Property Image
Land
| 1 | LB | LOW BANK | 0.1600 | 6969.60 | 32.00 | 0.00 | 1.00 | $500,000 | $0 |
Roll Value History
| 2026 | N/A | N/A | N/A | N/A | N/A |
| 2025 | $403,915 | $500,000 | $0 | $903,915 | $903,915 |
| 2024 | $409,147 | $450,000 | $0 | $859,147 | $859,147 |
| 2023 | $414,375 | $490,000 | $0 | $904,375 | $904,375 |
| 2022 | $379,953 | $450,000 | $0 | $829,953 | $829,953 |
| 2021 | $334,518 | $450,000 | $0 | $784,518 | $784,518 |
| 2020 | $326,589 | $250,000 | $0 | $576,589 | $576,589 |
| 2019 | $244,683 | $300,000 | $0 | $544,683 | $544,683 |
| 2018 | $245,418 | $250,000 | $0 | $495,418 | $495,418 |
| 2017 | $176,276 | $250,000 | $0 | $426,276 | $426,276 |
| 2016 | $178,627 | $250,000 | $0 | $428,627 | $428,627 |
| 2015 | $180,977 | $200,000 | $0 | $380,977 | $380,977 |
| 2014 | $183,327 | $200,000 | $0 | $383,327 | $383,327 |
| 2013 | $185,677 | $185,993 | $0 | $371,670 | $371,670 |
| 2012 | $188,029 | $185,993 | $0 | $374,022 | $374,022 |
| 2011 | $193,135 | $185,993 | $0 | $379,128 | $379,128 |
| 2010 | $199,647 | $185,993 | $0 | $385,640 | $385,640 |
| 2009 | $208,895 | $265,866 | $0 | $474,761 | $474,761 |
| 2008 | $210,892 | $154,810 | $0 | $365,702 | $365,702 |
| 2007 | $191,357 | $169,694 | $0 | $361,050 | $361,050 |
Deed and Sales History
| 1 | 11/09/2022 | QCD | Quit Claim Deed | SCHNEE, GARY E & MARILOU S | SCHNEE JTWROS, MARILOU S | | | $0.00 | 55134 | 4553742 |
| 2 | 11/01/1992 | QCD | Quit Claim Deed | COSTNER, RALPH M | COSTNER, GARY M | | | $0.00 | 24487 | 92021954 |
| 3 | 01/01/1900 | OTHER | Other - Misc. Documents | SCHNEE, GARY E | COSTNER, RALPH M | | | $0.00 | 0 | 0 |
| 4 | 01/01/1900 | WD | Warranty Deed | Unknown | SCHNEE, GARY E | | | $207,000.00 | 72579 | 97012218 |
Payout Agreement
| No payout information available.. |