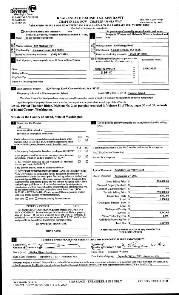
Property
Account |
| Property ID: | 396896 | Abbreviated Legal Description: | SPRING HILL 1 LOT 15 |
| Geographic ID: | S8200-00-00015-0 | Agent Code: | |
| Type: | Real | | |
| Tax Area: | 100 - APPRAISER-OH Schl Dist, in OH | Land Use Code | 11 |
| Open Space: | N | DFL | N |
| Historic Property: | N | Remodel Property: | N |
| Multi-Family Redevelopment: | N | | |
| Township: | | Section: | |
| Range: | |
Location |
| Address: | 352 NW 1ST AVE OAK HARBOR, WA 98277 | Mapsco: | |
| Neighborhood: | Cycle 1 | Map ID: | 253 |
| Neighborhood CD: | 1 |
Owner |
| Name: | CRUZSANTIAGO, FELIX | Owner ID: | 282411 |
| Mailing Address: | 352 NW 1ST AVE OAK HARBOR, WA 98277 | % Ownership: | 100.0000000000% |
| | | Exemptions: | |
Taxes and Assessment Details
Values
| (+) Improvement Homesite Value: | + | $0 | |
| (+) Improvement Non-Homesite Value: | + | $297,304 | |
| (+) Land Homesite Value: | + | $0 | |
| (+) Land Non-Homesite Value: | + | $190,000 | |
| (+) Curr Use (HS): | + | $0 | $0 |
| (+) Curr Use (NHS): | + | $0 | $0 |
| | | -------------------------- | |
| (=) Market Value: | = | $487,304 | |
| (–) Productivity Loss: | – | $0 | |
| | | -------------------------- | |
| (=) Subtotal: | = | $487,304 | |
| (+) Senior Appraised Value: | + | $0 | |
| (+) Non-Senior Appraised Value: | + | $487,304 | |
| | | -------------------------- | |
| (=) Total Appraised Value: | = | $487,304 | |
| (–) Senior Exemption Loss: | – | $0 | |
| (–) Exemption Loss: | – | $0 | |
| | | -------------------------- | |
| (=) Taxable Value: | = | $487,304 | |
Taxing Jurisdiction
| Owner: | CRUZSANTIAGO, FELIX | | |
| % Ownership: | 100.0000000000% | | |
| Total Value: | $487,304 | | |
| Tax Area: | 100 - APPRAISER-OH Schl Dist, in OH |
| CF | Conservation Futures | 0.0316035091 | $487,304 | $487,304 | $15.40 | | |
| CEM1 | Cemetery #1 | 0.0040320932 | $487,304 | $487,304 | $1.96 | | |
| COH | City of Oak Harbor | 2.3001546061 | $487,304 | $487,304 | $1,120.87 | | |
| OAKBOND | City of Oak Harbor BOND | 0.1926904192 | $487,304 | $487,304 | $93.90 | | |
| HOBOND | Hospital BOND | 0.1910887512 | $487,304 | $487,304 | $93.12 | | |
| HOGEN | Hospital GEN | 0.3902502903 | $487,304 | $487,304 | $190.17 | | |
| CE | County Current Expense | 0.3708482477 | $487,304 | $487,304 | $180.72 | | |
| ISLANDEMS | Hospital GEN (EMS) | 0.5000000000 | $487,304 | $487,304 | $243.65 | | |
| LIB | Library Sno-Isle GEN | 0.3153421757 | $487,304 | $487,304 | $153.67 | | |
| NWHIDPRMT | P & R N Whidbey GEN | 0.2004466701 | $487,304 | $487,304 | $97.68 | | |
| SCH201MO | School 201 Enrichment | 1.8559231640 | $487,304 | $487,304 | $904.40 | | |
| ST | State School | 1.3035497053 | $487,304 | $487,304 | $635.22 | | |
| ST2 | State School Part 2 | 0.8169543533 | $487,304 | $487,304 | $398.11 | | |
| | Total Tax Rate: | 8.4728839852 | | | | | |
| | | | | Taxes w/Current Exemptions: | $4,128.87 | | |
| | | | | Taxes w/o Exemptions: | $4,128.87 | | |
Improvement / Building
| Improvement #1: | RESIDENTIAL | State Code: | Y | 2207.0 sqft | Value: | $297,304 |
| Bathrooms: | 2.75 | Bedrooms: | 3 | | Ceiling: | DRYWALL PAINTED | Exterior Wall/Cover: | PLY/HARDBOARD T-111 | | Floor Covering: | CARPET/VINYL 20-80 | Floor Structure: | WOOD W/SUBFLOOR | | Foundation: | CONCRETE | Heating: | FHA GAS | | Interior Finish: | DRYWALL PAINT | Plumbing Fixture Cnt: | 12 | | Roof Slope: | 4" IN 12" | Roof Structure/Cover: | BEAM ASPHALT |
|
| | Type | Description | Class CD | Sub Class CD | Year Built | Area |
| | BAS | BASE/MAIN FLOOR | 3 | 0 | 1977 | 1271.0 |
| | AGR | ATTACHED GARAGE | 3 | 0 | 1977 | 462.0 |
| | OWP | OPEN WOOD PORCH W/STEPS | 3 | 0 | 1977 | 42.0 |
| | OWP | OPEN WOOD PORCH W/STEPS | 3 | 0 | 1977 | 192.0 |
| | DWN | DOWNSTAIRS LIVING AREA | 3 | 0 | 1977 | 936.0 |
Sketch
| No sketches available for this property. |
Property Image
Land
| 1 | 14 | SQ (08001-12000) | 0.0000 | 0.00 | 0.00 | 0.00 | 1.00 | $190,000 | $0 |
Roll Value History
| 2026 | N/A | N/A | N/A | N/A | N/A |
| 2025 | $297,304 | $190,000 | $0 | $487,304 | $487,304 |
| 2024 | $300,217 | $180,000 | $0 | $480,217 | $480,217 |
| 2023 | $296,380 | $190,000 | $0 | $486,380 | $486,380 |
| 2022 | $271,836 | $180,000 | $0 | $451,836 | $451,836 |
| 2021 | $239,409 | $120,000 | $0 | $359,409 | $359,409 |
| 2020 | $233,579 | $100,000 | $0 | $333,579 | $333,579 |
| 2019 | $179,021 | $150,000 | $0 | $329,021 | $329,021 |
| 2018 | $179,571 | $130,000 | $0 | $309,571 | $309,571 |
| 2017 | $165,797 | $110,000 | $0 | $275,797 | $275,797 |
| 2016 | $167,979 | $90,000 | $0 | $257,979 | $257,979 |
| 2015 | $170,160 | $70,000 | $0 | $240,160 | $240,160 |
| 2014 | $172,341 | $55,000 | $0 | $227,341 | $227,341 |
| 2013 | $174,525 | $55,000 | $0 | $229,525 | $229,525 |
| 2012 | $176,704 | $65,000 | $0 | $241,704 | $241,704 |
| 2011 | $180,814 | $65,000 | $0 | $245,814 | $245,814 |
| 2010 | $191,582 | $65,000 | $0 | $256,582 | $256,582 |
| 2009 | $167,755 | $87,150 | $0 | $254,905 | $254,905 |
| 2008 | $169,931 | $105,000 | $0 | $274,931 | $274,931 |
| 2007 | $172,106 | $105,000 | $0 | $277,106 | $277,106 |
Deed and Sales History
| 1 | 10/13/2017 | QCD | Quit Claim Deed | CRUZSANTIAGO, FELIX | CRUZSANTIAGO, FELIX | | | $0.00 | 31495 | 4432021 |
| 2 | 10/12/2017 | WD | Warranty Deed | LIVINGSTON, RONALD | CRUZSANTIAGO, FELIX | | | $318,000.00 | 31494 | 4432020 |
| 3 | 03/23/2009 | WD | Warranty Deed | FALLQUIST, TODD A | LIVINGSTON, RONALD | | | $273,000.00 | 90671 | 4247455 |
| 4 | 09/16/2004 | WD | Warranty Deed | CROSSLEY, TROY L | FALLQUIST, TODD A | | | $226,900.00 | 44352 | 4113070 |
| 5 | 11/01/2001 | WD | Warranty Deed | HARRISON, JOHN S | CROSSLEY, TROY L | | | $173,500.00 | 14253 | 4001828 |
| 6 | 11/01/1979 | WD | Warranty Deed | MARTINEZ, ELIZABETH A | HARRISON, JOHN S | | | $70,000.00 | 95616 | 362192 |
| 7 | 06/01/1979 | QCD | Quit Claim Deed | MARTINEZ, FREDERIC A | MARTINEZ, ELIZABETH A | | | $0.00 | 93058 | 354506 |
| 8 | 01/01/1900 | OTHER | Other - Misc. Documents | Unknown | MARTINEZ, FREDERIC A | | | $0.00 | 0 | 0 |
Payout Agreement
| No payout information available.. |