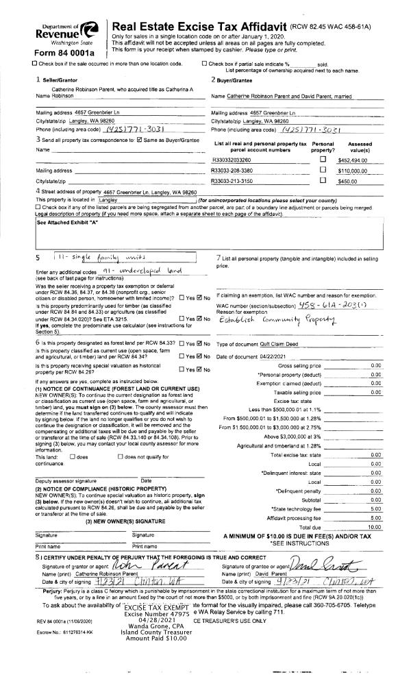
Property
Account |
| Property ID: | 39700 | Abbreviated Legal Description: | 43 - S285' OF E1050' OF GL2 EX RD TGW PT VAC SWANTOWN RD AF#299016 |
| Geographic ID: | R13332-278-2100 | Agent Code: | |
| Type: | Real | | |
| Tax Area: | 112 - APPRAISER-OH Schl Dist, outside OH, improved, greater than 1 acre | Land Use Code | 11 |
| Open Space: | N | DFL | N |
| Historic Property: | N | Remodel Property: | N |
| Multi-Family Redevelopment: | N | | |
| Township: | 33 | Section: | 32 |
| Range: | R1 |
Location |
| Address: | 1917 SWANTOWN RD OAK HARBOR, WA 98277 | Mapsco: | |
| Neighborhood: | Cycle 1 | Map ID: | 246 |
| Neighborhood CD: | 1 |
Owner |
| Name: | GERZENYE, DAVID | Owner ID: | 297321 |
| Mailing Address: | CAROL F GERZENYE 1917 SWANTOWN RD OAK HARBOR, WA 98277 | % Ownership: | 100.0000000000% |
| | | Exemptions: | |
Taxes and Assessment Details
Values
| (+) Improvement Homesite Value: | + | $0 | |
| (+) Improvement Non-Homesite Value: | + | $576,689 | |
| (+) Land Homesite Value: | + | $0 | |
| (+) Land Non-Homesite Value: | + | $350,000 | |
| (+) Curr Use (HS): | + | $0 | $0 |
| (+) Curr Use (NHS): | + | $0 | $0 |
| | | -------------------------- | |
| (=) Market Value: | = | $926,689 | |
| (–) Productivity Loss: | – | $0 | |
| | | -------------------------- | |
| (=) Subtotal: | = | $926,689 | |
| (+) Senior Appraised Value: | + | $0 | |
| (+) Non-Senior Appraised Value: | + | $926,689 | |
| | | -------------------------- | |
| (=) Total Appraised Value: | = | $926,689 | |
| (–) Senior Exemption Loss: | – | $0 | |
| (–) Exemption Loss: | – | $0 | |
| | | -------------------------- | |
| (=) Taxable Value: | = | $926,689 | |
Taxing Jurisdiction
| Owner: | GERZENYE, DAVID | | |
| % Ownership: | 100.0000000000% | | |
| Total Value: | $926,689 | | |
| Tax Area: | 112 - APPRAISER-OH Schl Dist, outside OH, improved, greater than 1 acre |
| CF | Conservation Futures | 0.0316035091 | $926,689 | $926,689 | $29.29 | | |
| CEM1 | Cemetery #1 | 0.0040320932 | $926,689 | $926,689 | $3.74 | | |
| FIRE2 | Fire & Rescue Dist #2 N Whidbey GEN | 0.5475949600 | $926,689 | $926,689 | $507.45 | | |
| HOBOND | Hospital BOND | 0.1910887512 | $926,689 | $926,689 | $177.08 | | |
| HOGEN | Hospital GEN | 0.3902502903 | $926,689 | $926,689 | $361.64 | | |
| CE | County Current Expense | 0.3708482477 | $926,689 | $926,689 | $343.66 | | |
| CR | County Roads | 0.4584763726 | $926,689 | $926,689 | $424.87 | | |
| ISLANDEMS | Hospital GEN (EMS) | 0.5000000000 | $926,689 | $926,689 | $463.34 | | |
| LIB | Library Sno-Isle GEN | 0.3153421757 | $926,689 | $926,689 | $292.22 | | |
| NWHIDPRMT | P & R N Whidbey GEN | 0.2004466701 | $926,689 | $926,689 | $185.75 | | |
| SCH201MO | School 201 Enrichment | 1.8559231640 | $926,689 | $926,689 | $1,719.86 | | |
| ST | State School | 1.3035497053 | $926,689 | $926,689 | $1,207.99 | | |
| ST2 | State School Part 2 | 0.8169543533 | $926,689 | $926,689 | $757.06 | | |
| | Total Tax Rate: | 6.9861102925 | | | | | |
| | | | | Taxes w/Current Exemptions: | $6,473.95 | | |
| | | | | Taxes w/o Exemptions: | $6,473.95 | | |
Improvement / Building
| Improvement #1: | RESIDENTIAL | State Code: | Y | 2620.3 sqft | Value: | $576,689 |
| Bathrooms: | 3 | Bedrooms: | 3 | | Ceiling: | BEAM PAINTED | Exterior Wall/Cover: | SHINGLE | | Floor Covering: | HARDWOOD/CARP 60-40 | Floor Structure: | WOOD W/SUBFLOOR | | Foundation: | CONCRETE | Heating: | RADIANT FLOOR | | Interior Finish: | DRYWALL PAINT | Plumbing Fixture Cnt: | 10 | | Roof Slope: | 6" IN 12" | Roof Structure/Cover: | BEAM ASPHALT |
|
| | Type | Description | Class CD | Sub Class CD | Year Built | Area |
| | BAS | BASE/MAIN FLOOR | 4 | 0 | 1997 | 1899.2 |
| | DWN | DOWNSTAIRS LIVING AREA | 4 | 0 | 1997 | 721.1 |
| | OP4 | OPEN PORCH W/CEILING-ROOF | 4 | 0 | 1997 | 80.0 |
| | DGR | DETACHED GARAGE | 4 | 0 | 1997 | 672.0 |
| | AGR | ATTACHED GARAGE | 4 | 0 | 1997 | 462.0 |
| | OWP | OPEN WOOD PORCH W/STEPS | 4 | 0 | 1997 | 1183.4 |
| | ATU | ATTIC UNFINISHED | 4 | 0 | 1997 | 576.0 |
| | UTY | STORAGE/UTILITY | 4 | 0 | 1997 | 480.0 |
Sketch
Property Image
Land
| 1 | 32 | AC (03.01-09.99) | 6.6600 | 0.00 | 0.00 | 0.00 | 1.00 | $350,000 | $0 |
Roll Value History
| 2026 | N/A | N/A | N/A | N/A | N/A |
| 2025 | $576,689 | $350,000 | $0 | $926,689 | $926,689 |
| 2024 | $575,467 | $320,000 | $0 | $895,467 | $895,467 |
| 2023 | $583,014 | $320,000 | $0 | $903,014 | $903,014 |
| 2022 | $534,765 | $290,000 | $0 | $824,765 | $824,765 |
| 2021 | $470,940 | $240,000 | $0 | $710,940 | $710,940 |
| 2020 | $460,404 | $240,000 | $0 | $700,404 | $700,404 |
| 2019 | $354,968 | $250,000 | $0 | $604,968 | $604,968 |
| 2018 | $356,059 | $200,000 | $0 | $556,059 | $556,059 |
| 2017 | $295,886 | $200,000 | $0 | $495,886 | $495,886 |
| 2016 | $299,485 | $200,000 | $0 | $499,485 | $499,485 |
| 2015 | $303,086 | $200,000 | $0 | $503,086 | $503,086 |
| 2014 | $306,686 | $221,778 | $0 | $528,464 | $528,464 |
| 2013 | $310,285 | $221,778 | $0 | $532,063 | $532,063 |
| 2012 | $313,886 | $221,778 | $0 | $535,664 | $535,664 |
| 2011 | $318,304 | $246,420 | $0 | $564,724 | $564,724 |
| 2010 | $323,736 | $246,420 | $0 | $570,156 | $570,156 |
| 2009 | $337,591 | $299,700 | $0 | $637,291 | $637,291 |
| 2008 | $349,079 | $386,280 | $0 | $735,359 | $735,359 |
| 2007 | $353,589 | $386,280 | $0 | $739,869 | $739,869 |
Deed and Sales History
| 1 | 12/10/2020 | WD | Warranty Deed | WHITMORE, DANIEL | GERZENYE, DAVID | | | $700,000.00 | 46133 | 4505336 |
| 2 | 01/31/2020 | PRD | Personal Representatives Deed | PETERSON, RITA W | WHITMORE, DANIEL | | | $0.00 | 42608 | 4484477 |
| 3 | 10/08/2009 | ESTSEPPROP | Establish Separate Property | CALLISON, WILLIAM L | PETERSON, RITA W | | | $0.00 | 92749 | 4263444 |
| 4 | 12/13/2007 | QCD | Quit Claim Deed | CALLISON TRUSTEE, WILLIAM L | CALLISON, WILLIAM L | | | $0.00 | 74096 | 4218665 |
| 5 | 09/28/2006 | TRUSTEED | Trustee's Deed | CALLISON, WILLIAM L | CALLISON TRUSTEE, WILLIAM L | | | $0.00 | 64320 | 4183513 |
| 6 | 08/06/2004 | WD | Warranty Deed | DAVIS, ROBERT H | CALLISON, WILLIAM L | | | $589,500.00 | 43730 | 4109807 |
| 7 | 05/01/1996 | WD | Warranty Deed | BECKER, ROBERT F | DAVIS, ROBERT H | | | $147,500.00 | 61799 | 96009016 |
| 8 | 04/01/1990 | WD | Warranty Deed | VALDEZ, RAFAEL | BECKER, ROBERT F | | | $85,000.00 | 2206 | 90007207 |
| 9 | 02/01/1986 | QCD | Quit Claim Deed | VALDEZ, RAFAEL | VALDEZ, RAFAEL | | | $0.00 | 60631 | 86003049 |
| 10 | 12/01/1980 | CD | DNU - Correction Deed | EPPARD, CLYDE | VALDEZ, RAFAEL | | | $0.00 | 10710 | 380386 |
| 11 | 05/01/1980 | EXECUTORD | Executor Deed | VALDEZ, RAFAEL | EPPARD, CLYDE | | | $50,000.00 | 1896 | 369564 |
| 12 | 01/01/1900 | OTHER | Other - Misc. Documents | Unknown | VALDEZ, RAFAEL | | | $0.00 | 0 | 0 |
Payout Agreement
| No payout information available.. |