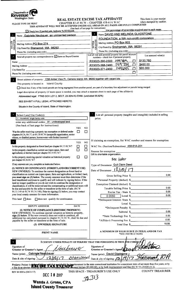
Property
Account |
| Property ID: | 397065 | Abbreviated Legal Description: | SPRING HILL 2 LOT 32 |
| Geographic ID: | S8200-02-00032-0 | Agent Code: | |
| Type: | Real | | |
| Tax Area: | 100 - APPRAISER-OH Schl Dist, in OH | Land Use Code | 11 |
| Open Space: | N | DFL | N |
| Historic Property: | N | Remodel Property: | N |
| Multi-Family Redevelopment: | N | | |
| Township: | | Section: | |
| Range: | |
Location |
| Address: | 546 NW 2ND AVE OAK HARBOR, WA 98277 | Mapsco: | |
| Neighborhood: | Cycle 1 | Map ID: | 253 |
| Neighborhood CD: | 1 |
Owner |
| Name: | ARMSTRONG, VERNIE D | Owner ID: | 80473 |
| Mailing Address: | CAROLYN J ARMSTRONG 546 NW 2ND AVE OAK HARBOR, WA 98277-4431 | % Ownership: | 100.0000000000% |
| | | Exemptions: | |
Taxes and Assessment Details
Values
| (+) Improvement Homesite Value: | + | $0 | |
| (+) Improvement Non-Homesite Value: | + | $258,574 | |
| (+) Land Homesite Value: | + | $0 | |
| (+) Land Non-Homesite Value: | + | $190,000 | |
| (+) Curr Use (HS): | + | $0 | $0 |
| (+) Curr Use (NHS): | + | $0 | $0 |
| | | -------------------------- | |
| (=) Market Value: | = | $448,574 | |
| (–) Productivity Loss: | – | $0 | |
| | | -------------------------- | |
| (=) Subtotal: | = | $448,574 | |
| (+) Senior Appraised Value: | + | $0 | |
| (+) Non-Senior Appraised Value: | + | $448,574 | |
| | | -------------------------- | |
| (=) Total Appraised Value: | = | $448,574 | |
| (–) Senior Exemption Loss: | – | $0 | |
| (–) Exemption Loss: | – | $0 | |
| | | -------------------------- | |
| (=) Taxable Value: | = | $448,574 | |
Taxing Jurisdiction
| Owner: | ARMSTRONG, VERNIE D | | |
| % Ownership: | 100.0000000000% | | |
| Total Value: | $448,574 | | |
| Tax Area: | 100 - APPRAISER-OH Schl Dist, in OH |
| CF | Conservation Futures | 0.0316035091 | $448,574 | $448,574 | $14.18 | | |
| CEM1 | Cemetery #1 | 0.0040320932 | $448,574 | $448,574 | $1.81 | | |
| COH | City of Oak Harbor | 2.3001546061 | $448,574 | $448,574 | $1,031.79 | | |
| OAKBOND | City of Oak Harbor BOND | 0.1926904192 | $448,574 | $448,574 | $86.44 | | |
| HOBOND | Hospital BOND | 0.1910887512 | $448,574 | $448,574 | $85.72 | | |
| HOGEN | Hospital GEN | 0.3902502903 | $448,574 | $448,574 | $175.06 | | |
| CE | County Current Expense | 0.3708482477 | $448,574 | $448,574 | $166.35 | | |
| ISLANDEMS | Hospital GEN (EMS) | 0.5000000000 | $448,574 | $448,574 | $224.29 | | |
| LIB | Library Sno-Isle GEN | 0.3153421757 | $448,574 | $448,574 | $141.45 | | |
| NWHIDPRMT | P & R N Whidbey GEN | 0.2004466701 | $448,574 | $448,574 | $89.92 | | |
| SCH201MO | School 201 Enrichment | 1.8559231640 | $448,574 | $448,574 | $832.52 | | |
| ST | State School | 1.3035497053 | $448,574 | $448,574 | $584.74 | | |
| ST2 | State School Part 2 | 0.8169543533 | $448,574 | $448,574 | $366.46 | | |
| | Total Tax Rate: | 8.4728839852 | | | | | |
| | | | | Taxes w/Current Exemptions: | $3,800.73 | | |
| | | | | Taxes w/o Exemptions: | $3,800.73 | | |
Improvement / Building
| Improvement #1: | RESIDENTIAL | State Code: | Y | 2005.0 sqft | Value: | $258,574 |
| Bathrooms: | 2.75 | Bedrooms: | 3 | | Ceiling: | DRY WALL SPRAYED | Exterior Wall/Cover: | WOOD SIDING | | Floor Covering: | CARPET/VINYL 80-20 | Floor Structure: | WOOD W/SUBFLOOR | | Foundation: | CONCRETE | Heating: | FHA GAS | | Interior Finish: | DRYWALL PAINT | Plumbing Fixture Cnt: | 12 | | Roof Slope: | 4" IN 12" | Roof Structure/Cover: | CJ ASPHALT |
|
| | Type | Description | Class CD | Sub Class CD | Year Built | Area |
| | BAS | BASE/MAIN FLOOR | 3 | 0 | 1973 | 2005.0 |
| | AGR | ATTACHED GARAGE | 3 | 0 | 1973 | 504.0 |
Sketch
Property Image
Land
| 1 | 15 | SQ (12001-21780) | 0.0000 | 0.00 | 0.00 | 0.00 | 1.00 | $190,000 | $0 |
Roll Value History
| 2026 | N/A | N/A | N/A | N/A | N/A |
| 2025 | $258,574 | $190,000 | $0 | $448,574 | $448,574 |
| 2024 | $262,255 | $180,000 | $0 | $442,255 | $442,255 |
| 2023 | $258,574 | $190,000 | $0 | $448,574 | $448,574 |
| 2022 | $237,477 | $180,000 | $0 | $417,477 | $417,477 |
| 2021 | $209,408 | $120,000 | $0 | $329,408 | $329,408 |
| 2020 | $204,388 | $100,000 | $0 | $304,388 | $304,388 |
| 2019 | $153,554 | $150,000 | $0 | $303,554 | $303,554 |
| 2018 | $154,071 | $130,000 | $0 | $284,071 | $284,071 |
| 2017 | $129,277 | $110,000 | $0 | $239,277 | $239,277 |
| 2016 | $131,396 | $90,000 | $0 | $221,396 | $221,396 |
| 2015 | $133,515 | $70,000 | $0 | $203,515 | $203,515 |
| 2014 | $135,634 | $55,000 | $0 | $190,634 | $190,634 |
| 2013 | $137,754 | $55,000 | $0 | $192,754 | $192,754 |
| 2012 | $139,873 | $65,000 | $0 | $204,873 | $204,873 |
| 2011 | $143,264 | $65,000 | $0 | $208,264 | $208,264 |
| 2010 | $154,044 | $65,000 | $0 | $219,044 | $219,044 |
| 2009 | $160,830 | $87,150 | $0 | $247,980 | $247,980 |
| 2008 | $163,030 | $105,000 | $0 | $268,030 | $268,030 |
| 2007 | $165,229 | $105,000 | $0 | $270,229 | $270,229 |
Deed and Sales History
| 1 | 03/18/1999 | WD | Warranty Deed | SEC OF VETERANS AFFAIRS, HENRY | ARMSTRONG, VERNIE D | | | $139,500.00 | 90991 | 99006787 |
| 2 | 12/15/1998 | WD | Warranty Deed | PNC MTG CORP OF AMERICA, | SEC OF VETERANS AFFAIRS, HENRY | | | $0.00 | 84975 | 98027367 |
| 3 | 11/18/1998 | TRUSTEED | Trustee's Deed | SEAHORN, CLAUDE E | PNC MTG CORP OF AMERICA, | | | $134,673.00 | 84974 | 98027366 |
| 4 | 03/01/1996 | WD | Warranty Deed | GREENWALD, RICK J | SEAHORN, CLAUDE E | | | $149,000.00 | 60818 | 96004300 |
| 5 | 11/01/1992 | WD | Warranty Deed | JONES, FREDA R | GREENWALD, RICK J | | | $132,000.00 | 24428 | 92021634 |
| 6 | 08/01/1988 | OTHER | Other - Misc. Documents | JONES, EDWARD L | JONES, FREDA R | | | $0.00 | 62833 | 0 |
| 7 | 01/01/1900 | OTHER | Other - Misc. Documents | Unknown | JONES, EDWARD L | | | $0.00 | 0 | 0 |
Payout Agreement
| No payout information available.. |