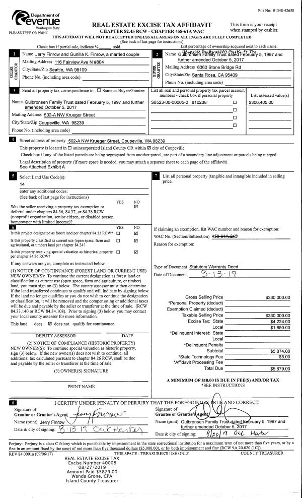
Property
Account |
| Property ID: | 397332 | Abbreviated Legal Description: | SPRINGTREE 1 LOT 9 |
| Geographic ID: | S8205-00-00009-0 | Agent Code: | |
| Type: | Real | | |
| Tax Area: | 100 - APPRAISER-OH Schl Dist, in OH | Land Use Code | 11 |
| Open Space: | N | DFL | N |
| Historic Property: | N | Remodel Property: | N |
| Multi-Family Redevelopment: | N | | |
| Township: | | Section: | |
| Range: | |
Location |
| Address: | 1162 SW 2ND AVE OAK HARBOR, WA 98277 | Mapsco: | |
| Neighborhood: | Cycle 1 | Map ID: | 252 |
| Neighborhood CD: | 1 |
Owner |
| Name: | OLSON, STEVEN J | Owner ID: | 291374 |
| Mailing Address: | 1162 SW 2ND AVE OAK HARBOR, WA 98277 | % Ownership: | 100.0000000000% |
| | | Exemptions: | |
Taxes and Assessment Details
Values
| (+) Improvement Homesite Value: | + | $0 | |
| (+) Improvement Non-Homesite Value: | + | $348,969 | |
| (+) Land Homesite Value: | + | $0 | |
| (+) Land Non-Homesite Value: | + | $200,000 | |
| (+) Curr Use (HS): | + | $0 | $0 |
| (+) Curr Use (NHS): | + | $0 | $0 |
| | | -------------------------- | |
| (=) Market Value: | = | $548,969 | |
| (–) Productivity Loss: | – | $0 | |
| | | -------------------------- | |
| (=) Subtotal: | = | $548,969 | |
| (+) Senior Appraised Value: | + | $0 | |
| (+) Non-Senior Appraised Value: | + | $548,969 | |
| | | -------------------------- | |
| (=) Total Appraised Value: | = | $548,969 | |
| (–) Senior Exemption Loss: | – | $0 | |
| (–) Exemption Loss: | – | $0 | |
| | | -------------------------- | |
| (=) Taxable Value: | = | $548,969 | |
Taxing Jurisdiction
| Owner: | OLSON, STEVEN J | | |
| % Ownership: | 100.0000000000% | | |
| Total Value: | $548,969 | | |
| Tax Area: | 100 - APPRAISER-OH Schl Dist, in OH |
| CF | Conservation Futures | 0.0316035091 | $548,969 | $548,969 | $17.35 | | |
| CEM1 | Cemetery #1 | 0.0040320932 | $548,969 | $548,969 | $2.21 | | |
| COH | City of Oak Harbor | 2.3001546061 | $548,969 | $548,969 | $1,262.71 | | |
| OAKBOND | City of Oak Harbor BOND | 0.1926904192 | $548,969 | $548,969 | $105.78 | | |
| HOBOND | Hospital BOND | 0.1910887512 | $548,969 | $548,969 | $104.90 | | |
| HOGEN | Hospital GEN | 0.3902502903 | $548,969 | $548,969 | $214.24 | | |
| CE | County Current Expense | 0.3708482477 | $548,969 | $548,969 | $203.58 | | |
| ISLANDEMS | Hospital GEN (EMS) | 0.5000000000 | $548,969 | $548,969 | $274.48 | | |
| LIB | Library Sno-Isle GEN | 0.3153421757 | $548,969 | $548,969 | $173.11 | | |
| NWHIDPRMT | P & R N Whidbey GEN | 0.2004466701 | $548,969 | $548,969 | $110.04 | | |
| SCH201MO | School 201 Enrichment | 1.8559231640 | $548,969 | $548,969 | $1,018.84 | | |
| ST | State School | 1.3035497053 | $548,969 | $548,969 | $715.61 | | |
| ST2 | State School Part 2 | 0.8169543533 | $548,969 | $548,969 | $448.48 | | |
| | Total Tax Rate: | 8.4728839852 | | | | | |
| | | | | Taxes w/Current Exemptions: | $4,651.33 | | |
| | | | | Taxes w/o Exemptions: | $4,651.33 | | |
Improvement / Building
| Improvement #1: | RESIDENTIAL | State Code: | Y | 2716.6 sqft | Value: | $348,969 |
| Bathrooms: | 3 | Bedrooms: | 3 | | Ceiling: | DRYWALL PAINTED | Exterior Wall/Cover: | PLY/HARDBOARD T-111 | | Floor Covering: | CARPET/VINYL 80-20 | Floor Structure: | WOOD W/SUBFLOOR | | Foundation: | CONCRETE | Heating: | FHA GAS | | Interior Finish: | DRYWALL PAINT | Plumbing Fixture Cnt: | 12 | | Roof Slope: | 4" IN 12" | Roof Structure/Cover: | CJ ASPHALT |
|
| | Type | Description | Class CD | Sub Class CD | Year Built | Area |
| | BAS | BASE/MAIN FLOOR | 3 | 0 | 1994 | 1352.5 |
| | AGR | ATTACHED GARAGE | 3 | 0 | 1994 | 575.6 |
| | OWP | OPEN WOOD PORCH W/STEPS | 3 | 0 | 1994 | 315.5 |
| | OWP | OPEN WOOD PORCH W/STEPS | 3 | 0 | 1994 | 104.0 |
| | DWN | DOWNSTAIRS LIVING AREA | 3 | 0 | 1994 | 1364.1 |
Sketch
Property Image
Land
| 1 | 14 | SQ (08001-12000) | 0.0000 | 0.00 | 0.00 | 0.00 | 1.00 | $200,000 | $0 |
Roll Value History
| 2026 | N/A | N/A | N/A | N/A | N/A |
| 2025 | $348,969 | $200,000 | $0 | $548,969 | $548,969 |
| 2024 | $353,063 | $190,000 | $0 | $543,063 | $543,063 |
| 2023 | $348,969 | $190,000 | $0 | $538,969 | $538,969 |
| 2022 | $319,721 | $180,000 | $0 | $499,721 | $499,721 |
| 2021 | $281,245 | $120,000 | $0 | $401,245 | $401,245 |
| 2020 | $274,360 | $100,000 | $0 | $374,360 | $374,360 |
| 2019 | $196,260 | $150,000 | $0 | $346,260 | $346,260 |
| 2018 | $196,864 | $130,000 | $0 | $326,864 | $326,864 |
| 2017 | $188,223 | $110,000 | $0 | $298,223 | $298,223 |
| 2016 | $190,576 | $90,000 | $0 | $280,576 | $280,576 |
| 2015 | $192,929 | $70,000 | $0 | $262,929 | $262,929 |
| 2014 | $195,283 | $55,000 | $0 | $250,283 | $250,283 |
| 2013 | $197,634 | $55,000 | $0 | $252,634 | $252,634 |
| 2012 | $199,989 | $65,000 | $0 | $264,989 | $264,989 |
| 2011 | $198,506 | $50,000 | $0 | $248,506 | $248,506 |
| 2010 | $205,493 | $50,000 | $0 | $255,493 | $255,493 |
| 2009 | $214,379 | $68,000 | $0 | $282,379 | $282,379 |
| 2008 | $217,059 | $68,000 | $0 | $285,059 | $285,059 |
| 2007 | $195,643 | $92,068 | $0 | $287,711 | $287,711 |
Deed and Sales History
| 1 | 08/15/2019 | QCD | Quit Claim Deed | FLOWERS-OLSON, CAROL L | OLSON, STEVEN J | | | $0.00 | 39894 | 4469503 |
| 2 | 08/14/2019 | WD | Warranty Deed | CADWELL JR, THOMAS O | OLSON, STEVEN J | | | $404,900.00 | 39893 | 4469502 |
| 3 | 09/13/2017 | WD | Warranty Deed | FLITCROFT, LISA KOETJE | CADWELL JR, THOMAS O | | | $323,000.00 | 31072 | 4430123 |
| 4 | 07/27/2007 | QCD | Quit Claim Deed | GROWNEY, LISA K | FLITCROFT, LISA KOETJE | | | $0.00 | 72714 | 4209175 |
| 5 | 09/01/1994 | QCD | Quit Claim Deed | GROWNEY, LISA K | GROWNEY, LISA K | | | $0.00 | 43805 | 94019782 |
| 6 | 08/01/1994 | WD | Warranty Deed | SSI, PROPERTIES I | GROWNEY, LISA K | | | $176,500.00 | 43804 | 94019781 |
| 7 | 10/01/1993 | WD | Warranty Deed | BODIN, ROBERT C | SSI, PROPERTIES I | | | $0.00 | 34205 | 93021975 |
| 8 | 10/01/1993 | WD | Warranty Deed | EERKES, HERMAN E | BODIN, ROBERT C | | | $40,000.00 | 34206 | 93021976 |
| 9 | 01/01/1900 | OTHER | Other - Misc. Documents | Unknown | EERKES, HERMAN E | | | $0.00 | 0 | 0 |
Payout Agreement
| No payout information available.. |