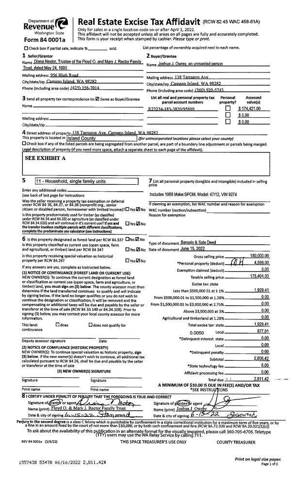
Property
Account |
| Property ID: | 398242 | Abbreviated Legal Description: | SUNDIN BCH LOT 1 BLK 3 & VAC PT IN BCH DR TGW LOT 1 & N/2 OF LOT 2 BLK 2 SUB SEPTIC & DRAIN EAS FOR LOT 1 BLK 1 AF#409920 |
| Geographic ID: | S8215-00-03001-0 | Agent Code: | |
| Type: | Real | | |
| Tax Area: | 510 - APPRAISER-Stan/Cam Schl Dist, improved & 1 acre or less | Land Use Code | 11 |
| Open Space: | N | DFL | N |
| Historic Property: | N | Remodel Property: | N |
| Multi-Family Redevelopment: | N | | |
| Township: | | Section: | |
| Range: | |
Location |
| Address: | 585 SUNDIN DR CAMANO ISLAND, WA 98282 | Mapsco: | |
| Neighborhood: | Cycle 5 | Map ID: | 982 |
| Neighborhood CD: | 5 |
Owner |
| Name: | KOENIG, WILLIAM E | Owner ID: | 67637 |
| Mailing Address: | 8261 NORTHROP PL SW SEATTLE, WA 98136-2243 | % Ownership: | 100.0000000000% |
| | | Exemptions: | |
Taxes and Assessment Details
Values
| (+) Improvement Homesite Value: | + | $0 | |
| (+) Improvement Non-Homesite Value: | + | $241,200 | |
| (+) Land Homesite Value: | + | $0 | |
| (+) Land Non-Homesite Value: | + | $325,000 | |
| (+) Curr Use (HS): | + | $0 | $0 |
| (+) Curr Use (NHS): | + | $0 | $0 |
| | | -------------------------- | |
| (=) Market Value: | = | $566,200 | |
| (–) Productivity Loss: | – | $0 | |
| | | -------------------------- | |
| (=) Subtotal: | = | $566,200 | |
| (+) Senior Appraised Value: | + | $0 | |
| (+) Non-Senior Appraised Value: | + | $566,200 | |
| | | -------------------------- | |
| (=) Total Appraised Value: | = | $566,200 | |
| (–) Senior Exemption Loss: | – | $0 | |
| (–) Exemption Loss: | – | $0 | |
| | | -------------------------- | |
| (=) Taxable Value: | = | $566,200 | |
Taxing Jurisdiction
| Owner: | KOENIG, WILLIAM E | | |
| % Ownership: | 100.0000000000% | | |
| Total Value: | $566,200 | | |
| Tax Area: | 510 - APPRAISER-Stan/Cam Schl Dist, improved & 1 acre or less |
| CF | Conservation Futures | 0.0316035091 | $566,200 | $566,200 | $17.89 | | |
| EMS1 | Fire & Rescue Dist #1 Camano GEN (EMS) | 0.3677864386 | $566,200 | $566,200 | $208.24 | | |
| FIRE1 | Fire & Rescue Dist #1 Camano GEN | 1.2502910536 | $566,200 | $566,200 | $707.91 | | |
| FIRE1BOND | Fire & Rescue Dist #1 Camano BOND | 0.1570001679 | $566,200 | $566,200 | $88.89 | | |
| CE | County Current Expense | 0.3708482477 | $566,200 | $566,200 | $209.97 | | |
| CR | County Roads | 0.4584763726 | $566,200 | $566,200 | $259.59 | | |
| LCIB | Library Sno-Isle BOND (Camano Island) | 0.0396325772 | $566,200 | $566,200 | $22.44 | | |
| LIB | Library Sno-Isle GEN | 0.3153421757 | $566,200 | $566,200 | $178.55 | | |
| SCH205_401 | School 205-401 Enrichment | 1.2698420524 | $566,200 | $566,200 | $718.98 | | |
| SCH205BOND | School 205-401 BOND | 0.9396497583 | $566,200 | $566,200 | $532.03 | | |
| ST | State School | 1.3035497053 | $566,200 | $566,200 | $738.07 | | |
| ST2 | State School Part 2 | 0.8169543533 | $566,200 | $566,200 | $462.56 | | |
| | Total Tax Rate: | 7.3209764117 | | | | | |
| | | | | Taxes w/Current Exemptions: | $4,145.12 | | |
| | | | | Taxes w/o Exemptions: | $4,145.12 | | |
Improvement / Building
| Improvement #1: | RESIDENTIAL | State Code: | Y | 1290.0 sqft | Value: | $241,200 |
| Bathrooms: | 2 | Bedrooms: | 2 | | Ceiling: | DRYWALL PAINTED | Exterior Wall/Cover: | SHINGLE | | Floor Covering: | CERAMIC TILE/CPT 40-60 | Floor Structure: | WOOD W/SUBFLOOR | | Foundation: | CONCRETE | Heating: | WALL HEAT ELECTRIC | | Interior Finish: | DRYWALL PAINT | Plumbing Fixture Cnt: | 10 | | Roof Slope: | 12" IN 12" | Roof Structure/Cover: | STEEL TERNE |
|
| | Type | Description | Class CD | Sub Class CD | Year Built | Area |
| | BAS | BASE/MAIN FLOOR | 3 | 0 | 1984 | 498.0 |
| | UPS | UPPER STORY | 3 | 0 | 1984 | 492.0 |
| | OWP | OPEN WOOD PORCH W/STEPS | 3 | 0 | 1984 | 75.0 |
| | OWP | OPEN WOOD PORCH W/STEPS | 3 | 0 | 1984 | 89.0 |
| | OWP | OPEN WOOD PORCH W/STEPS | 3 | 0 | 1984 | 75.0 |
| | UPH | HALF STORY | 3 | 0 | 1984 | 300.0 |
Sketch
Property Image
Land
| 1 | LB | LOW BANK | 0.0000 | 0.00 | 25.00 | 0.00 | 1.00 | $300,000 | $0 |
| 2 | 12 | SQ (00000-06000) | 0.0000 | 0.00 | 0.00 | 0.00 | 1.00 | $25,000 | $0 |
Roll Value History
| 2026 | N/A | N/A | N/A | N/A | N/A |
| 2025 | $241,200 | $325,000 | $0 | $566,200 | $566,200 |
| 2024 | $244,405 | $325,000 | $0 | $569,405 | $569,405 |
| 2023 | $247,610 | $325,000 | $0 | $572,610 | $572,610 |
| 2022 | $227,113 | $305,000 | $0 | $532,113 | $532,113 |
| 2021 | $200,293 | $250,000 | $0 | $450,293 | $450,293 |
| 2020 | $195,144 | $225,000 | $0 | $420,144 | $420,144 |
| 2019 | $140,192 | $250,000 | $0 | $390,192 | $390,192 |
| 2018 | $140,622 | $225,000 | $0 | $365,622 | $365,622 |
| 2017 | $141,296 | $185,000 | $0 | $326,296 | $326,296 |
| 2016 | $143,017 | $185,000 | $0 | $328,017 | $328,017 |
| 2015 | $119,792 | $175,000 | $0 | $294,792 | $294,792 |
| 2014 | $121,411 | $175,000 | $0 | $296,411 | $296,411 |
| 2013 | $123,028 | $128,429 | $0 | $251,457 | $251,457 |
| 2012 | $124,647 | $128,429 | $0 | $253,076 | $253,076 |
| 2011 | $126,266 | $135,188 | $0 | $261,454 | $261,454 |
| 2010 | $133,596 | $135,188 | $0 | $268,784 | $268,784 |
| 2009 | $98,728 | $131,711 | $0 | $230,439 | $230,439 |
| 2008 | $100,569 | $131,711 | $0 | $232,280 | $232,280 |
| 2007 | $102,411 | $131,711 | $0 | $234,122 | $234,122 |
Deed and Sales History
| 1 | 12/01/1987 | WD | Warranty Deed | ROBINSON, SUE | KOENIG, WILLIAM E | | | $63,550.00 | 74054 | 87017625 |
| 2 | 03/01/1983 | WD | Warranty Deed | MURRAY, KENNETH | ROBINSON, SUE | | | $13,430.00 | 30631 | 407017 |
| 3 | 01/01/1900 | OTHER | Other - Misc. Documents | Unknown | MURRAY, KENNETH | | | $0.00 | 0 | 0 |
Payout Agreement
| No payout information available.. |