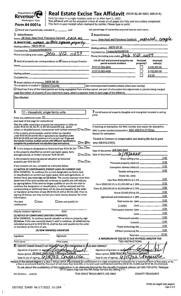
Property
Account |
| Property ID: | 398288 | Abbreviated Legal Description: | SUNDIN BCH LOT 7 BLK 3 & VAC PT OF BCH DR |
| Geographic ID: | S8215-00-03007-0 | Agent Code: | |
| Type: | Real | | |
| Tax Area: | 510 - APPRAISER-Stan/Cam Schl Dist, improved & 1 acre or less | Land Use Code | 11 |
| Open Space: | N | DFL | N |
| Historic Property: | N | Remodel Property: | N |
| Multi-Family Redevelopment: | N | | |
| Township: | | Section: | |
| Range: | |
Location |
| Address: | | Mapsco: | |
| Neighborhood: | Cycle 5 | Map ID: | 982 |
| Neighborhood CD: | 5 |
Owner |
| Name: | HIGH, JEFFREY K | Owner ID: | 197859 |
| Mailing Address: | JERALD H HIGH 16407 64TH AVE W LYNNWOOD, WA 98037 | % Ownership: | 100.0000000000% |
| | | Exemptions: | |
Taxes and Assessment Details
Values
| (+) Improvement Homesite Value: | + | $0 | |
| (+) Improvement Non-Homesite Value: | + | $4,500 | |
| (+) Land Homesite Value: | + | $0 | |
| (+) Land Non-Homesite Value: | + | $50,000 | |
| (+) Curr Use (HS): | + | $0 | $0 |
| (+) Curr Use (NHS): | + | $0 | $0 |
| | | -------------------------- | |
| (=) Market Value: | = | $54,500 | |
| (–) Productivity Loss: | – | $0 | |
| | | -------------------------- | |
| (=) Subtotal: | = | $54,500 | |
| (+) Senior Appraised Value: | + | $0 | |
| (+) Non-Senior Appraised Value: | + | $54,500 | |
| | | -------------------------- | |
| (=) Total Appraised Value: | = | $54,500 | |
| (–) Senior Exemption Loss: | – | $0 | |
| (–) Exemption Loss: | – | $0 | |
| | | -------------------------- | |
| (=) Taxable Value: | = | $54,500 | |
Taxing Jurisdiction
| Owner: | HIGH, JEFFREY K | | |
| % Ownership: | 100.0000000000% | | |
| Total Value: | $54,500 | | |
| Tax Area: | 510 - APPRAISER-Stan/Cam Schl Dist, improved & 1 acre or less |
| CF | Conservation Futures | 0.0316035091 | $54,500 | $54,500 | $1.72 | | |
| EMS1 | Fire & Rescue Dist #1 Camano GEN (EMS) | 0.3677864386 | $54,500 | $54,500 | $20.04 | | |
| FIRE1 | Fire & Rescue Dist #1 Camano GEN | 1.2502910536 | $54,500 | $54,500 | $68.14 | | |
| FIRE1BOND | Fire & Rescue Dist #1 Camano BOND | 0.1570001679 | $54,500 | $54,500 | $8.56 | | |
| CE | County Current Expense | 0.3708482477 | $54,500 | $54,500 | $20.21 | | |
| CR | County Roads | 0.4584763726 | $54,500 | $54,500 | $24.99 | | |
| LCIB | Library Sno-Isle BOND (Camano Island) | 0.0396325772 | $54,500 | $54,500 | $2.16 | | |
| LIB | Library Sno-Isle GEN | 0.3153421757 | $54,500 | $54,500 | $17.19 | | |
| SCH205_401 | School 205-401 Enrichment | 1.2698420524 | $54,500 | $54,500 | $69.21 | | |
| SCH205BOND | School 205-401 BOND | 0.9396497583 | $54,500 | $54,500 | $51.21 | | |
| ST | State School | 1.3035497053 | $54,500 | $54,500 | $71.04 | | |
| ST2 | State School Part 2 | 0.8169543533 | $54,500 | $54,500 | $44.52 | | |
| | Total Tax Rate: | 7.3209764117 | | | | | |
| | | | | Taxes w/Current Exemptions: | $398.99 | | |
| | | | | Taxes w/o Exemptions: | $398.99 | | |
Improvement / Building
| Improvement #1: | RESIDENTIAL | State Code: | Y | 0.0 sqft | Value: | $4,500 |
Sketch
| No sketches available for this property. |
Property Image
Land
| 1 | LB | LOW BANK | 0.0000 | 0.00 | 25.00 | 0.00 | 1.00 | $50,000 | $0 |
Roll Value History
| 2026 | N/A | N/A | N/A | N/A | N/A |
| 2025 | $4,500 | $50,000 | $0 | $54,500 | $54,500 |
| 2024 | $4,500 | $50,000 | $0 | $54,500 | $54,500 |
| 2023 | $4,500 | $50,000 | $0 | $54,500 | $54,500 |
| 2022 | $4,500 | $50,000 | $0 | $54,500 | $54,500 |
| 2021 | $4,500 | $50,000 | $0 | $54,500 | $54,500 |
| 2020 | $4,500 | $50,000 | $0 | $54,500 | $54,500 |
| 2019 | $4,500 | $50,000 | $0 | $54,500 | $54,500 |
| 2018 | $4,500 | $50,000 | $0 | $54,500 | $54,500 |
| 2017 | $4,500 | $50,000 | $0 | $54,500 | $54,500 |
| 2016 | $4,500 | $50,000 | $0 | $54,500 | $54,500 |
| 2015 | $4,516 | $50,000 | $0 | $54,516 | $54,516 |
| 2014 | $4,516 | $50,000 | $0 | $54,516 | $54,516 |
| 2013 | $4,516 | $47,776 | $0 | $52,292 | $52,292 |
| 2012 | $4,516 | $47,776 | $0 | $52,292 | $52,292 |
| 2011 | $4,516 | $50,290 | $0 | $54,806 | $54,806 |
| 2010 | $4,516 | $50,290 | $0 | $54,806 | $54,806 |
| 2009 | $463 | $50,289 | $0 | $50,752 | $50,752 |
| 2008 | $485 | $50,290 | $0 | $50,775 | $50,775 |
| 2007 | $528 | $51,711 | $0 | $52,239 | $52,239 |
Deed and Sales History
| 1 | 12/05/2006 | WD | Warranty Deed | HIGH, KATHERINE | HIGH, JEFFREY | | | $0.00 | 65067 | 4188417 |
| 2 | 11/02/2000 | QCD | Quit Claim Deed | Unknown | HIGH, KATHERINE | | | $0.00 | 4662 | 20021650 |
Payout Agreement
| No payout information available.. |