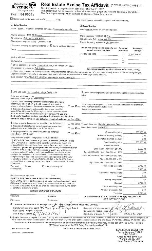
Property
Account |
| Property ID: | 398331 | Abbreviated Legal Description: | SUNDIN BCH LOTS 14 & 15 BLK 3 TGW PT VAC BEACH AVE |
| Geographic ID: | S8215-00-03014-0 | Agent Code: | |
| Type: | Real | | |
| Tax Area: | 510 - APPRAISER-Stan/Cam Schl Dist, improved & 1 acre or less | Land Use Code | 11 |
| Open Space: | N | DFL | N |
| Historic Property: | N | Remodel Property: | N |
| Multi-Family Redevelopment: | N | | |
| Township: | | Section: | |
| Range: | |
Location |
| Address: | 557 SUNDIN DR CAMANO ISLAND, WA 98282 | Mapsco: | |
| Neighborhood: | Cycle 5 | Map ID: | 982 |
| Neighborhood CD: | 5 |
Owner |
| Name: | SEARLE, LAURENCE J | Owner ID: | 278511 |
| Mailing Address: | 557 SUNDIN DRIVE CAMANO ISLAND, WA 98282 | % Ownership: | 100.0000000000% |
| | | Exemptions: | |
Taxes and Assessment Details
Values
| (+) Improvement Homesite Value: | + | $0 | |
| (+) Improvement Non-Homesite Value: | + | $217,439 | |
| (+) Land Homesite Value: | + | $0 | |
| (+) Land Non-Homesite Value: | + | $450,000 | |
| (+) Curr Use (HS): | + | $0 | $0 |
| (+) Curr Use (NHS): | + | $0 | $0 |
| | | -------------------------- | |
| (=) Market Value: | = | $667,439 | |
| (–) Productivity Loss: | – | $0 | |
| | | -------------------------- | |
| (=) Subtotal: | = | $667,439 | |
| (+) Senior Appraised Value: | + | $0 | |
| (+) Non-Senior Appraised Value: | + | $667,439 | |
| | | -------------------------- | |
| (=) Total Appraised Value: | = | $667,439 | |
| (–) Senior Exemption Loss: | – | $0 | |
| (–) Exemption Loss: | – | $0 | |
| | | -------------------------- | |
| (=) Taxable Value: | = | $667,439 | |
Taxing Jurisdiction
| Owner: | SEARLE, LAURENCE J | | |
| % Ownership: | 100.0000000000% | | |
| Total Value: | $667,439 | | |
| Tax Area: | 510 - APPRAISER-Stan/Cam Schl Dist, improved & 1 acre or less |
| CF | Conservation Futures | 0.0316035091 | $667,439 | $667,439 | $21.09 | | |
| EMS1 | Fire & Rescue Dist #1 Camano GEN (EMS) | 0.3677864386 | $667,439 | $667,439 | $245.48 | | |
| FIRE1 | Fire & Rescue Dist #1 Camano GEN | 1.2502910536 | $667,439 | $667,439 | $834.49 | | |
| FIRE1BOND | Fire & Rescue Dist #1 Camano BOND | 0.1570001679 | $667,439 | $667,439 | $104.79 | | |
| CE | County Current Expense | 0.3708482477 | $667,439 | $667,439 | $247.52 | | |
| CR | County Roads | 0.4584763726 | $667,439 | $667,439 | $306.01 | | |
| LCIB | Library Sno-Isle BOND (Camano Island) | 0.0396325772 | $667,439 | $667,439 | $26.45 | | |
| LIB | Library Sno-Isle GEN | 0.3153421757 | $667,439 | $667,439 | $210.47 | | |
| SCH205_401 | School 205-401 Enrichment | 1.2698420524 | $667,439 | $667,439 | $847.54 | | |
| SCH205BOND | School 205-401 BOND | 0.9396497583 | $667,439 | $667,439 | $627.16 | | |
| ST | State School | 1.3035497053 | $667,439 | $667,439 | $870.04 | | |
| ST2 | State School Part 2 | 0.8169543533 | $667,439 | $667,439 | $545.27 | | |
| | Total Tax Rate: | 7.3209764117 | | | | | |
| | | | | Taxes w/Current Exemptions: | $4,886.31 | | |
| | | | | Taxes w/o Exemptions: | $4,886.31 | | |
Improvement / Building
| Improvement #1: | RESIDENTIAL | State Code: | Y | 1314.0 sqft | Value: | $217,439 |
| Bathrooms: | 1 | Bedrooms: | 2 | | Ceiling: | PLYWOOD PAINTED | Cooling: | HEAT PUMP/CONV/V | | Exterior Wall/Cover: | PLY/HARDBOARD T-111 | Floor Covering: | CERAMIC TILE/CPT 40-60 | | Floor Structure: | WOOD W/SUBFLOOR | Foundation: | CONCRETE | | Interior Finish: | DRYWALL PAINT | Plumbing Fixture Cnt: | 6 | | Roof Slope: | 4" IN 12" | Roof Structure/Cover: | CJ ASPHALT |
|
| | Type | Description | Class CD | Sub Class CD | Year Built | Area |
| | BAS | BASE/MAIN FLOOR | 3 | 0 | 1930 | 1314.0 |
| | OP1 | OPEN PORCH SLAB | 3 | 0 | 1930 | 190.0 |
| | UTY | STORAGE/UTILITY | 3 | 0 | 1930 | 16.0 |
| | OWP | OPEN WOOD PORCH W/STEPS | 3 | 0 | 1930 | 158.5 |
| | OWC | OPEN WOOD PORCH W/STEPS/ROOF/C | 3 | 0 | 1930 | 18.0 |
| | ENP | ENCLOSED PORCH | 3 | 0 | 1930 | 111.5 |
Sketch
Property Image
Land
| 1 | LB | LOW BANK | 0.0918 | 3998.81 | 50.00 | 0.00 | 1.00 | $450,000 | $0 |
Roll Value History
| 2026 | N/A | N/A | N/A | N/A | N/A |
| 2025 | $217,439 | $450,000 | $0 | $667,439 | $667,439 |
| 2024 | $220,329 | $450,000 | $0 | $670,329 | $670,329 |
| 2023 | $223,218 | $440,000 | $0 | $663,218 | $663,218 |
| 2022 | $204,742 | $400,000 | $0 | $604,742 | $604,742 |
| 2021 | $175,760 | $325,000 | $0 | $500,760 | $500,760 |
| 2020 | $148,232 | $300,000 | $0 | $448,232 | $448,232 |
| 2019 | $108,433 | $375,000 | $0 | $483,433 | $483,433 |
| 2018 | $108,814 | $350,000 | $0 | $458,814 | $458,814 |
| 2017 | $109,549 | $325,000 | $0 | $434,549 | $434,549 |
| 2016 | $111,071 | $300,000 | $0 | $411,071 | $411,071 |
| 2015 | $115,011 | $300,000 | $0 | $415,011 | $415,011 |
| 2014 | $116,547 | $300,000 | $0 | $416,547 | $416,547 |
| 2013 | $118,081 | $282,542 | $0 | $400,623 | $400,623 |
| 2012 | $119,619 | $282,542 | $0 | $402,161 | $402,161 |
| 2011 | $121,153 | $297,412 | $0 | $418,565 | $418,565 |
| 2010 | $124,546 | $297,412 | $0 | $421,958 | $421,958 |
| 2009 | $123,030 | $263,422 | $0 | $386,452 | $386,452 |
| 2008 | $124,682 | $263,422 | $0 | $388,104 | $388,104 |
| 2007 | $126,315 | $263,422 | $0 | $389,737 | $389,737 |
Deed and Sales History
| 1 | 01/13/2017 | ESTSEPPROP | Establish Separate Property | SEARLE, LAWRENCE J | SEARLE, LAURENCE J | | | $0.00 | 28065 | 4416987 |
| 2 | 08/27/1998 | WD | Warranty Deed | EPSTEIN, RICHARD L | SEARLE, LAWRENCE J | | | $260,000.00 | 83424 | 98017882 |
| 3 | 05/01/1994 | WD | Warranty Deed | MONDSCHEIN, LAWRENCE D | EPSTEIN, RICHARD L | | | $200,000.00 | 42302 | 94013082 |
| 4 | 12/01/1984 | QCD | Quit Claim Deed | MONDSCHEIN, LAWRENCE D | MONDSCHEIN, LAWRENCE D | | | $0.00 | 43618 | 84006869 |
Payout Agreement
| No payout information available.. |