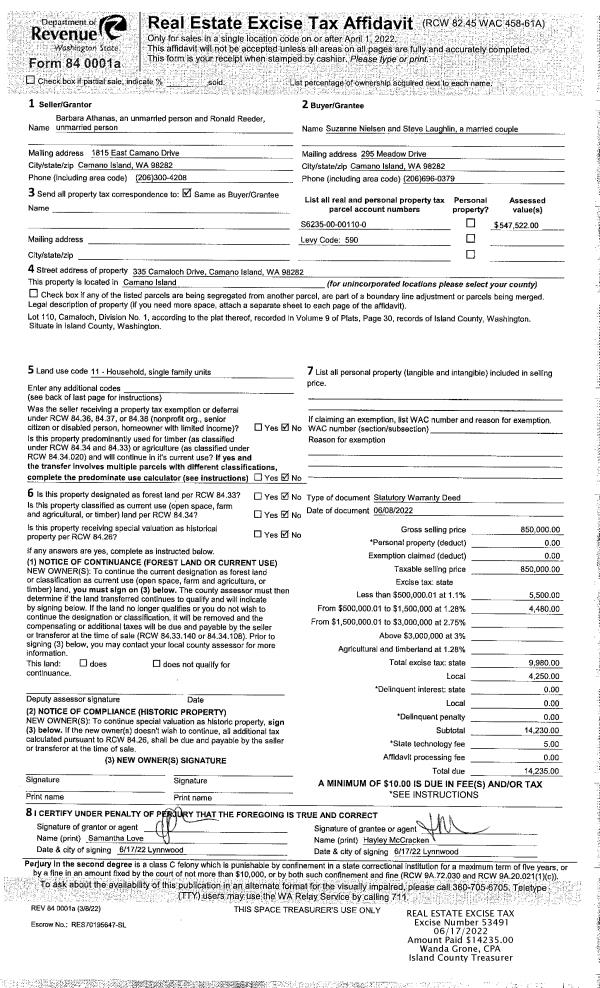
Property
Account |
| Property ID: | 398340 | Abbreviated Legal Description: | SUNDIN BCH LOT 16 BLK 3 TGW PT ADJ VAC BEACH AVE |
| Geographic ID: | S8215-00-03016-0 | Agent Code: | |
| Type: | Real | | |
| Tax Area: | 519 - APPRAISER-Stan/Cam Schl Dist, vacant & 50 acres or less | Land Use Code | 99 |
| Open Space: | N | DFL | N |
| Historic Property: | N | Remodel Property: | N |
| Multi-Family Redevelopment: | N | | |
| Township: | | Section: | |
| Range: | |
Location |
| Address: | | Mapsco: | |
| Neighborhood: | Cycle 5 | Map ID: | 982 |
| Neighborhood CD: | 5 |
Owner |
| Name: | IVERSON, JAY | Owner ID: | 256473 |
| Mailing Address: | JEAN IVERSON MELISSA A JOHNSON KARI L IVERSON LEE MATTHEW T IVERSON BOX 261 PALOUSE, WA 99161 | % Ownership: | 100.0000000000% |
| | | Exemptions: | |
Taxes and Assessment Details
Values
| (+) Improvement Homesite Value: | + | $0 | |
| (+) Improvement Non-Homesite Value: | + | $0 | |
| (+) Land Homesite Value: | + | $0 | |
| (+) Land Non-Homesite Value: | + | $50,000 | |
| (+) Curr Use (HS): | + | $0 | $0 |
| (+) Curr Use (NHS): | + | $0 | $0 |
| | | -------------------------- | |
| (=) Market Value: | = | $50,000 | |
| (–) Productivity Loss: | – | $0 | |
| | | -------------------------- | |
| (=) Subtotal: | = | $50,000 | |
| (+) Senior Appraised Value: | + | $0 | |
| (+) Non-Senior Appraised Value: | + | $50,000 | |
| | | -------------------------- | |
| (=) Total Appraised Value: | = | $50,000 | |
| (–) Senior Exemption Loss: | – | $0 | |
| (–) Exemption Loss: | – | $0 | |
| | | -------------------------- | |
| (=) Taxable Value: | = | $50,000 | |
Taxing Jurisdiction
| Owner: | IVERSON, JAY | | |
| % Ownership: | 100.0000000000% | | |
| Total Value: | $50,000 | | |
| Tax Area: | 519 - APPRAISER-Stan/Cam Schl Dist, vacant & 50 acres or less |
| CF | Conservation Futures | 0.0316035091 | $50,000 | $50,000 | $1.58 | | |
| EMS1 | Fire & Rescue Dist #1 Camano GEN (EMS) | 0.3677864386 | $50,000 | $50,000 | $18.39 | | |
| CE | County Current Expense | 0.3708482477 | $50,000 | $50,000 | $18.54 | | |
| CR | County Roads | 0.4584763726 | $50,000 | $50,000 | $22.92 | | |
| LCIB | Library Sno-Isle BOND (Camano Island) | 0.0396325772 | $50,000 | $50,000 | $1.98 | | |
| LIB | Library Sno-Isle GEN | 0.3153421757 | $50,000 | $50,000 | $15.77 | | |
| SCH205_401 | School 205-401 Enrichment | 1.2698420524 | $50,000 | $50,000 | $63.49 | | |
| SCH205BOND | School 205-401 BOND | 0.9396497583 | $50,000 | $50,000 | $46.98 | | |
| ST | State School | 1.3035497053 | $50,000 | $50,000 | $65.18 | | |
| ST2 | State School Part 2 | 0.8169543533 | $50,000 | $50,000 | $40.85 | | |
| | Total Tax Rate: | 5.9136851902 | | | | | |
| | | | | Taxes w/Current Exemptions: | $295.68 | | |
| | | | | Taxes w/o Exemptions: | $295.68 | | |
Improvement / Building
Sketch
| No sketches available for this property. |
Property Image
Land
| 1 | LB | LOW BANK | 0.0000 | 0.00 | 25.00 | 0.00 | 1.00 | $50,000 | $0 |
Roll Value History
| 2026 | N/A | N/A | N/A | N/A | N/A |
| 2025 | $0 | $50,000 | $0 | $50,000 | $50,000 |
| 2024 | $0 | $50,000 | $0 | $50,000 | $50,000 |
| 2023 | $0 | $50,000 | $0 | $50,000 | $50,000 |
| 2022 | $0 | $50,000 | $0 | $50,000 | $50,000 |
| 2021 | $0 | $50,000 | $0 | $50,000 | $50,000 |
| 2020 | $0 | $50,000 | $0 | $50,000 | $50,000 |
| 2019 | $0 | $50,000 | $0 | $50,000 | $50,000 |
| 2018 | $0 | $50,000 | $0 | $50,000 | $50,000 |
| 2017 | $0 | $50,000 | $0 | $50,000 | $50,000 |
| 2016 | $0 | $50,000 | $0 | $50,000 | $50,000 |
| 2015 | $0 | $50,000 | $0 | $50,000 | $50,000 |
| 2014 | $0 | $50,000 | $0 | $50,000 | $50,000 |
| 2013 | $0 | $59,869 | $0 | $59,869 | $59,869 |
| 2012 | $0 | $59,869 | $0 | $59,869 | $59,869 |
| 2011 | $0 | $59,869 | $0 | $59,869 | $59,869 |
| 2010 | $0 | $59,869 | $0 | $59,869 | $59,869 |
Deed and Sales History
| 1 | 07/29/2011 | QCD | Quit Claim Deed | IVERSON, GARY | IVERSON, JAY | | | $0.00 | 6467 | 4306951 |
| 2 | 11/13/2010 | QCD | Quit Claim Deed | IVERSON ET AL, MATTHEW | IVERSON, GARY | | | | 3072 | 4286515 |
| 3 | 12/17/2009 | QCD | Quit Claim Deed | IVERSON, GAIL E | IVERSON ET AL, MATTHEW | | | $0.00 | 93129 | 4265677 |
| 4 | 08/01/1990 | WD | Warranty Deed | ANDERSON, ROSE S | IVERSON, GAIL E | | | $40,000.00 | 5414 | 90018078 |
| 5 | 01/01/1900 | OTHER | Other - Misc. Documents | Unknown | ANDERSON, ROSE S | | | $0.00 | 0 | 0 |
Payout Agreement
| No payout information available.. |