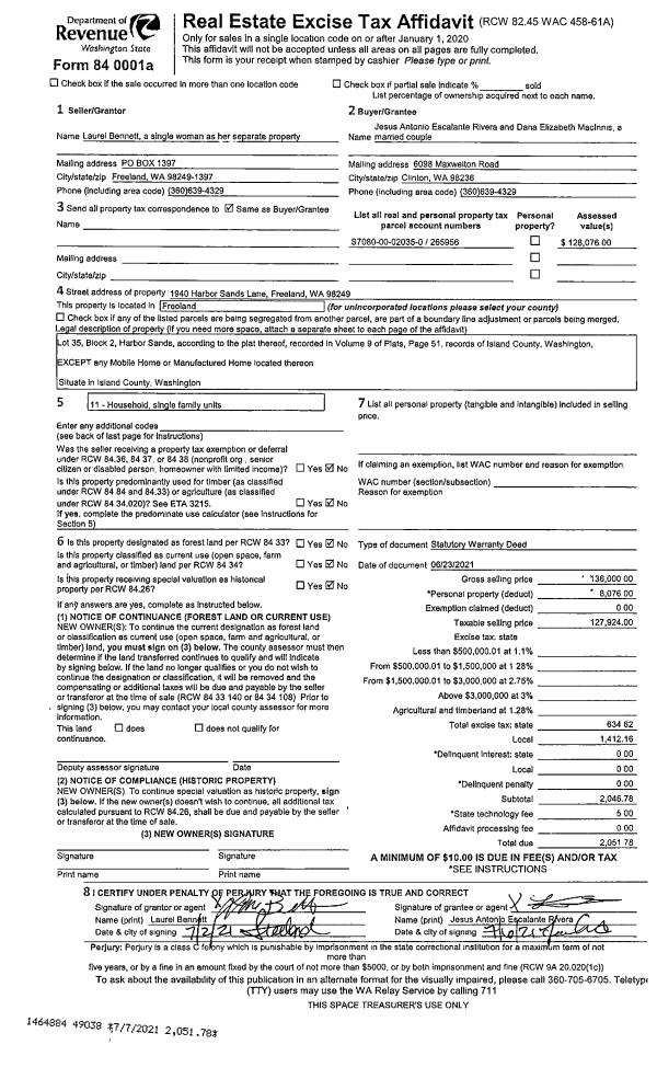
Property
Account |
| Property ID: | 398527 | Abbreviated Legal Description: | SUNLIGHT BCH LOT 13 INCL ADJ TIDES |
| Geographic ID: | S8220-00-00013-0 | Agent Code: | |
| Type: | Real | | |
| Tax Area: | 810 - APPRAISER-S Whid Schl Dist, Diking District#1, improved & 1 acre or less | Land Use Code | 11 |
| Open Space: | N | DFL | N |
| Historic Property: | N | Remodel Property: | N |
| Multi-Family Redevelopment: | N | | |
| Township: | | Section: | |
| Range: | |
Location |
| Address: | 2556 SUNLIGHT BEACH RD CLINTON, WA 98236 | Mapsco: | |
| Neighborhood: | Cycle 4 | Map ID: | 789 |
| Neighborhood CD: | 4 |
Owner |
| Name: | LEWIS TTEE, WILLIAM M | Owner ID: | 298462 |
| Mailing Address: | MERRY A LEWIS 530 WOODLAND RD KENTFIELD, CA 94904 | % Ownership: | 100.0000000000% |
| | | Exemptions: | |
Taxes and Assessment Details
Values
| (+) Improvement Homesite Value: | + | $0 | |
| (+) Improvement Non-Homesite Value: | + | $304,791 | |
| (+) Land Homesite Value: | + | $0 | |
| (+) Land Non-Homesite Value: | + | $1,250,480 | |
| (+) Curr Use (HS): | + | $0 | $0 |
| (+) Curr Use (NHS): | + | $0 | $0 |
| | | -------------------------- | |
| (=) Market Value: | = | $1,555,271 | |
| (–) Productivity Loss: | – | $0 | |
| | | -------------------------- | |
| (=) Subtotal: | = | $1,555,271 | |
| (+) Senior Appraised Value: | + | $0 | |
| (+) Non-Senior Appraised Value: | + | $1,555,271 | |
| | | -------------------------- | |
| (=) Total Appraised Value: | = | $1,555,271 | |
| (–) Senior Exemption Loss: | – | $0 | |
| (–) Exemption Loss: | – | $0 | |
| | | -------------------------- | |
| (=) Taxable Value: | = | $1,555,271 | |
Taxing Jurisdiction
| Owner: | LEWIS TTEE, WILLIAM M | | |
| % Ownership: | 100.0000000000% | | |
| Total Value: | $1,555,271 | | |
| Tax Area: | 810 - APPRAISER-S Whid Schl Dist, Diking District#1, improved & 1 acre or less |
| CF | Conservation Futures | 0.0316035091 | $1,555,271 | $1,555,271 | $49.15 | | |
| FIRE3 | Fire & Rescue Dist #3 S Whidbey GEN | 1.2004855531 | $1,555,271 | $1,555,271 | $1,867.08 | | |
| HOBOND | Hospital BOND | 0.1910887512 | $1,555,271 | $1,555,271 | $297.19 | | |
| HOGEN | Hospital GEN | 0.3902502903 | $1,555,271 | $1,555,271 | $606.94 | | |
| CE | County Current Expense | 0.3708482477 | $1,555,271 | $1,555,271 | $576.77 | | |
| CR | County Roads | 0.4584763726 | $1,555,271 | $1,555,271 | $713.06 | | |
| ISLANDEMS | Hospital GEN (EMS) | 0.5000000000 | $1,555,271 | $1,555,271 | $777.64 | | |
| LIB | Library Sno-Isle GEN | 0.3153421757 | $1,555,271 | $1,555,271 | $490.44 | | |
| PORTWHID | Port of S Whidbey GEN | 0.1094540357 | $1,555,271 | $1,555,271 | $170.23 | | |
| SCH206BOND | School 206 BOND | 0.3161759235 | $1,555,271 | $1,555,271 | $491.74 | | |
| SCH206MO | School 206 Enrichment | 0.4547169547 | $1,555,271 | $1,555,271 | $707.21 | | |
| ST | State School | 1.3035497053 | $1,555,271 | $1,555,271 | $2,027.37 | | |
| ST2 | State School Part 2 | 0.8169543533 | $1,555,271 | $1,555,271 | $1,270.59 | | |
| SWHIDPRBD | P & R S Whidbey BOND | 0.0152817568 | $1,555,271 | $1,555,271 | $23.77 | | |
| SWHIDPRBD2 | P & R S Whidbey BOND2 | 0.0138911264 | $1,555,271 | $1,555,271 | $21.60 | | |
| SWHIDPRMT | P & R S Whidbey GEN | 0.2053334452 | $1,555,271 | $1,555,271 | $319.35 | | |
| | Total Tax Rate: | 6.6934522006 | | | | | |
| | | | | Taxes w/Current Exemptions: | $10,410.13 | | |
| | | | | Taxes w/o Exemptions: | $10,410.13 | | |
Improvement / Building
| Improvement #1: | RESIDENTIAL | State Code: | Y | 1937.2 sqft | Value: | $304,791 |
| Bathrooms: | 2 | Bedrooms: | 3 | | Ceiling: | DRYWALL PAINTED | Exterior Wall/Cover: | SHINGLE | | Floor Covering: | CARPET/VINYL 80-20 | Floor Structure: | WOOD W/SUBFLOOR | | Foundation: | CONCRETE | Heating: | BASEBOARD ELECTRIC | | Interior Finish: | DRYWALL PAINT | Plumbing Fixture Cnt: | 9 | | Roof Slope: | 4" IN 12" | Roof Structure/Cover: | CJ WOOD SHAKES |
|
| | Type | Description | Class CD | Sub Class CD | Year Built | Area |
| | BAS | BASE/MAIN FLOOR | 4 | 0 | 1967 | 1088.6 |
| | BGR | BASEMENT GARAGE | 4 | 0 | 1967 | 240.0 |
| | OWP | OPEN WOOD PORCH W/STEPS | 4 | 0 | 1967 | 1080.0 |
| | OWC | OPEN WOOD PORCH W/STEPS/ROOF/C | 4 | 0 | 1967 | 38.0 |
| | DWN | DOWNSTAIRS LIVING AREA | 4 | 0 | 1967 | 848.6 |
Sketch
Property Image
Land
| 1 | LB | LOW BANK | 0.0000 | 0.00 | 50.00 | 0.00 | 1.00 | $1,250,000 | $0 |
| 2 | 55 | TIDES | 0.0000 | 0.00 | 50.00 | 0.00 | 1.00 | $480 | $0 |
Roll Value History
| 2026 | N/A | N/A | N/A | N/A | N/A |
| 2025 | $304,791 | $1,250,480 | $0 | $1,555,271 | $1,555,271 |
| 2024 | $315,097 | $1,365,480 | $0 | $1,680,577 | $1,680,577 |
| 2023 | $319,231 | $1,440,480 | $0 | $1,759,711 | $1,759,711 |
| 2022 | $292,809 | $1,375,480 | $0 | $1,668,289 | $1,668,289 |
| 2021 | $257,881 | $1,250,480 | $0 | $1,508,361 | $1,508,361 |
| 2020 | $251,715 | $1,150,480 | $0 | $1,402,195 | $1,402,195 |
| 2019 | $187,818 | $1,150,480 | $0 | $1,338,298 | $1,338,298 |
| 2018 | $188,396 | $950,480 | $0 | $1,138,876 | $1,138,876 |
| 2017 | $189,504 | $920,480 | $0 | $1,109,984 | $1,109,984 |
| 2016 | $191,815 | $750,480 | $0 | $942,295 | $942,295 |
| 2015 | $194,126 | $750,480 | $0 | $944,606 | $944,606 |
| 2014 | $163,107 | $750,480 | $0 | $913,587 | $913,587 |
| 2013 | $165,223 | $816,240 | $0 | $981,463 | $981,463 |
| 2012 | $167,338 | $816,240 | $0 | $983,578 | $983,578 |
| 2011 | $169,451 | $816,240 | $0 | $985,691 | $985,691 |
| 2010 | $179,208 | $955,310 | $0 | $1,134,518 | $1,134,518 |
| 2009 | $187,022 | $1,337,234 | $0 | $1,524,256 | $1,524,256 |
| 2008 | $170,132 | $1,337,234 | $0 | $1,507,366 | $1,507,366 |
| 2007 | $172,284 | $962,917 | $0 | $1,135,201 | $1,135,201 |
Deed and Sales History
| 1 | 09/19/2020 | QCD | Quit Claim Deed | LEWIS 1/2 INT, WILLIAM L. | LEWIS TTEE, WILLIAM M | | | $625,000.00 | 47318 | 4513432 |
| 2 | 09/28/2016 | QCD | Quit Claim Deed | LEWIS, WILLIAM L | LEWIS 1/2 INT, WILLIAM L. | | | $0.00 | 27329 | 4413350 |
| 3 | 10/08/2007 | WD | Warranty Deed | LAUB, PHILIP D | LEWIS, WILLIAM L | | | $1,550,000.00 | 73468 | 4214325 |
| 4 | 07/31/2003 | WD | Warranty Deed | CLEVELAND, JOHN K | LAUB, PHILIP D | | | $790,000.00 | 33521 | 4070611 |
| 5 | 04/01/1984 | WD | Warranty Deed | PRINCE, LUTHER W | CLEVELAND, JOHN K | | | $145,000.00 | 41039 | 423391 |
| 6 | 01/01/1900 | OTHER | Other - Misc. Documents | Unknown | PRINCE, LUTHER W | | | $0.00 | 0 | 0 |
Payout Agreement
| No payout information available.. |