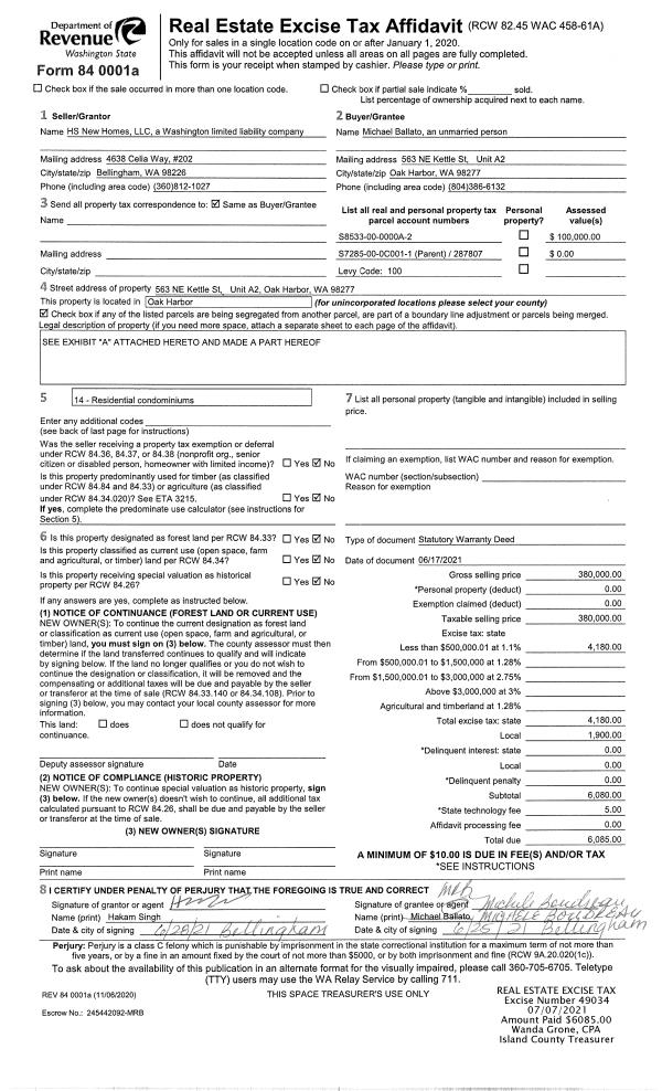
Property
Account |
| Property ID: | 398563 | Abbreviated Legal Description: | SUNLIGHT BCH LOT 19 INCL ADJ TIDES EX PTN CONVEYED TO DIKE COMM DIST #1 |
| Geographic ID: | S8220-00-00019-0 | Agent Code: | |
| Type: | Real | | |
| Tax Area: | 810 - APPRAISER-S Whid Schl Dist, Diking District#1, improved & 1 acre or less | Land Use Code | 11 |
| Open Space: | N | DFL | N |
| Historic Property: | N | Remodel Property: | N |
| Multi-Family Redevelopment: | N | | |
| Township: | | Section: | |
| Range: | |
Location |
| Address: | 2576 SUNLIGHT BEACH RD CLINTON, WA 98236 | Mapsco: | |
| Neighborhood: | Cycle 4 | Map ID: | 789 |
| Neighborhood CD: | 4 |
Owner |
| Name: | WINQUIST, ROBERT A | Owner ID: | 137427 |
| Mailing Address: | JUDITH A WINQUIST 2311 5TH AVE N SEATTLE, WA 98109-2118 | % Ownership: | 100.0000000000% |
| | | Exemptions: | |
Taxes and Assessment Details
Values
| (+) Improvement Homesite Value: | + | $0 | |
| (+) Improvement Non-Homesite Value: | + | $259,660 | |
| (+) Land Homesite Value: | + | $0 | |
| (+) Land Non-Homesite Value: | + | $1,250,480 | |
| (+) Curr Use (HS): | + | $0 | $0 |
| (+) Curr Use (NHS): | + | $0 | $0 |
| | | -------------------------- | |
| (=) Market Value: | = | $1,510,140 | |
| (–) Productivity Loss: | – | $0 | |
| | | -------------------------- | |
| (=) Subtotal: | = | $1,510,140 | |
| (+) Senior Appraised Value: | + | $0 | |
| (+) Non-Senior Appraised Value: | + | $1,510,140 | |
| | | -------------------------- | |
| (=) Total Appraised Value: | = | $1,510,140 | |
| (–) Senior Exemption Loss: | – | $0 | |
| (–) Exemption Loss: | – | $0 | |
| | | -------------------------- | |
| (=) Taxable Value: | = | $1,510,140 | |
Taxing Jurisdiction
| Owner: | WINQUIST, ROBERT A | | |
| % Ownership: | 100.0000000000% | | |
| Total Value: | $1,510,140 | | |
| Tax Area: | 810 - APPRAISER-S Whid Schl Dist, Diking District#1, improved & 1 acre or less |
| CF | Conservation Futures | 0.0316035091 | $1,510,140 | $1,510,140 | $47.73 | | |
| FIRE3 | Fire & Rescue Dist #3 S Whidbey GEN | 1.2004855531 | $1,510,140 | $1,510,140 | $1,812.90 | | |
| HOBOND | Hospital BOND | 0.1910887512 | $1,510,140 | $1,510,140 | $288.57 | | |
| HOGEN | Hospital GEN | 0.3902502903 | $1,510,140 | $1,510,140 | $589.33 | | |
| CE | County Current Expense | 0.3708482477 | $1,510,140 | $1,510,140 | $560.03 | | |
| CR | County Roads | 0.4584763726 | $1,510,140 | $1,510,140 | $692.36 | | |
| ISLANDEMS | Hospital GEN (EMS) | 0.5000000000 | $1,510,140 | $1,510,140 | $755.07 | | |
| LIB | Library Sno-Isle GEN | 0.3153421757 | $1,510,140 | $1,510,140 | $476.21 | | |
| PORTWHID | Port of S Whidbey GEN | 0.1094540357 | $1,510,140 | $1,510,140 | $165.29 | | |
| SCH206BOND | School 206 BOND | 0.3161759235 | $1,510,140 | $1,510,140 | $477.47 | | |
| SCH206MO | School 206 Enrichment | 0.4547169547 | $1,510,140 | $1,510,140 | $686.69 | | |
| ST | State School | 1.3035497053 | $1,510,140 | $1,510,140 | $1,968.54 | | |
| ST2 | State School Part 2 | 0.8169543533 | $1,510,140 | $1,510,140 | $1,233.72 | | |
| SWHIDPRBD | P & R S Whidbey BOND | 0.0152817568 | $1,510,140 | $1,510,140 | $23.08 | | |
| SWHIDPRBD2 | P & R S Whidbey BOND2 | 0.0138911264 | $1,510,140 | $1,510,140 | $20.98 | | |
| SWHIDPRMT | P & R S Whidbey GEN | 0.2053334452 | $1,510,140 | $1,510,140 | $310.08 | | |
| | Total Tax Rate: | 6.6934522006 | | | | | |
| | | | | Taxes w/Current Exemptions: | $10,108.05 | | |
| | | | | Taxes w/o Exemptions: | $10,108.05 | | |
Improvement / Building
| Improvement #1: | RESIDENTIAL | State Code: | Y | 1920.0 sqft | Value: | $259,660 |
| Bathrooms: | 2 | Bedrooms: | 3 | | Ceiling: | TONGUE & GROOVE | Cooling: | HEAT PUMP/CONV/V | | Exterior Wall/Cover: | VINYL | Floor Covering: | HARDWOOD/CARP 20-80 | | Floor Structure: | WOOD W/SUBFLOOR | Foundation: | CONCRETE | | Interior Finish: | DRYWALL PAINT | Plumbing Fixture Cnt: | 9 | | Roof Slope: | 3" IN 12" | Roof Structure/Cover: | BEAM BUILT-UP ROCK |
|
| | Type | Description | Class CD | Sub Class CD | Year Built | Area |
| | BAS | BASE/MAIN FLOOR | 3 | 0 | 1956 | 960.0 |
| | DWN | DOWNSTAIRS LIVING AREA | 3 | 0 | 1956 | 960.0 |
| | AGR | ATTACHED GARAGE | 3 | 0 | 1956 | 720.0 |
| | UTY | STORAGE/UTILITY | 3 | 0 | 1956 | 420.0 |
| | OWP | OPEN WOOD PORCH W/STEPS | 3 | 0 | 1956 | 634.0 |
| | OWR | OPEN WOOD PORCH W/STEPS/ROOF | 3 | 0 | 1956 | 128.0 |
Sketch
Property Image
Land
| 1 | LB | LOW BANK | 0.0000 | 0.00 | 50.00 | 0.00 | 1.00 | $1,250,000 | $0 |
| 2 | 55 | TIDES | 0.0000 | 0.00 | 50.00 | 0.00 | 1.00 | $480 | $0 |
Roll Value History
| 2026 | N/A | N/A | N/A | N/A | N/A |
| 2025 | $259,660 | $1,250,480 | $0 | $1,510,140 | $1,510,140 |
| 2024 | $263,640 | $1,365,480 | $0 | $1,629,120 | $1,629,120 |
| 2023 | $267,620 | $1,440,480 | $0 | $1,708,100 | $1,708,100 |
| 2022 | $245,939 | $1,375,480 | $0 | $1,621,419 | $1,621,419 |
| 2021 | $240,796 | $1,250,480 | $0 | $1,491,276 | $1,491,276 |
| 2020 | $234,483 | $1,150,480 | $0 | $1,384,963 | $1,384,963 |
| 2019 | $165,322 | $1,150,480 | $0 | $1,315,802 | $1,315,802 |
| 2018 | $165,901 | $950,480 | $0 | $1,116,381 | $1,116,381 |
| 2017 | $167,062 | $920,480 | $0 | $1,087,542 | $1,087,542 |
| 2016 | $169,383 | $750,480 | $0 | $919,863 | $919,863 |
| 2015 | $171,704 | $750,480 | $0 | $922,184 | $922,184 |
| 2014 | $120,102 | $750,480 | $0 | $870,582 | $870,582 |
| 2013 | $122,246 | $816,240 | $0 | $938,486 | $938,486 |
| 2012 | $124,391 | $816,240 | $0 | $940,631 | $940,631 |
| 2011 | $126,536 | $816,240 | $0 | $942,776 | $942,776 |
| 2010 | $141,797 | $955,310 | $0 | $1,097,107 | $1,097,107 |
| 2009 | $148,502 | $1,337,234 | $0 | $1,485,736 | $1,485,736 |
| 2008 | $117,429 | $1,337,234 | $0 | $1,454,663 | $1,454,663 |
| 2007 | $119,144 | $962,917 | $0 | $1,082,061 | $1,082,061 |
Deed and Sales History
| 1 | 09/14/2008 | WD | Warranty Deed | HALVERSON, ROY A | WINQUIST, ROBERT A | | | $1,500,000.00 | 82798 | 4239045 |
| 2 | 10/01/1995 | QCD | Quit Claim Deed | HALVERSON, ROY A | HALVERSON, ROY A | | | $0.00 | 53743 | 0 |
| 3 | 08/01/1979 | TRUSTEED | Trustee's Deed | HALVERSON, MRS A | HALVERSON, ROY A | | | $100,000.00 | 94203 | 0 |
| 4 | 01/01/1900 | OTHER | Other - Misc. Documents | HALVERSON, MRS A | HALVERSON, MRS A | | | $0.00 | 0 | 0 |
| 5 | 01/01/1900 | OTHER | Other - Misc. Documents | Unknown | HALVERSON, MRS A | | | $0.00 | 0 | 0 |
Payout Agreement
| No payout information available.. |