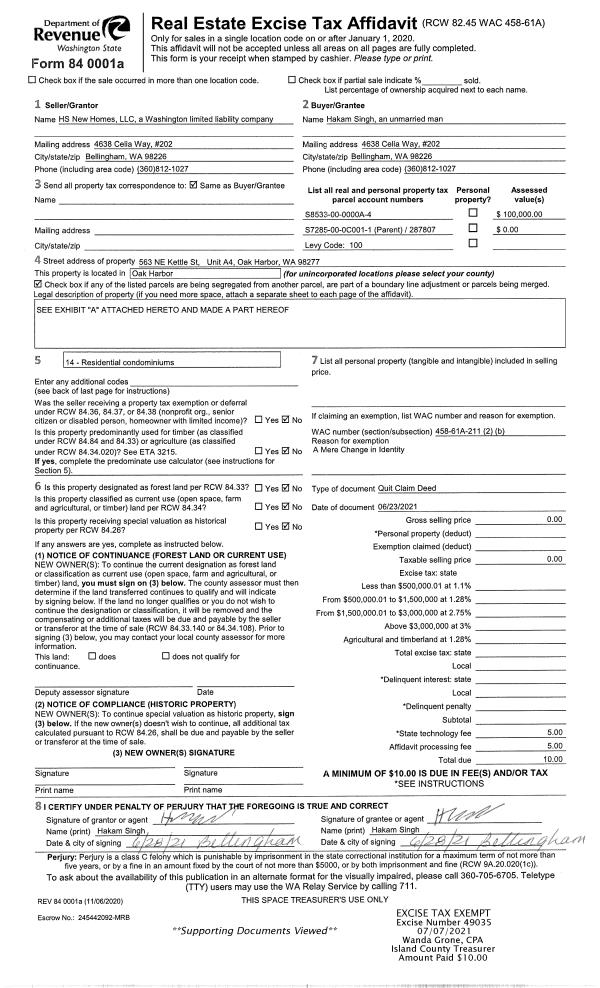
Property
Account |
| Property ID: | 398572 | Abbreviated Legal Description: | SUNLIGHT BCH LOT 20 INCL ADJ TIDES V245 P120 |
| Geographic ID: | S8220-00-00020-0 | Agent Code: | |
| Type: | Real | | |
| Tax Area: | 810 - APPRAISER-S Whid Schl Dist, Diking District#1, improved & 1 acre or less | Land Use Code | 99 |
| Open Space: | N | DFL | N |
| Historic Property: | N | Remodel Property: | N |
| Multi-Family Redevelopment: | N | | |
| Township: | | Section: | |
| Range: | |
Location |
| Address: | 2580 SUNLIGHT BEACH RD CLINTON, WA 98236 | Mapsco: | |
| Neighborhood: | Cycle 4 | Map ID: | 789 |
| Neighborhood CD: | 4 |
Owner |
| Name: | MCGRATH, JILL M | Owner ID: | 309179 |
| Mailing Address: | RICHARD GELB 6743 PALATINE NORTH SEATTLE, WA 98103 | % Ownership: | 100.0000000000% |
| | | Exemptions: | |
Taxes and Assessment Details
Values
| (+) Improvement Homesite Value: | + | $0 | |
| (+) Improvement Non-Homesite Value: | + | $0 | |
| (+) Land Homesite Value: | + | $0 | |
| (+) Land Non-Homesite Value: | + | $990,480 | |
| (+) Curr Use (HS): | + | $0 | $0 |
| (+) Curr Use (NHS): | + | $0 | $0 |
| | | -------------------------- | |
| (=) Market Value: | = | $990,480 | |
| (–) Productivity Loss: | – | $0 | |
| | | -------------------------- | |
| (=) Subtotal: | = | $990,480 | |
| (+) Senior Appraised Value: | + | $0 | |
| (+) Non-Senior Appraised Value: | + | $990,480 | |
| | | -------------------------- | |
| (=) Total Appraised Value: | = | $990,480 | |
| (–) Senior Exemption Loss: | – | $0 | |
| (–) Exemption Loss: | – | $0 | |
| | | -------------------------- | |
| (=) Taxable Value: | = | $990,480 | |
Taxing Jurisdiction
| Owner: | MCGRATH, JILL M | | |
| % Ownership: | 100.0000000000% | | |
| Total Value: | $990,480 | | |
| Tax Area: | 810 - APPRAISER-S Whid Schl Dist, Diking District#1, improved & 1 acre or less |
| CF | Conservation Futures | 0.0316035091 | $990,480 | $990,480 | $31.30 | | |
| FIRE3 | Fire & Rescue Dist #3 S Whidbey GEN | 1.2004855531 | $990,480 | $990,480 | $1,189.06 | | |
| HOBOND | Hospital BOND | 0.1910887512 | $990,480 | $990,480 | $189.27 | | |
| HOGEN | Hospital GEN | 0.3902502903 | $990,480 | $990,480 | $386.54 | | |
| CE | County Current Expense | 0.3708482477 | $990,480 | $990,480 | $367.32 | | |
| CR | County Roads | 0.4584763726 | $990,480 | $990,480 | $454.11 | | |
| ISLANDEMS | Hospital GEN (EMS) | 0.5000000000 | $990,480 | $990,480 | $495.24 | | |
| LIB | Library Sno-Isle GEN | 0.3153421757 | $990,480 | $990,480 | $312.34 | | |
| PORTWHID | Port of S Whidbey GEN | 0.1094540357 | $990,480 | $990,480 | $108.41 | | |
| SCH206BOND | School 206 BOND | 0.3161759235 | $990,480 | $990,480 | $313.17 | | |
| SCH206MO | School 206 Enrichment | 0.4547169547 | $990,480 | $990,480 | $450.39 | | |
| ST | State School | 1.3035497053 | $990,480 | $990,480 | $1,291.14 | | |
| ST2 | State School Part 2 | 0.8169543533 | $990,480 | $990,480 | $809.18 | | |
| SWHIDPRBD | P & R S Whidbey BOND | 0.0152817568 | $990,480 | $990,480 | $15.14 | | |
| SWHIDPRBD2 | P & R S Whidbey BOND2 | 0.0138911264 | $990,480 | $990,480 | $13.76 | | |
| SWHIDPRMT | P & R S Whidbey GEN | 0.2053334452 | $990,480 | $990,480 | $203.38 | | |
| | Total Tax Rate: | 6.6934522006 | | | | | |
| | | | | Taxes w/Current Exemptions: | $6,629.75 | | |
| | | | | Taxes w/o Exemptions: | $6,629.75 | | |
Improvement / Building
Sketch
| No sketches available for this property. |
Property Image
Land
| 1 | LB | LOW BANK | 0.0000 | 0.00 | 50.00 | 0.00 | 1.00 | $990,000 | $0 |
| 2 | 55 | TIDES | 0.0000 | 0.00 | 50.00 | 0.00 | 1.00 | $480 | $0 |
Roll Value History
| 2026 | N/A | N/A | N/A | N/A | N/A |
| 2025 | $0 | $990,480 | $0 | $990,480 | $990,480 |
| 2024 | $0 | $1,090,480 | $0 | $1,090,480 | $1,090,480 |
| 2023 | $0 | $1,150,480 | $0 | $1,150,480 | $1,150,480 |
| 2022 | $0 | $1,100,480 | $0 | $1,100,480 | $1,100,480 |
| 2021 | $0 | $1,000,480 | $0 | $1,000,480 | $1,000,480 |
| 2020 | $0 | $1,000,480 | $0 | $1,000,480 | $1,000,480 |
| 2019 | $0 | $1,000,480 | $0 | $1,000,480 | $1,000,480 |
| 2018 | $0 | $450,480 | $0 | $450,480 | $450,480 |
| 2017 | $0 | $400,480 | $0 | $400,480 | $400,480 |
| 2016 | $0 | $400,480 | $0 | $400,480 | $400,480 |
| 2015 | $0 | $400,480 | $0 | $400,480 | $400,480 |
| 2014 | $595 | $750,480 | $0 | $751,075 | $751,075 |
| 2013 | $595 | $816,240 | $0 | $816,835 | $816,835 |
| 2012 | $595 | $816,240 | $0 | $816,835 | $816,835 |
| 2011 | $595 | $816,240 | $0 | $816,835 | $816,835 |
| 2010 | $595 | $897,204 | $0 | $897,799 | $897,799 |
| 2009 | $0 | $1,000,930 | $0 | $1,000,930 | $1,000,930 |
| 2008 | $930 | $436,304 | $0 | $437,234 | $437,234 |
| 2007 | $930 | $357,978 | $0 | $358,908 | $358,908 |
Deed and Sales History
| 1 | 06/22/2023 | QCD | Quit Claim Deed | MCGRATH ET AL, JEFFREY C | MCGRATH, JILL M | | | $161,500.00 | 57199 | 4561821 |
| 2 | 03/01/1993 | QCD | Quit Claim Deed | MCGRATH, JEANNE M | MCGRATH, JEFFREY C | | | $0.00 | 33001 | 93015440 |
| 3 | 01/01/1900 | OTHER | Other - Misc. Documents | Unknown | MCGRATH, JEANNE M | | | $0.00 | 0 | 0 |
Payout Agreement
| No payout information available.. |