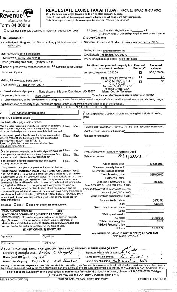
Property
Account |
| Property ID: | 398625 | Abbreviated Legal Description: | SUNLIGHT BCH LOTS 25 & 26 INCL ADJ TIDES |
| Geographic ID: | S8220-00-00025-0 | Agent Code: | |
| Type: | Real | | |
| Tax Area: | 810 - APPRAISER-S Whid Schl Dist, Diking District#1, improved & 1 acre or less | Land Use Code | 11 |
| Open Space: | N | DFL | N |
| Historic Property: | N | Remodel Property: | N |
| Multi-Family Redevelopment: | N | | |
| Township: | | Section: | |
| Range: | |
Location |
| Address: | 2602 SUNLIGHT BEACH RD CLINTON, WA 98236 | Mapsco: | |
| Neighborhood: | Cycle 4 | Map ID: | 790 |
| Neighborhood CD: | 4 |
Owner |
| Name: | INGHAM TTEE, WILLIAM PARTRIDGE | Owner ID: | 309363 |
| Mailing Address: | RUTH LOKER INGHAM TTEE 3956 E OLIVE ST SEATTLE, WA 98122 | % Ownership: | 100.0000000000% |
| | | Exemptions: | |
Taxes and Assessment Details
Values
| (+) Improvement Homesite Value: | + | $0 | |
| (+) Improvement Non-Homesite Value: | + | $988,619 | |
| (+) Land Homesite Value: | + | $0 | |
| (+) Land Non-Homesite Value: | + | $1,500,960 | |
| (+) Curr Use (HS): | + | $0 | $0 |
| (+) Curr Use (NHS): | + | $0 | $0 |
| | | -------------------------- | |
| (=) Market Value: | = | $2,489,579 | |
| (–) Productivity Loss: | – | $0 | |
| | | -------------------------- | |
| (=) Subtotal: | = | $2,489,579 | |
| (+) Senior Appraised Value: | + | $0 | |
| (+) Non-Senior Appraised Value: | + | $2,489,579 | |
| | | -------------------------- | |
| (=) Total Appraised Value: | = | $2,489,579 | |
| (–) Senior Exemption Loss: | – | $0 | |
| (–) Exemption Loss: | – | $0 | |
| | | -------------------------- | |
| (=) Taxable Value: | = | $2,489,579 | |
Taxing Jurisdiction
| Owner: | INGHAM TTEE, WILLIAM PARTRIDGE | | |
| % Ownership: | 100.0000000000% | | |
| Total Value: | $2,489,579 | | |
| Tax Area: | 810 - APPRAISER-S Whid Schl Dist, Diking District#1, improved & 1 acre or less |
| CF | Conservation Futures | 0.0316035091 | $2,489,579 | $2,489,579 | $78.68 | | |
| FIRE3 | Fire & Rescue Dist #3 S Whidbey GEN | 1.2004855531 | $2,489,579 | $2,489,579 | $2,988.70 | | |
| HOBOND | Hospital BOND | 0.1910887512 | $2,489,579 | $2,489,579 | $475.73 | | |
| HOGEN | Hospital GEN | 0.3902502903 | $2,489,579 | $2,489,579 | $971.56 | | |
| CE | County Current Expense | 0.3708482477 | $2,489,579 | $2,489,579 | $923.26 | | |
| CR | County Roads | 0.4584763726 | $2,489,579 | $2,489,579 | $1,141.41 | | |
| ISLANDEMS | Hospital GEN (EMS) | 0.5000000000 | $2,489,579 | $2,489,579 | $1,244.79 | | |
| LIB | Library Sno-Isle GEN | 0.3153421757 | $2,489,579 | $2,489,579 | $785.07 | | |
| PORTWHID | Port of S Whidbey GEN | 0.1094540357 | $2,489,579 | $2,489,579 | $272.49 | | |
| SCH206BOND | School 206 BOND | 0.3161759235 | $2,489,579 | $2,489,579 | $787.14 | | |
| SCH206MO | School 206 Enrichment | 0.4547169547 | $2,489,579 | $2,489,579 | $1,132.05 | | |
| ST | State School | 1.3035497053 | $2,489,579 | $2,489,579 | $3,245.29 | | |
| ST2 | State School Part 2 | 0.8169543533 | $2,489,579 | $2,489,579 | $2,033.87 | | |
| SWHIDPRBD | P & R S Whidbey BOND | 0.0152817568 | $2,489,579 | $2,489,579 | $38.05 | | |
| SWHIDPRBD2 | P & R S Whidbey BOND2 | 0.0138911264 | $2,489,579 | $2,489,579 | $34.58 | | |
| SWHIDPRMT | P & R S Whidbey GEN | 0.2053334452 | $2,489,579 | $2,489,579 | $511.19 | | |
| | Total Tax Rate: | 6.6934522006 | | | | | |
| | | | | Taxes w/Current Exemptions: | $16,663.86 | | |
| | | | | Taxes w/o Exemptions: | $16,663.86 | | |
Improvement / Building
| Improvement #1: | RESIDENTIAL | State Code: | Y | 2405.9 sqft | Value: | $988,619 |
| Bathrooms: | 3.5 | Bedrooms: | 3 | | Ceiling: | TONGUE & GROOVE | Exterior Wall/Cover: | SHINGLE | | Floor Covering: | SLATE | Floor Structure: | WOOD W/SUBFLOOR | | Foundation: | CONCRETE | Heating: | FHA ELECTRIC | | Interior Finish: | DRYWALL PAINT | Plumbing Fixture Cnt: | 17 | | Roof Slope: | 4" IN 12" | Roof Structure/Cover: | CJ ALUMINIUM HEAVY |
|
| | Type | Description | Class CD | Sub Class CD | Year Built | Area |
| | BAS | BASE/MAIN FLOOR | 6 | 0 | 2002 | 2405.9 |
| | OP1 | OPEN PORCH SLAB | 6 | 0 | 2002 | 12.0 |
| | OP1 | OPEN PORCH SLAB | 6 | 0 | 2002 | 23.1 |
| | OP1 | OPEN PORCH SLAB | 6 | 0 | 2002 | 11.0 |
| | OP2 | OPEN PORCH W/STEPS | 6 | 0 | 2002 | 91.6 |
| | OP2 | OPEN PORCH W/STEPS | 6 | 0 | 2002 | 72.0 |
| | OCP | OPEN CARPORT | 6 | 0 | 2002 | 595.3 |
| | OWP | OPEN WOOD PORCH W/STEPS | 6 | 0 | 2002 | 126.0 |
| | OWP | OPEN WOOD PORCH W/STEPS | 6 | 0 | 2002 | 48.0 |
| | OWP | OPEN WOOD PORCH W/STEPS | 6 | 0 | 2002 | 728.4 |
| | OWC | OPEN WOOD PORCH W/STEPS/ROOF/C | 6 | 0 | 2002 | 176.9 |
| | OWC | OPEN WOOD PORCH W/STEPS/ROOF/C | 6 | 0 | 2002 | 48.4 |
| | ENP | ENCLOSED PORCH | 6 | 0 | 2002 | 119.8 |
Sketch
Property Image
Land
| 1 | LB | LOW BANK | 0.0000 | 0.00 | 100.00 | 0.00 | 1.00 | $1,500,000 | $0 |
| 2 | 55 | TIDES | 0.0000 | 0.00 | 100.00 | 0.00 | 1.00 | $960 | $0 |
Roll Value History
| 2026 | N/A | N/A | N/A | N/A | N/A |
| 2025 | $988,619 | $1,500,960 | $0 | $2,489,579 | $2,489,579 |
| 2024 | $980,264 | $1,640,960 | $0 | $2,621,224 | $2,621,224 |
| 2023 | $992,182 | $1,730,960 | $0 | $2,723,142 | $2,723,142 |
| 2022 | $909,232 | $1,650,960 | $0 | $2,560,192 | $2,560,192 |
| 2021 | $800,036 | $1,500,960 | $0 | $2,300,996 | $2,300,996 |
| 2020 | $739,569 | $1,500,960 | $0 | $2,240,529 | $2,240,529 |
| 2019 | $612,723 | $1,500,960 | $0 | $2,113,683 | $2,113,683 |
| 2018 | $614,563 | $1,500,960 | $0 | $2,115,523 | $2,115,523 |
| 2017 | $617,913 | $1,500,960 | $0 | $2,118,873 | $2,118,873 |
| 2016 | $625,272 | $1,500,960 | $0 | $2,126,232 | $2,126,232 |
| 2015 | $632,628 | $1,500,960 | $0 | $2,133,588 | $2,133,588 |
| 2014 | $560,337 | $1,500,960 | $0 | $2,061,297 | $2,061,297 |
| 2013 | $566,765 | $1,458,240 | $0 | $2,025,005 | $2,025,005 |
| 2012 | $573,193 | $1,458,240 | $0 | $2,031,433 | $2,031,433 |
| 2011 | $579,620 | $1,458,240 | $0 | $2,037,860 | $2,037,860 |
| 2010 | $602,587 | $1,706,680 | $0 | $2,309,267 | $2,309,267 |
| 2009 | $621,460 | $2,388,952 | $0 | $3,010,412 | $3,010,412 |
| 2008 | $628,434 | $2,388,952 | $0 | $3,017,386 | $3,017,386 |
| 2007 | $641,920 | $1,720,194 | $0 | $2,362,114 | $2,362,114 |
Deed and Sales History
| 1 | 07/19/2023 | QCD | Quit Claim Deed | INGHAM, WILLIAM P | INGHAM TTEE, WILLIAM PARTRIDGE | | | $0.00 | 57361 | 4562482 |
| 2 | 04/16/2001 | BLA | DNU - Boundary Line Adjustment | INGHAM, WILLIAM P | INGHAM, WILLIAM P | | | $0.00 | 69005 | 20013508 |
| 3 | 09/29/1998 | WD | Warranty Deed | Unknown | INGHAM, WILLIAM P | | | $575,000.00 | 83912 | 98021024 |
Payout Agreement
| No payout information available.. |